to
Reset
Houses
Townhouses
Condos
Land
Price
to
SQFT
to
Bdrms
to
Baths
to
Lot
to
Yr Built
to
Sold
Listed within...
Listed at least...
Offer Review
New Construction
Waterfront
Short-Sales
REO
Parking
to
Unit Flr
to
Unit Nbr
Listings
Neighborhoods
Complexes
Developments
Cities
Counties
Zip Codes
Neighborhood · Condo · Development
School District
Zip Code
City
County
Builder
Listing Numbers
Broker LAG
Boundary Lines
Labels
View
Sort
Sold Closed February 27, 2026
$1,880,000
5 Bedrooms
2.5 Bathrooms
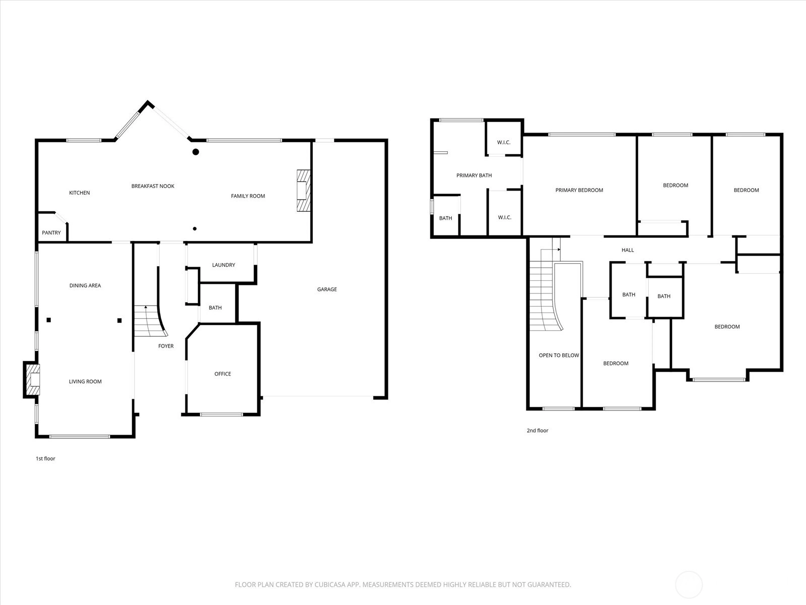
3,310 Sqft House
Built 2002
6,409 Sqft Lot
3-Car Garage
HOA Dues $38 / month
SALE HISTORY
List price was $1,800,000
It took 2 days to go pending.
Then 27 days to close at $1,880,000
Closed at $568/SQFT.
Set in the tranquil China Falls community, this 5-bedroom home offers space to grow and a location that elevates daily life. Soaring vaulted ceilings, a newer 2024 roof, and a thoughtfully refreshed exterior welcome you inside to a versatile main floor with formal living and dining areas, a dedicated home office, and an open-concept kitchen featuring stainless steel appliances and a large island with breakfast bar. The upper level hosts a private primary suite, three secondary bedrooms, and an oversized bonus room ready for work, fitness, or movie nights. Outside, enjoy a fully fenced backyard with room to relax or entertain, plus a 3-car attached garage and generator wiring for added security. Walk to China Falls Park and Redman Park, or hit the Cougar Mountain trail system just a block away. Minutes to I-90, I-405, shopping, dining, and golf, and located within the Issaquah School District—this is a home that supports both daily ease and long-term value.
Offer Review
No offer review date was specified
Listing source NWMLS MLS #
2469115
Listed by
Hao N. Dang, Windermere Real Estate/East
Buyer's broker
Joey Liu, WeLakeside
Contact our
Newcastle
Real Estate Lead
John L. Scott
Phone...
Bedroom & Bathroom Layout
SECOND
BDRM
BDRM
BDRM
BDRM
BDRM
FULL
BATH
FULL
BATH
MAIN
½
BATH
Property History
Feb 27, 2026
Sold
$1,880,000
NWMLS #2469115 Annualized 4.7% / yr
Jan 31, 2026
Went Pending
$1,800,000
NWMLS #2469115
Jan 29, 2026
Listed
$1,800,000
NWMLS #2469115
Jul 11, 2025
Price Reduction arrow_downward
$1,898,000
NWMLS #2391779
Jun 12, 2025
Listed
$1,965,000
NWMLS #2391779
May 09, 2007
Sold
$798,000
More
Listing Details
  • Sale Price
    $1,880,000
  • Closing Date
    February 27, 2026
  • Last List Price
    $1,800,000
  • Original Price
    Same
  • List Date
    January 29, 2026
  • Pending Date
    January 31, 2026
  • Days to go Pending
    2 days
  • $/sqft (Total)
    $568/sqft
  • $/sqft (Finished)
    $568/sqft
  • Listing Source
  • MLS Number
    2469115
  • Listing Broker
    Hao N. Dang
  • Listing Office
    Windermere Real Estate/East
  • Buyer's Broker
    Joey Liu
  • Buyer Broker's Firm
    WeLakeside
Monthly Payment Estimate
  • Principal and Interest
    $9,855 / month
  • HOA
    $38 / month
  • Property Taxes
    $1,097 / month
  • Homeowners Insurance
    $357 / month
  • TOTAL
    $11,347 / month

  • based on 20% down
    ($376,000)
  • and a
    6.85% Interest Rate
  • About:
    All calculations are estimates only and provided by Mainview LLC. Actual amounts will vary.
House Details
  • Sqft (Total)
    3,310 sqft
  • Sqft (Finished)
    3,310 sqft
  • Sqft (Unfinished)
    None
  • Property Type
    House
  • Sub Type
    2 Story
  • Bedrooms
    5 Bedrooms
  • Bathrooms
    2.5 Bathrooms
  • Lot
    6,409 sqft Lot
  • Lot Size Source
    Realist
  • Lot #
    Unspecified
  • Project
    Unspecified
  • Total Stories
    2 stories
  • Basement
    None
  • Sqft Source
    Realist
Property Tax Info
  • 2025 Property Taxes
    $13,159 / year
  • No Senior Exemption
Public Parcel Data & Maps
Schools
  • School District
    Issaquah
  • Elementary
    Newcastle
  • Middle
    Cougar Mountain Middle
  • High School
    Liberty Snr High
HOA
  • HOA Dues
    $38 / month
  • Fees Assessed
    Monthly
  • HOA Dues Include
    Common Area Maintenance
  • HOA Contact
    Unspecified
  • Management Contact
    Unspecified
Community Features
  • Community Features
    CCRs
    Park
    Playground
    Trail(s)
Parking
  • Covered
    3-Car
  • Types
    Attached Garage
  • Has Garage
    Yes
  • Nbr of Assigned Spaces
    3
Views
  • Territorial
Construction
  • Year Built
    2002
  • Home Builder
    Unspecified
Cooling
  • Includes
    Central A/C
Heating
  • Includes
    Forced Air
Interior
  • Flooring
    Ceramic Tile
    Hardwood
    Slate
    Carpet
  • Features
    Bath Off Primary
    Dbl Pane/Storm Window
    Dining Room
    Fireplace
    Jetted Tub
    Security System
    Skylight(s)
    Vaulted Ceilings
    Walk-In Closet(s)
    Walk-In Pantry
    Water Heater
    Wired for Generator
Property
  • Lot Features
    Curbs
    Dead End Street
    Paved
    Sidewalk
  • Site Features
    Cable TV
    Fenced-Fully
    Gas Available
    High Speed Internet
    Patio
    Sprinkler System
Appliances
  • Included
    Dishwasher(s)
    Disposal
    Dryer(s)
    Microwave(s)
    Refrigerator(s)
    Stove(s)/Range(s)
    Washer(s)
Terms
  • Bank Owned (REO)
    No
Utilities
  • Energy
    Electric
    Natural Gas
  • Sewer
    Sewer Connected
  • Water Source
    Public
Additional Info
  • Waterfront
    No
  • Air Conditioning (A/C)
    Yes
  • Buyer Broker's Compensation
    2.5%
  • MLS Area #
    Area 500
  • Number of Photos
    40
  • Last Modification Time
    Friday, February 27, 2026 8:08 PM
  • System Listing ID
    5514557
Update Info
  • Closed
    2026-02-27 20:30:32
  • Pending Or Ctg
    2026-02-01 03:08:02
  • First For Sale
    2026-01-29 12:40:04
Listing details based on information submitted to the MLS GRID as of Friday, February 27, 2026 8:08 PM. All data is obtained from various sources and may not have been verified by broker or MLS GRID. Supplied Open House Information is subject to change without notice. All information should be independently reviewed and verified for accuracy. Properties may or may not be listed by the office/agent presenting the information.
View
Sort

Sharing

 
Sold February 27, 2026
$1,880,000   $1,800,000
5 BR    2.5 BA    3,310 SQFT  
NWMLS #2469115. Hao N. Dang, Windermere Real Estate/East
Map
 
Listing information is provided by the listing agent except as follows: BuilderB indicates that our system has grouped this listing under a home builder name that doesn't match the name provided by the listing broker. DevelopmentD indicates that our system has grouped this listing under a development name that doesn't match the name provided by the listing broker.