to
Reset
Houses
Townhouses
Condos
Land
Price
to
SQFT
to
Bdrms
to
Baths
to
Lot
to
Yr Built
to
Sold
Listed within...
Listed at least...
Offer Review
New Construction
Waterfront
Short-Sales
REO
Parking
to
Unit Flr
to
Unit Nbr
Listings
Neighborhoods
Complexes
Developments
Cities
Counties
Zip Codes
Neighborhood · Condo · Development
School District
Zip Code
City
County
Builder
Listing Numbers
Broker LAG
Boundary Lines
Labels
View
Sort
For Sale 43 Days Online
$895,000
Originally $919,000
3 Bedrooms
2.25 Bathrooms
2,539 Sqft House
Built 2003
5 Acres Lot
5-Car Garage
Welcome to your own private retreat! This stunning, custom-built home sits on 5 beautiful acres & includes a fully finished 728sq ft ADU perfect for guests, multi-gen living, or a rental. Tucked away for ultimate privacy, this serene property backs directly to Port Blakely w/access to miles of trails. Step outside & relax by your own tranquil pond, unwind in the hot tub, or enjoy peaceful evenings on the spacious back deck surrounded by nature. Inside, the main home offers quality finishes, two spacious living areas, and thoughtful design with 4 beds & 2.25 baths. The attached garage provides convenience, while the shop is a dream come true for hobbyists or mechanics w/a car lift included! Seeking country living, this property has it all!
Offer Review
Will review offers when submitted
Listing source NWMLS MLS #
2475256
Listed by
Kristi Christensen, Better Properties Grays Harbor
Brook Raines, Better Properties Grays Harbor
We don't currently have a buyer representative in this area. To be sure that you're getting objective advice, we always suggest buyers work with their own agent, someone who is not affiliated with the seller.
Bedroom & Bathroom Layout
SECOND
BDRM
BDRM
BDRM
FULL
BATH
¾
BATH
MAIN
½
BATH
Property History
Mar 01, 2026
Price Reduction arrow_downward
$895,000
NWMLS #2475256
Jan 30, 2026
Listed
$919,000
NWMLS #2475256
Dec 04, 2025
Price Reduction arrow_downward
$919,000
NWMLS #2417322
Sep 05, 2025
Price Reduction arrow_downward
$925,000
NWMLS #2417322
Aug 05, 2025
Listed
$974,900
NWMLS #2417322
More
Listing Details
  • Status
    For Sale
  • Price
    $895,000
  • Original Price
    $919,000
  • List Date
    January 30, 2026
  • Last Status Change
    January 30, 2026
  • Last Update
    March 1, 2026
  • Days on Market
    43 Days
  • Cumulative DOM
    190 Days
  • $/sqft (Total)
    $353/sqft
  • $/sqft (Finished)
    $353/sqft
  • Listing Source
  • MLS Number
    2475256
  • Listing Broker
    Kristi Christensen
  • Listing Office
    Better Properties Grays Harbor
Monthly Payment Estimate
  • Principal and Interest
    $4,692 / month
  • Property Taxes
    $476 / month
  • Homeowners Insurance
    $177 / month
  • TOTAL
    $5,345 / month

  • based on 20% down
    ($179,000)
  • and a
    6.85% Interest Rate
  • About:
    All calculations are estimates only and provided by Mainview LLC. Actual amounts will vary.
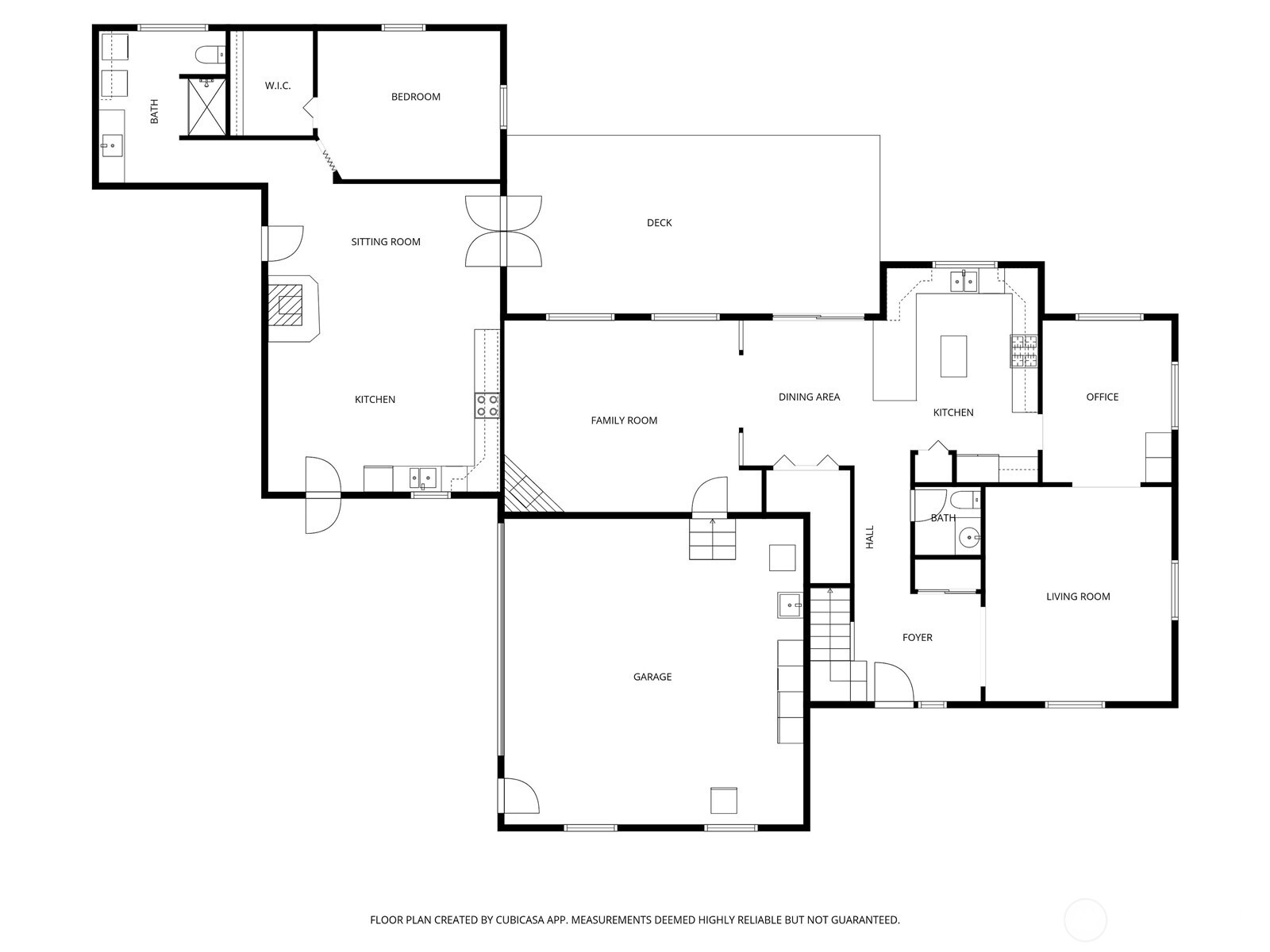
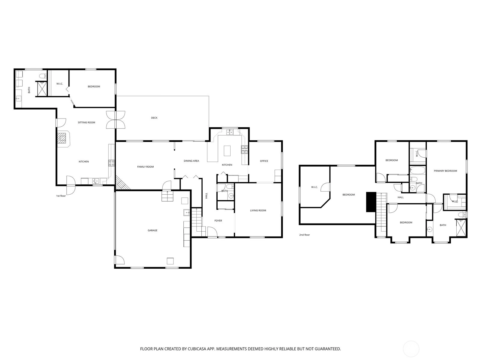
House Details
  • Sqft (Total)
    2,539 sqft
  • Sqft (Finished)
    2,539 sqft
  • Sqft (Unfinished)
    None
  • Property Type
    House
  • Sub Type
    2 Story
  • Bedrooms
    3 Bedrooms
  • Bathrooms
    2.25 Bathrooms
  • Lot
    5 Acres Lot
  • Lot Size Source
    County
  • Lot #
    Unspecified
  • Project
    Unspecified
  • Total Stories
    2 stories
  • Basement
    None
  • Sqft Source
    County
Property Tax Info
  • 2025 Property Taxes
    $5,716 / year
  • No Senior Exemption
Public Parcel Data & Maps
  • County
    Grays Harbor County
  • Parcel #
    180532120100
  • County Website
    Unspecified
  • County Parcel Map
    Unspecified
  • County GIS Map
    Unspecified
  • About
    County links provided by Mainview LLC
Schools
  • School District
    Elma
  • Elementary
    Elma Elem
  • Middle
    Elma Mid
  • High School
    Elma High
HOA
  • HOA Dues
    Unspecified
  • Fees Assessed
    Unspecified
  • HOA Dues Include
    Road Maintenance
  • HOA Contact
    Unspecified
  • Management Contact
Community Features
  • Community Features
    CCRs
Parking
  • Covered
    5-Car
  • Types
    Driveway
    Attached Garage
    RV Parking
  • Has Garage
    Yes
  • Nbr of Assigned Spaces
    5
Views
  • Territorial
Construction
  • Year Built
    2003
  • Home Builder
    Unspecified
Cooling
  • Includes
    Forced Air
Heating
  • Includes
    Fireplace Insert
    Forced Air
    Stove/Free Standing
Interior
  • Flooring
    Laminate
    Carpet
  • Features
    Bath Off Primary
    Built-In Vacuum
    Ceiling Fan(s)
    Dbl Pane/Storm Window
    Dining Room
    Fireplace
    Hot Tub/Spa
    Security System
    Walk-In Closet(s)
    Walk-In Pantry
    Water Heater
    Wired for Generator
Property
  • Lot Features
    Dead End Street
    Dirt Road
    Secluded
    Value In Land
  • Site Features
    Deck
    Fenced-Partially
    Hot Tub/Spa
    Outbuildings
    Propane
    RV Parking
    Shop
Appliances
  • Included
    Dishwasher(s)
    Disposal
    Double Oven
    Microwave(s)
    Refrigerator(s)
    Tankless Water Heater
    Washer(s)
Terms
  • 3rd Party Approval Required)
    No
  • Bank Owned (REO)
    No
  • Complex FHA Availability
    Unspecified
  • Potential Terms
    Cash
    Conventional
    FHA
    VA Loan
Utilities
  • Energy
    Electric
    Propane
    Wood
  • Sewer
    Septic Tank
  • Water Source
    Individual Well
Additional Info
  • Waterfront
    No
  • Air Conditioning (A/C)
    Yes
  • Buyer Broker's Compensation
    2%
  • MLS Area #
    Area 200
  • Number of Photos
    40
  • Last Modification Time
    Sunday, March 1, 2026 7:57 AM
  • System Listing ID
    5515168
Update Info
  • Price Reduction
    2026-03-01 08:31:28
  • First For Sale
    2026-01-30 16:10:40
Listing details based on information submitted to the MLS GRID as of Sunday, March 1, 2026 7:57 AM. All data is obtained from various sources and may not have been verified by broker or MLS GRID. Supplied Open House Information is subject to change without notice. All information should be independently reviewed and verified for accuracy. Properties may or may not be listed by the office/agent presenting the information.
View
Sort

Sharing

 
For Sale 43 Days Online
$895,000     ▼ Price Reduction $24K
3 BR    2.25 BA    2,539 SQFT  
Offer Review: Anytime
NWMLS #2475256. Kristi Christensen, Better Properties Grays Harbor
Map
 
Listing information is provided by the listing agent except as follows: BuilderB indicates that our system has grouped this listing under a home builder name that doesn't match the name provided by the listing broker. DevelopmentD indicates that our system has grouped this listing under a development name that doesn't match the name provided by the listing broker.