to
Reset
Houses
Townhouses
Condos
Land
Price
to
SQFT
to
Bdrms
to
Baths
to
Lot
to
Yr Built
to
Sold
Listed within...
Listed at least...
Offer Review
New Construction
Waterfront
Short-Sales
REO
Parking
to
Unit Flr
to
Unit Nbr
Listings
Neighborhoods
Complexes
Developments
Cities
Counties
Zip Codes
Neighborhood · Condo · Development
School District
Zip Code
City
County
Builder
Listing Numbers
Broker LAG
Boundary Lines
Labels
View
Sort
Sold Closed April 7, 2026
$775,000
6 Bedrooms
3.75 Bathrooms
2,646 Sqft House
Built 1968
9,975 Sqft Lot
2-Car Garage
SALE HISTORY
List price was $750,000
It took 4 days to go pending.
Then 59 days to close at $775,000
Closed at $293/SQFT.
Located in the highly sought-after Shore Acres community, this is a home you truly must see to appreciate all it has to offer. With Puget Sound views, flexible living spaces, and incredible potential, this rare opportunity is set in one of the area’s most desirable neighborhoods. The upper level is designed to impress with four bedrooms, including two spacious primary suites with private ensuite bathrooms, plus a convenient laundry and mudroom. A stunning wall of windows floods the living area with natural light and showcases breathtaking water views, leading to a large deck that is perfect for relaxing or entertaining while taking in the scenery. The lower level offers exceptional versatility with two bedrooms, a full bathroom, kitchen, dining area, and comfortable living space, along with its own laundry room and access to the one-car garage, making it ideal for multi-generational living or a live-up, rent-down opportunity. Major updates provide peace of mind, including a newer roof, HVAC system, tankless water heater, newer fencing, and RV parking. The property also features a large newer shed with electricity, use for a workout space, office, or creative studio, plus an attached wood shop that adds even more functionality. While some updating is needed, this home offers the perfect chance to personalize the kitchen and finishes while building equity. Incredible views, a prime location, and endless possibilities make this one you won’t want to miss!
Offer Review Date
This listing's offer review date was Saturday, February 7, 2026.
Listing source NWMLS MLS #
2476106
Listed by
Ashleigh Camberg, PCS Home Group
Buyer's broker
Angela L. Cochran, NextHome South Sound
Contact our
Gig Harbor
Real Estate Lead
RE/MAX Northwest Realtors
Phone...
Bedroom & Bathroom Layout
SECOND
BDRM
BDRM
BDRM
BDRM
FULL
BATH
FULL
BATH
¾
BATH
LOWER
BDRM
BDRM
FULL
BATH
Property History
Apr 07, 2026
Sold
$775,000
NWMLS #2476106 Annualized 7.9% / yr
Feb 25, 2026
Went Pending
$750,000
NWMLS #2476106
Feb 08, 2026
Went Pending Inspection
$750,000
NWMLS #2476106
Feb 03, 2026
Listed
$750,000
NWMLS #2476106
Aug 16, 2016
Sold
$373,000
NWMLS #961412
More
Listing Details
  • Sale Price
    $775,000
  • Closing Date
    April 7, 2026
  • Last List Price
    $750,000
  • Original Price
    Same
  • List Date
    February 3, 2026
  • Pending Date
    February 7, 2026
  • Days to go Pending
    4 days
  • $/sqft (Total)
    $293/sqft
  • $/sqft (Finished)
    $293/sqft
  • Listing Source
  • MLS Number
    2476106
  • Listing Broker
    Ashleigh Camberg
  • Listing Office
    PCS Home Group
  • Buyer's Broker
    Angela L. Cochran
  • Buyer Broker's Firm
    NextHome South Sound
Monthly Payment Estimate
  • Principal and Interest
    $4,063 / month
  • Property Taxes
    $545 / month
  • Homeowners Insurance
    $155 / month
  • TOTAL
    $4,763 / month

  • based on 20% down
    ($155,000)
  • and a
    6.85% Interest Rate
  • About:
    All calculations are estimates only and provided by Mainview LLC. Actual amounts will vary.
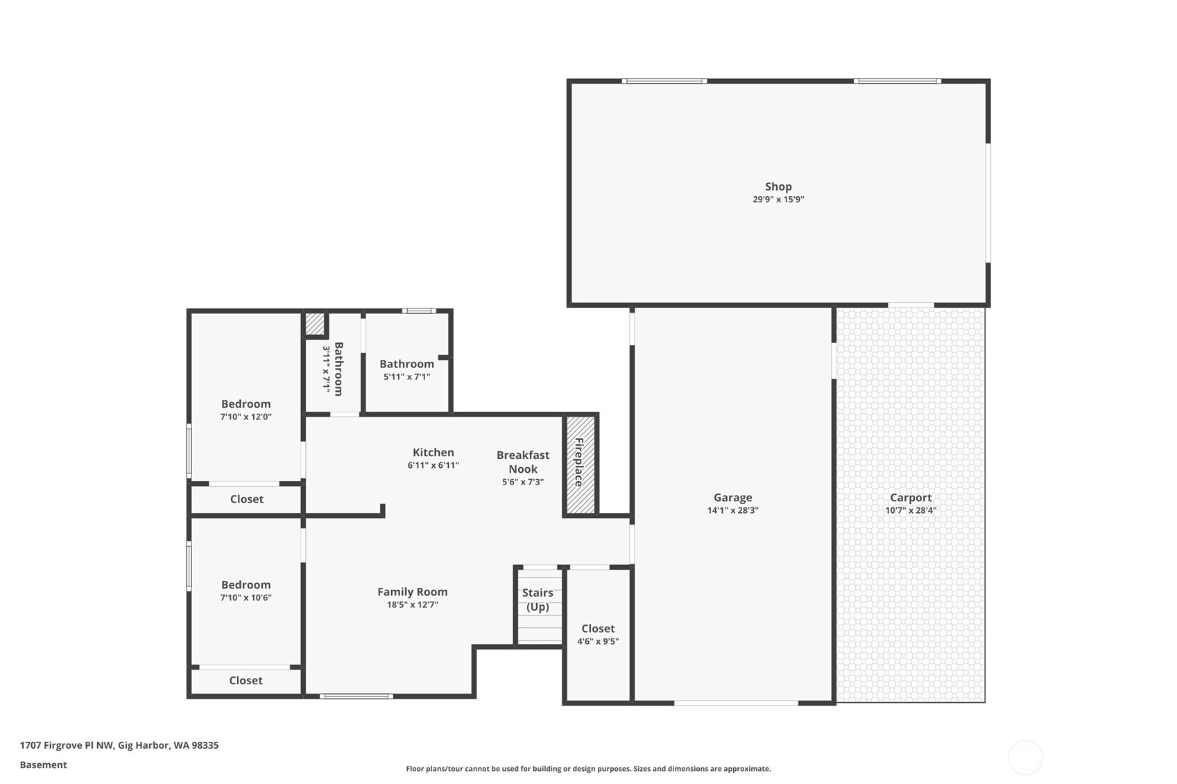
House Details
  • Sqft (Total)
    2,646 sqft
  • Sqft (Finished)
    2,646 sqft
  • Sqft (Unfinished)
    None
  • Property Type
    House
  • Sub Type
    Split Entry
  • Bedrooms
    6 Bedrooms
  • Bathrooms
    3.75 Bathrooms
  • Lot
    9,975 sqft Lot
  • Lot Size Source
    Realist
  • Lot #
    Unspecified
  • Project
    Unspecified
  • Total Stories
    2 stories
  • Basement
    None
  • Sqft Source
    Realist
Property Tax Info
  • 2025 Property Taxes
    $6,541 / year
  • No Senior Exemption
Public Parcel Data & Maps
Schools
  • School District
    Peninsula
  • Elementary
    Buyer To Verify
  • Middle
    Buyer To Verify
  • High School
    Buyer To Verify
HOA
  • HOA Dues
    Unspecified
  • Fees Assessed
    Unspecified
  • HOA Dues Include
    Unspecified
  • HOA Contact
    Unspecified
  • Management Contact
    Unspecified
Parking
  • Covered
    2-Car
  • Types
    Attached Carport
    Driveway
    Attached Garage
    Off Street
    RV Parking
  • Has Garage
    Yes
  • Nbr of Assigned Spaces
    2
Views
  • Sound
Construction
  • Year Built
    1968
  • Home Builder
    Unspecified
Cooling
  • Includes
    None
Heating
  • Includes
    90%+ High Efficiency
Interior
  • Flooring
    Ceramic Tile
    Laminate
    Vinyl Plank
  • Features
    Second Kitchen
    Bath Off Primary
    Ceiling Fan(s)
    Dbl Pane/Storm Window
    Dining Room
    Fireplace
    French Doors
    High Tech Cabling
    Pantry
    Skylight(s)
    Vaulted Ceiling(s)
    Water Heater
Property
  • Lot Features
    Cul-De-Sac
    Paved
  • Site Features
    Cable TV
    Deck
    Fenced-Fully
    High Speed Internet
    Outbuildings
    RV Parking
    Shop
Appliances
  • Included
    Dishwasher
    Dryer
    Microwave
    Refrigerator
    Stove(s)/Range(s)
    Washer
Terms
  • Bank Owned (REO)
    No
Utilities
  • Energy
    Natural Gas
    Wood
  • Sewer
    Septic Tank
  • Water Source
    Community
Additional Info
  • Waterfront
    No
  • Air Conditioning (A/C)
    No
  • Buyer Broker's Compensation
    2%
  • MLS Area #
    Area 6
  • Number of Photos
    40
  • Last Modification Time
    Tuesday, April 7, 2026 4:47 PM
  • System Listing ID
    5515800
Update Info
  • Closed
    2026-04-07 16:58:36
  • Pending Or Ctg
    2026-02-25 20:18:40
  • First For Sale
    2026-02-03 14:48:42
Listing details based on information submitted to the MLS GRID as of Tuesday, April 7, 2026 4:47 PM. All data is obtained from various sources and may not have been verified by broker or MLS GRID. Supplied Open House Information is subject to change without notice. All information should be independently reviewed and verified for accuracy. Properties may or may not be listed by the office/agent presenting the information.
View
Sort

Sharing

 
Sold April 7, 2026
$775,000   $750,000
6 BR    3.75 BA    2,646 SQFT  
NWMLS #2476106. Ashleigh Camberg, PCS Home Group
Map
 
Listing information is provided by the listing agent except as follows: BuilderB indicates that our system has grouped this listing under a home builder name that doesn't match the name provided by the listing broker. DevelopmentD indicates that our system has grouped this listing under a development name that doesn't match the name provided by the listing broker.