to
Reset
Houses
Townhouses
Condos
Land
Price
to
SQFT
to
Bdrms
to
Baths
to
Lot
to
Yr Built
to
Sold
Listed within...
Listed at least...
Offer Review
New Construction
Waterfront
Short-Sales
REO
Parking
to
Unit Flr
to
Unit Nbr
Listings
Neighborhoods
Complexes
Developments
Cities
Counties
Zip Codes
Neighborhood · Condo · Development
School District
Zip Code
City
County
Builder
Listing Numbers
Broker LAG
Boundary Lines
Labels
View
Sort
Sold Closed March 13, 2026
$885,000
4 Bedrooms
1.75 Bathrooms
2,200 Sqft House (1,760 Finished)
Built 1929
13,590 Sqft Lot
1-Car Garage
SALE HISTORY
List price was $925,000
It took 19 days to go pending.
Then 17 days to close at $885,000
Closed at $402/SQFT.
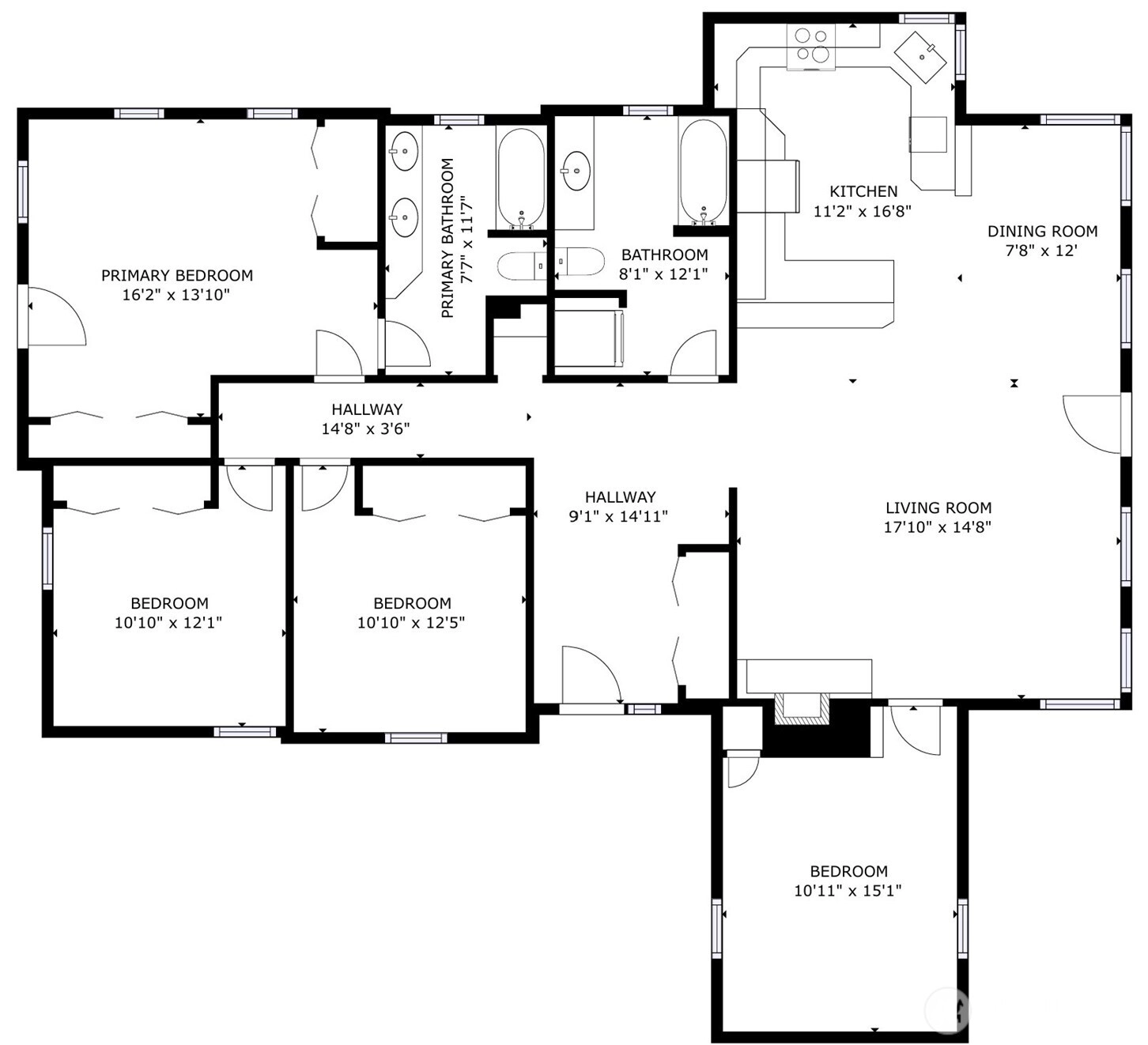
One-level living in North Beach! Just blocks from Cafe Fiore, Sunny Hill Pizza and Golden Gardens park, this home is ready for a refresh and the energy of new ownership. There are many elements of newer construction in place, as the home was renovated and expanded in 1995 (from the original 1929 structure), and the next owner has an opportunity to reimagine the fixtures, finishes and landscape plan. The interior features a great room concept with vaulted ceilings over the living, dining and kitchen areas. Looking west over a natural green belt, large windows let the light stream in. Four bedrooms include a flexible space that could be used as an office or bonus room. The primary suite is large enough for a king-size bed. An unfinished outside-entry basement holds water heater, furnace and offers additional storage. Detached one-car garage with electricity and a surplus of off-street parking in the long driveway. An expansive lot offers interesting possibilities. Buyer to verify whether the lot is suitable for a DADU build or other construction. This quality north Seattle neighborhood is a great place to call home!
Offer Review
No offer review date was specified
Listing source NWMLS MLS #
2476869
Listed by
Don Kenney, Windermere Real Estate Co.
Buyer's broker
Nazar Pekhotin, Best Choice Realty LLC
Contact our
North Beach / Blue Ridge
Real Estate Lead
John L. Scott
Phone...
Bedroom & Bathroom Layout
MAIN
BDRM
BDRM
BDRM
BDRM
FULL
BATH
¾
BATH
LOWER
Property History
Mar 13, 2026
Sold
$885,000
NWMLS #2476869 Annualized 3.5% / yr
Feb 24, 2026
Went Pending
$925,000
NWMLS #2476869
Feb 20, 2026
Back on Market
$925,000
NWMLS #2476869
Feb 15, 2026
Went Pending Feasibility
$925,000
NWMLS #2476869
Feb 05, 2026
Listed
$925,000
NWMLS #2476869
Aug 27, 2001
Sold
$384,000
NWMLS #21096988
More
Listing Details
  • Sale Price
    $885,000
  • Closing Date
    March 13, 2026
  • Last List Price
    $925,000
  • Original Price
    Same
  • List Date
    February 5, 2026
  • Pending Date
    February 24, 2026
  • Days to go Pending
    19 days
  • $/sqft (Total)
    $402/sqft
  • $/sqft (Finished)
    $503/sqft
  • Listing Source
  • MLS Number
    2476869
  • Listing Broker
    Don Kenney
  • Listing Office
    Windermere Real Estate Co.
  • Buyer's Broker
    Nazar Pekhotin
  • Buyer Broker's Firm
    Best Choice Realty LLC
Monthly Payment Estimate
  • Principal and Interest
    $4,639 / month
  • Property Taxes
    $847 / month
  • Homeowners Insurance
    $175 / month
  • TOTAL
    $5,661 / month

  • based on 20% down
    ($177,000)
  • and a
    6.85% Interest Rate
  • About:
    All calculations are estimates only and provided by Mainview LLC. Actual amounts will vary.
House Details
  • Sqft (Total)
    2,200 sqft
  • Sqft (Finished)
    1,760 sqft
  • Sqft (Unfinished)
    440 sqft
  • Property Type
    House
  • Sub Type
    1 Story
  • Bedrooms
    4 Bedrooms
  • Bathrooms
    1.75 Bathrooms
  • Lot
    13,590 sqft Lot
  • Lot Size Source
    Realist
  • Lot #
    6
  • Project
    Edgewest Grove Add
  • Total Stories
    1 story
  • Basement
    Unfinished
  • Sqft Source
    Realist
Property Tax Info
  • 2025 Property Taxes
    $10,169 / year
  • No Senior Exemption
Public Parcel Data & Maps
Schools
  • School District
    Seattle
  • Elementary
    Loyal Heights
  • Middle
    Whitman Mid
  • High School
    Ballard High
HOA
  • HOA Dues
    Unspecified
  • Fees Assessed
    Unspecified
  • HOA Dues Include
    Unspecified
  • HOA Contact
    Unspecified
  • Management Contact
    Unspecified
Parking
  • Covered
    1-Car
  • Types
    Driveway
    Detached Garage
    Off Street
  • Has Garage
    Yes
  • Nbr of Assigned Spaces
    1
Construction
  • Year Built
    1929
  • Home Builder
    Unspecified
Cooling
  • Includes
    None
Heating
  • Includes
    Forced Air
Interior
  • Features
    Bath Off Primary
    Ceiling Fan(s)
    Dbl Pane/Storm Window
    Dining Room
    Fireplace
    French Doors
    Security System
    Skylight(s)
    Vaulted Ceiling(s)
    Water Heater
Property
  • Lot Features
    Paved
  • Site Features
    Deck
    Fenced-Partially
    Hot Tub/Spa
Appliances
  • Included
    Dishwasher
    Dryer
    Refrigerator
    Stove(s)/Range(s)
    Washer
Terms
  • Bank Owned (REO)
    No
Utilities
  • Energy
    Natural Gas
  • Sewer
    Sewer Connected
  • Water Source
    Public
Additional Info
  • Waterfront
    No
  • Air Conditioning (A/C)
    No
  • Buyer Broker's Compensation
    2%
  • MLS Area #
    Area 705
  • Number of Photos
    23
  • Last Modification Time
    Monday, April 13, 2026 4:04 AM
  • System Listing ID
    5516422
Update Info
  • Closed
    2026-03-13 15:50:11
  • Pending Or Ctg
    2026-02-24 16:10:56
  • Back On Market
    2026-02-20 08:16:01
  • First For Sale
    2026-02-05 10:58:45
Listing details based on information submitted to the MLS GRID as of Monday, April 13, 2026 4:04 AM. All data is obtained from various sources and may not have been verified by broker or MLS GRID. Supplied Open House Information is subject to change without notice. All information should be independently reviewed and verified for accuracy. Properties may or may not be listed by the office/agent presenting the information.
View
Sort

Sharing

 
Sold March 13, 2026
$885,000   $925,000
4 BR    1.75 BA    2,200 SQFT  
NWMLS #2476869. Don Kenney, Windermere Real Estate Co.
Map
 
Listing information is provided by the listing agent except as follows: BuilderB indicates that our system has grouped this listing under a home builder name that doesn't match the name provided by the listing broker. DevelopmentD indicates that our system has grouped this listing under a development name that doesn't match the name provided by the listing broker.