to
Reset
Houses
Townhouses
Condos
Land
Price
to
SQFT
to
Bdrms
to
Baths
to
Lot
to
Yr Built
to
Sold
Listed within...
Listed at least...
Offer Review
New Construction
Waterfront
Short-Sales
REO
Parking
to
Unit Flr
to
Unit Nbr
Listings
Neighborhoods
Complexes
Developments
Cities
Counties
Zip Codes
Neighborhood · Condo · Development
School District
Zip Code
City
County
Builder
Listing Numbers
Broker LAG
Boundary Lines
Labels
View
Sort
Sold Closed March 9, 2026
$1,189,000
4 Bedrooms
1.75 Bathrooms
2,440 Sqft House
Built 1916
2,600 Sqft Lot
1-Car Garage
SALE HISTORY
List price was $1,189,000
It took 4 days to go pending.
Then 28 days to close at $1,189,000
Closed at $487/SQFT.
Bungalow style Craftsman-built home with inviting covered porch faces large park. Refinished original hardwoods, tall box beam ceilings, gas fireplace, pictures windows with leaded accent panes, built-ins, and extensive wood trim offer old world charm while the updated kitchen, baths, furnace, windows, roof, and more offer modern day convenience. 4 beds & 2 baths on two levels. Daylight basement boasts large fam rm w/ wall length closets. Heated garage w/ workbench plus bonus storage area. Central location just a few short blocks from Queen Anne's major shopping/restaurant district!
Offer Review
No offer review date was specified
Listing source NWMLS MLS #
2477031
Listed by
Rachel Badgett, Urban Properties
Buyer's broker
Hutton Moyer, Coldwell Banker Bain
Contact our
Queen Anne
Real Estate Lead
John L. Scott
Phone...
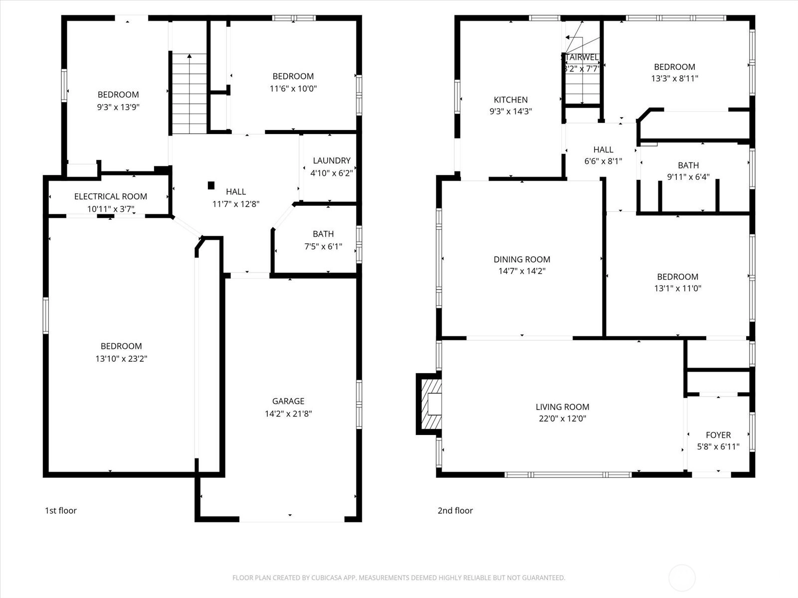
Bedroom & Bathroom Layout
MAIN
BDRM
BDRM
FULL
BATH
LOWER
BDRM
BDRM
¾
BATH
Property History
Mar 10, 2026
Sold
$1,189,000
NWMLS #2477031
Feb 09, 2026
Went Pending
$1,189,000
NWMLS #2477031
Feb 05, 2026
Listed
$1,189,000
NWMLS #2477031
More
Listing Details
  • Sale Price
    $1,189,000
  • Closing Date
    March 9, 2026
  • Last List Price
    $1,189,000
  • Original Price
    Same
  • List Date
    February 5, 2026
  • Pending Date
    February 9, 2026
  • Days to go Pending
    4 days
  • $/sqft (Total)
    $487/sqft
  • $/sqft (Finished)
    $487/sqft
  • Listing Source
  • MLS Number
    2477031
  • Listing Broker
    Rachel Badgett
  • Listing Office
    Urban Properties
  • Buyer's Broker
    Hutton Moyer
  • Buyer Broker's Firm
    Coldwell Banker Bain
Monthly Payment Estimate
  • Principal and Interest
    $6,233 / month
  • Property Taxes
    $916 / month
  • Homeowners Insurance
    $230 / month
  • TOTAL
    $7,379 / month

  • based on 20% down
    ($237,800)
  • and a
    6.85% Interest Rate
  • About:
    All calculations are estimates only and provided by Mainview LLC. Actual amounts will vary.
House Details
  • Sqft (Total)
    2,440 sqft
  • Sqft (Finished)
    2,440 sqft
  • Sqft (Unfinished)
    None
  • Property Type
    House
  • Sub Type
    1 Story + Basement
  • Bedrooms
    4 Bedrooms
  • Bathrooms
    1.75 Bathrooms
  • Lot
    2,600 sqft Lot
  • Lot Size Source
    Tax
  • Lot #
    Unspecified
  • Project
    Bigelows Add
  • Total Stories
    2 stories
  • Basement
    Daylight
    Finished
  • Sqft Source
    Tax
Property Tax Info
  • 2025 Property Taxes
    $10,994 / year
  • No Senior Exemption
Public Parcel Data & Maps
Schools
  • School District
    Seattle
  • Elementary
    John Hay Elementary
  • Middle
    Mc Clure Mid
  • High School
    Lincoln High
HOA
  • HOA Dues
    Unspecified
  • Fees Assessed
    Unspecified
  • HOA Dues Include
    Unspecified
  • HOA Contact
    Unspecified
  • Management Contact
    Unspecified
Parking
  • Covered
    1-Car
  • Types
    Attached Garage
    Off Street
  • Has Garage
    Yes
  • Nbr of Assigned Spaces
    1
Views
  • See Remarks
    Territorial
Construction
  • Year Built
    1916
  • Home Builder
    Unspecified
Cooling
  • Includes
    None
Heating
  • Includes
    Baseboard
    Fireplace Insert
    Radiator
Interior
  • Flooring
    Hardwood
    Laminate
    Carpet
  • Features
    Ceiling Fan(s)
    Dbl Pane/Storm Window
    Dining Room
    Fireplace
    Security System
    Water Heater
Property
  • Lot Features
    Curbs
    Paved
    Sidewalk
  • Site Features
    Cable TV
    Fenced-Partially
    High Speed Internet
Appliances
  • Included
    Dishwasher
    Disposal
    Dryer
    Refrigerator
    Stove(s)/Range(s)
    Washer
Terms
  • Bank Owned (REO)
    No
Utilities
  • Energy
    Electric
    Natural Gas
  • Sewer
    Sewer Connected
  • Water Source
    Public
Additional Info
  • Waterfront
    No
  • Air Conditioning (A/C)
    No
  • Buyer Broker's Compensation
    2.5%
  • MLS Area #
    Area 700
  • Number of Photos
    25
  • Last Modification Time
    Thursday, April 9, 2026 4:01 AM
  • System Listing ID
    5516557
Update Info
  • Closed
    2026-03-10 17:36:29
  • Pending Or Ctg
    2026-02-09 11:21:04
  • First For Sale
    2026-02-05 13:19:56
Listing details based on information submitted to the MLS GRID as of Thursday, April 9, 2026 4:01 AM. All data is obtained from various sources and may not have been verified by broker or MLS GRID. Supplied Open House Information is subject to change without notice. All information should be independently reviewed and verified for accuracy. Properties may or may not be listed by the office/agent presenting the information.
View
Sort

Sharing

 
Sold March 9, 2026
$1,189,000  
4 BR    1.75 BA    2,440 SQFT  
NWMLS #2477031. Rachel Badgett, Urban Properties
Map
 
Listing information is provided by the listing agent except as follows: BuilderB indicates that our system has grouped this listing under a home builder name that doesn't match the name provided by the listing broker. DevelopmentD indicates that our system has grouped this listing under a development name that doesn't match the name provided by the listing broker.