to
Reset
Houses
Townhouses
Condos
Land
Price
to
SQFT
to
Bdrms
to
Baths
to
Lot
to
Yr Built
to
Sold
Listed within...
Listed at least...
Offer Review
New Construction
Waterfront
Short-Sales
REO
Parking
to
Unit Flr
to
Unit Nbr
Listings
Neighborhoods
Complexes
Developments
Cities
Counties
Zip Codes
Neighborhood · Condo · Development
School District
Zip Code
City
County
Builder
Listing Numbers
Broker LAG
Boundary Lines
Labels
View
Sort
Pending Went pending in 3 days
$925,000
2 Bedrooms
1.75 Bathrooms
1,479 Sqft Condo
Unit 302
Floor 3
Built 1994
2 Parking Spaces
HOA Dues $991 / month
PENDING SALE. This listing went Pending on February 9, 2026

Some pending sales don't become final. Contact Us if this property is really important to you so we can check on it right now. The seller has reached an agreement with a buyer to sell this property. If things go as planned, the sale will become final in the near future. The buyer and seller have agreed on a price but it's not public until the sale closes. The last published list price was $925,000.
Beach Elegance! Immerse yourself in 180° unobstructed views of Puget Sound and the Olympic Mountains! A thoughtfully updated 2-bedroom + office/media condo, welcoming you with a rich hardwood entry that flows down the hallway, and into the bright and cheery kitchen. The kitchen features newer appliances, and stunning Sound views, making it a great spot for friends to gather and create lasting memories. The guest room connects to the guest bath, creating a convenient ensuite for visitors, while the primary suite opens directly onto the view deck – as does the living room - providing indoor/outdoor living and entertaining. The living room, with full picture windows, captures the spectacular surroundings in every season. Sports enthusiasts will appreciate the nearby West Seattle Water Taxi, offering a scenic and quick ride downtown for Mariners or Seahawks games without the hassle of driving. Enjoy the added peace of mind of knowing the elevator was just recently modernized! This lovely unit also includes two parking spaces in the enclosed garage plus additional storage, adding convenience to waterfront living. Step outside your door and enjoy Alki Beach’s charming eateries, coffee houses, and walking paths, or simply relax and watch the ferries and cruise ships glide by. With a well-run HOA, The Waterside remains one of the most desirable residences on the beach. Make this the year you call Alki Beach home—where every day feels like a retreat! Aloha from Alki!
Offer Review
No offer review date was specified
Project
Waterside at Alki Beach Condo
Listing source NWMLS MLS #
2473414
Listed by
Randie Stone, Windermere West Metro
Rick Lohr, Windermere West Metro
Contact our
West Seattle
Real Estate Lead
John L. Scott
Phone...
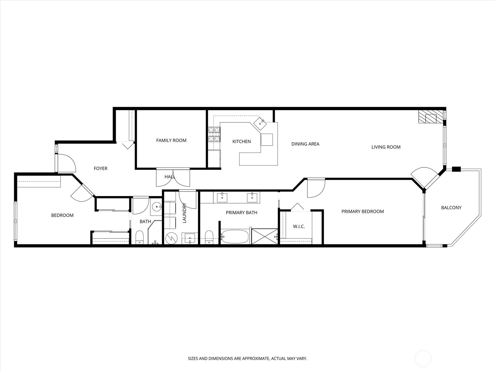
Bedroom & Bathroom Layout
MAIN
BDRM
BDRM
FULL
BATH
¾
BATH
Property History
Feb 12, 2026
Went Pending
$925,000
NWMLS #2473414
Feb 09, 2026
Went Pending Inspection
$925,000
NWMLS #2473414
Feb 06, 2026
Listed
$925,000
NWMLS #2473414
Feb 21, 2019
Sold
$715,000
NWMLS #1371954 Annualized 5.7% / yr
Feb 10, 2014
Sold
$540,000
NWMLS #577189 Annualized -6.7% / yr
Aug 07, 2012
Sold
$600,000
NWMLS #367522 Annualized -4.1% / yr
Oct 09, 2006
Sold
$768,000
More
Listing Details
  • Status
    Pending
  • Last Listed Price
    $925,000
  • Original Price
    Same as current
  • List Date
    February 6, 2026
  • Last Status Change
    February 12, 2026
  • Last Update
    February 12, 2026
  • Days on Market
    9 Days
  • Cumulative DOM
    3 Days
  • Pending Date
    February 9, 2026
  • Days to go Pending
    3
  • $/sqft (Total)
    $625/sqft
  • $/sqft (Finished)
    $625/sqft
  • Listing Source
  • MLS Number
    2473414
  • Listing Broker
    Randie Stone
  • Listing Office
    Windermere West Metro
Monthly Payment Estimate
  • Principal and Interest
    $4,849 / month
  • HOA
    $991 / month
  • Property Taxes
    $728 / month
  • Homeowners Insurance
    $182 / month
  • TOTAL
    $6,750 / month

  • based on 20% down
    ($185,000)
  • and a
    6.85% Interest Rate
  • About:
    All calculations are estimates only and provided by Mainview LLC. Actual amounts will vary.
Condo Details
  • Unit #
    302
  • Unit Floor
    3
  • Sqft (Total)
    1,479 sqft
  • Sqft (Finished)
    Unspecified
  • Sqft (Unfinished)
    None
  • Property Type
    Condo
  • Sub Type
    Condo (1 Level)
  • Bedrooms
    2 Bedrooms
  • Bathrooms
    1.75 Bathrooms
  • Lot Size
    Unspecified
  • Lot Size Source
    Unspecified
  • Project
    Waterside at Alki Beach Condo
  • Total Stories
    1 story
  • Sqft Source
    KCR
Property Tax Info
  • 2025 Property Taxes
    $8,736 / year
  • No Senior Exemption
Public Parcel Data & Maps
Schools
  • School District
    Seattle
  • Elementary
    Alki
  • Middle
    Madison Mid
  • High School
    West Seattle High
HOA
  • HOA Dues
    $991 / month
  • Fees Assessed
    Monthly
  • HOA Dues Include
    Common Area Maintenance
    Earthquake Insurance
    Gas
    Lawn Service
    Sewer
    Trash
    Water
  • Pets Allowed
    Cats OK
    Dogs OK
    Subject to Restrictions
  • HOA Contact
    Unspecified
  • Management Contact
    CondoManagements 206-937-4856
Community Features
  • Community Features
    Elevator
    Fire Sprinklers
    Game/Rec Rm
    Lobby Entrance
Building
  • Name
    Waterside at Alki Beach Condo
  • Units in Complex
    23
  • Units in Building
    23
  • Stories in Building
    6
Parking
  • Covered
    2-Car
  • Types
    Common Garage
  • Has Garage
    Yes
  • Nbr of Assigned Spaces
    2
  • Parking Space Info
    14 & 27
Views
  • Bay
    Islands
    Mountain(s)
    See Remarks
    Sound
Construction
  • Year Built
    1994
  • Home Builder
    Unspecified
Cooling
  • Includes
    None
Heating
  • Includes
    Wall Unit(s)
Interior
  • Flooring
    Hardwood
    Stone
    Carpet
  • Features
    Cooking-Electric
    Cooking-Gas
    Fireplace
    French Doors
    Insulated Windows
    Primary Bathroom
    Sprinkler System
    Walk-In Closet(s)
    Washer
    Water Heater
Property
  • Lot Features
    Curbs
    Paved
    Sidewalk
Appliances
  • Included
    Dishwasher(s)
    Disposal
    Dryer(s)
    Microwave(s)
    Refrigerator(s)
    Stove(s)/Range(s)
    Washer(s)
Terms
  • 3rd Party Approval Required)
    No
  • Bank Owned (REO)
    No
  • Complex FHA Availability
    Unspecified
  • Potential Terms
    Cash
    Conventional
Utilities
  • Energy
    Electric
Additional Info
  • Waterfront
    No
  • Air Conditioning (A/C)
    No
  • Buyer Broker's Compensation
    2.5%
  • MLS Area #
    Area 140
  • Number of Photos
    36
  • Last Modification Time
    Thursday, February 12, 2026 10:24 AM
  • System Listing ID
    5516993
Update Info
  • Pending Or Ctg
    2026-02-12 10:36:45
  • First For Sale
    2026-02-06 10:43:52
Listing details based on information submitted to the MLS GRID as of Thursday, February 12, 2026 10:24 AM. All data is obtained from various sources and may not have been verified by broker or MLS GRID. Supplied Open House Information is subject to change without notice. All information should be independently reviewed and verified for accuracy. Properties may or may not be listed by the office/agent presenting the information.
View
Sort

Sharing

 
Pending February 9, 2026
$925,000  
2 BR    1.75 BA    1,479 SQFT  
NWMLS #2473414. Randie Stone, Windermere West Metro
Map
 
Listing information is provided by the listing agent except as follows: BuilderB indicates that our system has grouped this listing under a home builder name that doesn't match the name provided by the listing broker. DevelopmentD indicates that our system has grouped this listing under a development name that doesn't match the name provided by the listing broker.