to
Reset
Houses
Townhouses
Condos
Land
Price
to
SQFT
to
Bdrms
to
Baths
to
Lot
to
Yr Built
to
Sold
Listed within...
Listed at least...
Offer Review
New Construction
Waterfront
Short-Sales
REO
Parking
to
Unit Flr
to
Unit Nbr
Listings
Neighborhoods
Complexes
Developments
Cities
Counties
Zip Codes
Neighborhood · Condo · Development
School District
Zip Code
City
County
Builder
Listing Numbers
Broker LAG
Boundary Lines
Labels
View
Sort
Contingent Went pending in 77 days
$1,699,000
Originally $1,795,000
5 Bedrooms
3.5 Bathrooms
4,495 Sqft House
Waterfront
Built 1932
16,250 Sqft Lot
3-Car Garage
PENDING SALE. This listing went Contingent on April 28, 2026

Some pending sales don't become final. Contact Us if this property is really important to you so we can check on it right now. The seller has reached an agreement with a buyer to sell this property. If things go as planned, the sale will become final in the near future. The buyer and seller have agreed on a price but it's not public until the sale closes. The last published list price was $1,699,000.
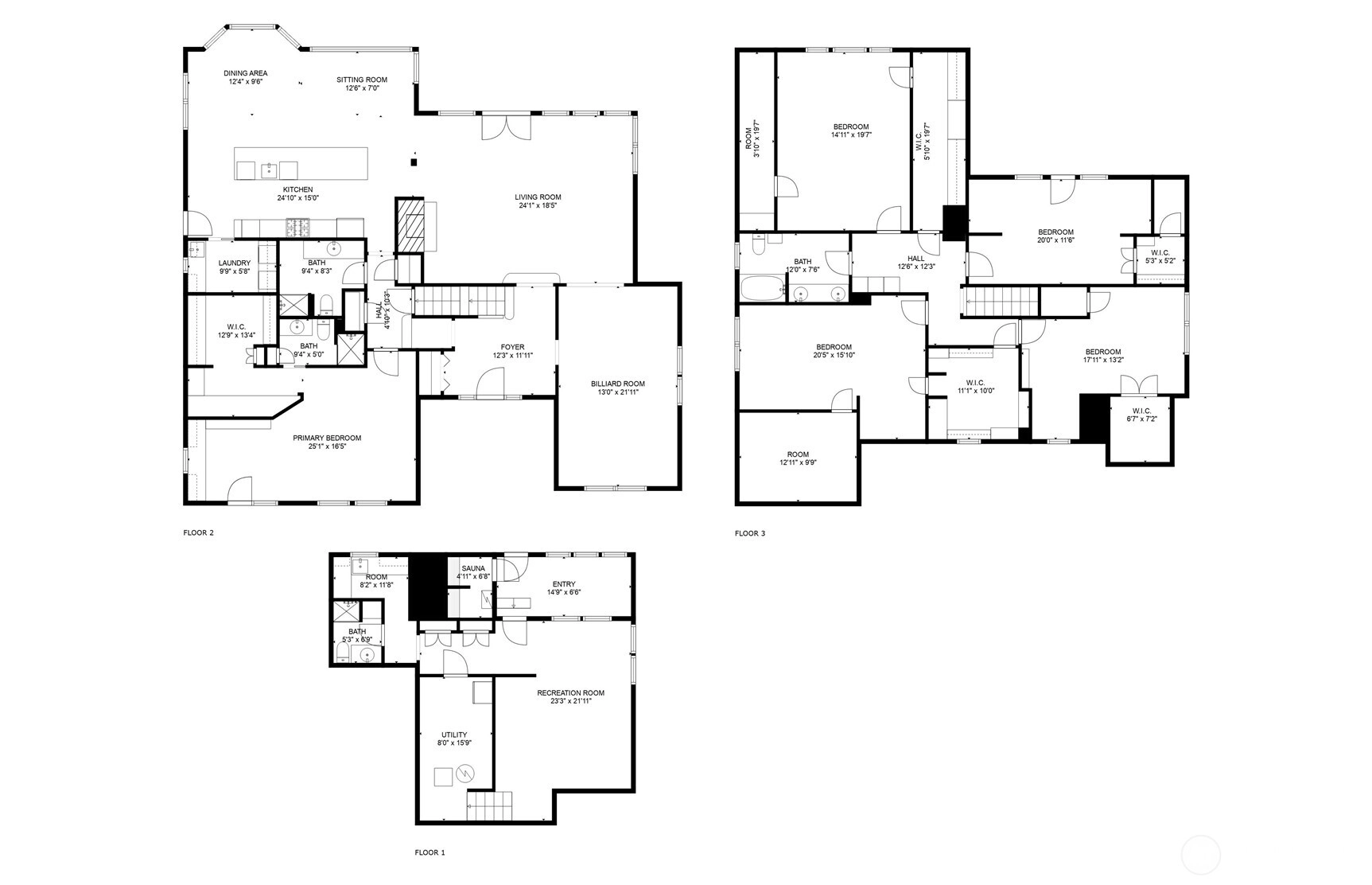
Historic "Boldt" House on Lake Steilacoom. Charming & MOVE IN READY shingled home with direct 65 feet of OPEN water frontage. Massive Kitchen boasting marble slab; 14' foot ISLAND to seat 6; Stainless Appliances; 2 dishwashers; Electrolux; back kitchen w/ 2nd sink/wet bar area; open to large living spaces. MAIN LEVEL bedroom w/ seating area, cedar closet & attach bath; Upper Level w/ 4 Bedrooms; hall bath & tons of character with built in beds & Storage. LOWER LEVEL media room, bath, work out, SAUNA. Waterside is manicured playground with boat house; generous sized dock; firepit, hot tub and the perfect backdrop for waterfront entertaining. Detach garage w/ UPPER LEVEL STORAGE. Lake Steilacoom is a FULL USE lake w/ Charm & Character.
Offer Review
No offer review date was specified
Listing source NWMLS MLS #
2478495
Listed by
Michael Morrison, Morrison House Sotheby's Intl
Contact our
Lakewood Waterfront
Real Estate Lead
RE/MAX Northwest Realtors
Phone...
Bedroom & Bathroom Layout
SECOND
BDRM
BDRM
BDRM
BDRM
FULL
BATH
MAIN
BDRM
FULL
BATH
¾
BATH
LOWER
¾
BATH
Property History
Apr 28, 2026
Went Contingent
$1,699,000
NWMLS #2478495
Mar 13, 2026
Price Reduction arrow_downward
$1,699,000
NWMLS #2478495
Feb 10, 2026
Listed
$1,795,000
NWMLS #2478495
Oct 01, 2025
Price Reduction arrow_downward
$1,795,000
NWMLS #2393815
Sep 26, 2025
Back on Market
$1,899,000
NWMLS #2393815
Sep 24, 2025
Went Contingent
$1,899,000
NWMLS #2393815
Aug 02, 2025
Price Reduction arrow_downward
$1,899,000
NWMLS #2393815
Jun 17, 2025
Listed
$1,998,000
NWMLS #2393815
May 17, 2012
Sold
$620,000
More
Listing Details
  • Status
    Contingent
  • Last Listed Price
    $1,699,000
  • Original Price
    $1,795,000
  • List Date
    February 10, 2026
  • Last Status Change
    April 28, 2026
  • Last Update
    April 28, 2026
  • Days on Market
    78 Days
  • Cumulative DOM
    77 Days
  • Contingent Date
    April 28, 2026
  • Days to go Contingent
    77
  • $/sqft (Total)
    $378/sqft
  • $/sqft (Finished)
    $378/sqft
  • Listing Source
  • MLS Number
    2478495
  • Listing Broker
    Michael Morrison
  • Listing Office
    Morrison House Sotheby's Intl
Monthly Payment Estimate
  • Principal and Interest
    $8,906 / month
  • Property Taxes
    $1,166 / month
  • Homeowners Insurance
    $324 / month
  • TOTAL
    $10,396 / month

  • based on 20% down
    ($339,800)
  • and a
    6.85% Interest Rate
  • About:
    All calculations are estimates only and provided by Mainview LLC. Actual amounts will vary.
House Details
  • Sqft (Total)
    4,495 sqft
  • Sqft (Finished)
    4,495 sqft
  • Sqft (Unfinished)
    None
  • Property Type
    House
  • Sub Type
    2 Stories + Basement
  • Bedrooms
    5 Bedrooms
  • Bathrooms
    3.5 Bathrooms
  • Lot
    16,250 sqft Lot
  • Lot Size Source
    Realist
  • Lot #
    Unspecified
  • Project
    Unspecified
  • Total Stories
    3 stories
  • Basement
    Finished
  • Sqft Source
    Prior List
Property Tax Info
  • 2025 Property Taxes
    $13,990 / year
  • No Senior Exemption
Public Parcel Data & Maps
Schools
  • School District
    Clover Park
  • Elementary
    Park Lodge Elem
  • Middle
    Hudtloff Mid
  • High School
    Clover Park High
Waterfront
  • Waterfront
    Yes
  • Type
    Low Bank
    Bulkhead
    Lake
    No Bank
  • Frontage
    65 Feet
HOA
  • HOA Dues
    Unspecified
  • Fees Assessed
    Unspecified
  • HOA Dues Include
    Unspecified
  • HOA Contact
    Unspecified
  • Management Contact
Parking
  • Covered
    3-Car
  • Types
    Driveway
    Detached Garage
    Off Street
  • Has Garage
    Yes
  • Nbr of Assigned Spaces
    3
Views
  • Lake
    See Remarks
Construction
  • Year Built
    1932
  • Home Builder
    Unspecified
Cooling
  • Includes
    None
Heating
  • Includes
    90%+ High Efficiency
    Forced Air
    Heat Pump
Interior
  • Flooring
    Ceramic Tile
    Hardwood
    Softwood
    Carpet
  • Features
    Dbl Pane/Storm Window
    Dining Room
    Fireplace
    French Doors
    Hot Tub/Spa
    Walk-In Closet(s)
Property
  • Lot Features
    Curbs
    Paved
    Secluded
  • Site Features
    Boat House
    Cabana/Gazebo
    Cable TV
    Deck
    Dock
    Fenced-Partially
    Gas Available
    Hot Tub/Spa
    Moorage
    Outbuildings
    Patio
Appliances
  • Included
    Dishwasher
    Refrigerator
    Stove(s)/Range(s)
Terms
  • 3rd Party Approval Required)
    No
  • Bank Owned (REO)
    No
  • Complex FHA Availability
    Unspecified
  • Potential Terms
    Cash
    Conventional
    VA Loan
Utilities
  • Energy
    Electric
    Natural Gas
  • Sewer
    Sewer Connected
  • Water Source
    Public
Additional Info
  • Waterfront
    Yes
  • Air Conditioning (A/C)
    No
  • Buyer Broker's Compensation
    2.5%
  • MLS Area #
    Area 39
  • Number of Photos
    40
  • Last Modification Time
    Tuesday, April 28, 2026 1:25 PM
  • System Listing ID
    5517782
Update Info
  • Pending Or Ctg
    2026-04-28 14:13:54
  • Price Reduction
    2026-03-13 14:56:12
  • First For Sale
    2026-02-10 15:17:25
Listing details based on information submitted to the MLS GRID as of Tuesday, April 28, 2026 1:25 PM. All data is obtained from various sources and may not have been verified by broker or MLS GRID. Supplied Open House Information is subject to change without notice. All information should be independently reviewed and verified for accuracy. Properties may or may not be listed by the office/agent presenting the information.
View
Sort

Sharing

 
Contingent April 28, 2026
$1,699,000  
5 BR    3.5 BA    4,495 SQFT  
NWMLS #2478495. Michael Morrison, Morrison House Sotheby's Intl
Map
 
Listing information is provided by the listing agent except as follows: BuilderB indicates that our system has grouped this listing under a home builder name that doesn't match the name provided by the listing broker. DevelopmentD indicates that our system has grouped this listing under a development name that doesn't match the name provided by the listing broker.