to
Reset
Houses
Townhouses
Condos
Land
Price
to
SQFT
to
Bdrms
to
Baths
to
Lot
to
Yr Built
to
Sold
Listed within...
Listed at least...
Offer Review
New Construction
Waterfront
Short-Sales
REO
Parking
to
Unit Flr
to
Unit Nbr
Listings
Neighborhoods
Complexes
Developments
Cities
Counties
Zip Codes
Neighborhood · Condo · Development
School District
Zip Code
City
County
Builder
Listing Numbers
Broker LAG
Boundary Lines
Labels
View
Sort
Pending Went pending in 9 days
$990,000
Originally $999,000
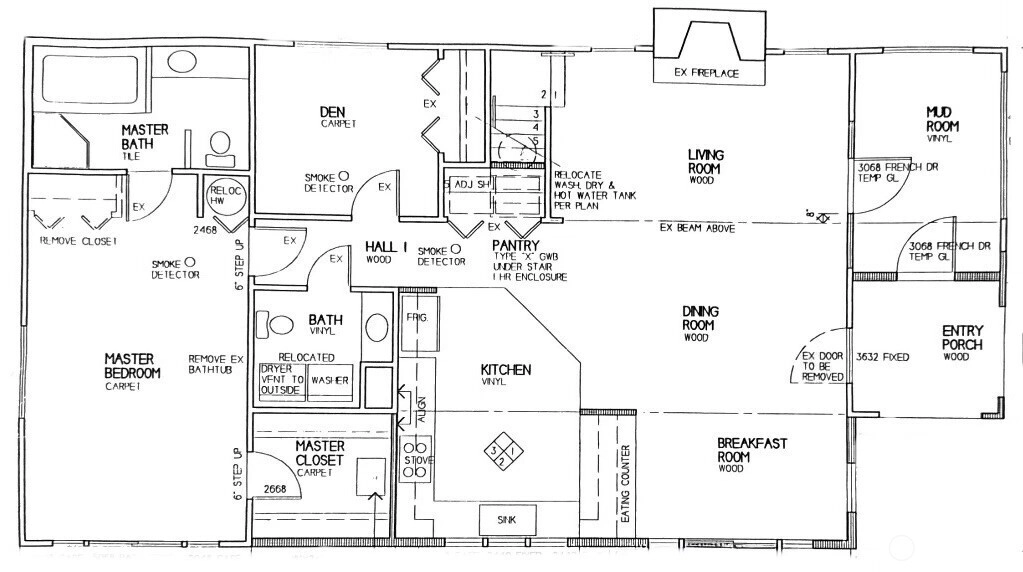
4 Bedrooms
2.5 Bathrooms
2,241 Sqft House
Built 1966
11,310 Sqft Lot
No Garage
HOA Dues $38 / month
PENDING SALE. This listing went Pending on February 19, 2026

Some pending sales don't become final. Contact Us if this property is really important to you so we can check on it right now. The seller has reached an agreement with a buyer to sell this property. If things go as planned, the sale will become final in the near future. The buyer and seller have agreed on a price but it's not public until the sale closes. The last published list price was $990,000.
Welcome to this charming craftsman home on just over .25 acres in the community of Riverbend in North Bend. The property boasts large mature trees that give you the feeling of being connected to the land. A newly added garden bed is a perfect canvas to start planting for this season. Driveway, recently re-graded, offers ample parking. It's roughly a 5 minute walk to the S.V.T trail for easy access to Rattlesnake or downtown N.B/Snoqualmie. This is truly a community to live and play all in one place! This extensively remodeled home in the late 1990s was done with care and quality boosting many timeless finishes. The French doors off the dining room to the expansive deck further connect you to the outdoors with ample space for entertaining guests. The kitchen has space for storage and enough room for more than one cook making it easy when hosting gatherings. The primary suit offers sanctuary with a large bedroom and complete 5 piece bath with new bidet. Additional rooms upstairs offer flexibility for family or space for home office. Come see for yourself all this community and home have to offer!
Offer Review
No offer review date was specified
Listing source NWMLS MLS #
2478502
Listed by
Karina Snare Daily, Valley Realty Group/eXp Realty
Contact our
North Bend
Real Estate Lead
TPG Realty | Keller Williams
Phone...
Bedroom & Bathroom Layout
SECOND
BDRM
BDRM
FULL
BATH
MAIN
BDRM
BDRM
FULL
BATH
½
BATH
Property History
Mar 03, 2026
Went Pending
$990,000
NWMLS #2478502
Feb 19, 2026
Went Pending Inspection
$990,000
NWMLS #2478502
Feb 19, 2026
Went Pending
$990,000
NWMLS #2478502
Feb 10, 2026
Price Reduction arrow_downward
$990,000
NWMLS #2478502
More
Listing Details
  • Status
    Pending
  • Last Listed Price
    $990,000
  • Original Price
    $999,000
  • List Date
    February 10, 2026
  • Last Status Change
    March 3, 2026
  • Last Update
    March 3, 2026
  • Days on Market
    23 Days
  • Cumulative DOM
    9 Days
  • Pending Date
    February 19, 2026
  • Days to go Pending
    9
  • $/sqft (Total)
    $442/sqft
  • $/sqft (Finished)
    $442/sqft
  • Listing Source
  • MLS Number
    2478502
  • Listing Broker
    Karina Snare Daily
  • Listing Office
    Valley Realty Group/eXp Realty
Monthly Payment Estimate
  • Principal and Interest
    $5,190 / month
  • HOA
    $38 / month
  • Property Taxes
    $753 / month
  • Homeowners Insurance
    $194 / month
  • TOTAL
    $6,175 / month

  • based on 20% down
    ($198,000)
  • and a
    6.85% Interest Rate
  • About:
    All calculations are estimates only and provided by Mainview LLC. Actual amounts will vary.
House Details
  • Sqft (Total)
    2,241 sqft
  • Sqft (Finished)
    2,241 sqft
  • Sqft (Unfinished)
    None
  • Property Type
    House
  • Sub Type
    2 Story
  • Bedrooms
    4 Bedrooms
  • Bathrooms
    2.5 Bathrooms
  • Lot
    11,310 sqft Lot
  • Lot Size Source
    Public Records
  • Lot #
    120
  • Project
    RIVERBEND HOMESITES AT N BEND 3
  • Total Stories
    2 stories
  • Basement
    None
  • Sqft Source
    Public Records
Property Tax Info
  • 2025 Property Taxes
    $9,038 / year
  • No Senior Exemption
Public Parcel Data & Maps
Schools
  • School District
    Snoqualmie Valley
  • Elementary
    Edwin R Opstad Elem
  • Middle
    Twin Falls Mid
  • High School
    Mount Si High
HOA
  • HOA Dues
    $38 / month
  • Fees Assessed
    Monthly
  • HOA Dues Include
    Common Area Maintenance
    Water
  • HOA Contact
    Riverbend Homesites Ass. 425-888-4564
  • Management Contact
Community Features
  • Community Features
    CCRs
    Park
    Playground
    Trail(s)
Parking
  • Covered
    Unspecified
  • Types
    Driveway
    RV Parking
  • Has Garage
    No
Views
  • Territorial
Construction
  • Year Built
    1966
  • Home Builder
    Unspecified
Cooling
  • Includes
    None
Heating
  • Includes
    Baseboard
    Fireplace Insert
Interior
  • Flooring
    Ceramic Tile
    Hardwood
    Laminate
    Carpet
  • Features
    Ceiling Fan(s)
    Dbl Pane/Storm Window
    French Doors
    Jetted Tub
    Skylight(s)
    Walk-In Closet(s)
    Water Heater
Property
  • Lot Features
    Paved
  • Site Features
    Cable TV
    Deck
    Fenced-Partially
    High Speed Internet
    Patio
    RV Parking
Appliances
  • Included
    Dishwasher(s)
    Dryer(s)
    Microwave(s)
    Refrigerator(s)
    Stove(s)/Range(s)
    Washer(s)
Terms
  • 3rd Party Approval Required)
    No
  • Bank Owned (REO)
    No
  • Complex FHA Availability
    Unspecified
  • Potential Terms
    Assumable
    Cash
    Conventional
    FHA
    VA Loan
Utilities
  • Energy
    Electric
    Pellet
  • Sewer
    Septic Tank
  • Water Source
    Community
Additional Info
  • Waterfront
    No
  • Air Conditioning (A/C)
    No
  • Buyer Broker's Compensation
    2.5%
  • MLS Area #
    Area 540
  • Number of Photos
    38
  • Last Modification Time
    Tuesday, March 3, 2026 4:41 AM
  • System Listing ID
    5517789
Update Info
  • Pending Or Ctg
    2026-03-03 04:47:48
  • Price Reduction
    2026-02-10 19:25:30
  • First For Sale
    2026-02-10 15:37:37
Listing details based on information submitted to the MLS GRID as of Tuesday, March 3, 2026 4:41 AM. All data is obtained from various sources and may not have been verified by broker or MLS GRID. Supplied Open House Information is subject to change without notice. All information should be independently reviewed and verified for accuracy. Properties may or may not be listed by the office/agent presenting the information.
View
Sort

Sharing

 
Pending February 19, 2026
$990,000  
4 BR    2.5 BA    2,241 SQFT  
NWMLS #2478502. Karina Snare Daily, Valley Realty Group/eXp Realty
Map
 
Listing information is provided by the listing agent except as follows: BuilderB indicates that our system has grouped this listing under a home builder name that doesn't match the name provided by the listing broker. DevelopmentD indicates that our system has grouped this listing under a development name that doesn't match the name provided by the listing broker.