to
Reset
Houses
Townhouses
Condos
Land
Price
to
SQFT
to
Bdrms
to
Baths
to
Lot
to
Yr Built
to
Sold
Listed within...
Listed at least...
Offer Review
New Construction
Waterfront
Short-Sales
REO
Parking
to
Unit Flr
to
Unit Nbr
Listings
Neighborhoods
Complexes
Developments
Cities
Counties
Zip Codes
Neighborhood · Condo · Development
School District
Zip Code
City
County
Builder
Listing Numbers
Broker LAG
Boundary Lines
Labels
View
Sort
Pending Inspection Went pending in 2 days
$515,000
3 Bedrooms
1 Bathroom
912 Sqft House
Built 1955
19,166 Sqft Lot
3-Car Garage
PENDING SALE. This listing went Pending Inspection on February 14, 2026

Some pending sales don't become final. Contact Us if this property is really important to you so we can check on it right now. The seller has reached an agreement with a buyer to sell this property. If things go as planned, the sale will become final in the near future. The buyer and seller have agreed on a price but it's not public until the sale closes. The last published list price was $515,000.
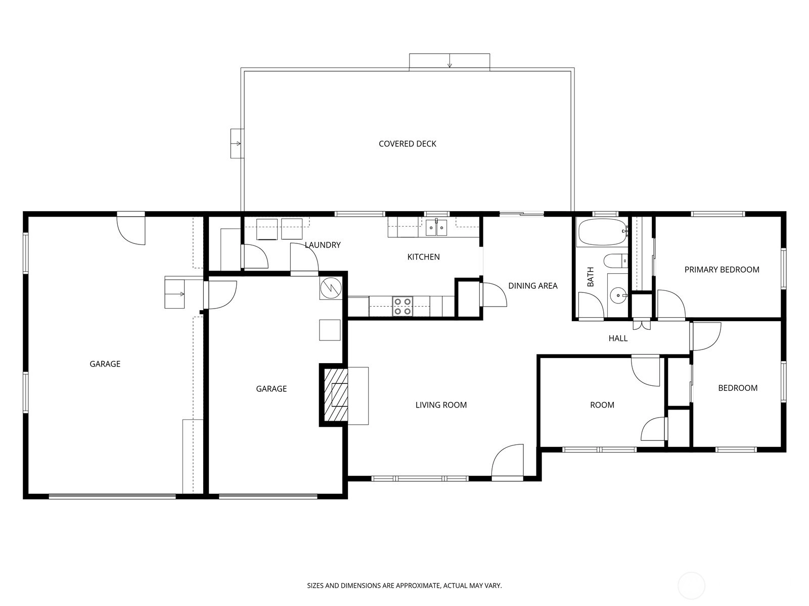
Come fall in love! Available to the market for the first time in several decades, this sweet rambler offers so many features for its new owner. Make favorite meals in the new kitchen, with new cupboards, countertops, flooring, and appliances. The home also features beautiful, newly refinished original hardwoods, fresh interior paint, a wood burning fireplace, a brand new roof, and a new electrical panel. Looking for garage space? Bring your hobbies, recreational vehicles, and tools – plenty of space in the 832 sq ft of garage bays. Come relax on the enormous, covered back deck overlooking the yard, a place to enjoy anytime of the year. Sited on a generous .44 acre lot, fully level and fenced, there are many possibilities for gardening, play, an ADU, RV parking, or a dream shop! A side vehicle gate to the backyard allows access, and the cement slab has already been done for you. Septic has passed inspection. Easy access to amenities and freeways. This property is a rare find! Come and make it yours.
Offer Review
No offer review date was specified
Listing source NWMLS MLS #
2478052
Listed by
Rebecca Bomann, SASH Realty
Contact our
Puyallup
Real Estate Lead
RE/MAX Northwest Realtors
Phone...
Bedroom & Bathroom Layout
MAIN
BDRM
BDRM
BDRM
FULL
BATH
Property History
Feb 14, 2026
Went Pending Inspection
$515,000
NWMLS #2478052
Feb 12, 2026
Listed
$515,000
NWMLS #2478052
More
Listing Details
  • Status
    Pending Inspection
  • Last Listed Price
    $515,000
  • Original Price
    Same as current
  • List Date
    February 12, 2026
  • Last Status Change
    February 14, 2026
  • Last Update
    February 14, 2026
  • Days on Market
    3 Days
  • Cumulative DOM
    2 Days
  • Pending Date
    February 14, 2026
  • Days to go Pending
    2
  • $/sqft (Total)
    $565/sqft
  • $/sqft (Finished)
    $565/sqft
  • Listing Source
  • MLS Number
    2478052
  • Listing Broker
    Rebecca Bomann
  • Listing Office
    SASH Realty
Monthly Payment Estimate
  • Principal and Interest
    $2,700 / month
  • Property Taxes
    $408 / month
  • Homeowners Insurance
    $107 / month
  • TOTAL
    $3,215 / month

  • based on 20% down
    ($103,000)
  • and a
    6.85% Interest Rate
  • About:
    All calculations are estimates only and provided by Mainview LLC. Actual amounts will vary.
House Details
  • Sqft (Total)
    912 sqft
  • Sqft (Finished)
    912 sqft
  • Sqft (Unfinished)
    None
  • Property Type
    House
  • Sub Type
    1 Story
  • Bedrooms
    3 Bedrooms
  • Bathrooms
    1 Bathroom
  • Lot
    19,166 sqft Lot
  • Lot Size Source
    Pierce County Assessor
  • Lot #
    Unspecified
  • Project
    Unspecified
  • Total Stories
    1 story
  • Basement
    None
  • Sqft Source
    Pierce County Assessor
Property Tax Info
  • 2025 Property Taxes
    $4,893 / year
  • No Senior Exemption
Public Parcel Data & Maps
Schools
  • School District
    Puyallup
  • Elementary
    Buyer To Verify
  • Middle
    Buyer To Verify
  • High School
    Buyer To Verify
HOA
  • HOA Dues
    Unspecified
  • Fees Assessed
    Unspecified
  • HOA Dues Include
    Unspecified
  • HOA Contact
    Unspecified
  • Management Contact
Parking
  • Covered
    3-Car
  • Types
    Driveway
    Attached Garage
    Off Street
    RV Parking
  • Has Garage
    Yes
  • Nbr of Assigned Spaces
    3
Views
  • Territorial
Construction
  • Year Built
    1955
  • Home Builder
    Unspecified
Cooling
  • Includes
    None
Heating
  • Includes
    Forced Air
Interior
  • Flooring
    Hardwood
    Vinyl
  • Features
    Dbl Pane/Storm Window
    Dining Room
    Fireplace
    Water Heater
Property
  • Lot Features
    Corner Lot
    Paved
  • Site Features
    Deck
    Fenced-Fully
    Outbuildings
    RV Parking
    Shop
Appliances
  • Included
    Dishwasher(s)
    Dryer(s)
    Microwave(s)
    Refrigerator(s)
    Stove(s)/Range(s)
    Washer(s)
Terms
  • 3rd Party Approval Required)
    No
  • Bank Owned (REO)
    No
  • Complex FHA Availability
    Unspecified
  • Potential Terms
    Cash
    Conventional
    FHA
    VA Loan
Utilities
  • Energy
    Electric
  • Sewer
    Septic Tank
  • Water Source
    Public
Additional Info
  • Waterfront
    No
  • Air Conditioning (A/C)
    No
  • Buyer Broker's Compensation
    2.5%
  • MLS Area #
    Area 84
  • Number of Photos
    40
  • Last Modification Time
    Saturday, February 14, 2026 3:54 PM
  • System Listing ID
    5518349
Update Info
  • Pending Or Ctg
    2026-02-14 16:08:48
  • First For Sale
    2026-02-12 08:36:20
Listing details based on information submitted to the MLS GRID as of Saturday, February 14, 2026 3:54 PM. All data is obtained from various sources and may not have been verified by broker or MLS GRID. Supplied Open House Information is subject to change without notice. All information should be independently reviewed and verified for accuracy. Properties may or may not be listed by the office/agent presenting the information.
View
Sort

Sharing

 
Pending Inspection February 14, 2026
$515,000  
3 BR    1 BA    912 SQFT  
NWMLS #2478052. Rebecca Bomann, SASH Realty
Map
 
Listing information is provided by the listing agent except as follows: BuilderB indicates that our system has grouped this listing under a home builder name that doesn't match the name provided by the listing broker. DevelopmentD indicates that our system has grouped this listing under a development name that doesn't match the name provided by the listing broker.