to
Reset
Houses
Townhouses
Condos
Land
Price
to
SQFT
to
Bdrms
to
Baths
to
Lot
to
Yr Built
to
Sold
Listed within...
Listed at least...
Offer Review
New Construction
Waterfront
Short-Sales
REO
Parking
to
Unit Flr
to
Unit Nbr
Listings
Neighborhoods
Complexes
Developments
Cities
Counties
Zip Codes
Neighborhood · Condo · Development
School District
Zip Code
City
County
Builder
Listing Numbers
Broker LAG
Boundary Lines
Labels
View
Sort
Pending Went pending in 2 days
$2,195,000
4 Bedrooms
2.75 Bathrooms
3,280 Sqft House
Built 1973
1.1 Acres Lot
3-Car Garage
PENDING SALE. This listing went Pending on February 14, 2026

Some pending sales don't become final. Contact Us if this property is really important to you so we can check on it right now. The seller has reached an agreement with a buyer to sell this property. If things go as planned, the sale will become final in the near future. The buyer and seller have agreed on a price but it's not public until the sale closes. The last published list price was $2,195,000.
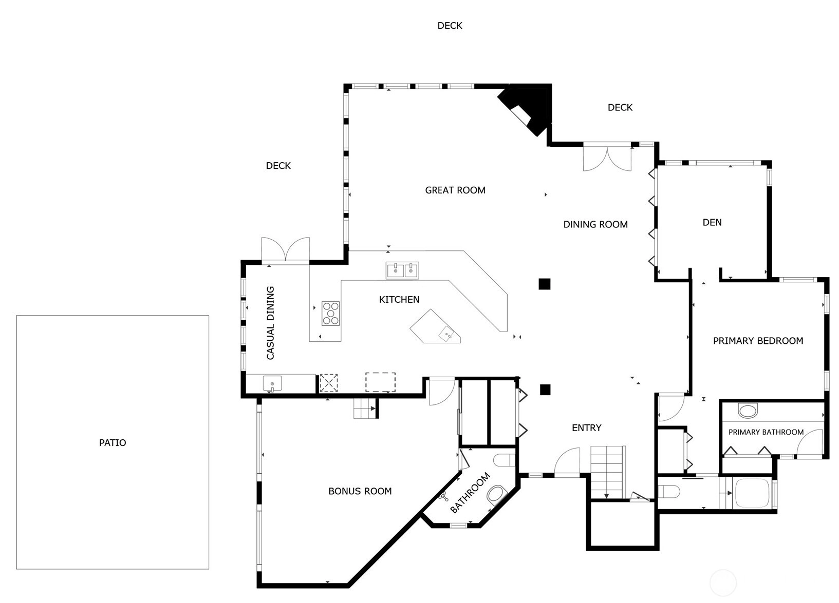
Tucked away on a serene 1.1-acre, park-like setting, this custom Northwest contemporary blends striking architectural design with exceptional livability. The open-concept main floor features soaring wood ceilings & expansive windows that frame the surrounding natural beauty. A slate tile entry leads into the dramatic great room, anchored by a floor-to-ceiling stone fireplace & complemented by built-in display cabinets & a formal dining area with French doors to an expansive deck—ideal for indoor/outdoor entertaining. The remodeled chef’s kitchen opens to the great room & showcases slab granite counters, bamboo floors, island with prep sink, cherry cabinetry with pull-out shelving, stylish pendant lighting, stainless appliances & a casual dining area with skylight, planning desk & French doors to the deck. The main level offers flexibility with a den, spacious primary suite featuring a full bath & dual closets, & a bonus room with bamboo & tile floors, loft & ¾ bath. Upstairs are 3 additional bedrooms including a 2nd primary suite with updated spa-inspired bath featuring heated floors, a tile & stone shower, soaking tub, dual-sink vanity & walk-in closet. Prime location on a non-through street just steps to Bridle Trails Park with over 480 acres & 28 miles of recreational trails. A 3-car carport with storage & EV charger, ample off-street parking, and new gas generator & mini-splits in 2025 add comfort & convenience to this peaceful retreat. New roof, interior paint & carpet.
Offer Review
No offer review date was specified
Listing source NWMLS MLS #
2468463
Listed by
Beth Billington, Coldwell Banker Bain
Contact our
Bellevue
Real Estate Lead
John L. Scott
Phone...
Bedroom & Bathroom Layout
SECOND
BDRM
BDRM
BDRM
FULL
BATH
MAIN
BDRM
FULL
BATH
¾
BATH
Property History
Feb 14, 2026
Went Pending
$2,195,000
NWMLS #2468463
Feb 12, 2026
Listed
$2,195,000
NWMLS #2468463
More
Listing Details
  • Status
    Pending
  • Last Listed Price
    $2,195,000
  • Original Price
    Same as current
  • List Date
    February 12, 2026
  • Last Status Change
    February 15, 2026
  • Last Update
    February 15, 2026
  • Days on Market
    14 Days
  • Cumulative DOM
    2 Days
  • Pending Date
    February 14, 2026
  • Days to go Pending
    2
  • $/sqft (Total)
    $669/sqft
  • $/sqft (Finished)
    $669/sqft
  • Listing Source
  • MLS Number
    2468463
  • Listing Broker
    Beth Billington
  • Listing Office
    Coldwell Banker Bain
Monthly Payment Estimate
  • Principal and Interest
    $11,506 / month
  • Property Taxes
    $1,668 / month
  • Homeowners Insurance
    $415 / month
  • TOTAL
    $13,589 / month

  • based on 20% down
    ($439,000)
  • and a
    6.85% Interest Rate
  • About:
    All calculations are estimates only and provided by Mainview LLC. Actual amounts will vary.
House Details
  • Sqft (Total)
    3,280 sqft
  • Sqft (Finished)
    3,280 sqft
  • Sqft (Unfinished)
    None
  • Property Type
    House
  • Sub Type
    2 Story
  • Bedrooms
    4 Bedrooms
  • Bathrooms
    2.75 Bathrooms
  • Lot
    1.1 Acres Lot
  • Lot Size Source
    County
  • Lot #
    Unspecified
  • Project
    Bridle Trails
  • Total Stories
    2 stories
  • Basement
    None
  • Sqft Source
    County
Property Tax Info
  • 2026 Property Taxes
    $20,022 / year
  • No Senior Exemption
Public Parcel Data & Maps
Schools
  • School District
    Bellevue
  • Elementary
    Cherry Crest Elem
  • Middle
    Odle Mid
  • High School
    Sammamish Snr High
HOA
  • HOA Dues
    Unspecified
  • Fees Assessed
    Unspecified
  • HOA Dues Include
    Unspecified
  • HOA Contact
    Unspecified
  • Management Contact
Parking
  • Covered
    3-Car
  • Types
    Detached Carport
    RV Parking
  • Has Garage
    Yes
  • Nbr of Assigned Spaces
    3
  • Carport Stalls
    3
Views
  • Territorial
Construction
  • Year Built
    1973
  • Home Builder
    Unspecified
Cooling
  • Includes
    Ductless
Heating
  • Includes
    Ductless
    Radiant
Interior
  • Flooring
    Bamboo/Cork
    Ceramic Tile
    Slate
    Carpet
  • Features
    Second Primary Bedroom
    Bath Off Primary
    Dining Room
    Fireplace
    French Doors
    Loft
    Skylight(s)
    Vaulted Ceilings
    Walk-In Closet(s)
    Water Heater
    Wine/Beverage Refrigerator
    Wired for Generator
Property
  • Lot Features
    Dead End Street
    Paved
  • Site Features
    Cable TV
    Deck
    Electric Car Charging
    High Speed Internet
    Outbuildings
    Patio
    RV Parking
    Sprinkler System
Appliances
  • Included
    Dishwasher(s)
    Disposal
    Dryer(s)
    Microwave(s)
    Refrigerator(s)
    Stove(s)/Range(s)
    Washer(s)
Terms
  • 3rd Party Approval Required)
    No
  • Bank Owned (REO)
    No
  • Complex FHA Availability
    Unspecified
  • Potential Terms
    Cash
    Conventional
Utilities
  • Energy
    Electric
    Natural Gas
  • Sewer
    Septic Tank
  • Water Source
    Public
Additional Info
  • Waterfront
    No
  • Air Conditioning (A/C)
    Yes
  • Buyer Broker's Compensation
    2.5%
  • MLS Area #
    Area 560
  • Number of Photos
    39
  • Last Modification Time
    Saturday, February 14, 2026 9:27 PM
  • System Listing ID
    5518485
Update Info
  • Pending Or Ctg
    2026-02-14 20:08:57
  • First For Sale
    2026-02-12 10:36:47
Listing details based on information submitted to the MLS GRID as of Saturday, February 14, 2026 9:27 PM. All data is obtained from various sources and may not have been verified by broker or MLS GRID. Supplied Open House Information is subject to change without notice. All information should be independently reviewed and verified for accuracy. Properties may or may not be listed by the office/agent presenting the information.
View
Sort

Sharing

 
Pending February 14, 2026
$2,195,000  
4 BR    2.75 BA    3,280 SQFT  
NWMLS #2468463. Beth Billington, Coldwell Banker Bain
Map
 
Listing information is provided by the listing agent except as follows: BuilderB indicates that our system has grouped this listing under a home builder name that doesn't match the name provided by the listing broker. DevelopmentD indicates that our system has grouped this listing under a development name that doesn't match the name provided by the listing broker.