to
Reset
Houses
Townhouses
Condos
Land
Price
to
SQFT
to
Bdrms
to
Baths
to
Lot
to
Yr Built
to
Sold
Listed within...
Listed at least...
Offer Review
New Construction
Waterfront
Short-Sales
REO
Parking
to
Unit Flr
to
Unit Nbr
Listings
Neighborhoods
Complexes
Developments
Cities
Counties
Zip Codes
Neighborhood · Condo · Development
School District
Zip Code
City
County
Builder
Listing Numbers
Broker LAG
Boundary Lines
Labels
View
Sort
For Sale Listed Yesterday
$1,000,000
4 Bedrooms
1.75 Bathrooms
1,770 Sqft House
Built 1915
10,500 Sqft Lot
1-Car Garage
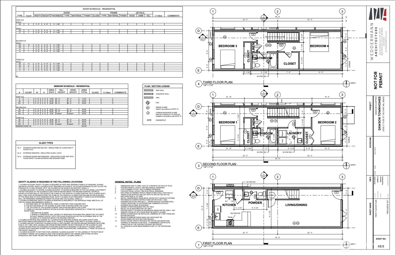
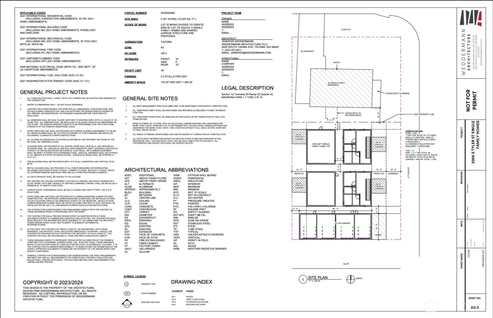
Short plat approval for Proposed 4-Unit Townhome Development plus an updated 1770 sqft home. Listing contains architectural and site plan documents related to the proposed development of four townhomes. The home is centrally located and has been updated with quartz counter tops, hardwood floors and tile bathrooms with room to put an additional bedroom. This updated home offers immediate rental income and compelling development upside. The property is currently rented at approximately $1,000 per room and features recent upgrades including quartz countertops, updated cabinetry, stainless steel appliances, tile shower/tub surround, LVP flooring, fresh interior paint, and updated trim, making it turnkey for continued rental use or resale. Reach out for more information site plan and development information. great opportunity to condo-minimize all 5 units. Builder resources available price range from $250-$300 a square ft.
Offer Review
Will review offers when submitted
Listing source NWMLS MLS #
2482990
Listed by
Haruichi Bearden, Keller Williams Eastside
Thuy A. Nguyen, Keller Williams Eastside
Contact our
Tacoma
Real Estate Lead
RE/MAX Northwest Realtors
Phone...
Bedroom & Bathroom Layout
SECOND
MAIN
BDRM
BDRM
FULL
BATH
LOWER
BDRM
BDRM
¾
BATH
Property History
Feb 25, 2026
Listed
$1,000,000
NWMLS #2482990
Oct 03, 2025
Price Reduction arrow_downward
$649,900
NWMLS #2422146
Aug 22, 2025
Price Reduction arrow_downward
$650,000
NWMLS #2422146
Aug 16, 2025
Listed
$675,000
NWMLS #2422146
Nov 15, 2024
Listed
$800,000
NWMLS #2311006
More
Listing Details
  • Status
    For Sale
  • Price
    $1,000,000
  • Original Price
    Same as current
  • List Date
    February 25, 2026
  • Last Status Change
    February 25, 2026
  • Last Update
    February 25, 2026
  • Days on Market
    Listed Yesterday
  • Cumulative DOM
    2 Days
  • $/sqft (Total)
    $565/sqft
  • $/sqft (Finished)
    $565/sqft
  • Listing Source
  • MLS Number
    2482990
  • Listing Broker
    Haruichi Bearden
  • Listing Office
    Keller Williams Eastside
Monthly Payment Estimate
  • Principal and Interest
    $5,242 / month
  • Property Taxes
    $363 / month
  • Homeowners Insurance
    $196 / month
  • TOTAL
    $5,801 / month

  • based on 20% down
    ($200,000)
  • and a
    6.85% Interest Rate
  • About:
    All calculations are estimates only and provided by Mainview LLC. Actual amounts will vary.
House Details
  • Sqft (Total)
    1,770 sqft
  • Sqft (Finished)
    1,770 sqft
  • Sqft (Unfinished)
    None
  • Property Type
    House
  • Sub Type
    2 Story
  • Bedrooms
    4 Bedrooms
  • Bathrooms
    1.75 Bathrooms
  • Lot
    10,500 sqft Lot
  • Lot Size Source
    Relist
  • Lot #
    1,2
  • Project
    Madrona Park
  • Total Stories
    2 stories
  • Basement
    Finished
  • Sqft Source
    MLS
Property Tax Info
  • 2025 Property Taxes
    $4,353 / year
  • No Senior Exemption
Public Parcel Data & Maps
Schools
  • School District
    Tacoma
  • Elementary
    Buyer To Verify
  • Middle
    Buyer To Verify
  • High School
    Buyer To Verify
HOA
  • HOA Dues
    Unspecified
  • Fees Assessed
    Unspecified
  • HOA Dues Include
    Unspecified
  • HOA Contact
    Unspecified
  • Management Contact
Parking
  • Covered
    1-Car
  • Types
    Attached Carport
  • Has Garage
    Yes
  • Nbr of Assigned Spaces
    1
  • Carport Stalls
    1
Construction
  • Year Built
    1915
  • Home Builder
    Unspecified
Cooling
  • Includes
    None
Heating
  • Includes
    Baseboard
Interior
  • Flooring
    Ceramic Tile
    Vinyl Plank
  • Features
    Ceiling Fan(s)
    Dbl Pane/Storm Window
    French Doors
    Water Heater
Property
  • Site Features
    Fenced-Partially
Appliances
  • Included
    Dishwasher(s)
    Disposal
    Microwave(s)
    Refrigerator(s)
    Stove(s)/Range(s)
    Washer(s)
Terms
  • 3rd Party Approval Required)
    No
  • Bank Owned (REO)
    No
  • Complex FHA Availability
    Unspecified
  • Potential Terms
    Cash
    Conventional
    See Remarks
    VA Loan
Utilities
  • Energy
    Electric
  • Sewer
    Sewer Connected
  • Water Source
    Public
Additional Info
  • Waterfront
    No
  • Air Conditioning (A/C)
    No
  • Buyer Broker's Compensation
    2%
  • MLS Area #
    Area 45
  • Number of Photos
    19
  • Last Modification Time
    Wednesday, February 25, 2026 2:57 PM
  • System Listing ID
    5522546
Update Info
  • First For Sale
    2026-02-25 15:28:37
Listing details based on information submitted to the MLS GRID as of Wednesday, February 25, 2026 2:57 PM. All data is obtained from various sources and may not have been verified by broker or MLS GRID. Supplied Open House Information is subject to change without notice. All information should be independently reviewed and verified for accuracy. Properties may or may not be listed by the office/agent presenting the information.
View
Sort

Sharing

 
For Sale Listed Yesterday
$1,000,000  
4 BR    1.75 BA    1,770 SQFT  
Offer Review: Anytime
NWMLS #2482990. Haruichi Bearden, Keller Williams Eastside
Map
 
Listing information is provided by the listing agent except as follows: BuilderB indicates that our system has grouped this listing under a home builder name that doesn't match the name provided by the listing broker. DevelopmentD indicates that our system has grouped this listing under a development name that doesn't match the name provided by the listing broker.