to
Reset
Houses
Townhouses
Condos
Land
Price
to
SQFT
to
Bdrms
to
Baths
to
Lot
to
Yr Built
to
Sold
Listed within...
Listed at least...
Offer Review
New Construction
Waterfront
Short-Sales
REO
Parking
to
Unit Flr
to
Unit Nbr
Listings
Neighborhoods
Complexes
Developments
Cities
Counties
Zip Codes
Neighborhood · Condo · Development
School District
Zip Code
City
County
Builder
Listing Numbers
Broker LAG
Boundary Lines
Labels
View
Sort
For Sale 25 Days Online
$455,000
Originally $465,000
4 Bedrooms
1.5 Bathrooms
2,629 Sqft House (2,095 Finished)
Built 1955
1.32 Acres Lot
3-Car Garage
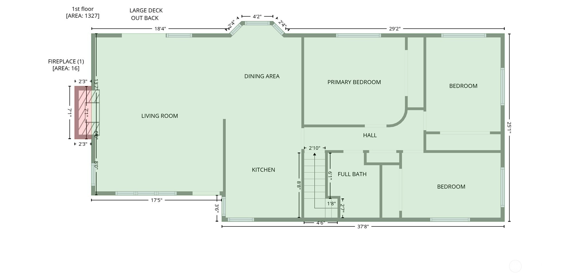
Looking for a mid-century built-to-last kind of home? This one fits that bill - located in the Central Park community, between the cities of Aberdeen and Montesano, WA. This home was built to last with a CONCRETE TILED ROOF! It offers plenty of space indoors as the main floor consists of traditional spaces and includes 3 bedrooms & a full bathroom. Brand NEW extreme scratch resistant vinyl-plank FLOORING installed throughout! FRESHLY PAINTED inside and out. NEW HEAT PUMP unit w/ 5-yr manufacturer warranty! You can step out onto the large wood deck with built-in bench seating to enjoy your private backyard and once adored little pond. On the lower floor is a partially converted daylight basement that offers a 4th LARGE bedroom, and large rec room space, along with additional unfinished space offering storage and more! Laundry room is also located on the lower floor. Detached is an ample sized 3-BAY GARAGE to store all the fun stuff! Located just off the highway, and offers easy travel east or west. The Ocean Beach communities are about 45-min away, or head up to the bigger city of Olympia for about the same timing. Central Park also includes the Grays Harbor Country Club for a round of 18-hole golf, a swim pool, or parties in the banquet hall as a member. Homes have their own septic systems, so you can save money on public utilities. Grab this oldie, but goodie up - offered for the first time in over 40 years!
Offer Review
Will review offers when submitted
Listing source NWMLS MLS #
2483016
Listed by
Jessica Burgess, Realty ONE Group All Stars
We don't currently have a buyer representative in this area. To be sure that you're getting objective advice, we always suggest buyers work with their own agent, someone who is not affiliated with the seller.
Bedroom & Bathroom Layout
MAIN
BDRM
BDRM
BDRM
FULL
BATH
LOWER
BDRM
½
BATH
Property History
Mar 12, 2026
Price Reduction arrow_downward
$455,000
NWMLS #2483016
Feb 25, 2026
Listed
$465,000
NWMLS #2483016
More
Listing Details
  • Status
    For Sale
  • Price
    $455,000
  • Original Price
    $465,000
  • List Date
    February 25, 2026
  • Last Status Change
    February 26, 2026
  • Last Update
    March 13, 2026
  • Days on Market
    25 Days
  • Cumulative DOM
    25 Days
  • $/sqft (Total)
    $173/sqft
  • $/sqft (Finished)
    $217/sqft
  • Listing Source
  • MLS Number
    2483016
  • Listing Broker
    Jessica Burgess
  • Listing Office
    Realty ONE Group All Stars
Monthly Payment Estimate
  • Principal and Interest
    $2,385 / month
  • Property Taxes
    $279 / month
  • Homeowners Insurance
    $99 / month
  • TOTAL
    $2,763 / month

  • based on 20% down
    ($91,000)
  • and a
    6.85% Interest Rate
  • About:
    All calculations are estimates only and provided by Mainview LLC. Actual amounts will vary.
House Details
  • Sqft (Total)
    2,629 sqft
  • Sqft (Finished)
    2,095 sqft
  • Sqft (Unfinished)
    534 sqft
  • Property Type
    House
  • Sub Type
    1 Story + Basement
  • Bedrooms
    4 Bedrooms
  • Bathrooms
    1.5 Bathrooms
  • Lot
    1.32 Acres Lot
  • Lot Size Source
    County
  • Lot #
    Unspecified
  • Project
    Unspecified
  • Total Stories
    2 stories
  • Basement
    Daylight
    Partially Finished
  • Sqft Source
    Cubicasa GLA
Property Tax Info
  • 2026 Property Taxes
    $3,353 / year
  • No Senior Exemption
Public Parcel Data & Maps
  • County
    Grays Harbor County
  • Parcel #
    728000000100
  • County Website
    Unspecified
  • County Parcel Map
    Unspecified
  • County GIS Map
    Unspecified
  • About
    County links provided by Mainview LLC
Schools
  • School District
    Aberdeen
  • Elementary
    Central Park Elem
  • Middle
    Buyer To Verify
  • High School
    Buyer To Verify
HOA
  • HOA Dues
    Unspecified
  • Fees Assessed
    Unspecified
  • HOA Dues Include
    Unspecified
  • HOA Contact
    Unspecified
  • Management Contact
Community Features
  • Community Features
    Club House
    Golf
    Park
    Playground
Parking
  • Covered
    3-Car
  • Types
    Driveway
    Detached Garage
  • Has Garage
    Yes
  • Nbr of Assigned Spaces
    3
Views
  • Territorial
Construction
  • Year Built
    1955
  • Home Builder
    Unspecified
Cooling
  • Includes
    Central Air
    Forced Air
    Heat Pump
    High Efficiency (Unspecified)
Heating
  • Includes
    Fireplace Insert
    Forced Air
    Heat Pump
    High Efficiency (Unspecified)
Interior
  • Flooring
    Vinyl Plank
  • Features
    Ceiling Fan(s)
    Dining Room
    Fireplace
    Skylight(s)
    Vaulted Ceiling(s)
    Water Heater
Property
  • Lot Features
    Corner Lot
    Paved
  • Site Features
    Deck
    Fenced-Partially
    Green House
    High Speed Internet
    Outbuildings
    Propane
Appliances
  • Included
    Dishwasher
    Dryer
    Microwave
    Refrigerator
    Stove(s)/Range(s)
    Washer
Terms
  • 3rd Party Approval Required)
    No
  • Bank Owned (REO)
    No
  • Complex FHA Availability
    Unspecified
  • Potential Terms
    Cash
    Conventional
    FHA
    VA Loan
Utilities
  • Energy
    Electric
    Propane
  • Sewer
    Septic Tank
  • Water Source
    Public
Additional Info
  • Waterfront
    No
  • Air Conditioning (A/C)
    Yes
  • Buyer Broker's Compensation
    2.5%
  • MLS Area #
    Area 198
  • Number of Photos
    35
  • Last Modification Time
    Thursday, March 12, 2026 5:27 PM
  • System Listing ID
    5522590
Update Info
  • Price Reduction
    2026-03-12 17:45:46
  • First For Sale
    2026-02-25 16:54:29
Listing details based on information submitted to the MLS GRID as of Thursday, March 12, 2026 5:27 PM. All data is obtained from various sources and may not have been verified by broker or MLS GRID. Supplied Open House Information is subject to change without notice. All information should be independently reviewed and verified for accuracy. Properties may or may not be listed by the office/agent presenting the information.
View
Sort

Sharing

 
For Sale 25 Days Online
$455,000     ▼ Price Reduction $10K
4 BR    1.5 BA    2,629 SQFT  
Offer Review: Anytime
NWMLS #2483016. Jessica Burgess, Realty ONE Group All Stars
Map
 
Listing information is provided by the listing agent except as follows: BuilderB indicates that our system has grouped this listing under a home builder name that doesn't match the name provided by the listing broker. DevelopmentD indicates that our system has grouped this listing under a development name that doesn't match the name provided by the listing broker.