to
Reset
Houses
Townhouses
Condos
Land
Price
to
SQFT
to
Bdrms
to
Baths
to
Lot
to
Yr Built
to
Sold
Listed within...
Listed at least...
Offer Review
New Construction
Waterfront
Short-Sales
REO
Parking
to
Unit Flr
to
Unit Nbr
Listings
Neighborhoods
Complexes
Developments
Cities
Counties
Zip Codes
Neighborhood · Condo · Development
School District
Zip Code
City
County
Builder
Listing Numbers
Broker LAG
Boundary Lines
Labels
View
Sort
Sold Closed March 30, 2026
$965,000
3 Bedrooms
2.25 Bathrooms
2,016 Sqft House
Built 1995
4,356 Sqft Lot
2-Car Garage
HOA Dues $435 / month
SALE HISTORY
List price was $979,000
It took 4 days to go pending.
Then 28 days to close at $965,000
Closed at $479/SQFT.
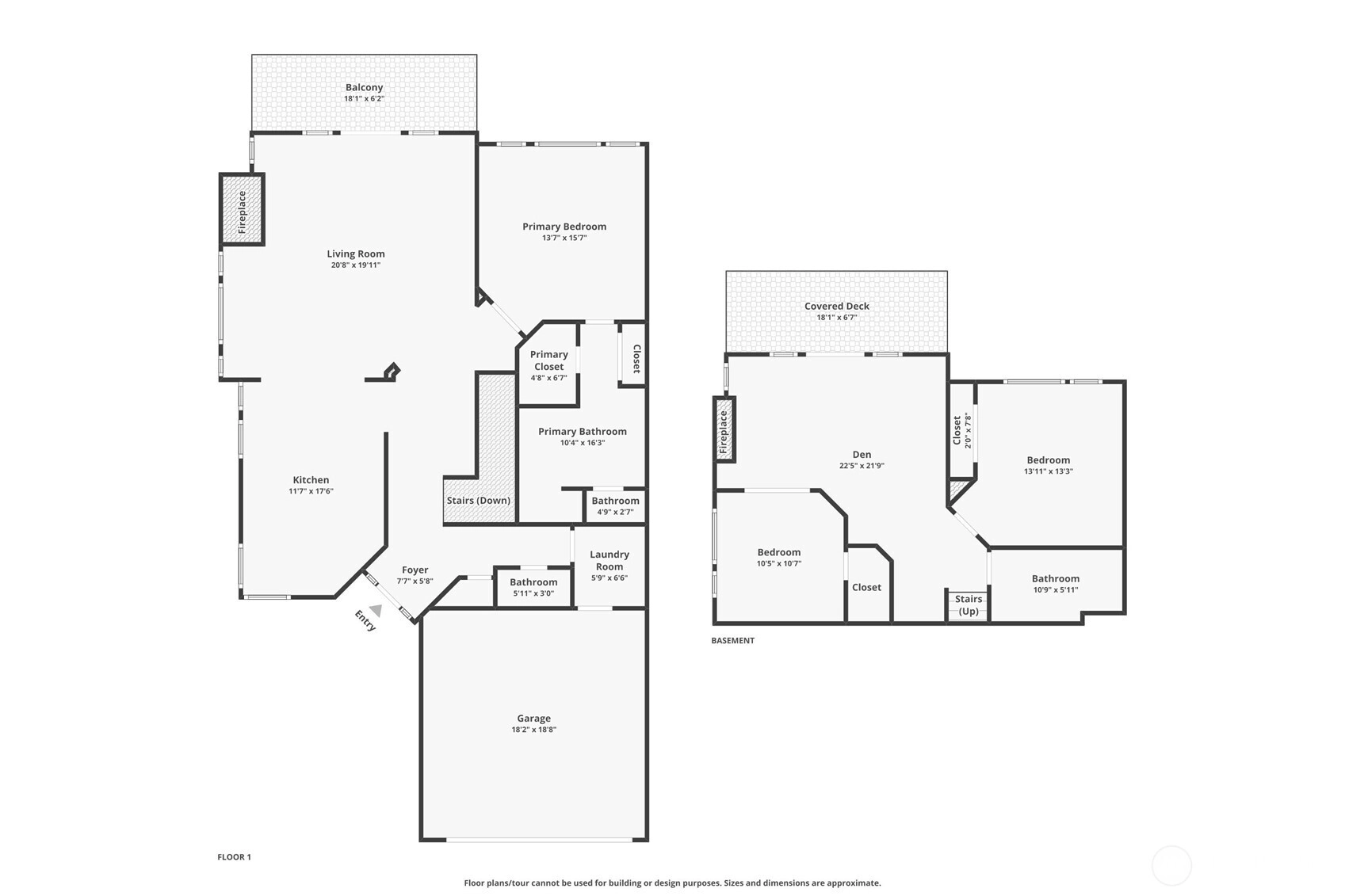
Rarely available Buchan built daylight rambler in the beautiful Windward Bluff community. This meticulously maintained home offers the convenience of effortless main floor living, featuring a completely remodeled chef’s kitchen and two stunningly updated main floor bathrooms. Step through the formal entry onto gleaming hardwood floors that lead to a light filled great room with soaring ceilings and expansive windows. The primary suite serves as a true retreat, boasting a custom renovated ensuite complete with heated floors for ultimate comfort. Enjoy seasonal sound and mountain views from your private upper deck, or retreat to the large lower level family room and covered patio. With professional exterior maintenance included, you can spend your time enjoying the nearby Harbour Pointe golf course and community trails. This is Northwest living at its finest.
Offer Review
No offer review date was specified
Listing source NWMLS MLS #
2484712
Listed by
Jordan Stupey, Every Door Real Estate
Lindsey Gudger, Every Door Real Estate
Buyer's broker
Michael M. Sorenson, Windermere Real Estate/M2, LLC
Contact our
Mukilteo
Real Estate Lead
Windermere Real Estate / North, Inc
Phone...
Bedroom & Bathroom Layout
MAIN
BDRM
¾
BATH
½
BATH
LOWER
BDRM
BDRM
FULL
BATH
Property History
Mar 30, 2026
Sold
$965,000
NWMLS #2484712 Annualized 9.1% / yr
Mar 02, 2026
Went Pending
$979,000
NWMLS #2484712
Feb 26, 2026
Listed
$979,000
NWMLS #2484712
Feb 13, 2020
Sold
$566,000
More
Listing Details
  • Sale Price
    $965,000
  • Closing Date
    March 30, 2026
  • Last List Price
    $979,000
  • Original Price
    Same
  • List Date
    February 26, 2026
  • Pending Date
    March 2, 2026
  • Days to go Pending
    4 days
  • $/sqft (Total)
    $479/sqft
  • $/sqft (Finished)
    $479/sqft
  • Listing Source
  • MLS Number
    2484712
  • Listing Broker
    Jordan Stupey
  • Listing Office
    Every Door Real Estate
  • Buyer's Broker
    Michael M. Sorenson
  • Buyer Broker's Firm
    Windermere Real Estate/M2, LLC
Monthly Payment Estimate
  • Principal and Interest
    $5,059 / month
  • HOA
    $435 / month
  • Property Taxes
    $450 / month
  • Homeowners Insurance
    $189 / month
  • TOTAL
    $6,133 / month

  • based on 20% down
    ($193,000)
  • and a
    6.85% Interest Rate
  • About:
    All calculations are estimates only and provided by Mainview LLC. Actual amounts will vary.
House Details
  • Sqft (Total)
    2,016 sqft
  • Sqft (Finished)
    2,016 sqft
  • Sqft (Unfinished)
    None
  • Property Type
    House
  • Sub Type
    1 Story + Basement
  • Bedrooms
    3 Bedrooms
  • Bathrooms
    2.25 Bathrooms
  • Lot
    4,356 sqft Lot
  • Lot Size Source
    Realist
  • Lot #
    Unspecified
  • Project
    Windward Bluff
  • Total Stories
    2 stories
  • Basement
    Daylight
    Finished
  • Sqft Source
    Realist
Property Tax Info
  • 2025 Property Taxes
    $5,404 / year
  • No Senior Exemption
Public Parcel Data & Maps
Schools
  • School District
    Mukilteo
  • Elementary
    Endeavour Elem
  • Middle
    Harbour Pointe Mid
  • High School
    Kamiak High
HOA
  • HOA Dues
    $435 / month
  • Fees Assessed
    Monthly
  • HOA Dues Include
    Common Area Maintenance
    Concierge
    Lawn Service
    Road Maintenance
    See Remarks
  • HOA Contact
    Unspecified
  • Management Contact
    Unspecified
Community Features
  • Community Features
    CCRs
Parking
  • Covered
    2-Car
  • Types
    Attached Garage
  • Has Garage
    Yes
  • Nbr of Assigned Spaces
    2
Views
  • Territorial
Construction
  • Year Built
    1995
  • Home Builder
    Unspecified
Cooling
  • Includes
    Forced Air
    Heat Pump
Heating
  • Includes
    Forced Air
    Heat Pump
    Radiant
Interior
  • Flooring
    Hardwood
    Travertine
    Carpet
  • Features
    Bath Off Primary
    Ceiling Fan(s)
    Dbl Pane/Storm Window
    Dining Room
    Fireplace
    French Doors
    High Tech Cabling
    Security System
    Skylight(s)
    Vaulted Ceiling(s)
    Walk-In Closet(s)
Property
  • Lot Features
    Curbs
    Paved
    Sidewalk
  • Site Features
    Cable TV
    Deck
    Gas Available
    High Speed Internet
    Sprinkler System
Appliances
  • Included
    Dishwasher
    Disposal
    Microwave
    Refrigerator
    Stove(s)/Range(s)
Terms
  • Bank Owned (REO)
    No
Utilities
  • Energy
    Electric
    Natural Gas
  • Sewer
    Sewer Connected
  • Water Source
    Public
Additional Info
  • Waterfront
    No
  • Air Conditioning (A/C)
    Yes
  • Buyer Broker's Compensation
    2.5%
  • MLS Area #
    Area 740
  • Number of Photos
    35
  • Last Modification Time
    Monday, March 30, 2026 3:23 PM
  • System Listing ID
    5522794
Update Info
  • Closed
    2026-03-30 15:27:22
  • Pending Or Ctg
    2026-03-02 10:46:58
  • First For Sale
    2026-02-26 09:30:52
Listing details based on information submitted to the MLS GRID as of Monday, March 30, 2026 3:23 PM. All data is obtained from various sources and may not have been verified by broker or MLS GRID. Supplied Open House Information is subject to change without notice. All information should be independently reviewed and verified for accuracy. Properties may or may not be listed by the office/agent presenting the information.
View
Sort

Sharing

 
Sold March 30, 2026
$965,000   $979,000
3 BR    2.25 BA    2,016 SQFT  
NWMLS #2484712. Jordan Stupey, Every Door Real Estate
Map
 
Listing information is provided by the listing agent except as follows: BuilderB indicates that our system has grouped this listing under a home builder name that doesn't match the name provided by the listing broker. DevelopmentD indicates that our system has grouped this listing under a development name that doesn't match the name provided by the listing broker.