to
Reset
Houses
Townhouses
Condos
Land
Price
to
SQFT
to
Bdrms
to
Baths
to
Lot
to
Yr Built
to
Sold
Listed within...
Listed at least...
Offer Review
New Construction
Waterfront
Short-Sales
REO
Parking
to
Unit Flr
to
Unit Nbr
Listings
Neighborhoods
Complexes
Developments
Cities
Counties
Zip Codes
Neighborhood · Condo · Development
School District
Zip Code
City
County
Builder
Listing Numbers
Broker LAG
Boundary Lines
Labels
View
Sort
For Sale 60 Days Online
$665,000
Originally $680,000
4 Bedrooms
2.75 Bathrooms
2,522 Sqft House
Built 2021
5,400 Sqft Lot
2-Car Garage
HOA Dues $117 / month
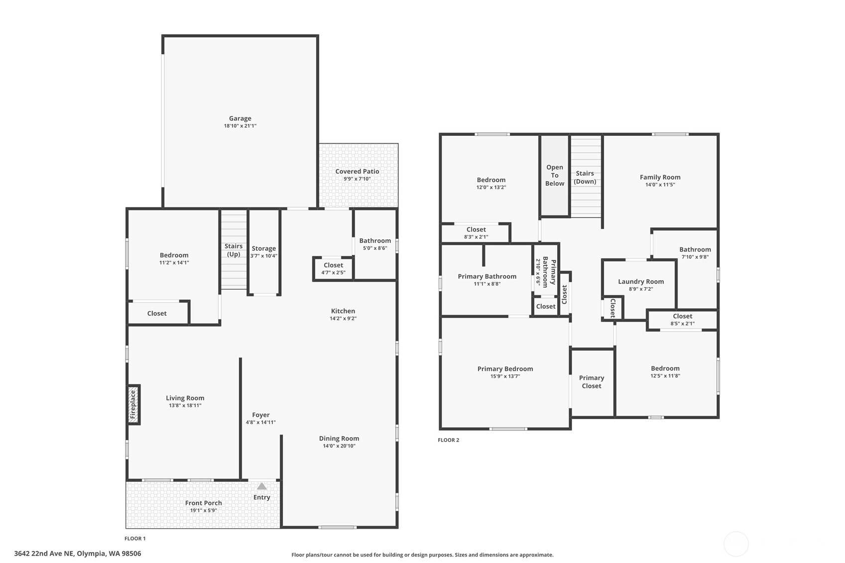
Welcome to 3642 22nd Ave NE in Olympia, WA — a perfectly located, like-new home in The master planned, Village at Mill Pond. This home offers modern design & flexible living space, with a main floor bedroom & bath, providing ideal separation for multi- generational living or guests. Built with comfort & functionality in mind, the “Laurel” model features 4 bedrooms total plus the spacious upstairs bonus/flex room is perfect for a home office, playroom, or media room. The semi-open-concept floor plan down creates easy flow between the entry, living room, dining area, & eat-in kitchen. The large chef’s kitchen is designed for both everyday living & entertaining, showcasing a generous prep island, quartz countertops, brushed nickel hardware, & abundant cabinetry. Upstairs, the primary suite offers a private retreat with a walk-in closet & a luxurious 5-piece bath. Two additional bedrooms, a full guest bath, & a conveniently located upstairs laundry room complete the second floor. Additional features include central A/C, two-car garage w/alley access, & a fully fenced backyard w/storage shed, on a corner lot. The Village at Mill Pond offers beautiful walkable sidewalks w/ access to community parks & green spaces & direct proximity to the Chehalis Western Trail for miles of walking & biking. Convenient access to I-5 & JBLM. If you’re searching for a move-in ready home in Olympia with a main-floor bedroom, bonus room, fenced yard, & modern upgrades — this one checks all the boxes.
Offer Review
Will review offers when submitted
Listing source NWMLS MLS #
2484803
Listed by
Jessica E. Volkman, Real Broker LLC
Aaron N. Thomas, Real Broker LLC
We don't currently have a buyer representative in this area. To be sure that you're getting objective advice, we always suggest buyers work with their own agent, someone who is not affiliated with the seller.
Bedroom & Bathroom Layout
SECOND
BDRM
BDRM
BDRM
FULL
BATH
FULL
BATH
MAIN
BDRM
¾
BATH
Property History
Apr 09, 2026
Price Reduction arrow_downward
$665,000
NWMLS #2484803
Feb 27, 2026
Listed
$680,000
NWMLS #2484803
Apr 13, 2022
Sold
$739,900
Mar 02, 2022
Listed
$739,900
More
Listing Details
  • Status
    For Sale
  • Price
    $665,000
  • Original Price
    $680,000
  • List Date
    February 27, 2026
  • Last Status Change
    February 27, 2026
  • Last Update
    April 24, 2026
  • Days on Market
    60 Days
  • Cumulative DOM
    60 Days
  • $/sqft (Total)
    $264/sqft
  • $/sqft (Finished)
    $264/sqft
  • Listing Source
  • MLS Number
    2484803
  • Listing Broker
    Jessica E. Volkman
  • Listing Office
    Real Broker LLC
Monthly Payment Estimate
  • Principal and Interest
    $3,486 / month
  • HOA
    $117 / month
  • Property Taxes
    $109 / month
  • Homeowners Insurance
    $134 / month
  • TOTAL
    $3,846 / month

  • based on 20% down
    ($133,000)
  • and a
    6.85% Interest Rate
  • About:
    All calculations are estimates only and provided by Mainview LLC. Actual amounts will vary.
House Details
  • Sqft (Total)
    2,522 sqft
  • Sqft (Finished)
    2,522 sqft
  • Sqft (Unfinished)
    None
  • Property Type
    House
  • Sub Type
    2 Story
  • Bedrooms
    4 Bedrooms
  • Bathrooms
    2.75 Bathrooms
  • Lot
    5,400 sqft Lot
  • Lot Size Source
    Tax Records
  • Lot #
    Unspecified
  • Project
    Unspecified
  • Total Stories
    2 stories
  • Basement
    None
  • Sqft Source
    Tax Records
Property Tax Info
  • 2026 Property Taxes
    $1,313 / year
  • Yes Senior Exemption
Public Parcel Data & Maps
Schools
  • School District
    North Thurston
  • Elementary
    Buyer To Verify
  • Middle
    Buyer To Verify
  • High School
    Buyer To Verify
HOA
  • HOA Dues
    $117 / month
  • Fees Assessed
    Monthly
  • HOA Dues Include
    Common Area Maintenance
    Lawn Service
  • HOA Contact
    Welcome Home Management 360-474-7517
  • Management Contact
Community Features
  • Community Features
    CCRs
    Park
    Playground
    Trail(s)
Parking
  • Covered
    2-Car
  • Types
    Driveway
    Attached Garage
  • Has Garage
    Yes
  • Nbr of Assigned Spaces
    2
Construction
  • Year Built
    2021
  • Home Builder
    Unspecified
Cooling
  • Includes
    Central Air
    Forced Air
Heating
  • Includes
    Forced Air
Interior
  • Flooring
    Ceramic Tile
    Vinyl
    Carpet
  • Features
    Bath Off Primary
    Ceiling Fan(s)
    Dbl Pane/Storm Window
    Dining Room
    Fireplace
    High Tech Cabling
    Pantry
    Sprinkler System
    Vaulted Ceiling(s)
    Walk-In Closet(s)
    Water Heater
Property
  • Lot Features
    Curbs
    Paved
    Sidewalk
  • Site Features
    Cable TV
    Fenced-Fully
    Gas Available
    High Speed Internet
    Outbuildings
    Sprinkler System
Appliances
  • Included
    Dishwasher
    Disposal
    Dryer
    Microwave
    Refrigerator
    Stove(s)/Range(s)
    Tankless Water Heater
    Washer
Terms
  • 3rd Party Approval Required)
    No
  • Bank Owned (REO)
    No
  • Complex FHA Availability
    Unspecified
  • Potential Terms
    Cash
    Conventional
    FHA
    VA Loan
Utilities
  • Energy
    Electric
    Natural Gas
  • Sewer
    Sewer Connected
  • Water Source
    Public
Additional Info
  • Waterfront
    No
  • Air Conditioning (A/C)
    Yes
  • Buyer Broker's Compensation
    3%
  • MLS Area #
    Area 447
  • Number of Photos
    23
  • Last Modification Time
    Friday, April 24, 2026 1:01 PM
  • System Listing ID
    5523548
Update Info
  • Price Reduction
    2026-04-09 11:07:22
  • First For Sale
    2026-02-27 11:45:34
Listing details based on information submitted to the MLS GRID as of Friday, April 24, 2026 1:01 PM. All data is obtained from various sources and may not have been verified by broker or MLS GRID. Supplied Open House Information is subject to change without notice. All information should be independently reviewed and verified for accuracy. Properties may or may not be listed by the office/agent presenting the information.
View
Sort

Sharing

 
For Sale 60 Days Online
$665,000     ▼ Price Reduction $15K
4 BR    2.75 BA    2,522 SQFT  
Offer Review: Anytime
NWMLS #2484803. Jessica E. Volkman, Real Broker LLC
Map
 
Listing information is provided by the listing agent except as follows: BuilderB indicates that our system has grouped this listing under a home builder name that doesn't match the name provided by the listing broker. DevelopmentD indicates that our system has grouped this listing under a development name that doesn't match the name provided by the listing broker.