to
Reset
Houses
Townhouses
Condos
Land
Price
to
SQFT
to
Bdrms
to
Baths
to
Lot
to
Yr Built
to
Sold
Listed within...
Listed at least...
Offer Review
New Construction
Waterfront
Short-Sales
REO
Parking
to
Unit Flr
to
Unit Nbr
Listings
Neighborhoods
Complexes
Developments
Cities
Counties
Zip Codes
Neighborhood · Condo · Development
School District
Zip Code
City
County
Builder
Listing Numbers
Broker LAG
Boundary Lines
Labels
View
Sort
Pending Went pending in 53 days
$2,070,000
Originally $2,150,000
6 Bedrooms
3.75 Bathrooms
4,210 Sqft House
Built 2015
16,490 Sqft Lot
2-Car Garage
HOA Dues $75 / month
PENDING SALE. This listing went Pending on April 21, 2026

Some pending sales don't become final. Contact Us if this property is really important to you so we can check on it right now. The seller has reached an agreement with a buyer to sell this property. If things go as planned, the sale will become final in the near future. The buyer and seller have agreed on a price but it's not public until the sale closes. The last published list price was $2,070,000.
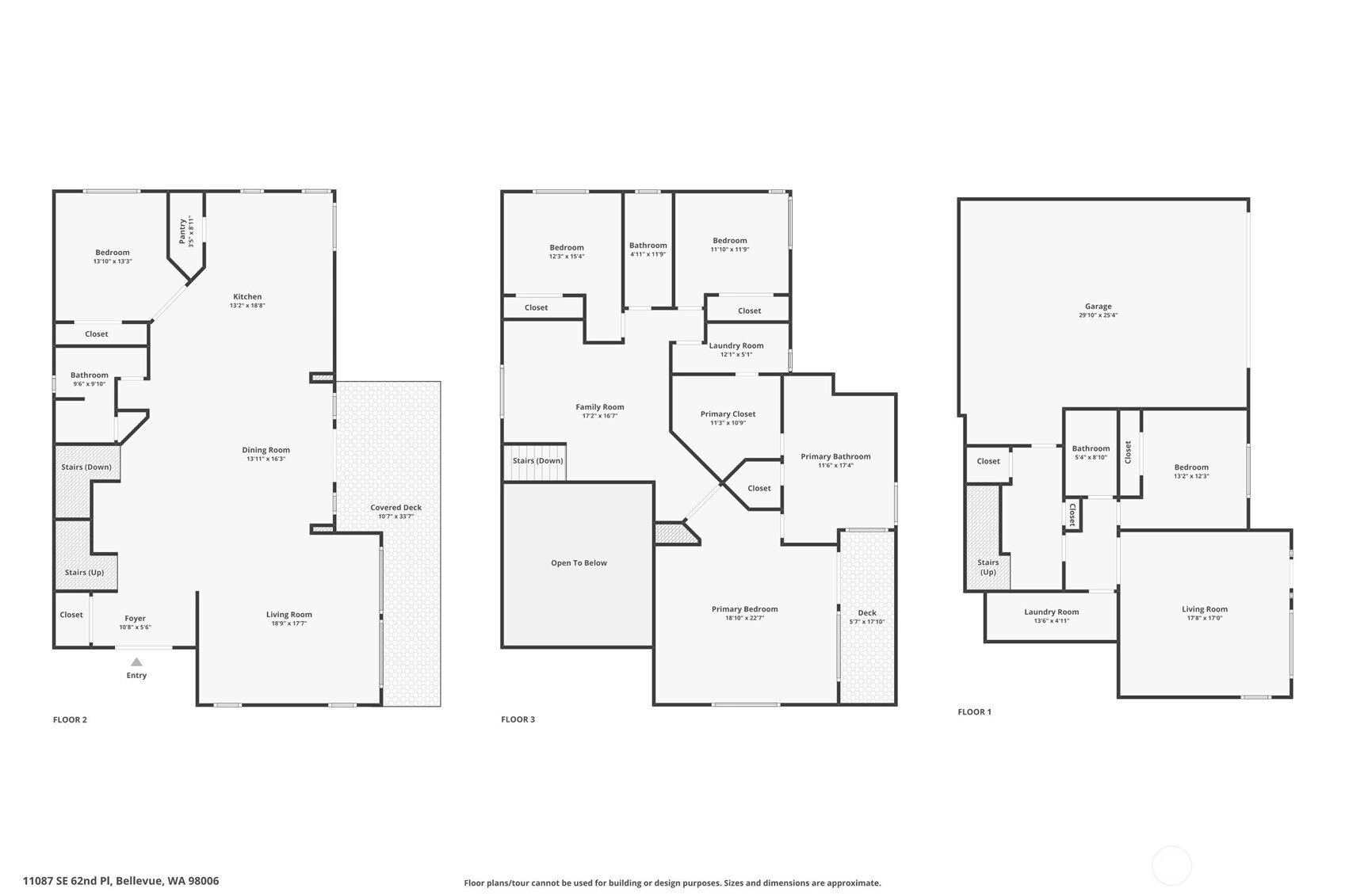
ABOUT THIS HOMEThe Home Features: Step into this newly updated Bellevue home that looks and feels like new. Nestled on a serene cul-de-sac, next to a lush open-space buffer with Lake Washington views; this gorgeous three-level residence combines comfort and elegance with generous space and flexibility for today's lifestyle.From the grand entrance to the bright, open-concept main level, you'll love the rejuvenated interior with a green belt and the lake as its backdrop. The spacious living room features a newly painted interior, engineered oak hardwood floors and all-new light fixtures. Fully reimagined kitchen with brand-new cabinetry, quartz countertops, and all-new high-end appliances. The dining room's sliding door leads to a spacious lake-view deck, ideal for outdoor gathering. A dedicated office provides a quiet, functional workspace.A bright and charming loft, suitable for a sitting area and additional living space, leads to the upper level. With lake views, the primary suite includes a walk-in closet and a fully remodeled 5-piece bathroom. Two additional bedrooms are well-sized, quiet, and comfortable, with new carpet throughout. Designed for multigenerational living or added flexibility, the lower level features a newly added 2nd kitchen and laundry, making it ideal for guests, or extra rental income. Oversized garage with epoxy-finished floors and ample storage. Conveniently located with easy access to major highways, DT Bellevue
Offer Review
No offer review date was specified
Listing source NWMLS MLS #
2485732
Listed by
Scott R. Hotes, Skyline Properties, Inc.
Contact our
Bellevue
Real Estate Lead
John L. Scott
Phone...
Bedroom & Bathroom Layout
SECOND
BDRM
BDRM
BDRM
BDRM
FULL
BATH
FULL
BATH
MAIN
BDRM
¾
BATH
LOWER
BDRM
FULL
BATH
Property History
Apr 23, 2026
Went Pending
$2,070,000
NWMLS #2485732
Mar 31, 2026
Price Reduction arrow_downward
$2,070,000
NWMLS #2485732
Feb 27, 2026
Listed
$2,150,000
NWMLS #2485732
Feb 11, 2026
Price Reduction arrow_downward
$2,270,000
NWMLS #2469762
Jan 19, 2026
Listed
$2,359,900
NWMLS #2469762
Sep 17, 2015
Sold
$945,000
More
Listing Details
  • Status
    Pending
  • Last Listed Price
    $2,070,000
  • Original Price
    $2,150,000
  • List Date
    February 27, 2026
  • Last Status Change
    April 23, 2026
  • Last Update
    April 23, 2026
  • Days on Market
    89 Days
  • Cumulative DOM
    53 Days
  • Pending Date
    April 21, 2026
  • Days to go Pending
    53
  • $/sqft (Total)
    $492/sqft
  • $/sqft (Finished)
    $492/sqft
  • Listing Source
  • MLS Number
    2485732
  • Listing Broker
    Scott R. Hotes
  • Listing Office
    Skyline Properties, Inc.
Monthly Payment Estimate
  • Principal and Interest
    $10,851 / month
  • HOA
    $75 / month
  • Property Taxes
    $1,393 / month
  • Homeowners Insurance
    $392 / month
  • TOTAL
    $12,711 / month

  • based on 20% down
    ($414,000)
  • and a
    6.85% Interest Rate
  • About:
    All calculations are estimates only and provided by Mainview LLC. Actual amounts will vary.
House Details
  • Sqft (Total)
    4,210 sqft
  • Sqft (Finished)
    4,210 sqft
  • Sqft (Unfinished)
    None
  • Property Type
    House
  • Sub Type
    2 Stories + Basement
  • Bedrooms
    6 Bedrooms
  • Bathrooms
    3.75 Bathrooms
  • Lot
    16,490 sqft Lot
  • Lot Size Source
    KCAR
  • Lot #
    Unspecified
  • Project
    Unspecified
  • Total Stories
    3 stories
  • Basement
    Finished
  • Sqft Source
    KCAR
Property Tax Info
  • 2025 Property Taxes
    $16,720 / year
  • No Senior Exemption
Public Parcel Data & Maps
Schools
  • School District
    Renton
  • Elementary
    Unspecified
  • Middle
    Unspecified
  • High School
    Unspecified
HOA
  • HOA Dues
    $75 / month
  • Fees Assessed
    Annually
  • HOA Dues Include
    Common Area Maintenance
    Road Maintenance
  • HOA Contact
    Dan Clark 206-550-1545
  • Management Contact
Community Features
  • Community Features
    CCRs
Parking
  • Covered
    2-Car
  • Types
    Attached Garage
  • Has Garage
    Yes
  • Nbr of Assigned Spaces
    5
Views
  • City
    Lake
    Mountains
    Partial
Construction
  • Year Built
    2015
  • Home Builder
    Unspecified
Cooling
  • Includes
    Central Air
Heating
  • Includes
    90%+ High Efficiency
Interior
  • Flooring
    Ceramic Tile
    Hardwood
    Carpet
  • Features
    Second Kitchen
    Bath Off Primary
    Dbl Pane/Storm Window
    Dining Room
    Fireplace
    High Tech Cabling
    Pantry
    Sprinkler System
    Vaulted Ceiling(s)
    Walk-In Closet(s)
    Water Heater
Property
  • Lot Features
    Cul-De-Sac
    Curbs
    Dead End Street
    Paved
    Sidewalk
  • Site Features
    Cable TV
    Deck
    Fenced-Partially
    High Speed Internet
Appliances
  • Included
    Dishwasher
    Disposal
    Dryer
    Microwave
    Refrigerator
    Stove(s)/Range(s)
    Washer
Terms
  • 3rd Party Approval Required)
    No
  • Bank Owned (REO)
    No
  • Complex FHA Availability
    Unspecified
  • Potential Terms
    Cash
    Conventional
Utilities
  • Energy
    Natural Gas
  • Sewer
    Sewer Connected
  • Water Source
    Public
Additional Info
  • Waterfront
    No
  • Air Conditioning (A/C)
    Yes
  • Buyer Broker's Compensation
    2.5%
  • MLS Area #
    Area 500
  • Number of Photos
    37
  • Last Modification Time
    Thursday, April 23, 2026 2:46 PM
  • System Listing ID
    5523628
Update Info
  • Pending Or Ctg
    2026-04-28 06:42:00
  • Price Reduction
    2026-03-31 08:20:08
  • First For Sale
    2026-02-27 13:17:50
Listing details based on information submitted to the MLS GRID as of Thursday, April 23, 2026 2:46 PM. All data is obtained from various sources and may not have been verified by broker or MLS GRID. Supplied Open House Information is subject to change without notice. All information should be independently reviewed and verified for accuracy. Properties may or may not be listed by the office/agent presenting the information.
View
Sort

Sharing

 
Pending April 21, 2026
$2,070,000  
6 BR    3.75 BA    4,210 SQFT  
NWMLS #2485732. Scott R. Hotes, Skyline Properties, Inc.
Map
 
Listing information is provided by the listing agent except as follows: BuilderB indicates that our system has grouped this listing under a home builder name that doesn't match the name provided by the listing broker. DevelopmentD indicates that our system has grouped this listing under a development name that doesn't match the name provided by the listing broker.