to
Reset
Houses
Townhouses
Condos
Land
Price
to
SQFT
to
Bdrms
to
Baths
to
Lot
to
Yr Built
to
Sold
Listed within...
Listed at least...
Offer Review
New Construction
Waterfront
Short-Sales
REO
Parking
to
Unit Flr
to
Unit Nbr
Listings
Neighborhoods
Complexes
Developments
Cities
Counties
Zip Codes
Neighborhood · Condo · Development
School District
Zip Code
City
County
Builder
Listing Numbers
Broker LAG
Boundary Lines
Labels
View
Sort
Pending Went pending in 5 days
$672,300
3 Bedrooms
2 Bathrooms
1,301 Sqft House
Built 1995
6,098 Sqft Lot
2-Car Garage
The seller has reached an agreement with a buyer to sell this property. If things go as planned, the sale will become final in the near future. The buyer and seller have agreed on a price but it's not public until the sale closes. The last published list price was $672,300.
Experience effortless single-level living in this well-taken-care-of 3-bedroom, 2-bath home on a desirable corner lot. This 1,301 sq ft residence features elegant arched entries, an airy, light-filled interior, and a thoughtful layout that maximizes space and flow. Modern electrical systems, a 2-car garage with a smart opener, and additional off-street parking offer convenience and peace of mind. The spacious kitchen provides ample counter space and cabinetry, perfect for everyday living or entertaining. The primary suite offers a relaxing retreat with a large walk-in closet, while two additional bedrooms provide flexibility for guests, a home office, or hobbies. Outside, established trees and an in-ground sprinkler system create a serene, picturesque setting where wildlife often visits. Enjoy stunning mountain views from your windows and outdoor spaces, all within walking distance of Leavenworth’s shops, cafes, and trails. A beautifully maintained home that seamlessly blends comfort, style, and small-town charm—ready for you to move in and enjoy!
Offer Review Date
This listing's offer review date was Sunday, March 8, 2026.
Listing source NWMLS MLS #
2484492
Listed by
Christy Davies, Alpine Group
We don't currently have a buyer representative in this area. To be sure that you're getting objective advice, we always suggest buyers work with their own agent, someone who is not affiliated with the seller.
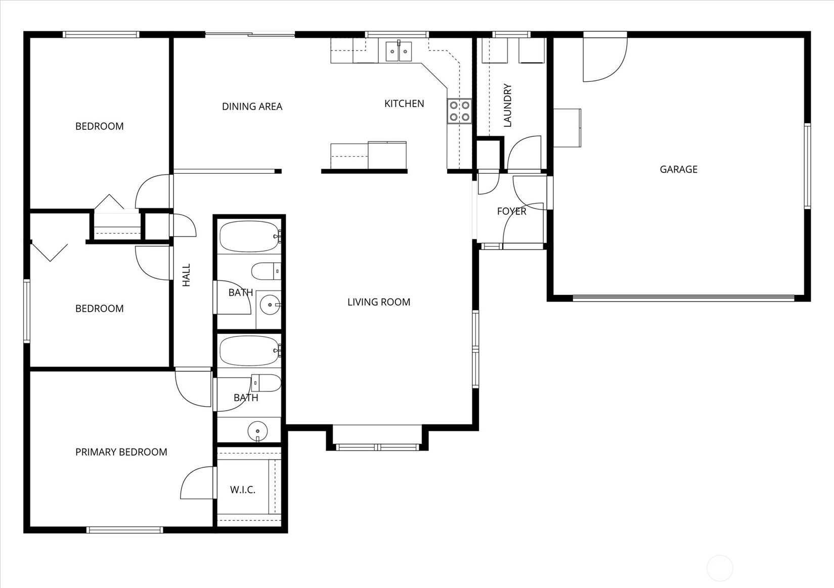
Bedroom & Bathroom Layout
MAIN
BDRM
BDRM
BDRM
FULL
BATH
FULL
BATH
Property History
Mar 19, 2026
Went Pending
$672,300
NWMLS #2484492
Mar 09, 2026
Went Pending Inspection
$672,300
NWMLS #2484492
Mar 03, 2026
Listed
$672,300
NWMLS #2484492
More
Listing Details
  • Status
    Pending
  • Last Listed Price
    $672,300
  • Original Price
    Same as current
  • List Date
    March 3, 2026
  • Last Status Change
    March 19, 2026
  • Last Update
    April 3, 2026
  • Days on Market
    43 Days
  • Cumulative DOM
    5 Days
  • Pending Date
    March 8, 2026
  • Days to go Pending
    5
  • $/sqft (Total)
    $517/sqft
  • $/sqft (Finished)
    $517/sqft
  • Listing Source
  • MLS Number
    2484492
  • Listing Broker
    Christy Davies
  • Listing Office
    Alpine Group
Monthly Payment Estimate
  • Principal and Interest
    $3,524 / month
  • Property Taxes
    $325 / month
  • Homeowners Insurance
    $136 / month
  • TOTAL
    $3,985 / month

  • based on 20% down
    ($134,460)
  • and a
    6.85% Interest Rate
  • About:
    All calculations are estimates only and provided by Mainview LLC. Actual amounts will vary.
House Details
  • Sqft (Total)
    1,301 sqft
  • Sqft (Finished)
    1,301 sqft
  • Sqft (Unfinished)
    Unspecified
  • Property Type
    House
  • Sub Type
    1 Story
  • Bedrooms
    3 Bedrooms
  • Bathrooms
    2 Bathrooms
  • Lot
    6,098 sqft Lot
  • Lot Size Source
    Assessor
  • Lot #
    Unspecified
  • Project
    Unspecified
  • Total Stories
    1 story
  • Basement
    None
  • Sqft Source
    Assessor
Property Tax Info
  • 2025 Property Taxes
    $3,897 / year
  • No Senior Exemption
Public Parcel Data & Maps
  • County
    Chelan County
  • Parcel #
    241711910010
  • County Website
    Unspecified
  • County Parcel Map
    Unspecified
  • County GIS Map
    Unspecified
  • About
    County links provided by Mainview LLC
Schools
  • School District
    Cascade
  • Elementary
    Unspecified
  • Middle
    Unspecified
  • High School
    Unspecified
HOA
  • HOA Dues
    Unspecified
  • Fees Assessed
    Unspecified
  • HOA Dues Include
    Unspecified
  • HOA Contact
    Unspecified
  • Management Contact
Parking
  • Covered
    2-Car
  • Types
    Attached Garage
  • Has Garage
    Yes
  • Nbr of Assigned Spaces
    4
Views
  • Mountains
Construction
  • Year Built
    1995
  • Home Builder
    Unspecified
Cooling
  • Includes
    Central Air
Heating
  • Includes
    Heat Pump
Interior
  • Flooring
    Carpet
  • Features
    Bath Off Primary
    Ceiling Fan(s)
    Dbl Pane/Storm Window
    Dining Room
    Vaulted Ceiling(s)
    Walk-In Closet(s)
    Water Heater
Property
  • Lot Features
    Corner Lot
    Paved
    Sidewalk
  • Site Features
    High Speed Internet
    Patio
    Sprinkler System
Appliances
  • Included
    Dishwasher
    Disposal
    Dryer
    Microwave
    Refrigerator
    Stove(s)/Range(s)
    Washer
Terms
  • 3rd Party Approval Required)
    No
  • Bank Owned (REO)
    No
  • Complex FHA Availability
    Unspecified
  • Potential Terms
    Cash
    Conventional
    FHA
    VA Loan
Utilities
  • Energy
    Electric
  • Sewer
    Sewer Connected
  • Water Source
    Public
Additional Info
  • Waterfront
    No
  • Air Conditioning (A/C)
    Yes
  • Buyer Broker's Compensation
    2%
  • MLS Area #
    Area 972
  • Number of Photos
    40
  • Last Modification Time
    Thursday, April 2, 2026 11:06 PM
  • System Listing ID
    5524406
Update Info
  • Pending Or Ctg
    2026-03-19 13:48:11
  • First For Sale
    2026-03-03 10:19:21
Listing details based on information submitted to the MLS GRID as of Thursday, April 2, 2026 11:06 PM. All data is obtained from various sources and may not have been verified by broker or MLS GRID. Supplied Open House Information is subject to change without notice. All information should be independently reviewed and verified for accuracy. Properties may or may not be listed by the office/agent presenting the information.
View
Sort

Sharing

 
Pending March 8, 2026
$672,300  
3 BR    2 BA    1,301 SQFT  
NWMLS #2484492. Christy Davies, Alpine Group
Map
 
Listing information is provided by the listing agent except as follows: BuilderB indicates that our system has grouped this listing under a home builder name that doesn't match the name provided by the listing broker. DevelopmentD indicates that our system has grouped this listing under a development name that doesn't match the name provided by the listing broker.