to
Reset
Houses
Townhouses
Condos
Land
Price
to
SQFT
to
Bdrms
to
Baths
to
Lot
to
Yr Built
to
Sold
Listed within...
Listed at least...
Offer Review
New Construction
Waterfront
Short-Sales
REO
Parking
to
Unit Flr
to
Unit Nbr
Listings
Neighborhoods
Complexes
Developments
Cities
Counties
Zip Codes
Neighborhood · Condo · Development
School District
Zip Code
City
County
Builder
Listing Numbers
Broker LAG
Boundary Lines
Labels
View
Sort
Sold Closed May 8, 2026
$1,560,000
4 Bedrooms
2.75 Bathrooms
3,540 Sqft House
Built 2023
6,259 Sqft Lot
2-Car Garage
HOA Dues $56 / month
SALE HISTORY
List price was $1,574,950
It took 30 days to go pending.
Then 35 days to close at $1,560,000
Closed at $441/SQFT.
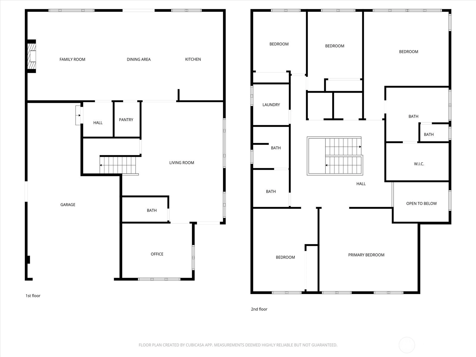
Exceptional Mount Si Views and Resort-Style Living in Maloney Estates. Built in 2023, this 3,540-square-foot home seamlessly blends Craftsman design with high-end modern finishes. Located at the base of the Cascade foothills in Maloney Estates, the property offers immediate access to the region’s best hiking trails and breathtaking, 180-degree views of Mount Si right from the backyard. The outdoor space is built for both recreation and relaxation. The fully fenced backyard features a private heated pool and an on-site sauna, offering premium amenities at home. The landscaping remains lush and low-maintenance year-round, supported by a built-in sprinkler system. Inside, the open-concept layout is bright and highly functional. The heart of the main floor is a chef-inspired gourmet kitchen equipped with an oversized eating area that flows directly into a large family room anchored by a gas fireplace. The main level also offers a quiet, secluded den serving as an ideal home office, alongside a formal dining room for hosting gatherings. Upstairs provides excellent space and flexibility, featuring a generous primary suite, three additional bedrooms, and a massive bonus room. Outfitted with a high-efficiency heat pump for reliable climate control, this home delivers a rare combination of newer-build luxury, outdoor adventure, and move-in readiness. This home is served by the award-winning Snoqualmie Valley School District Come see these views in person—schedule your tour today!
Offer Review
No offer review date was specified
Listing source NWMLS MLS #
2485564
Listed by
Alena Labzhinova, Keller Williams Rlty Bellevue
Buyer's broker
David Harris, Real Broker LLC
Contact our
North Bend
Real Estate Lead
TPG Realty | Keller Williams
Phone...
Bedroom & Bathroom Layout
SECOND
BDRM
BDRM
BDRM
BDRM
FULL
BATH
FULL
BATH
MAIN
¾
BATH
Property History
May 09, 2026
Sold
$1,560,000
NWMLS #2485564 Annualized 4.3% / yr
Apr 03, 2026
Went Pending
$1,574,950
NWMLS #2485564
Mar 04, 2026
Listed
$1,574,950
NWMLS #2485564
Oct 20, 2023
Sold
$1,399,880
May 23, 2023
Went Pending
$1,399,880
May 19, 2023
Listed
$1,399,880
More
Listing Details
  • Sale Price
    $1,560,000
  • Closing Date
    May 8, 2026
  • Last List Price
    $1,574,950
  • Original Price
    Same
  • List Date
    March 4, 2026
  • Pending Date
    April 3, 2026
  • Days to go Pending
    30 days
  • $/sqft (Total)
    $441/sqft
  • $/sqft (Finished)
    $441/sqft
  • Listing Source
  • MLS Number
    2485564
  • Listing Broker
    Alena Labzhinova
  • Listing Office
    Keller Williams Rlty Bellevue
  • Buyer's Broker
    David Harris
  • Buyer Broker's Firm
    Real Broker LLC
Monthly Payment Estimate
  • Principal and Interest
    $8,178 / month
  • HOA
    $56 / month
  • Property Taxes
    $1,110 / month
  • Homeowners Insurance
    $299 / month
  • TOTAL
    $9,643 / month

  • based on 20% down
    ($312,000)
  • and a
    6.85% Interest Rate
  • About:
    All calculations are estimates only and provided by Mainview LLC. Actual amounts will vary.
House Details
  • Sqft (Total)
    3,540 sqft
  • Sqft (Finished)
    3,540 sqft
  • Sqft (Unfinished)
    None
  • Property Type
    House
  • Sub Type
    2 Story
  • Bedrooms
    4 Bedrooms
  • Bathrooms
    2.75 Bathrooms
  • Lot
    6,259 sqft Lot
  • Lot Size Source
    public records
  • Lot #
    16
  • Project
    Maloney Estates
  • Total Stories
    2 stories
  • Basement
    None
  • Sqft Source
    public records
Property Tax Info
  • 2026 Property Taxes
    $13,323 / year
  • No Senior Exemption
Public Parcel Data & Maps
Schools
  • School District
    Snoqualmie Valley
  • Elementary
    North Bend Elem
  • Middle
    Twin Falls Mid
  • High School
    Mount Si High
HOA
  • HOA Dues
    $56 / month
  • Fees Assessed
    Monthly
  • HOA Dues Include
    Common Area Maintenance
  • HOA Contact
    Unspecified
  • Management Contact
    Unspecified
Community Features
  • Community Features
    CCRs
Parking
  • Covered
    2-Car
  • Types
    Driveway
    Attached Garage
  • Has Garage
    Yes
  • Nbr of Assigned Spaces
    4
Views
  • City
    Mountains
    Territorial
Construction
  • Year Built
    2023
  • Home Builder
    John Day Homes
Cooling
  • Includes
    90%+ High Efficiency
    Heat Pump
Heating
  • Includes
    90%+ High Efficiency
    Forced Air
    Heat Pump
Interior
  • Flooring
    Ceramic Tile
    Engineered Hardwood
    Carpet
  • Features
    Bath Off Primary
    Dbl Pane/Storm Window
    Dining Room
    Fireplace
    French Doors
    High Tech Cabling
    Hot Tub/Spa
    Pantry
    Sauna
    Sprinkler System
    Walk-In Closet(s)
    Water Heater
    Wired for Generator
Property
  • Lot Features
    Cul-De-Sac
    Dead End Street
    Paved
    Sidewalk
  • Site Features
    Electric Car Charging
    Fenced-Fully
    Gas Available
    High Speed Internet
    Hot Tub/Spa
    Patio
    Sprinkler System
Appliances
  • Included
    Dishwasher
    Disposal
    Dryer
    Microwave
    Refrigerator
    Washer
Terms
  • Bank Owned (REO)
    No
Utilities
  • Energy
    Electric
    Natural Gas
  • Sewer
    Sewer Connected
  • Water Source
    Public
Additional Info
  • Waterfront
    No
  • Air Conditioning (A/C)
    Yes
  • Buyer Broker's Compensation
    2.5%
  • MLS Area #
    Area 540
  • Number of Photos
    39
  • Last Modification Time
    Saturday, May 9, 2026 3:32 PM
  • System Listing ID
    5525068
Update Info
  • Closed
    2026-05-09 15:40:42
  • Pending Or Ctg
    2026-04-04 04:02:54
  • First For Sale
    2026-03-04 16:50:27
Listing details based on information submitted to the MLS GRID as of Saturday, May 9, 2026 3:32 PM. All data is obtained from various sources and may not have been verified by broker or MLS GRID. Supplied Open House Information is subject to change without notice. All information should be independently reviewed and verified for accuracy. Properties may or may not be listed by the office/agent presenting the information.
View
Sort

Sharing

 
Sold May 8, 2026
$1,560,000   $1,574,950
4 BR    2.75 BA    3,540 SQFT  
NWMLS #2485564. Alena Labzhinova, Keller Williams Rlty Bellevue
Map
 
Listing information is provided by the listing agent except as follows: BuilderB indicates that our system has grouped this listing under a home builder name that doesn't match the name provided by the listing broker. DevelopmentD indicates that our system has grouped this listing under a development name that doesn't match the name provided by the listing broker.