to
Reset
Houses
Townhouses
Condos
Land
Price
to
SQFT
to
Bdrms
to
Baths
to
Lot
to
Yr Built
to
Sold
Listed within...
Listed at least...
Offer Review
New Construction
Waterfront
Short-Sales
REO
Parking
to
Unit Flr
to
Unit Nbr
Listings
Neighborhoods
Complexes
Developments
Cities
Counties
Zip Codes
Neighborhood · Condo · Development
School District
Zip Code
City
County
Builder
Listing Numbers
Broker LAG
Boundary Lines
Labels
View
Sort
Pending Went pending in 8 days
$548,000
3 Bedrooms
1.75 Bathrooms
1,414 Sqft House
Built 1946
12,000 Sqft Lot
2-Car Garage
PENDING SALE. This listing went Pending on March 13, 2026

Some pending sales don't become final. Contact Us if this property is really important to you so we can check on it right now. The seller has reached an agreement with a buyer to sell this property. If things go as planned, the sale will become final in the near future. The buyer and seller have agreed on a price but it's not public until the sale closes. The last published list price was $548,000.
Stylishly updated furnished rambler on a large 12,000 SF lot with quick access to HWY 167 & 18. Enjoy peace of mind with a fresh paint interior/exterior ,new flooring, newer washer/dryer, and a refreshed kitchen featuring new countertops, sink, faucet, range hood, and refrigerator. Bright open living and dining areas flow to the kitchen, complemented by updated bathrooms and a roomy laundry. Outdoor living shines with front and back decks, a gazebo, detached 2-car garage/shop, and a fenced yard filled with fruit trees pear ,plum, apple, blueberry, blackberry, and grapes. Stay cool with A/C in summer. Expansive lot offers ADU/DADU potential (buyer to verify with the city). Move-in ready, full of charm , and now priced to sell!
Offer Review
No offer review date was specified
Listing source NWMLS MLS #
2488141
Listed by
Poneh Shafaianfard, Keller Williams Rlty Bellevue
Contact our
Algona
Real Estate Lead
RE/MAX Northwest Realtors
Phone...
Bedroom & Bathroom Layout
SECOND
BDRM
MAIN
BDRM
BDRM
FULL
BATH
¾
BATH
Property History
Mar 13, 2026
Went Pending
$548,000
NWMLS #2488141
Mar 05, 2026
Listed
$548,000
NWMLS #2488141
Sep 04, 2025
Price Reduction arrow_downward
$549,900
NWMLS #2418649
Aug 12, 2025
Listed
$575,000
NWMLS #2418649
Jul 16, 2019
Sold
$319,900
NWMLS #1457727 Annualized 3.1% / yr
Dec 06, 2007
Sold
$225,000
More
Listing Details
  • Status
    Pending
  • Last Listed Price
    $548,000
  • Original Price
    Same as current
  • List Date
    March 5, 2026
  • Last Status Change
    March 13, 2026
  • Last Update
    March 13, 2026
  • Days on Market
    11 Days
  • Cumulative DOM
    8 Days
  • Pending Date
    March 13, 2026
  • Days to go Pending
    8
  • $/sqft (Total)
    $388/sqft
  • $/sqft (Finished)
    $388/sqft
  • Listing Source
  • MLS Number
    2488141
  • Listing Broker
    Poneh Shafaianfard
  • Listing Office
    Keller Williams Rlty Bellevue
Monthly Payment Estimate
  • Principal and Interest
    $2,873 / month
  • Property Taxes
    $357 / month
  • Homeowners Insurance
    $113 / month
  • TOTAL
    $3,343 / month

  • based on 20% down
    ($109,600)
  • and a
    6.85% Interest Rate
  • About:
    All calculations are estimates only and provided by Mainview LLC. Actual amounts will vary.
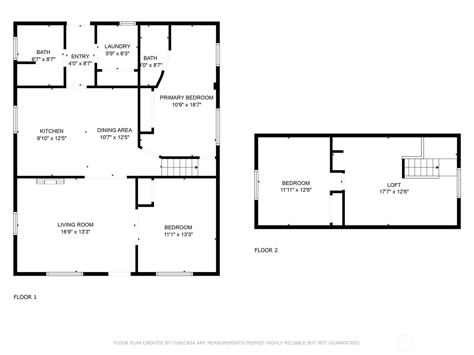
House Details
  • Sqft (Total)
    1,414 sqft
  • Sqft (Finished)
    1,414 sqft
  • Sqft (Unfinished)
    None
  • Property Type
    House
  • Sub Type
    1 1/2 Story
  • Bedrooms
    3 Bedrooms
  • Bathrooms
    1.75 Bathrooms
  • Lot
    12,000 sqft Lot
  • Lot Size Source
    Realist
  • Lot #
    Unspecified
  • Project
    Unspecified
  • Total Stories
    2 stories
  • Basement
    None
  • Sqft Source
    Floor Plan
Property Tax Info
  • 2025 Property Taxes
    $4,284 / year
  • No Senior Exemption
Public Parcel Data & Maps
Schools
  • School District
    Auburn
  • Elementary
    Buyer To Verify
  • Middle
    Buyer To Verify
  • High School
    Buyer To Verify
HOA
  • HOA Dues
    Unspecified
  • Fees Assessed
    Unspecified
  • HOA Dues Include
    Unspecified
  • HOA Contact
    Unspecified
  • Management Contact
Parking
  • Covered
    2-Car
  • Types
    Driveway
    Detached Garage
    Off Street
    RV Parking
  • Has Garage
    Yes
  • Nbr of Assigned Spaces
    2
Construction
  • Year Built
    1946
  • Home Builder
    Unspecified
Cooling
  • Includes
    Central Air
    Forced Air
Heating
  • Includes
    Forced Air
Interior
  • Flooring
    Vinyl
    Carpet
  • Features
    Bath Off Primary
    Dining Room
    Water Heater
Property
  • Lot Features
    Paved
  • Site Features
    Deck
    Fenced-Fully
    Gas Available
    Patio
    RV Parking
Appliances
  • Included
    Dishwasher
    Disposal
    Dryer
    Microwave
    Stove(s)/Range(s)
    Washer
Terms
  • 3rd Party Approval Required)
    No
  • Bank Owned (REO)
    No
  • Complex FHA Availability
    Unspecified
  • Potential Terms
    Cash
    Conventional
    FHA
    VA Loan
Utilities
  • Energy
    Electric
    Natural Gas
  • Sewer
    Sewer Connected
  • Water Source
    Public
Additional Info
  • Waterfront
    No
  • Air Conditioning (A/C)
    Yes
  • Buyer Broker's Compensation
    2.5%
  • MLS Area #
    Area 310
  • Number of Photos
    37
  • Last Modification Time
    Friday, March 13, 2026 2:26 PM
  • System Listing ID
    5525306
Update Info
  • Pending Or Ctg
    2026-03-13 14:56:07
  • First For Sale
    2026-03-05 08:47:26
Listing details based on information submitted to the MLS GRID as of Friday, March 13, 2026 2:26 PM. All data is obtained from various sources and may not have been verified by broker or MLS GRID. Supplied Open House Information is subject to change without notice. All information should be independently reviewed and verified for accuracy. Properties may or may not be listed by the office/agent presenting the information.
View
Sort

Sharing

 
Pending March 13, 2026
$548,000  
3 BR    1.75 BA    1,414 SQFT  
NWMLS #2488141. Poneh Shafaianfard, Keller Williams Rlty Bellevue
Map
 
Listing information is provided by the listing agent except as follows: BuilderB indicates that our system has grouped this listing under a home builder name that doesn't match the name provided by the listing broker. DevelopmentD indicates that our system has grouped this listing under a development name that doesn't match the name provided by the listing broker.