to
Reset
Houses
Townhouses
Condos
Land
Price
to
SQFT
to
Bdrms
to
Baths
to
Lot
to
Yr Built
to
Sold
Listed within...
Listed at least...
Offer Review
New Construction
Waterfront
Short-Sales
REO
Parking
to
Unit Flr
to
Unit Nbr
Listings
Neighborhoods
Complexes
Developments
Cities
Counties
Zip Codes
Neighborhood · Condo · Development
School District
Zip Code
City
County
Builder
Listing Numbers
Broker LAG
Boundary Lines
Labels
View
Sort
Pending Went pending in 6 days
$337,000
2 Bedrooms
1.75 Bathrooms
882 Sqft Condo
Unit J302
Floor 3
Built 1999
1 Parking Space
HOA Dues $437 / month
The seller has reached an agreement with a buyer to sell this property. If things go as planned, the sale will become final in the near future. The buyer and seller have agreed on a price but it's not public until the sale closes. The last published list price was $337,000.
Pristine 2 bedroom, 2 bath condo home in the quiet gated community of Heritage at Deer Creek. The top floor vantage with outlook to wetland reserve enjoys a level of privacy & tranquility rarely found in condo living, while 9 ft. ceilings and oversized windows fill the home with natural light. Inviting, open layout offers the space and versatility to host game nights or dinner parties, and also feels just right for quiet, cozy nights by the fire. Whether you prefer microwave dinners or home baking, the kitchen with generous prep space and pullout storage will meet your needs. The covered deck, a lovely spot to enjoy the afternoon sun while birdwatching, extends your living space in rain or shine. Primary suite with full bathroom and walk-in-closet is a welcome retreat, and 2nd bedroom adjacent to bathroom with step in shower compliments the floorplan. New carpet & paint throughout provides a fresh, turnkey start. Dedicated, covered carport is conveniently located near the stairwell. Abundant visitor parking adds to the ease of entertaining, whether hosting at home or spreading out in the HOA cabana with large outdoor patio. Ideal location for commute with proximity to Hwy 99, I5, Boeing, Park & Ride, and upside potential with future light rail stations anticipated nearby. Pet friendly complex. Mukilteo schools!
Offer Review
No offer review date was specified
Project
Heritage at Deer Creek
Listing source NWMLS MLS #
2489316
Listed by
Claudette Meyer, Windermere RE North, Inc.
We don't currently have a buyer representative in this area. To be sure that you're getting objective advice, we always suggest buyers work with their own agent, someone who is not affiliated with the seller.
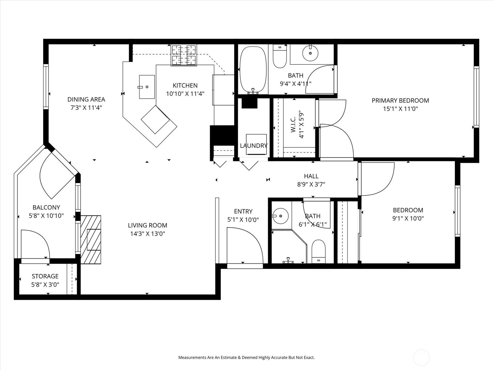
Bedroom & Bathroom Layout
MAIN
BDRM
BDRM
FULL
BATH
¾
BATH
Property History
Mar 26, 2026
Went Pending
$337,000
NWMLS #2489316
Mar 12, 2026
Went Pending Inspection
$337,000
NWMLS #2489316
Mar 06, 2026
Listed
$337,000
NWMLS #2489316
More
Listing Details
  • Status
    Pending
  • Last Listed Price
    $337,000
  • Original Price
    Same as current
  • List Date
    March 6, 2026
  • Last Status Change
    March 27, 2026
  • Last Update
    March 27, 2026
  • Days on Market
    27 Days
  • Cumulative DOM
    6 Days
  • Pending Date
    March 12, 2026
  • Days to go Pending
    6
  • $/sqft (Total)
    $382/sqft
  • $/sqft (Finished)
    $382/sqft
  • Listing Source
  • MLS Number
    2489316
  • Listing Broker
    Claudette Meyer
  • Listing Office
    Windermere RE North, Inc.
Monthly Payment Estimate
  • Principal and Interest
    $1,767 / month
  • HOA
    $437 / month
  • Property Taxes
    $241 / month
  • Homeowners Insurance
    $84 / month
  • TOTAL
    $2,529 / month

  • based on 20% down
    ($67,400)
  • and a
    6.85% Interest Rate
  • About:
    All calculations are estimates only and provided by Mainview LLC. Actual amounts will vary.
Condo Details
  • Unit #
    J302
  • Unit Floor
    3
  • Sqft (Total)
    882 sqft
  • Sqft (Finished)
    Unspecified
  • Sqft (Unfinished)
    None
  • Property Type
    Condo
  • Sub Type
    Condo (1 Level)
  • Bedrooms
    2 Bedrooms
  • Bathrooms
    1.75 Bathrooms
  • Lot Size
    Unspecified
  • Lot Size Source
    Unspecified
  • Project
    Heritage at Deer Creek
  • Total Stories
    1 story
  • Sqft Source
    Snohomish County Assessor
Property Tax Info
  • 2026 Property Taxes
    $2,893 / year
  • No Senior Exemption
Public Parcel Data & Maps
Schools
  • School District
    Mukilteo
  • Elementary
    Odyssey Elem
  • Middle
    Voyager Mid
  • High School
    Mariner High
HOA
  • HOA Dues
    $437 / month
  • Fees Assessed
    Monthly
  • HOA Dues Include
    Common Area Maintenance
    Earthquake Insurance
    Sewer
    Trash
    Water
  • Pets Allowed
    Subject to Restrictions
  • HOA Contact
    Unspecified
  • Management Contact
    Agynbyte LLC 425-747-0146
Community Features
  • Community Features
    Club House
    Fire Sprinklers
    Gated
    High Speed Int Avail
    Outside Entry
Building
  • Name
    Heritage at Deer Creek
  • Units in Complex
    102
  • Units in Building
    12
  • Stories in Building
    3
Parking
  • Covered
    1-Car
  • Types
    Carport
    Off Street
  • Has Garage
    Yes
  • Nbr of Assigned Spaces
    1
  • Parking Space Info
    193
Construction
  • Year Built
    1999
  • Home Builder
    Unspecified
Cooling
  • Includes
    None
Heating
  • Includes
    Baseboard
Interior
  • Flooring
    Laminate
    Slate
    Vinyl Plank
    Carpet
  • Features
    Cooking-Gas
    Fireplace
    Insulated Windows
    Primary Bathroom
    Sprinkler System
    Top Floor
    Walk-In Closet(s)
    Washer
    Water Heater
Property
  • Lot Features
    Curbs
    Dead End Street
    Open Space
    Paved
    Sidewalk
Appliances
  • Included
    Dishwasher
    Disposal
    Dryer
    Microwave
    Refrigerator
    Stove(s)/Range(s)
    Washer
Terms
  • 3rd Party Approval Required)
    Yes
  • Bank Owned (REO)
    No
  • Complex FHA Availability
    Unspecified
  • Potential Terms
    Cash
    Conventional
    VA Loan
Utilities
  • Energy
    Electric
    Natural Gas
Additional Info
  • Waterfront
    No
  • Air Conditioning (A/C)
    No
  • Buyer Broker's Compensation
    2.5%
  • MLS Area #
    Area 740
  • Number of Photos
    34
  • Last Modification Time
    Thursday, March 26, 2026 6:13 PM
  • System Listing ID
    5526746
Update Info
  • Pending Or Ctg
    2026-03-28 08:54:25
  • First For Sale
    2026-03-06 17:31:26
Listing details based on information submitted to the MLS GRID as of Thursday, March 26, 2026 6:13 PM. All data is obtained from various sources and may not have been verified by broker or MLS GRID. Supplied Open House Information is subject to change without notice. All information should be independently reviewed and verified for accuracy. Properties may or may not be listed by the office/agent presenting the information.
View
Sort

Sharing

 
Pending March 12, 2026
$337,000  
2 BR    1.75 BA    882 SQFT  
NWMLS #2489316. Claudette Meyer, Windermere RE North, Inc.
Map
 
Listing information is provided by the listing agent except as follows: BuilderB indicates that our system has grouped this listing under a home builder name that doesn't match the name provided by the listing broker. DevelopmentD indicates that our system has grouped this listing under a development name that doesn't match the name provided by the listing broker.