to
Reset
Houses
Townhouses
Condos
Land
Price
to
SQFT
to
Bdrms
to
Baths
to
Lot
to
Yr Built
to
Sold
Listed within...
Listed at least...
Offer Review
New Construction
Waterfront
Short-Sales
REO
Parking
to
Unit Flr
to
Unit Nbr
Listings
Neighborhoods
Complexes
Developments
Cities
Counties
Zip Codes
Neighborhood · Condo · Development
School District
Zip Code
City
County
Builder
Listing Numbers
Broker LAG
Boundary Lines
Labels
View
Sort
For Sale 34 Days Online
$2,183,000
5 Bedrooms
3.25 Bathrooms
3,552 Sqft House
New Construction
Built 2025
3,570 Sqft Lot
1-Car Garage
Perched To Capture Breathtaking Sunset Views, This Brand New Masterpiece Of Modern Design Offers A Seamless Blend Of Contemporary Luxury And Refined Ambiance. Soaring Vaulted Ceilings And White Oak Hardwoods Welcome You To An Expansive Space Where Every Detail Speaks Of High Quality Craftsmanship. The Gourmet Kitchen Stands As A Culinary Dream, Featuring Designer Appliances, Granite Counters, And A Professional Gas Stove. For Those Seeking Balance, The Home Provides A Generous Work From Home Space Designed For Deep Focus. The Luxurious Primary Suite Serves As A Secluded Sanctuary, Complete With A Spa Inspired Bath And The Comfort Of Radiant Heat. Step Outside To The Secluded Deck To Enjoy Peaceful Territorial Views In Total Privacy. Embracing The Needs Of A Multi Generational Lifestyle, The Property Includes A Private ADU That Offers A Sophisticated Retreat For Extended Guests. This Additional Living Space Features Its Own Entry For Complete Autonomy. Forward Thinking Amenities Are Integrated Throughout, Including Dedicated Wiring For Hybrid Cars To Ensure Modern Day Convenience. Located Only Minutes From The Loyal Heights Community Center, This Residence Represents The Pinnacle Of Intentional Design And Urban Connectivity.
Offer Review
Will review offers when submitted
Builder
COOPER THOMAS HOMES
Project
SALMON BAY PARK
Listing source NWMLS MLS #
2490480
Listed by
Irma B. Suntay, Windermere Real Estate Co.
Contact our
Ballard
Real Estate Lead
John L. Scott
Phone...
Bedroom & Bathroom Layout
THIRD
BDRM
BDRM
BDRM
BDRM
FULL
BATH
FULL
BATH
SECOND
½
BATH
MAIN
BDRM
¾
BATH
Property History
Mar 10, 2026
Listed
$2,183,000
NWMLS #2490480
Feb 09, 2026
Price Reduction arrow_downward
$2,298,000
NWMLS #2458834
Dec 03, 2025
Listed
$2,372,800
NWMLS #2458834
Oct 08, 2025
Price Reduction arrow_downward
$2,498,000
NWMLS #2416117
Sep 18, 2025
Listed
$2,588,000
NWMLS #2416117
Aug 12, 2024
Sold
$625,000
Apr 24, 2024
Went Pending
$650,000
Apr 17, 2024
Went Pending Feasibility
$650,000
Apr 11, 2024
Listed
$650,000
More
Listing Details
  • Status
    For Sale
  • Price
    $2,183,000
  • Original Price
    Same as current
  • List Date
    March 10, 2026
  • Last Status Change
    March 10, 2026
  • Last Update
    April 7, 2026
  • Days on Market
    34 Days
  • Cumulative DOM
    207 Days
  • $/sqft (Total)
    $615/sqft
  • $/sqft (Finished)
    $615/sqft
  • Listing Source
  • MLS Number
    2490480
  • Listing Broker
    Irma B. Suntay
  • Listing Office
    Windermere Real Estate Co.
Monthly Payment Estimate
  • Principal and Interest
    $11,443 / month
  • Property Taxes
    $549 / month
  • Homeowners Insurance
    $413 / month
  • TOTAL
    $12,405 / month

  • based on 20% down
    ($436,600)
  • and a
    6.85% Interest Rate
  • About:
    All calculations are estimates only and provided by Mainview LLC. Actual amounts will vary.
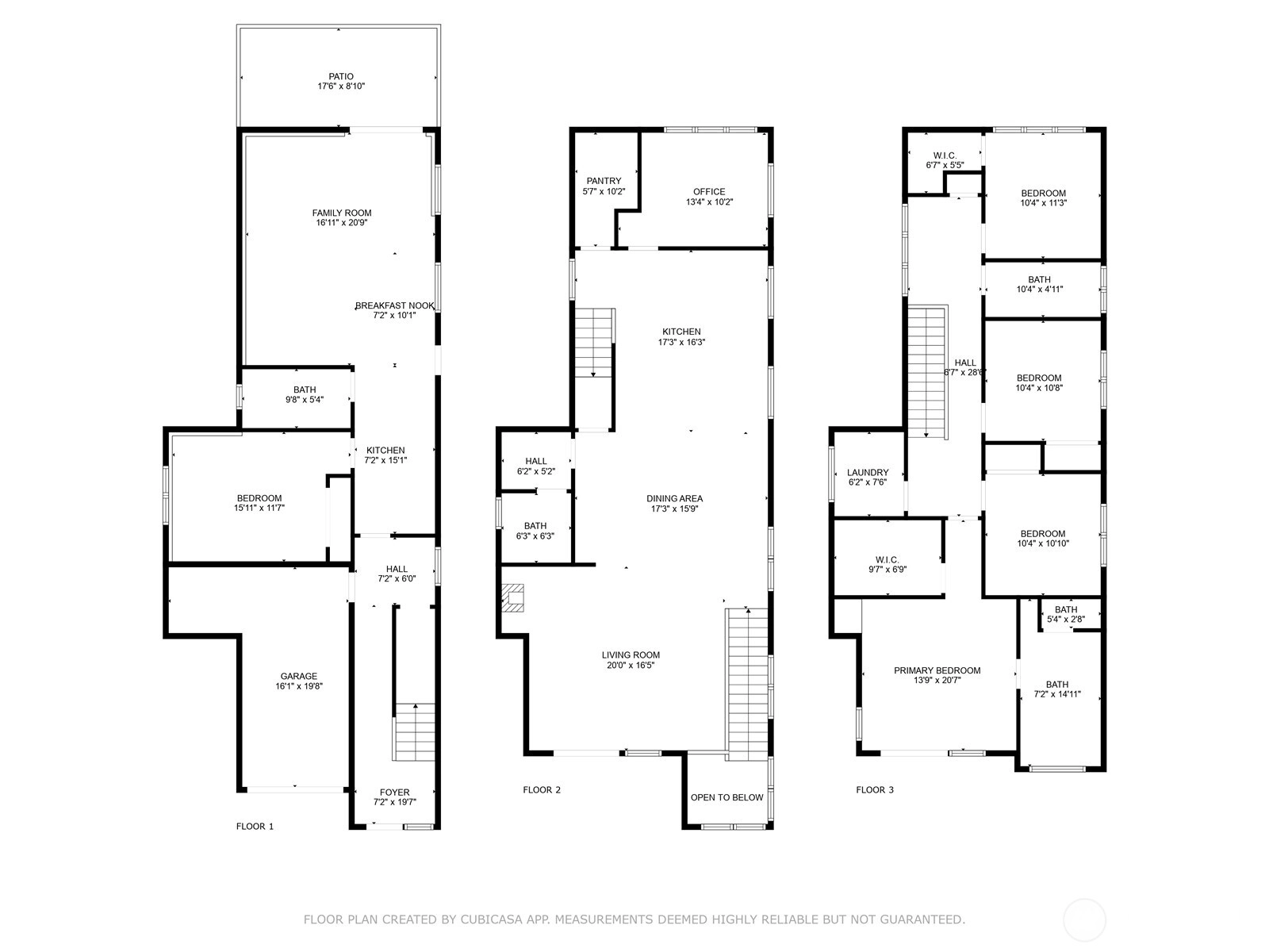
House Details
  • Sqft (Total)
    3,552 sqft
  • Sqft (Finished)
    3,552 sqft
  • Sqft (Unfinished)
    None
  • Property Type
    House
  • Sub Type
    Multi Level
  • Bedrooms
    5 Bedrooms
  • Bathrooms
    3.25 Bathrooms
  • Lot
    3,570 sqft Lot
  • Lot Size Source
    REALIST
  • Lot #
    5-6
  • Project
    SALMON BAY PARK
  • Total Stories
    Unspecified
  • Basement
    None
  • Sqft Source
    BLUEPRINT
Property Tax Info
  • 2025 Property Taxes
    $6,587 / year
  • No Senior Exemption
Public Parcel Data & Maps
Schools
  • School District
    Seattle
  • Elementary
    Loyal Heights
  • Middle
    Whitman Mid
  • High School
    Ballard High
HOA
  • HOA Dues
    Unspecified
  • Fees Assessed
    Unspecified
  • HOA Dues Include
    Unspecified
  • HOA Contact
    Unspecified
  • Management Contact
Parking
  • Covered
    1-Car
  • Types
    Driveway
    Attached Garage
    Off Street
  • Has Garage
    Yes
  • Nbr of Assigned Spaces
    1
Views
  • Territorial
Construction
  • Year Built
    2025
  • New Construction
    Yes
  • Construction State
    Unspecified
  • Home Builder
    COOPER THOMAS HOMES
Cooling
  • Includes
    Ductless
Heating
  • Includes
    Ductless
    Radiant
Interior
  • Flooring
    Ceramic Tile
    Hardwood
    Carpet
  • Features
    Second Kitchen
    Bath Off Primary
    Dbl Pane/Storm Window
    Dining Room
    Fireplace
    High Tech Cabling
    Pantry
    Security System
    Skylight(s)
    Vaulted Ceiling(s)
    Walk-In Closet(s)
Property
  • Lot Features
    Curbs
    Paved
    Sidewalk
  • Site Features
    Cable TV
    Deck
    Electric Car Charging
    Fenced-Partially
    High Speed Internet
    Patio
Appliances
  • Included
    Dishwasher
    Disposal
    Microwave
    Refrigerator
    Stove(s)/Range(s)
Terms
  • 3rd Party Approval Required)
    No
  • Bank Owned (REO)
    No
  • Complex FHA Availability
    Unspecified
  • Potential Terms
    Cash
    Conventional
Utilities
  • Energy
    Electric
    Natural Gas
  • Sewer
    Sewer Connected
  • Water Source
    Public
Additional Info
  • Waterfront
    No
  • Air Conditioning (A/C)
    Yes
  • Buyer Broker's Compensation
    2.5%
  • MLS Area #
    Area 705
  • Number of Photos
    40
  • Last Modification Time
    Tuesday, April 7, 2026 12:42 PM
  • System Listing ID
    5527424
Update Info
  • First For Sale
    2026-03-10 14:03:25
Listing details based on information submitted to the MLS GRID as of Tuesday, April 7, 2026 12:42 PM. All data is obtained from various sources and may not have been verified by broker or MLS GRID. Supplied Open House Information is subject to change without notice. All information should be independently reviewed and verified for accuracy. Properties may or may not be listed by the office/agent presenting the information.
View
Sort

Sharing

 
For Sale 34 Days Online
$2,183,000  
5 BR    3.25 BA    3,552 SQFT  
Offer Review: Anytime
NWMLS #2490480. Irma B. Suntay, Windermere Real Estate Co.
Map
 
Listing information is provided by the listing agent except as follows: BuilderB indicates that our system has grouped this listing under a home builder name that doesn't match the name provided by the listing broker. DevelopmentD indicates that our system has grouped this listing under a development name that doesn't match the name provided by the listing broker.