to
Reset
Houses
Townhouses
Condos
Land
Price
to
SQFT
to
Bdrms
to
Baths
to
Lot
to
Yr Built
to
Sold
Listed within...
Listed at least...
Offer Review
New Construction
Waterfront
Short-Sales
REO
Parking
to
Unit Flr
to
Unit Nbr
Listings
Neighborhoods
Complexes
Developments
Cities
Counties
Zip Codes
Neighborhood · Condo · Development
School District
Zip Code
City
County
Builder
Listing Numbers
Broker LAG
Boundary Lines
Labels
View
Sort
Sold Closed April 3, 2026
$585,000
2 Bedrooms
1.75 Bathrooms
1,410 Sqft House
Built 1977
3,291 Sqft Lot
1-Car Garage
HOA Dues $170 / month
SALE HISTORY
List price was $599,950
It took 5 days to go pending.
Then 18 days to close at $585,000
Closed at $415/SQFT.
Welcome to this clean, move-in ready home offering comfortable living spaces, modern conveniences, & thoughtful updates throughout. Step inside to a bright & inviting living room featuring plush carpeting, large windows that bring in abundant natural light, & a beautiful fireplace that creates a warm focal point for relaxing evenings or entertaining guests. The open flow leads seamlessly into the kitchen and rec room area, making the layout both functional & welcoming. The kitchen is well-appointed with stainless steel appliances, ample cabinetry, drawer systems, generous counter space, perfect for everyday cooking or hosting friends. The home includes updated bathrooms with modern vanities & clean finishes. Main bath features a convenient tub/shower combination, while the primary bath offers a contemporary glass-enclosed shower. Additional highlights include California closet systems in both bedrooms & hall closets, dedicated utility/laundry closet, neutral finishes throughout ready for your personal touch, newer heat pump, new skylight, slider to large deck & spacious attached garage with plenty of storage space. This property offers the perfect combination of comfort, functionality, & low-maintenance living, making it ideal for homeowners looking for a well-kept home in a desirable setting. Beautiful community club house, pool/spa, landscaping, gardens & walking trails. Schedule your showing today and experience everything this home has to offer.
Offer Review
No offer review date was specified
Listing source NWMLS MLS #
2490276
Listed by
Janel Stoneback, Windermere West Metro
Buyer's broker
Jani Spencer, COMPASS
Contact our
Des Moines
Real Estate Lead
TPG Realty | Keller Williams
Phone...
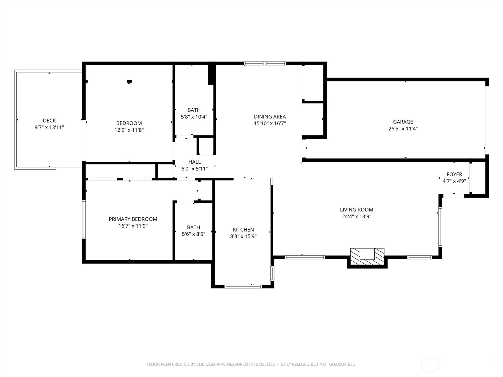
Bedroom & Bathroom Layout
MAIN
BDRM
BDRM
FULL
BATH
¾
BATH
Property History
Apr 06, 2026
Sold
$585,000
NWMLS #2490276 Annualized 5.9% / yr
Mar 23, 2026
Went Pending
$599,950
NWMLS #2490276
Mar 17, 2026
Went Pending Inspection
$599,950
NWMLS #2490276
Mar 11, 2026
Listed
$599,950
NWMLS #2490276
Aug 25, 2015
Sold
$317,000
NWMLS #813519 Annualized -0.1% / yr
Mar 20, 2007
Sold
$320,000
More
Listing Details
  • Sale Price
    $585,000
  • Closing Date
    April 3, 2026
  • Last List Price
    $599,950
  • Original Price
    Same
  • List Date
    March 11, 2026
  • Pending Date
    March 16, 2026
  • Days to go Pending
    5 days
  • $/sqft (Total)
    $415/sqft
  • $/sqft (Finished)
    $415/sqft
  • Listing Source
  • MLS Number
    2490276
  • Listing Broker
    Janel Stoneback
  • Listing Office
    Windermere West Metro
  • Buyer's Broker
    Jani Spencer
  • Buyer Broker's Firm
    COMPASS
Monthly Payment Estimate
  • Principal and Interest
    $3,067 / month
  • HOA
    $170 / month
  • Property Taxes
    $498 / month
  • Homeowners Insurance
    $120 / month
  • TOTAL
    $3,855 / month

  • based on 20% down
    ($117,000)
  • and a
    6.85% Interest Rate
  • About:
    All calculations are estimates only and provided by Mainview LLC. Actual amounts will vary.
House Details
  • Sqft (Total)
    1,410 sqft
  • Sqft (Finished)
    1,410 sqft
  • Sqft (Unfinished)
    Unspecified
  • Property Type
    House
  • Sub Type
    1 Story
  • Bedrooms
    2 Bedrooms
  • Bathrooms
    1.75 Bathrooms
  • Lot
    3,291 sqft Lot
  • Lot Size Source
    Public Records
  • Lot #
    22
  • Project
    Huntington Park West 03
  • Total Stories
    1 story
  • Basement
    None
  • Sqft Source
    Public Records
  • Pool
    Community
Property Tax Info
  • 2025 Property Taxes
    $5,978 / year
  • No Senior Exemption
Public Parcel Data & Maps
Schools
  • School District
    Highline
  • Elementary
    Unspecified
  • Middle
    Unspecified
  • High School
    Unspecified
HOA
  • HOA Dues
    $170 / month
  • Fees Assessed
    Monthly
  • HOA Dues Include
    Common Area Maintenance
    Lawn Service
  • HOA Contact
    Unspecified
  • Management Contact
    Unspecified
Community Features
  • Community Features
    Age Restriction
    CCRs
    Club House
    Park
    Trail(s)
Parking
  • Covered
    1-Car
  • Types
    Driveway
    Attached Garage
  • Has Garage
    Yes
  • Nbr of Assigned Spaces
    2
Views
  • Territorial
Construction
  • Year Built
    1977
  • Home Builder
    Unspecified
Cooling
  • Includes
    Heat Pump
Heating
  • Includes
    Fireplace Insert
    Forced Air
    Heat Pump
    High Efficiency (Unspecified)
Interior
  • Flooring
    Vinyl
    Carpet
  • Features
    Ceiling Fan(s)
    Dbl Pane/Storm Window
    Fireplace
    High Tech Cabling
    Water Heater
Property
  • Lot Features
    Cul-De-Sac
    Curbs
    Dead End Street
    Open Space
    Paved
    Sidewalk
  • Site Features
    Cable TV
    Deck
    Gas Available
    High Speed Internet
    Patio
Appliances
  • Included
    Dishwasher
    Dryer
    Microwave
    Refrigerator
    Stove(s)/Range(s)
    Washer
Terms
  • Bank Owned (REO)
    No
Utilities
  • Energy
    Electric
    Natural Gas
  • Sewer
    Sewer Connected
  • Water Source
    Public
Additional Info
  • Waterfront
    No
  • Air Conditioning (A/C)
    Yes
  • Buyer Broker's Compensation
    2.5%
  • MLS Area #
    Area 120
  • Number of Photos
    40
  • Last Modification Time
    Monday, April 6, 2026 10:54 AM
  • System Listing ID
    5527973
Update Info
  • Closed
    2026-04-06 10:58:54
  • Pending Or Ctg
    2026-03-23 12:12:01
  • First For Sale
    2026-03-11 17:28:32
Listing details based on information submitted to the MLS GRID as of Monday, April 6, 2026 10:54 AM. All data is obtained from various sources and may not have been verified by broker or MLS GRID. Supplied Open House Information is subject to change without notice. All information should be independently reviewed and verified for accuracy. Properties may or may not be listed by the office/agent presenting the information.
View
Sort

Sharing

 
Sold April 3, 2026
$585,000   $599,950
2 BR    1.75 BA    1,410 SQFT  
NWMLS #2490276. Janel Stoneback, Windermere West Metro
Map
 
Listing information is provided by the listing agent except as follows: BuilderB indicates that our system has grouped this listing under a home builder name that doesn't match the name provided by the listing broker. DevelopmentD indicates that our system has grouped this listing under a development name that doesn't match the name provided by the listing broker.