to
Reset
Houses
Townhouses
Condos
Land
Price
to
SQFT
to
Bdrms
to
Baths
to
Lot
to
Yr Built
to
Sold
Listed within...
Listed at least...
Offer Review
New Construction
Waterfront
Short-Sales
REO
Parking
to
Unit Flr
to
Unit Nbr
Listings
Neighborhoods
Complexes
Developments
Cities
Counties
Zip Codes
Neighborhood · Condo · Development
School District
Zip Code
City
County
Builder
Listing Numbers
Broker LAG
Boundary Lines
Labels
View
Sort
For Sale 56 Days Online
$675,000
Originally $702,999
2 Bedrooms
2.25 Bathrooms
1,656 Sqft House
Built 1996
1.26 Acres Lot
3-Car Garage
This beautifully maintained, one owner, 2-bedroom, 2.25-bath home offers 1,656 square feet of thoughtfully designed living space with soaring vaulted ceilings and a bright, open floor plan perfect for both relaxing and entertaining. Both bedrooms feature private ensuites, providing comfort and convenience for residents and guests alike. The spacious kitchen boasts abundant storage, making organization effortless while seamlessly flowing into the dining and living areas. Enjoy peaceful views of Holmes Harbor from the main living spaces, or step out onto the large deck to take in the scenery and fresh air. A 24x24 shop offers excellent space for hobbies or projects, and the attached 2-car garage adds everyday practicality to this exceptional property.
Offer Review
Will review offers when submitted
Listing source NWMLS MLS #
2491415
Listed by
Susan Perry, Windermere Whidbey Island
Stu McNabb, Windermere Whidbey Island
We don't currently have a buyer representative in this area. To be sure that you're getting objective advice, we always suggest buyers work with their own agent, someone who is not affiliated with the seller.
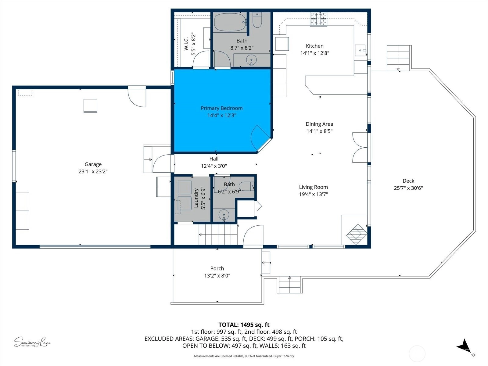
Bedroom & Bathroom Layout
SECOND
BDRM
¾
BATH
MAIN
BDRM
FULL
BATH
½
BATH
Property History
Apr 27, 2026
Price Reduction arrow_downward
$675,000
NWMLS #2491415
Apr 09, 2026
Price Reduction arrow_downward
$683,000
NWMLS #2491415
Mar 30, 2026
Price Reduction arrow_downward
$692,200
NWMLS #2491415
Mar 12, 2026
Listed
$702,999
NWMLS #2491415
More
Listing Details
  • Status
    For Sale
  • Price
    $675,000
  • Original Price
    $702,999
  • List Date
    March 12, 2026
  • Last Status Change
    March 12, 2026
  • Last Update
    April 27, 2026
  • Days on Market
    56 Days
  • Cumulative DOM
    56 Days
  • $/sqft (Total)
    $408/sqft
  • $/sqft (Finished)
    $408/sqft
  • Listing Source
  • MLS Number
    2491415
  • Listing Broker
    Susan Perry
  • Listing Office
    Windermere Whidbey Island
Monthly Payment Estimate
  • Principal and Interest
    $3,538 / month
  • Property Taxes
    $383 / month
  • Homeowners Insurance
    $136 / month
  • TOTAL
    $4,057 / month

  • based on 20% down
    ($135,000)
  • and a
    6.85% Interest Rate
  • About:
    All calculations are estimates only and provided by Mainview LLC. Actual amounts will vary.
House Details
  • Sqft (Total)
    1,656 sqft
  • Sqft (Finished)
    1,656 sqft
  • Sqft (Unfinished)
    None
  • Property Type
    House
  • Sub Type
    2 Story
  • Bedrooms
    2 Bedrooms
  • Bathrooms
    2.25 Bathrooms
  • Lot
    1.26 Acres Lot
  • Lot Size Source
    Public Records
  • Lot #
    Unspecified
  • Project
    Unspecified
  • Total Stories
    2 stories
  • Basement
    None
  • Sqft Source
    Public Records
Property Tax Info
  • 2026 Property Taxes
    $4,597 / year
  • No Senior Exemption
Public Parcel Data & Maps
  • County
    Island County
  • Parcel #
    S829000000596
  • County Website
    Unspecified
  • County Parcel Map
    Unspecified
  • County GIS Map
    Unspecified
  • About
    County links provided by Mainview LLC
Schools
  • School District
    South Whidbey Island
  • Elementary
    Unspecified
  • Middle
    Unspecified
  • High School
    Unspecified
HOA
  • HOA Dues
    Unspecified
  • Fees Assessed
    Unspecified
  • HOA Dues Include
    Unspecified
  • HOA Contact
    Unspecified
  • Management Contact
Parking
  • Covered
    3-Car
  • Types
    Attached Garage
    Detached Garage
  • Has Garage
    Yes
  • Nbr of Assigned Spaces
    3
Views
  • Bay
    Partial
    Sound
Construction
  • Year Built
    1996
  • Home Builder
    Unspecified
Cooling
  • Includes
    Heat Pump
Heating
  • Includes
    Heat Pump
    Wall Furnace
Interior
  • Flooring
    Ceramic Tile
    Laminate
    Vinyl Plank
    Carpet
  • Features
    Dbl Pane/Storm Window
    Dining Room
    Fireplace
    Vaulted Ceiling(s)
    Walk-In Closet(s)
    Water Heater
    Wired for Generator
Property
  • Lot Features
    Dead End Street
  • Site Features
    Cable TV
    Deck
    Fenced-Partially
    High Speed Internet
    Outbuildings
    Propane
    Shop
Appliances
  • Included
    Dishwasher
    Dryer
    Microwave
    Refrigerator
    Washer
Terms
  • 3rd Party Approval Required)
    No
  • Bank Owned (REO)
    No
  • Complex FHA Availability
    Unspecified
  • Potential Terms
    Cash
    Conventional
    FHA
    VA Loan
Utilities
  • Energy
    Electric
    Propane
  • Sewer
    Septic Tank
  • Water Source
    Community
Additional Info
  • Waterfront
    No
  • Air Conditioning (A/C)
    Yes
  • Buyer Broker's Compensation
    2.5%
  • MLS Area #
    Area 811
  • Number of Photos
    40
  • Last Modification Time
    Monday, April 27, 2026 11:42 AM
  • System Listing ID
    5528322
Update Info
  • Price Reduction
    2026-04-28 06:44:46
  • First For Sale
    2026-03-12 11:13:59
Listing details based on information submitted to the MLS GRID as of Monday, April 27, 2026 11:42 AM. All data is obtained from various sources and may not have been verified by broker or MLS GRID. Supplied Open House Information is subject to change without notice. All information should be independently reviewed and verified for accuracy. Properties may or may not be listed by the office/agent presenting the information.
View
Sort

Sharing

 
For Sale 56 Days Online
$675,000     ▼ Price Reduction $8K
2 BR    2.25 BA    1,656 SQFT  
Offer Review: Anytime
NWMLS #2491415. Susan Perry, Windermere Whidbey Island
Map
 
Listing information is provided by the listing agent except as follows: BuilderB indicates that our system has grouped this listing under a home builder name that doesn't match the name provided by the listing broker. DevelopmentD indicates that our system has grouped this listing under a development name that doesn't match the name provided by the listing broker.