to
Reset
Houses
Townhouses
Condos
Land
Price
to
SQFT
to
Bdrms
to
Baths
to
Lot
to
Yr Built
to
Sold
Listed within...
Listed at least...
Offer Review
New Construction
Waterfront
Short-Sales
REO
Parking
to
Unit Flr
to
Unit Nbr
Listings
Neighborhoods
Complexes
Developments
Cities
Counties
Zip Codes
Neighborhood · Condo · Development
School District
Zip Code
City
County
Builder
Listing Numbers
Broker LAG
Boundary Lines
Labels
View
Sort
Pending Went pending in 4 days
$1,196,000
5 Bedrooms
4.75 Bathrooms
3,464 Sqft House
Built 1966
8,343 Sqft Lot
3-Car Garage
PENDING SALE. This listing went Pending on March 16, 2026

Some pending sales don't become final. Contact Us if this property is really important to you so we can check on it right now. The seller has reached an agreement with a buyer to sell this property. If things go as planned, the sale will become final in the near future. The buyer and seller have agreed on a price but it's not public until the sale closes. The last published list price was $1,196,000.
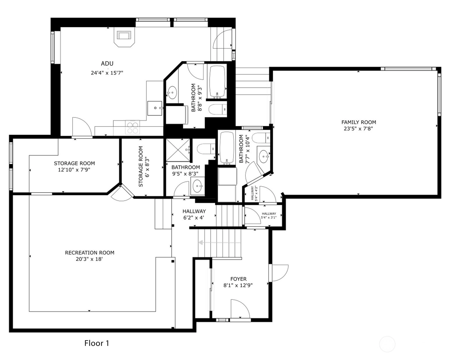
This charming and spacious North Seattle mid-century home features 4 bedrooms and 2 bathrooms on the same level, offering comfortable space for guests, and a home office. Located on a quiet Victory Heights street adjacent to the Kingfisher Natural Area, the home is minutes from the revitalized Northgate district and Northgate Light Rail, providing convenient access to shopping, dining, entertainment, and an easy commute to downtown Seattle. A rare integrated ADU with a private entrance offers exceptional flexibility for multi-generational living, rental income, guest quarters, or a private work-from-home setup. Designed for both everyday living and entertainment, the home includes a large deck off the kitchen, a spacious bonus room ideal for movie nights or gatherings, and a finished basement with generous storage. Outside, enjoy a peaceful backyard with a covered gazebo, plus sought-after urban features including RV or boat parking, a rare large driveway and EV charging capability. This home offers a unique blend of space, flexibility, and convenience.
Offer Review Date
This listing's offer review date was Monday, March 16, 2026.
Listing source NWMLS MLS #
2490575
Listed by
Luiz Camargo, Windermere Bellevue Commons
Tyler Mayclin, Windermere Bellevue Commons
Contact our
Victory Heights
Real Estate Lead
John L. Scott
Phone...
Bedroom & Bathroom Layout
THIRD
BDRM
BDRM
BDRM
BDRM
FULL
BATH
FULL
BATH
MAIN
FULL
BATH
¾
BATH
LOWER
BDRM
FULL
BATH
Property History
Mar 16, 2026
Went Pending
$1,196,000
NWMLS #2490575
Mar 12, 2026
Listed
$1,196,000
NWMLS #2490575
Oct 22, 2025
Price Reduction arrow_downward
$1,248,000
NWMLS #2435229
Sep 25, 2025
Listed
$1,280,000
NWMLS #2435229
May 27, 2021
Sold
$1,150,000
More
Listing Details
  • Status
    Pending
  • Last Listed Price
    $1,196,000
  • Original Price
    Same as current
  • List Date
    March 12, 2026
  • Last Status Change
    March 17, 2026
  • Last Update
    March 18, 2026
  • Days on Market
    20 Days
  • Cumulative DOM
    4 Days
  • Pending Date
    March 16, 2026
  • Days to go Pending
    4
  • $/sqft (Total)
    $345/sqft
  • $/sqft (Finished)
    $345/sqft
  • Listing Source
  • MLS Number
    2490575
  • Listing Broker
    Luiz Camargo
  • Listing Office
    Windermere Bellevue Commons
Monthly Payment Estimate
  • Principal and Interest
    $6,270 / month
  • Property Taxes
    $864 / month
  • Homeowners Insurance
    $232 / month
  • TOTAL
    $7,366 / month

  • based on 20% down
    ($239,200)
  • and a
    6.85% Interest Rate
  • About:
    All calculations are estimates only and provided by Mainview LLC. Actual amounts will vary.
House Details
  • Sqft (Total)
    3,464 sqft
  • Sqft (Finished)
    3,464 sqft
  • Sqft (Unfinished)
    None
  • Property Type
    House
  • Sub Type
    Multi Level
  • Bedrooms
    5 Bedrooms
  • Bathrooms
    4.75 Bathrooms
  • Lot
    8,343 sqft Lot
  • Lot Size Source
    King County Records
  • Lot #
    Unspecified
  • Project
    Unspecified
  • Total Stories
    Unspecified
  • Basement
    Daylight
    Partially Finished
  • Sqft Source
    Appraisal
Property Tax Info
  • 2025 Property Taxes
    $10,373 / year
  • No Senior Exemption
Public Parcel Data & Maps
Schools
  • School District
    Seattle
  • Elementary
    Sacajawea
  • Middle
    Jane Addams
  • High School
    Nathan Hale High
HOA
  • HOA Dues
    Unspecified
  • Fees Assessed
    Unspecified
  • HOA Dues Include
    Unspecified
  • HOA Contact
    Unspecified
  • Management Contact
Parking
  • Covered
    3-Car
  • Types
    Detached Carport
    Driveway
    Attached Garage
    RV Parking
  • Has Garage
    Yes
  • Nbr of Assigned Spaces
    3
Views
  • Territorial
Construction
  • Year Built
    1966
  • Home Builder
    Unspecified
Cooling
  • Includes
    None
Heating
  • Includes
    Forced Air
Interior
  • Flooring
    Engineered Hardwood
    Hardwood
    Laminate
  • Features
    Second Kitchen
    Bath Off Primary
    Dbl Pane/Storm Window
    Dining Room
    Fireplace
    Water Heater
Property
  • Lot Features
    Paved
  • Site Features
    Cabana/Gazebo
    Cable TV
    Deck
    Electric Car Charging
    Fenced-Fully
    Gas Available
    High Speed Internet
    Patio
    RV Parking
Appliances
  • Included
    Dishwasher
    Disposal
    Dryer
    Microwave
    Refrigerator
    Stove(s)/Range(s)
    Washer
Terms
  • 3rd Party Approval Required)
    No
  • Bank Owned (REO)
    No
  • Complex FHA Availability
    Unspecified
  • Potential Terms
    Cash
    Conventional
Utilities
  • Energy
    Electric
    Natural Gas
  • Sewer
    Available
    Sewer Connected
  • Water Source
    Public
Additional Info
  • Waterfront
    No
  • Air Conditioning (A/C)
    No
  • Buyer Broker's Compensation
    2.5%
  • MLS Area #
    Area 710
  • Number of Photos
    30
  • Last Modification Time
    Wednesday, March 18, 2026 12:27 PM
  • System Listing ID
    5528846
Update Info
  • Pending Or Ctg
    2026-03-16 18:59:43
  • First For Sale
    2026-03-12 17:45:46
Listing details based on information submitted to the MLS GRID as of Wednesday, March 18, 2026 12:27 PM. All data is obtained from various sources and may not have been verified by broker or MLS GRID. Supplied Open House Information is subject to change without notice. All information should be independently reviewed and verified for accuracy. Properties may or may not be listed by the office/agent presenting the information.
View
Sort

Sharing

 
Pending March 16, 2026
$1,196,000  
5 BR    4.75 BA    3,464 SQFT  
NWMLS #2490575. Luiz Camargo, Windermere Bellevue Commons
Map
 
Listing information is provided by the listing agent except as follows: BuilderB indicates that our system has grouped this listing under a home builder name that doesn't match the name provided by the listing broker. DevelopmentD indicates that our system has grouped this listing under a development name that doesn't match the name provided by the listing broker.