to
Reset
Houses
Townhouses
Condos
Land
Price
to
SQFT
to
Bdrms
to
Baths
to
Lot
to
Yr Built
to
Sold
Listed within...
Listed at least...
Offer Review
New Construction
Waterfront
Short-Sales
REO
Parking
to
Unit Flr
to
Unit Nbr
Listings
Neighborhoods
Complexes
Developments
Cities
Counties
Zip Codes
Neighborhood · Condo · Development
School District
Zip Code
City
County
Builder
Listing Numbers
Broker LAG
Boundary Lines
Labels
View
Sort
Pending Went pending in 4 days
$449,000
4 Bedrooms
1.75 Bathrooms
1,899 Sqft House
Built 1948
7,501 Sqft Lot
1-Car Garage
The seller has reached an agreement with a buyer to sell this property. If things go as planned, the sale will become final in the near future. The buyer and seller have agreed on a price but it's not public until the sale closes. The last published list price was $449,000.
Welcome to your dream home in Walla Walla! This immaculate rambler features a fully finished basement and is situated in a desirable area, offering two spacious bedrooms and a full bath on the main level, along with a cozy kitchen nook. The finished basement includes an additional living area, two more bedrooms, and a three-quarter bath. You’ll love the convenience of a two-car garage—one attached and another detached with alley access, complete with a bonus shop area. Enjoy energy efficiency with brand new solar panels, a newer roof with full gutters, updated electrical, and a newer furnace and heat pump. The fully irrigated yard is adorned with beautiful perennials, and the detached garage presents potential for an accessory dwelling unit (ADU). This home is a true gem with versatile options, so don’t miss your chance to see it in person!
Offer Review
No offer review date was specified
Listing source NWMLS MLS #
2492703
Listed by
Kristine Connolly, Coldwell Banker Tomlinson
We don't currently have a buyer representative in this area. To be sure that you're getting objective advice, we always suggest buyers work with their own agent, someone who is not affiliated with the seller.
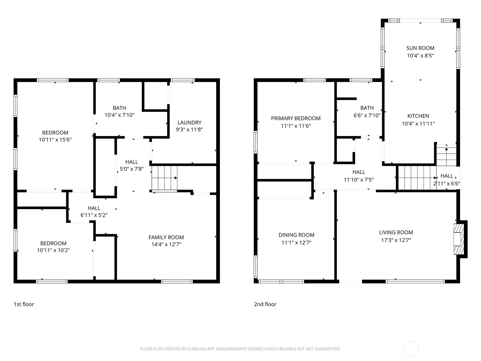
Bedroom & Bathroom Layout
MAIN
BDRM
BDRM
FULL
BATH
LOWER
BDRM
BDRM
¾
BATH
Property History
Mar 18, 2026
Went Pending
$449,000
NWMLS #2492703
Mar 14, 2026
Listed
$449,000
NWMLS #2492703
Oct 14, 2020
Sold
$349,900
NWMLS #1703616
More
Listing Details
  • Status
    Pending
  • Last Listed Price
    $449,000
  • Original Price
    Same as current
  • List Date
    March 14, 2026
  • Last Status Change
    March 18, 2026
  • Last Update
    March 18, 2026
  • Days on Market
    8 Days
  • Cumulative DOM
    4 Days
  • Pending Date
    March 18, 2026
  • Days to go Pending
    4
  • $/sqft (Total)
    $236/sqft
  • $/sqft (Finished)
    $236/sqft
  • Listing Source
  • MLS Number
    2492703
  • Listing Broker
    Kristine Connolly
  • Listing Office
    Coldwell Banker Tomlinson
Monthly Payment Estimate
  • Principal and Interest
    $2,354 / month
  • Property Taxes
    $304 / month
  • Homeowners Insurance
    $98 / month
  • TOTAL
    $2,756 / month

  • based on 20% down
    ($89,800)
  • and a
    6.85% Interest Rate
  • About:
    All calculations are estimates only and provided by Mainview LLC. Actual amounts will vary.
House Details
  • Sqft (Total)
    1,899 sqft
  • Sqft (Finished)
    1,899 sqft
  • Sqft (Unfinished)
    None
  • Property Type
    House
  • Sub Type
    1 Story + Basement
  • Bedrooms
    4 Bedrooms
  • Bathrooms
    1.75 Bathrooms
  • Lot
    7,501 sqft Lot
  • Lot Size Source
    Assesorr
  • Lot #
    Unspecified
  • Project
    Unspecified
  • Total Stories
    2 stories
  • Basement
    Finished
  • Sqft Source
    Public
Property Tax Info
  • 2025 Property Taxes
    $3,643 / year
  • No Senior Exemption
Public Parcel Data & Maps
  • County
    Walla Walla County
  • Parcel #
    360721730514
  • County Website
    Unspecified
  • County Parcel Map
    Unspecified
  • County GIS Map
    Unspecified
  • About
    County links provided by Mainview LLC
Schools
  • School District
    Walla Walla
  • Elementary
    Unspecified
  • Middle
    Unspecified
  • High School
    Unspecified
HOA
  • HOA Dues
    Unspecified
  • Fees Assessed
    Unspecified
  • HOA Dues Include
    Unspecified
  • HOA Contact
    Unspecified
  • Management Contact
Community Features
  • Community Features
    Park
Parking
  • Covered
    1-Car
  • Types
    Attached Garage
    Detached Garage
    RV Parking
  • Has Garage
    Yes
  • Nbr of Assigned Spaces
    1
Construction
  • Year Built
    1948
  • Home Builder
    Unspecified
Cooling
  • Includes
    Central Air
Heating
  • Includes
    Forced Air
    Heat Pump
Interior
  • Flooring
    Hardwood
    Vinyl
  • Features
    Dbl Pane/Storm Window
Property
  • Site Features
    Fenced-Fully
    Gas Available
    Irrigation
    Outbuildings
    RV Parking
    Shop
    Sprinkler System
Appliances
  • Included
    Dishwasher
    Dryer
    Refrigerator
    Stove(s)/Range(s)
    Washer
Terms
  • 3rd Party Approval Required)
    No
  • Bank Owned (REO)
    No
  • Complex FHA Availability
    Unspecified
  • Potential Terms
    Cash
    Conventional
    FHA
    VA Loan
Utilities
  • Energy
    Electric
    Solar (Unspecified)
  • Sewer
    Sewer Connected
  • Water Source
    Public
Additional Info
  • Waterfront
    No
  • Air Conditioning (A/C)
    Yes
  • Buyer Broker's Compensation
    %
  • MLS Area #
    Area 933
  • Number of Photos
    31
  • Last Modification Time
    Wednesday, March 18, 2026 3:57 PM
  • System Listing ID
    5529508
Update Info
  • Pending Or Ctg
    2026-03-18 16:38:46
  • First For Sale
    2026-03-14 08:55:08
Listing details based on information submitted to the MLS GRID as of Wednesday, March 18, 2026 3:57 PM. All data is obtained from various sources and may not have been verified by broker or MLS GRID. Supplied Open House Information is subject to change without notice. All information should be independently reviewed and verified for accuracy. Properties may or may not be listed by the office/agent presenting the information.
View
Sort

Sharing

 
Pending March 18, 2026
$449,000  
4 BR    1.75 BA    1,899 SQFT  
NWMLS #2492703. Kristine Connolly, Coldwell Banker Tomlinson
Map
 
Listing information is provided by the listing agent except as follows: BuilderB indicates that our system has grouped this listing under a home builder name that doesn't match the name provided by the listing broker. DevelopmentD indicates that our system has grouped this listing under a development name that doesn't match the name provided by the listing broker.