to
Reset
Houses
Townhouses
Condos
Land
Price
to
SQFT
to
Bdrms
to
Baths
to
Lot
to
Yr Built
to
Sold
Listed within...
Listed at least...
Offer Review
New Construction
Waterfront
Short-Sales
REO
Parking
to
Unit Flr
to
Unit Nbr
Listings
Neighborhoods
Complexes
Developments
Cities
Counties
Zip Codes
Neighborhood · Condo · Development
School District
Zip Code
City
County
Builder
Listing Numbers
Broker LAG
Boundary Lines
Labels
View
Sort
Sold Closed April 23, 2026
$1,035,000
3 Bedrooms
2.5 Bathrooms
2,040 Sqft House
Built 2006
2,923 Sqft Lot
2-Car Garage
HOA Dues $462 / month
SALE HISTORY
List price was $998,000
It took 5 days to go pending.
Then 30 days to close at $1,035,000
Closed at $507/SQFT.
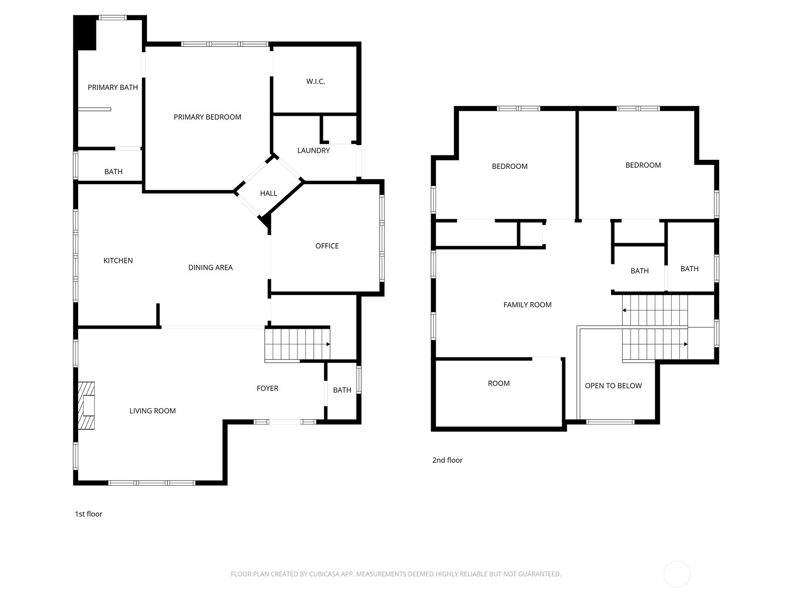
Welcome to this light-filled 3-bedroom, 2.5-bath residence with a dedicated office and spacious bonus room, ideally situated on a prime corner lot in the highly sought-after Issaquah Highlands community. Designed for comfort and functionality, this home features a desirable main-floor primary suite and an open-concept layout perfect for everyday living and entertaining. The inviting living room showcases a cozy gas fireplace, flowing seamlessly into the formal dining room and well-appointed kitchen complete with granite countertops, center island, gas cooking, and abundant cabinetry. French doors lead to a private office, ideal for working from home. The main-floor primary suite offers a large walk-in closet and spa-inspired en suite bath with soaking tub, separate shower, and double vanity. Upstairs, you’ll find a generous bonus room perfect for play or hobbies and two additional bedrooms. Upgrades include, mini-split systems for year-round AC comfort, beautiful Acacia engineered hardwood floors and crown molding. Enjoy unmatched convenience with walkable access to shops, restaurants, theater, parks, and top-rated schools in the highly acclaimed Issaquah School District. Two garage bays provide ample parking and storage. Pre-inspected by sellers. This exceptional home offers the perfect blend of location, layout, and lifestyle — truly the ideal place to call home.
Offer Review
No offer review date was specified
Listing source NWMLS MLS #
2485511
Listed by
Lynn I. Downing, John L. Scott, Inc.
Angela Nebeker, John L. Scott, Inc.
Buyer's broker
Roopika Mehra, John L. Scott, Inc.
Contact our
Issaquah
Real Estate Lead
John L. Scott
Phone...
Bedroom & Bathroom Layout
SECOND
BDRM
BDRM
FULL
BATH
MAIN
BDRM
FULL
BATH
½
BATH
Property History
Apr 23, 2026
Sold
$1,035,000
NWMLS #2485511 Annualized 6.7% / yr
Mar 24, 2026
Went Pending
$998,000
NWMLS #2485511
Mar 19, 2026
Listed
$998,000
NWMLS #2485511
Feb 20, 2012
Sold
$413,000
More
Listing Details
  • Sale Price
    $1,035,000
  • Closing Date
    April 23, 2026
  • Last List Price
    $998,000
  • Original Price
    Same
  • List Date
    March 19, 2026
  • Pending Date
    March 24, 2026
  • Days to go Pending
    5 days
  • $/sqft (Total)
    $507/sqft
  • $/sqft (Finished)
    $507/sqft
  • Listing Source
  • MLS Number
    2485511
  • Listing Broker
    Lynn I. Downing
  • Listing Office
    John L. Scott, Inc.
  • Buyer's Broker
    Roopika Mehra
  • Buyer Broker's Firm
    John L. Scott, Inc.
Monthly Payment Estimate
  • Principal and Interest
    $5,426 / month
  • HOA
    $462 / month
  • Property Taxes
    $695 / month
  • Homeowners Insurance
    $202 / month
  • TOTAL
    $6,785 / month

  • based on 20% down
    ($207,000)
  • and a
    6.85% Interest Rate
  • About:
    All calculations are estimates only and provided by Mainview LLC. Actual amounts will vary.
House Details
  • Sqft (Total)
    2,040 sqft
  • Sqft (Finished)
    2,040 sqft
  • Sqft (Unfinished)
    None
  • Property Type
    House
  • Sub Type
    2 Story
  • Bedrooms
    3 Bedrooms
  • Bathrooms
    2.5 Bathrooms
  • Lot
    2,923 sqft Lot
  • Lot Size Source
    Matrix
  • Lot #
    Unspecified
  • Project
    Unspecified
  • Total Stories
    2 stories
  • Basement
    None
  • Sqft Source
    Matrix
Property Tax Info
  • 2025 Property Taxes
    $8,337 / year
  • No Senior Exemption
Public Parcel Data & Maps
Schools
  • School District
    Issaquah
  • Elementary
    Grand Ridge Elem
  • Middle
    Pacific Cascade Mid
  • High School
    Issaquah High
HOA
  • HOA Dues
    $462 / month
  • Fees Assessed
    Monthly
  • HOA Dues Include
    Common Area Maintenance
    Internet
    Lawn Service
    See Remarks
    Trash
  • HOA Contact
    Unspecified
  • Management Contact
    Unspecified
Community Features
  • Community Features
    Athletic Court
    CCRs
    Park
    Playground
    Trail(s)
Parking
  • Covered
    2-Car
  • Types
    Detached Garage
  • Has Garage
    Yes
  • Nbr of Assigned Spaces
    2
Views
  • Territorial
Construction
  • Year Built
    2006
  • Home Builder
    Unspecified
Cooling
  • Includes
    Ductless
Heating
  • Includes
    Ductless
    Radiant
    See Remarks
Interior
  • Flooring
    Ceramic Tile
    Engineered Hardwood
  • Features
    Bath Off Primary
    Ceiling Fan(s)
    Dbl Pane/Storm Window
    Dining Room
    Fireplace
    French Doors
    High Tech Cabling
    Vaulted Ceiling(s)
    Walk-In Closet(s)
Property
  • Lot Features
    Corner Lot
    Paved
    Sidewalk
  • Site Features
    Cable TV
    Gas Available
    High Speed Internet
    Irrigation
    Patio
    Sprinkler System
Appliances
  • Included
    Dishwasher
    Disposal
    Dryer
    Microwave
    Refrigerator
    Stove(s)/Range(s)
    Washer
Terms
  • Bank Owned (REO)
    No
Utilities
  • Energy
    Electric
    Natural Gas
  • Sewer
    Sewer Connected
  • Water Source
    Public
Additional Info
  • Waterfront
    No
  • Air Conditioning (A/C)
    Yes
  • Buyer Broker's Compensation
    2.5%
  • MLS Area #
    Area 540
  • Number of Photos
    28
  • Last Modification Time
    Thursday, April 23, 2026 3:56 PM
  • System Listing ID
    5530746
Update Info
  • Closed
    2026-04-28 06:42:04
  • Pending Or Ctg
    2026-03-24 22:28:44
  • First For Sale
    2026-03-19 09:14:25
Listing details based on information submitted to the MLS GRID as of Thursday, April 23, 2026 3:56 PM. All data is obtained from various sources and may not have been verified by broker or MLS GRID. Supplied Open House Information is subject to change without notice. All information should be independently reviewed and verified for accuracy. Properties may or may not be listed by the office/agent presenting the information.
View
Sort

Sharing

 
Sold April 23, 2026
$1,035,000   $998,000
3 BR    2.5 BA    2,040 SQFT  
NWMLS #2485511. Lynn I. Downing, John L. Scott, Inc.
Map
 
Listing information is provided by the listing agent except as follows: BuilderB indicates that our system has grouped this listing under a home builder name that doesn't match the name provided by the listing broker. DevelopmentD indicates that our system has grouped this listing under a development name that doesn't match the name provided by the listing broker.