to
Reset
Houses
Townhouses
Condos
Land
Price
to
SQFT
to
Bdrms
to
Baths
to
Lot
to
Yr Built
to
Sold
Listed within...
Listed at least...
Offer Review
New Construction
Waterfront
Short-Sales
REO
Parking
to
Unit Flr
to
Unit Nbr
Listings
Neighborhoods
Complexes
Developments
Cities
Counties
Zip Codes
Neighborhood · Condo · Development
School District
Zip Code
City
County
Builder
Listing Numbers
Broker LAG
Boundary Lines
Labels
View
Sort
Pending Went pending in 41 days
$420,000
Originally $435,000
4 Bedrooms
1.5 Bathrooms
2,472 Sqft House (2,248 Finished)
Built 1898
10,999 Sqft Lot
1-Car Garage
The seller has reached an agreement with a buyer to sell this property. If things go as planned, the sale will become final in the near future. The buyer and seller have agreed on a price but it's not public until the sale closes. The last published list price was $420,000.
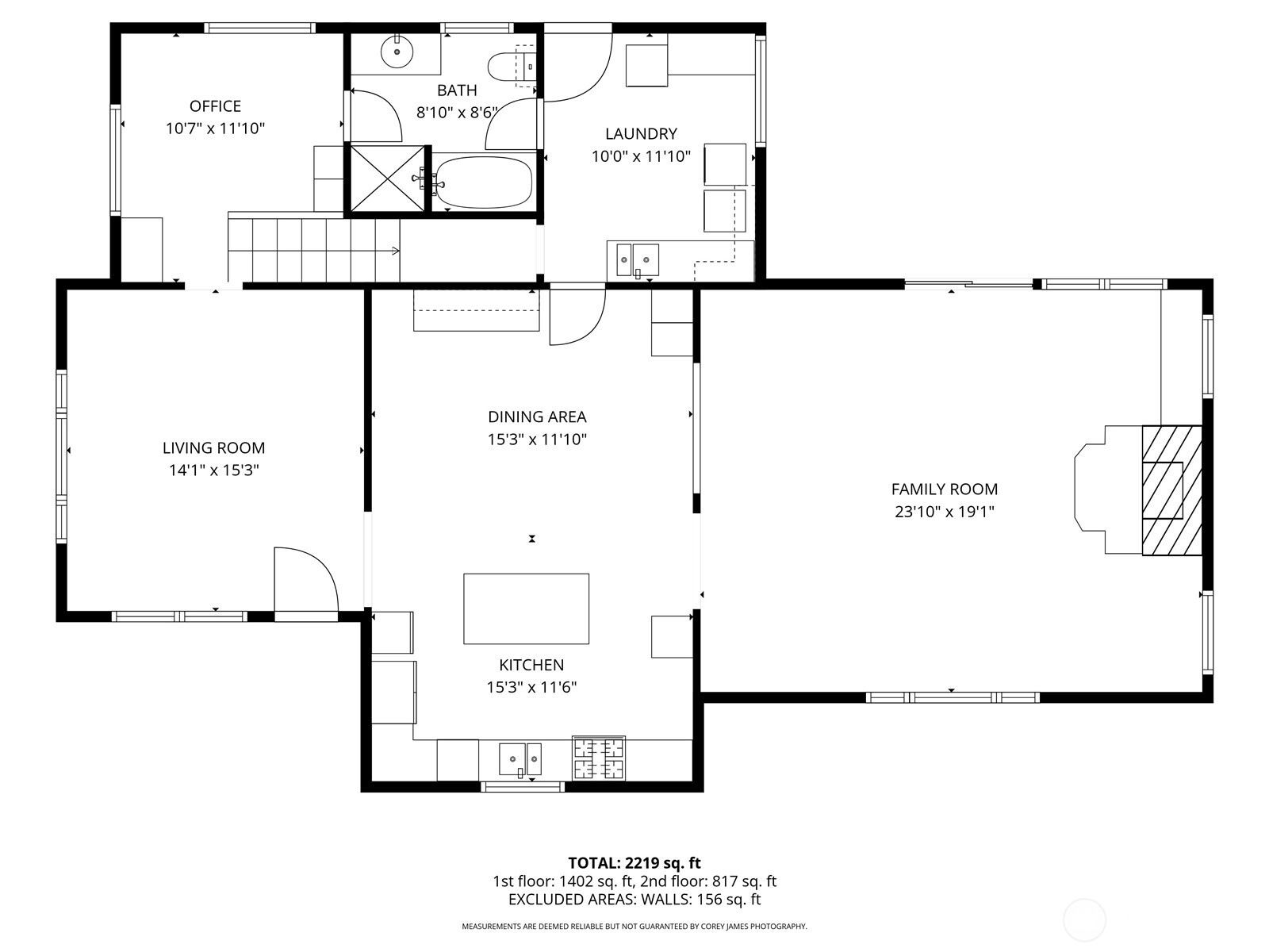
Charming historic home originally built in 1898, offering over 2200sf of comfortable living space! This spacious two story features 4 bedrooms upstairs along with a convenient half bath. The main level offers multiple gathering areas including a welcoming living room with a wood burning stove next to a beautifully updated kitchen with an adjoiing dining area with stunned beamed ceilings in both areas! Added flexibility on the main with a cozy sitting room, office, full bathroom and laundry. The unfinished basement provides additional storing space. Step outside to a fully fenced, oversized corner lot designed for enjoyment complete with a covered patio, oversized greenhouse, stunning mature landscaping, a well for irrigation, gazebo, covered firepit area and storages spaces and complete with an oversized 1 car garage with shop area. Recent updates include updated kitchen, a new sewer line, modern amenities are a heatpump with ac and an extremely well maintained one generation, rare Castle Rock opportunity.
Offer Review
No offer review date was specified
Listing source NWMLS MLS #
2493324
Listed by
Briana Guthrie, Realty One Group Pacifica
We don't currently have a buyer representative in this area. To be sure that you're getting objective advice, we always suggest buyers work with their own agent, someone who is not affiliated with the seller.
Bedroom & Bathroom Layout
SECOND
BDRM
BDRM
BDRM
BDRM
½
BATH
MAIN
FULL
BATH
LOWER
Property History
Apr 29, 2026
Went Pending
$420,000
NWMLS #2493324
Apr 02, 2026
Price Reduction arrow_downward
$420,000
NWMLS #2493324
Mar 19, 2026
Listed
$435,000
NWMLS #2493324
More
Listing Details
  • Status
    Pending
  • Last Listed Price
    $420,000
  • Original Price
    $435,000
  • List Date
    March 19, 2026
  • Last Status Change
    April 29, 2026
  • Last Update
    April 29, 2026
  • Days on Market
    49 Days
  • Cumulative DOM
    41 Days
  • Pending Date
    April 29, 2026
  • Days to go Pending
    41
  • $/sqft (Total)
    $170/sqft
  • $/sqft (Finished)
    $187/sqft
  • Listing Source
  • MLS Number
    2493324
  • Listing Broker
    Briana Guthrie
  • Listing Office
    Realty One Group Pacifica
Monthly Payment Estimate
  • Principal and Interest
    $2,202 / month
  • Property Taxes
    $231 / month
  • Homeowners Insurance
    $94 / month
  • TOTAL
    $2,527 / month

  • based on 20% down
    ($84,000)
  • and a
    6.85% Interest Rate
  • About:
    All calculations are estimates only and provided by Mainview LLC. Actual amounts will vary.
House Details
  • Sqft (Total)
    2,472 sqft
  • Sqft (Finished)
    2,248 sqft
  • Sqft (Unfinished)
    224 sqft
  • Property Type
    House
  • Sub Type
    2 Story
  • Bedrooms
    4 Bedrooms
  • Bathrooms
    1.5 Bathrooms
  • Lot
    10,999 sqft Lot
  • Lot Size Source
    title
  • Lot #
    Unspecified
  • Project
    Unspecified
  • Total Stories
    2 stories
  • Basement
    Unfinished
  • Sqft Source
    county
Property Tax Info
  • 2026 Property Taxes
    $2,770 / year
  • No Senior Exemption
Public Parcel Data & Maps
  • County
    Cowlitz County
  • Parcel #
    3039660
  • County Website
    Unspecified
  • County Parcel Map
    Unspecified
  • County GIS Map
    Unspecified
  • About
    County links provided by Mainview LLC
Schools
  • School District
    Castle Rock
  • Elementary
    Castle Rock Elem
  • Middle
    Castle Rock Mid
  • High School
    Castle Rock High
HOA
  • HOA Dues
    Unspecified
  • Fees Assessed
    Unspecified
  • HOA Dues Include
    Unspecified
  • HOA Contact
    Unspecified
  • Management Contact
Parking
  • Covered
    1-Car
  • Types
    Detached Garage
    Off Street
  • Has Garage
    Yes
  • Nbr of Assigned Spaces
    5
Views
  • Territorial
Construction
  • Year Built
    1898
  • Home Builder
    Unspecified
Cooling
  • Includes
    Forced Air
    Heat Pump
Heating
  • Includes
    Forced Air
    Heat Pump
Interior
  • Flooring
    Laminate
    Vinyl Plank
    Carpet
  • Features
    Ceiling Fan(s)
    Dbl Pane/Storm Window
    Dining Room
    Fireplace
    Security System
    Water Heater
Property
  • Lot Features
    Corner Lot
  • Site Features
    Cabana/Gazebo
    Fenced-Fully
Appliances
  • Included
    Dishwasher
    Refrigerator
    Stove(s)/Range(s)
Terms
  • 3rd Party Approval Required)
    No
  • Bank Owned (REO)
    No
  • Complex FHA Availability
    Unspecified
  • Potential Terms
    Cash
    Conventional
    FHA
    State Bond
    USDA Loan
    VA Loan
Utilities
  • Energy
    Electric
    Wood
  • Sewer
    Sewer Connected
  • Water Source
    Public
Additional Info
  • Waterfront
    No
  • Air Conditioning (A/C)
    Yes
  • Buyer Broker's Compensation
    2.5%
  • MLS Area #
    Area 414
  • Number of Photos
    34
  • Last Modification Time
    Wednesday, April 29, 2026 10:42 AM
  • System Listing ID
    5530951
Update Info
  • Pending Or Ctg
    2026-04-29 10:51:37
  • Price Reduction
    2026-04-02 12:07:46
  • First For Sale
    2026-03-19 11:05:57
Listing details based on information submitted to the MLS GRID as of Wednesday, April 29, 2026 10:42 AM. All data is obtained from various sources and may not have been verified by broker or MLS GRID. Supplied Open House Information is subject to change without notice. All information should be independently reviewed and verified for accuracy. Properties may or may not be listed by the office/agent presenting the information.
View
Sort

Sharing

 
Pending April 29, 2026
$420,000  
4 BR    1.5 BA    2,472 SQFT  
NWMLS #2493324. Briana Guthrie, Realty One Group Pacifica
Map
 
Listing information is provided by the listing agent except as follows: BuilderB indicates that our system has grouped this listing under a home builder name that doesn't match the name provided by the listing broker. DevelopmentD indicates that our system has grouped this listing under a development name that doesn't match the name provided by the listing broker.