to
Reset
Houses
Townhouses
Condos
Land
Price
to
SQFT
to
Bdrms
to
Baths
to
Lot
to
Yr Built
to
Sold
Listed within...
Listed at least...
Offer Review
New Construction
Waterfront
Short-Sales
REO
Parking
to
Unit Flr
to
Unit Nbr
Listings
Neighborhoods
Complexes
Developments
Cities
Counties
Zip Codes
Neighborhood · Condo · Development
School District
Zip Code
City
County
Builder
Listing Numbers
Broker LAG
Boundary Lines
Labels
View
Sort
Sold Closed April 23, 2026
$580,000
4 Bedrooms
3 Bathrooms
2,294 Sqft House
Built 1977
10,000 Sqft Lot
2-Car Garage
SALE HISTORY
List price was $575,000
It took 6 days to go pending.
Then 29 days to close at $580,000
Closed at $253/SQFT.
Experience the best of the Long Beach Peninsula in this stunning, custom 4-bedroom, 3-bath retreat perfectly situated in the heart of town. Just a quarter-mile stroll from the scenic Discovery Trail and vibrant downtown, this home places you steps away from beachfront dining and world-class local events like the International Kite Festival and Razor Clam Festival. Inside, the home radiates character with exquisite custom woodworking, new paint, and upgraded lighting, all bathed in natural light from large windows. The versatile layout features two spacious living rooms with cozy pellet stoves—one of which doubles as an ideal guest suite with a full bath—plus a chef’s kitchen equipped with a double oven, gas stove, and newly updated appliances. Beyond the interior, you'll find an oversized lot with manicured landscaping and a heated, powered bonus shed perfect for a home office or creative studio. Complete with a large 2-car garage for beach toys this property truly offers the ultimate coastal lifestyle.
Offer Review
No offer review date was specified
Listing source NWMLS MLS #
2490753
Listed by
Bev Blume, Keller Williams Realty Elite
Buyer's broker
Heather Soule, Lighthouse Realty
We don't currently have a buyer representative in this area. To be sure that you're getting objective advice, we always suggest buyers work with their own agent, someone who is not affiliated with the seller.
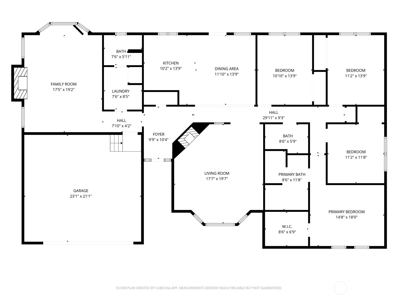
Bedroom & Bathroom Layout
MAIN
BDRM
BDRM
BDRM
BDRM
FULL
BATH
FULL
BATH
FULL
BATH
Property History
Apr 23, 2026
Sold
$580,000
NWMLS #2490753 Annualized 9.3% / yr
Mar 25, 2026
Went Pending
$575,000
NWMLS #2490753
Mar 19, 2026
Listed
$575,000
NWMLS #2490753
Aug 02, 2020
Sold
$349,000
More
Listing Details
  • Sale Price
    $580,000
  • Closing Date
    April 23, 2026
  • Last List Price
    $575,000
  • Original Price
    Same
  • List Date
    March 19, 2026
  • Pending Date
    March 25, 2026
  • Days to go Pending
    6 days
  • $/sqft (Total)
    $253/sqft
  • $/sqft (Finished)
    $253/sqft
  • Listing Source
  • MLS Number
    2490753
  • Listing Broker
    Bev Blume
  • Listing Office
    Keller Williams Realty Elite
  • Buyer's Broker
    Heather Soule
  • Buyer Broker's Firm
    Lighthouse Realty
Monthly Payment Estimate
  • Principal and Interest
    $3,040 / month
  • Property Taxes
    $351 / month
  • Homeowners Insurance
    $119 / month
  • TOTAL
    $3,510 / month

  • based on 20% down
    ($116,000)
  • and a
    6.85% Interest Rate
  • About:
    All calculations are estimates only and provided by Mainview LLC. Actual amounts will vary.
House Details
  • Sqft (Total)
    2,294 sqft
  • Sqft (Finished)
    2,294 sqft
  • Sqft (Unfinished)
    None
  • Property Type
    House
  • Sub Type
    1 Story
  • Bedrooms
    4 Bedrooms
  • Bathrooms
    3 Bathrooms
  • Lot
    10,000 sqft Lot
  • Lot Size Source
    Public Records
  • Lot #
    Unspecified
  • Project
    Unspecified
  • Total Stories
    1 story
  • Sqft Source
    Tax
Property Tax Info
  • 2025 Property Taxes
    $4,209 / year
  • No Senior Exemption
Public Parcel Data & Maps
  • County
    Pacific County
  • Parcel #
    10112123220
  • County Website
    Unspecified
  • County Parcel Map
    Unspecified
  • County GIS Map
    Unspecified
  • About
    County links provided by Mainview LLC
Schools
  • School District
    Ocean Beach
  • Elementary
    Long Beach Elem
  • Middle
    Hilltop Middle
  • High School
    Ilwaco Alt High
HOA
  • HOA Dues
    Unspecified
  • Fees Assessed
    Unspecified
  • HOA Dues Include
    Unspecified
  • HOA Contact
    Unspecified
  • Management Contact
    Unspecified
Parking
  • Covered
    2-Car
  • Types
    Driveway
    Attached Garage
  • Has Garage
    Yes
  • Nbr of Assigned Spaces
    2
Construction
  • Year Built
    1977
  • Home Builder
    Unspecified
Cooling
  • Includes
    Radiant
Heating
  • Includes
    Radiant
Interior
  • Features
    Bath Off Primary
    Ceiling Fan(s)
    Dining Room
    Fireplace
    Walk-In Closet(s)
    Water Heater
Property
  • Lot Features
    Corner Lot
    Paved
Appliances
Terms
  • Bank Owned (REO)
    No
Utilities
  • Energy
    Electric
  • Sewer
    Available
  • Water Source
    Public
Additional Info
  • Waterfront
    No
  • Air Conditioning (A/C)
    Yes
  • Buyer Broker's Compensation
    2.25%
  • MLS Area #
    Area 930
  • Number of Photos
    40
  • Last Modification Time
    Thursday, April 23, 2026 9:54 AM
  • System Listing ID
    5531335
Update Info
  • Closed
    2026-04-28 06:41:39
  • Pending Or Ctg
    2026-03-25 10:11:43
  • First For Sale
    2026-03-19 16:26:20
Listing details based on information submitted to the MLS GRID as of Thursday, April 23, 2026 9:54 AM. All data is obtained from various sources and may not have been verified by broker or MLS GRID. Supplied Open House Information is subject to change without notice. All information should be independently reviewed and verified for accuracy. Properties may or may not be listed by the office/agent presenting the information.
View
Sort

Sharing

 
Sold April 23, 2026
$580,000   $575,000
4 BR    3 BA    2,294 SQFT  
NWMLS #2490753. Bev Blume, Keller Williams Realty Elite
Map
 
Listing information is provided by the listing agent except as follows: BuilderB indicates that our system has grouped this listing under a home builder name that doesn't match the name provided by the listing broker. DevelopmentD indicates that our system has grouped this listing under a development name that doesn't match the name provided by the listing broker.