to
Reset
Houses
Townhouses
Condos
Land
Price
to
SQFT
to
Bdrms
to
Baths
to
Lot
to
Yr Built
to
Sold
Listed within...
Listed at least...
Offer Review
New Construction
Waterfront
Short-Sales
REO
Parking
to
Unit Flr
to
Unit Nbr
Listings
Neighborhoods
Complexes
Developments
Cities
Counties
Zip Codes
Neighborhood · Condo · Development
School District
Zip Code
City
County
Builder
Listing Numbers
Broker LAG
Boundary Lines
Labels
View
Sort
For Sale 2 Days Online
$675,000
2 Bedrooms
2.5 Bathrooms
1,813 Sqft Townhome
Built 2005
2,639 Sqft Lot
No Garage
HOA Dues $516 / month
Welcome to the highly sought-after gated community of Sunserra at Crescent Bar. This beautifully maintained, fully furnished 1,813 sq ft home boasts what may be the most premier location in all of Sunserra—offering sweeping views of the golf course, clubhouse, and Columbia River right from your living room and kitchen. Currently operating as a successful vacation rental w $20,000 in summer bookings secured, making it an exceptional investment opportunity as well as a personal getaway. The main level features a spacious primary suite complete w/ an ensuite bathroom, walk-in closet & serene views overlooking the pool, kiddie pool, hot tub & tennis & pickle ball courts. Main floor also includes a bright and open living area, well-appointed kitchen which open to the covered patio & firepit & 5 star views. Upstairs, you’ll find a generous bonus room, second bedroom & a full bathroom—perfect for guests or additional living space. Home has been impeccably cared for, showcasing true pride of ownership, w/ a furnace & heat pump updated in 2022 for added comfort. Sunserra’s resort amenities include five pools, hot tubs, tennis courts & a ball field, all set within a beautifully maintained community. Just beyond, Crescent Bar offers some of the region’s best boating, fishing, hiking & outdoor recreation along the Columbia River. Just a short drive from The Gorge Amphitheater, Wenatchee, Columbia Valley wineries & multiple ski destinations. Garage available for purchase separately.
Offer Review
Will review offers when submitted
Listing source NWMLS MLS #
2495483
Listed by
Aimee Van Diest, HomeSmart
We don't currently have a buyer representative in this area. To be sure that you're getting objective advice, we always suggest buyers work with their own agent, someone who is not affiliated with the seller.
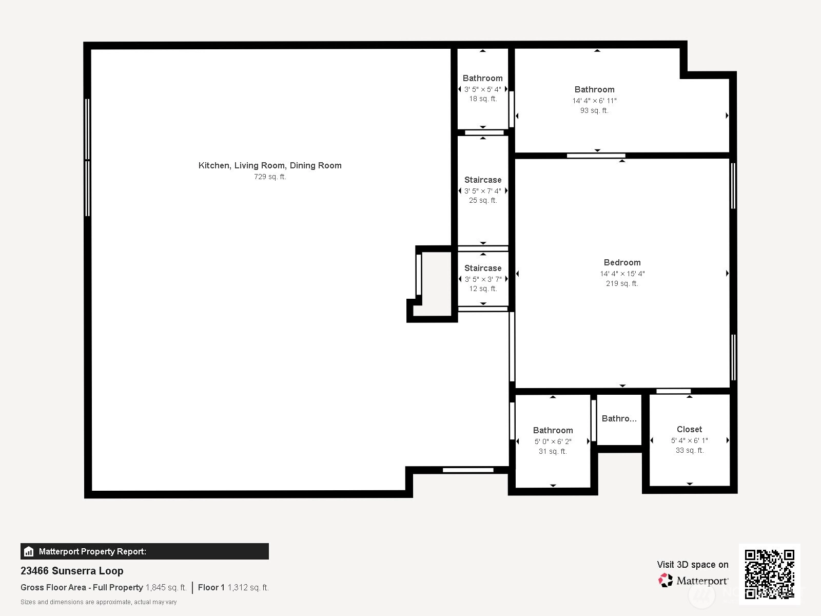
Bedroom & Bathroom Layout
SECOND
BDRM
FULL
BATH
MAIN
BDRM
FULL
BATH
½
BATH
Property History
Mar 20, 2026
Listed
$675,000
NWMLS #2495483
More
Listing Details
  • Status
    For Sale
  • Price
    $675,000
  • Original Price
    Same as current
  • List Date
    March 20, 2026
  • Last Status Change
    March 20, 2026
  • Last Update
    March 21, 2026
  • Days on Market
    2 Days
  • Cumulative DOM
    2 Days
  • $/sqft (Total)
    $372/sqft
  • $/sqft (Finished)
    $372/sqft
  • Listing Source
  • MLS Number
    2495483
  • Listing Broker
    Aimee Van Diest
  • Listing Office
    HomeSmart
Monthly Payment Estimate
  • Principal and Interest
    $3,538 / month
  • HOA
    $516 / month
  • Property Taxes
    $400 / month
  • Homeowners Insurance
    $136 / month
  • TOTAL
    $4,590 / month

  • based on 20% down
    ($135,000)
  • and a
    6.85% Interest Rate
  • About:
    All calculations are estimates only and provided by Mainview LLC. Actual amounts will vary.
Townhouse Details
  • Unit Floor
    Unspecified
  • Sqft (Total)
    1,813 sqft
  • Sqft (Finished)
    1,813 sqft
  • Sqft (Unfinished)
    None
  • Property Type
    Townhome
  • Sub Type
    Townhouse
  • Bedrooms
    2 Bedrooms
  • Bathrooms
    2.5 Bathrooms
  • Lot
    2,639 sqft Lot
  • Lot Size Source
    Realist
  • Lot #
    15
  • Project
    SUNSERRA AT CRESCENT BAR PH 1 FINAL PUD
  • Total Stories
    Unspecified
  • Basement
    None
  • Sqft Source
    Realist
Property Tax Info
  • 2025 Property Taxes
    $4,802 / year
  • No Senior Exemption
Public Parcel Data & Maps
  • County
    Grant County
  • Parcel #
    141347115
  • County Website
    Unspecified
  • County Parcel Map
    Unspecified
  • County GIS Map
    Unspecified
  • About
    County links provided by Mainview LLC
Schools
  • School District
    Quincy
  • Elementary
    Buyer To Verify
  • Middle
    Buyer To Verify
  • High School
    Buyer To Verify
HOA
  • HOA Dues
    $516 / month
  • Fees Assessed
    Monthly
  • HOA Dues Include
    Common Area Maintenance
    Lawn Service
    Road Maintenance
    Sewer
    Snow Removal
    Trash
    Water
  • HOA Contact
    Unspecified
  • Management Contact
Building
  • Name
    SUNSERRA AT CRESCENT BAR PH 1 FINAL PUD
  • Units in Complex
    Unspecified
  • Units in Building
    Unspecified
  • Stories in Building
    Unspecified
Parking
  • Covered
    Unspecified
  • Types
    Driveway
  • Has Garage
    No
Views
  • Golf Course
    Mountains
Construction
  • Year Built
    2005
  • Home Builder
    Unspecified
Cooling
  • Includes
    Central Air
    Heat Pump
Heating
  • Includes
    Forced Air
    Heat Pump
Interior
  • Flooring
    Ceramic Tile
    Hardwood
    Carpet
  • Features
    Bath Off Primary
    Ceiling Fan(s)
    Dbl Pane/Storm Window
    Sprinkler System
    Vaulted Ceiling(s)
    Walk-In Closet(s)
    Water Heater
Property
  • Lot Features
    Paved
    Sidewalk
  • Site Features
    Athletic Court
    Gated Entry
    High Speed Internet
    Irrigation
    Patio
Appliances
  • Included
    Dishwasher
    Disposal
    Dryer
    Microwave
    Refrigerator
    Stove(s)/Range(s)
    Washer
Terms
  • 3rd Party Approval Required)
    No
  • Bank Owned (REO)
    No
  • Complex FHA Availability
    Unspecified
  • Potential Terms
    Cash
    Conventional
    FHA
Utilities
  • Energy
    Electric
  • Sewer
    Septic Tank
  • Water Source
    Community
Additional Info
  • Waterfront
    No
  • Air Conditioning (A/C)
    Yes
  • Buyer Broker's Compensation
    2.5%
  • MLS Area #
    Area 292
  • Number of Photos
    40
  • Last Modification Time
    Saturday, March 21, 2026 5:03 AM
  • System Listing ID
    5531841
Update Info
  • First For Sale
    2026-03-20 14:32:00
Listing details based on information submitted to the MLS GRID as of Saturday, March 21, 2026 5:03 AM. All data is obtained from various sources and may not have been verified by broker or MLS GRID. Supplied Open House Information is subject to change without notice. All information should be independently reviewed and verified for accuracy. Properties may or may not be listed by the office/agent presenting the information.
View
Sort

Sharing

 
For Sale 2 Days Online
$675,000  
2 BR    2.5 BA    1,813 SQFT  
Offer Review: Anytime
NWMLS #2495483. Aimee Van Diest, HomeSmart
Map
 
Listing information is provided by the listing agent except as follows: BuilderB indicates that our system has grouped this listing under a home builder name that doesn't match the name provided by the listing broker. DevelopmentD indicates that our system has grouped this listing under a development name that doesn't match the name provided by the listing broker.