to
Reset
Houses
Townhouses
Condos
Land
Price
to
SQFT
to
Bdrms
to
Baths
to
Lot
to
Yr Built
to
Sold
Listed within...
Listed at least...
Offer Review
New Construction
Waterfront
Short-Sales
REO
Parking
to
Unit Flr
to
Unit Nbr
Listings
Neighborhoods
Complexes
Developments
Cities
Counties
Zip Codes
Neighborhood · Condo · Development
School District
Zip Code
City
County
Builder
Listing Numbers
Broker LAG
Boundary Lines
Labels
View
Sort
Pending Inspection Went pending in 4 days
$710,000
4 Bedrooms
2.5 Bathrooms
2,270 Sqft House
Built 1976
8,280 Sqft Lot
2-Car Garage
HOA Dues $3 / month
PENDING SALE. This listing went Pending Inspection on March 30, 2026

Some pending sales don't become final. Contact Us if this property is really important to you so we can check on it right now. The seller has reached an agreement with a buyer to sell this property. If things go as planned, the sale will become final in the near future. The buyer and seller have agreed on a price but it's not public until the sale closes. The last published list price was $710,000.
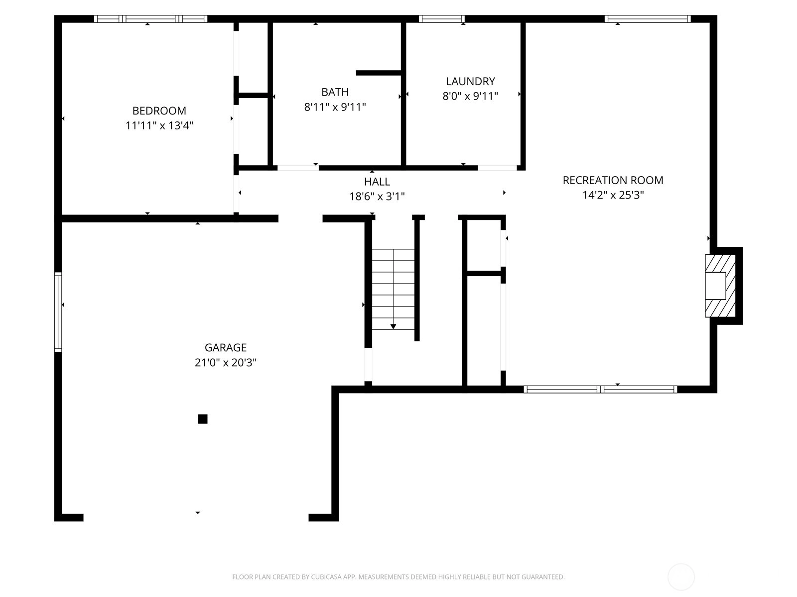
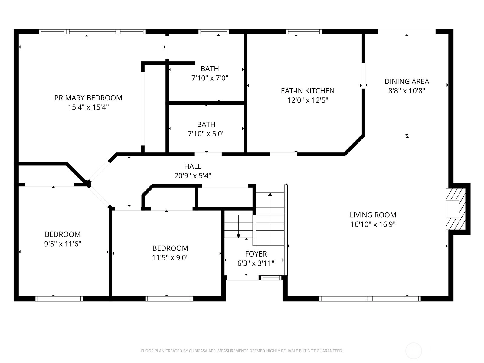
Attractive and functional Fairwood West single-family home located on a quiet residential street. Upper level features 3 bedrooms, including a spacious primary suite with ensuite bath. Recent updates include fresh interior paint, new refrigerator and dishwasher, newer flooring, a 5-year roof, and updated windows. Enjoy abundant natural light through the large living room window and cozy fireplaces on both levels. The lower-level daylight basement offers a huge second living area, an additional bedroom, and a ¾ bath—ideal for a guest suite, potential ADU, or home office. Additional highlights include a convenient full laundry room, attached 2-car garage, and a fully fenced, expansive yard—perfect for outdoor living and entertaining. Conveniently located near shopping, dining, schools, and major commuting routes. A must-see!
Offer Review
No offer review date was specified
Listing source NWMLS MLS #
2493977
Listed by
Angie Holmstrom, Windermere RE Greenwood
Contact our
Renton
Real Estate Lead
TPG Realty | Keller Williams
Phone...
Bedroom & Bathroom Layout
SECOND
BDRM
BDRM
BDRM
FULL
BATH
¾
BATH
LOWER
BDRM
¾
BATH
Property History
Mar 30, 2026
Went Pending Inspection
$710,000
NWMLS #2493977
Mar 26, 2026
Listed
$710,000
NWMLS #2493977
Sep 18, 2017
Sold
$422,500
More
Listing Details
  • Status
    Pending Inspection
  • Last Listed Price
    $710,000
  • Original Price
    Same as current
  • List Date
    March 26, 2026
  • Last Status Change
    March 31, 2026
  • Last Update
    March 31, 2026
  • Days on Market
    6 Days
  • Cumulative DOM
    4 Days
  • Pending Date
    March 30, 2026
  • Days to go Pending
    4
  • $/sqft (Total)
    $313/sqft
  • $/sqft (Finished)
    $313/sqft
  • Listing Source
  • MLS Number
    2493977
  • Listing Broker
    Angie Holmstrom
  • Listing Office
    Windermere RE Greenwood
Monthly Payment Estimate
  • Principal and Interest
    $3,722 / month
  • HOA
    $3 / month
  • Property Taxes
    $574 / month
  • Homeowners Insurance
    $143 / month
  • TOTAL
    $4,441 / month

  • based on 20% down
    ($142,000)
  • and a
    6.85% Interest Rate
  • About:
    All calculations are estimates only and provided by Mainview LLC. Actual amounts will vary.
House Details
  • Sqft (Total)
    2,270 sqft
  • Sqft (Finished)
    2,270 sqft
  • Sqft (Unfinished)
    None
  • Property Type
    House
  • Sub Type
    Split Entry
  • Bedrooms
    4 Bedrooms
  • Bathrooms
    2.5 Bathrooms
  • Lot
    8,280 sqft Lot
  • Lot Size Source
    Public Records
  • Lot #
    Unspecified
  • Project
    Unspecified
  • Total Stories
    2 stories
  • Basement
    Finished
  • Sqft Source
    Public Records
Property Tax Info
  • 2026 Property Taxes
    $6,882 / year
  • No Senior Exemption
Public Parcel Data & Maps
Schools
  • School District
    Renton
  • Elementary
    Unspecified
  • Middle
    Unspecified
  • High School
    Unspecified
HOA
  • HOA Dues
    $3 / month
  • Fees Assessed
    Annually
  • HOA Dues Include
    Road Maintenance
  • HOA Contact
    Unspecified
  • Management Contact
Community Features
  • Community Features
    Park
Parking
  • Covered
    2-Car
  • Types
    Attached Garage
  • Has Garage
    Yes
  • Nbr of Assigned Spaces
    4
Views
  • Territorial
Construction
  • Year Built
    1976
  • Home Builder
    Unspecified
Cooling
  • Includes
    None
Heating
  • Includes
    Forced Air
Interior
  • Flooring
    Laminate
    Vinyl Plank
  • Features
    Bath Off Primary
    Ceiling Fan(s)
    Dining Room
    Fireplace
    Skylight(s)
    Vaulted Ceiling(s)
Property
  • Lot Features
    Curbs
    Paved
    Sidewalk
  • Site Features
    Deck
    Fenced-Fully
Appliances
  • Included
    Dishwasher
    Disposal
    Dryer
    Microwave
    Refrigerator
    Stove(s)/Range(s)
    Washer
Terms
  • 3rd Party Approval Required)
    No
  • Bank Owned (REO)
    No
  • Complex FHA Availability
    Unspecified
  • Potential Terms
    Cash
    Conventional
    FHA
    VA Loan
Utilities
  • Energy
    Natural Gas
  • Sewer
    Sewer Connected
  • Water Source
    Public
Additional Info
  • Waterfront
    No
  • Air Conditioning (A/C)
    No
  • Buyer Broker's Compensation
    2.5%
  • MLS Area #
    Area 340
  • Number of Photos
    36
  • Last Modification Time
    Monday, March 30, 2026 6:08 PM
  • System Listing ID
    5533991
Update Info
  • Pending Or Ctg
    2026-03-30 18:12:57
  • First For Sale
    2026-03-28 08:55:14
Listing details based on information submitted to the MLS GRID as of Monday, March 30, 2026 6:08 PM. All data is obtained from various sources and may not have been verified by broker or MLS GRID. Supplied Open House Information is subject to change without notice. All information should be independently reviewed and verified for accuracy. Properties may or may not be listed by the office/agent presenting the information.
View
Sort

Sharing

 
Pending Inspection March 30, 2026
$710,000  
4 BR    2.5 BA    2,270 SQFT  
NWMLS #2493977. Angie Holmstrom, Windermere RE Greenwood
Map
 
Listing information is provided by the listing agent except as follows: BuilderB indicates that our system has grouped this listing under a home builder name that doesn't match the name provided by the listing broker. DevelopmentD indicates that our system has grouped this listing under a development name that doesn't match the name provided by the listing broker.