to
Reset
Houses
Townhouses
Condos
Land
Price
to
SQFT
to
Bdrms
to
Baths
to
Lot
to
Yr Built
to
Sold
Listed within...
Listed at least...
Offer Review
New Construction
Waterfront
Short-Sales
REO
Parking
to
Unit Flr
to
Unit Nbr
Listings
Neighborhoods
Complexes
Developments
Cities
Counties
Zip Codes
Neighborhood · Condo · Development
School District
Zip Code
City
County
Builder
Listing Numbers
Broker LAG
Boundary Lines
Labels
View
Sort
For Sale 12 Days Online
$749,000
2 Bedrooms
1.5 Bathrooms
1,195 Sqft Condo
Floor 1
New Construction
Built 2025
1 Parking Space
HOA Dues $0 / month
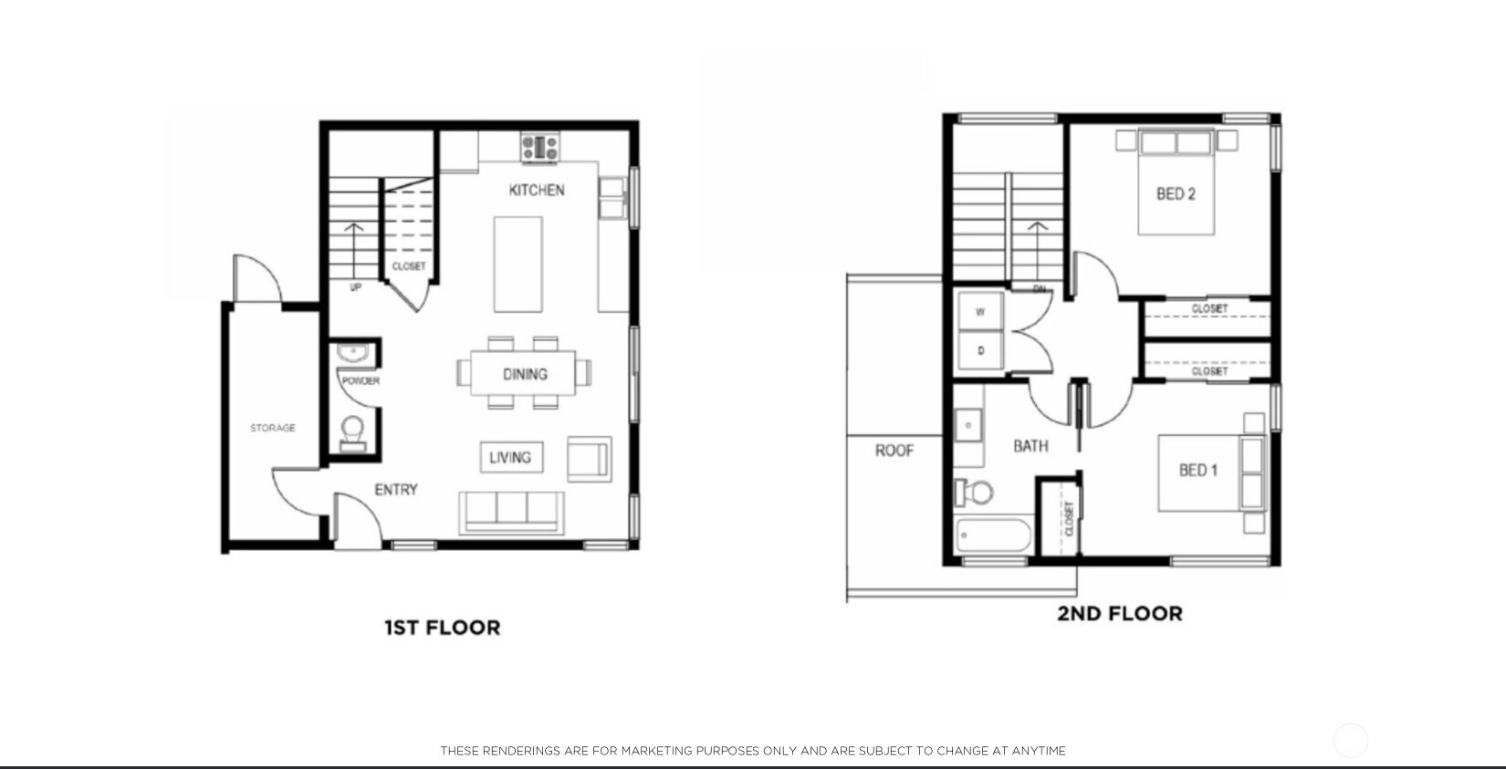
Alchemy Design Build delivers modern living in Fauntlee Hills with the kind of “I’ve got my life together” energy without excess or pretense. This newly built 2-bed, 1.5-bath cottage delivers 1,195 sq ft of smart, stylish living with high-style finishes & craftsmanship that feels solid, considered & refreshingly not tired, proof that smaller can still feel elevated. The open main floor is designed for real life with a streamlined chef’s kitchen flowing into the living & dining space ideal for casual dinners, cozy hosting or a perfectly curated solo reset. Engineered hardwoods throughout (no carpet, no LVP, no apologies) keep things clean, modern, & low maintenance. Upstairs the bedrooms are serene & thoughtfully laid out with a beautifully finished bath that punches well above its weight. Add in a legit mudroom + real (HEATED!) storage with inside/outside access (what?), mini-split heating & cooling & peace of mind that comes with new construction & a builder warranty. Fauntlee Hills is quietly iconic-- calm, low-key, and full of curb appeal, with peaceful streets made for evening walks where you’ll absolutely end up knowing all the dogs’ names. You’re moments from the Fauntleroy Ferry, Puget Sound beaches & shops & dining of Morgan & Alaska Junctions with downtown & Sea-Tac all within easy reach. Dedicated parking is plug & play. All the style you want, without the extra you don’t.
Offer Review
Will review offers when submitted
Project
8810 41st Ave SW, a Condo
Listing source NWMLS MLS #
2497362
Listed by
Kelley Meister, COMPASS
Amie Stewart, COMPASS
Open Houses
Thursday Apr 9, 2026   3pm - 5pm
Contact our
Fauntleroy
Real Estate Lead
John L. Scott
Phone...
Bedroom & Bathroom Layout
SECOND
BDRM
BDRM
FULL
BATH
MAIN
½
BATH
Property History
Apr 08, 2026
Listed
$749,000
Apr 08, 2026
Listed
$749,000
Mar 29, 2026
Listed
$749,000
Mar 27, 2026
Listed
$749,000
NWMLS #2497362
Mar 04, 2026
Back on Market
$769,000
Mar 04, 2026
Back on Market
$769,000
Feb 16, 2026
Went Pending
$769,000
Feb 16, 2026
Went Pending
$769,000
Feb 06, 2026
Went Pending Inspection
$769,000
Feb 06, 2026
Went Pending Inspection
$769,000
Jan 31, 2026
Listed
$769,000
Jan 30, 2026
Listed
$769,000
More
Listing Details
  • Status
    For Sale
  • Price
    $749,000
  • Original Price
    Same as current
  • List Date
    March 27, 2026
  • Last Status Change
    March 28, 2026
  • Last Update
    April 8, 2026
  • Days on Market
    12 Days
  • Cumulative DOM
    13 Days
  • $/sqft (Total)
    $627/sqft
  • $/sqft (Finished)
    $627/sqft
  • Listing Source
  • MLS Number
    2497362
  • Listing Broker
    Kelley Meister
  • Listing Office
    COMPASS
Monthly Payment Estimate
  • Principal and Interest
    $3,926 / month
  • HOA
    $0 / month
  • Property Taxes
    $126 / month
  • Homeowners Insurance
    $150 / month
  • TOTAL
    $4,202 / month

  • based on 20% down
    ($149,800)
  • and a
    6.85% Interest Rate
  • About:
    All calculations are estimates only and provided by Mainview LLC. Actual amounts will vary.
Condo Details
  • Unit #
    Unspecified
  • Unit Floor
    1
  • Sqft (Total)
    1,195 sqft
  • Sqft (Finished)
    Unspecified
  • Sqft (Unfinished)
    None
  • Property Type
    Condo
  • Sub Type
    Condo (2 Levels)
  • Bedrooms
    2 Bedrooms
  • Bathrooms
    1.5 Bathrooms
  • Lot Size
    Unspecified
  • Lot Size Source
    Unspecified
  • Project
    8810 41st Ave SW, a Condo
  • Total Stories
    2 stories
  • Sqft Source
    marketing plans
Property Tax Info
  • 2025 Property Taxes
    $1,510 / year
  • No Senior Exemption
Public Parcel Data & Maps
Schools
  • School District
    Seattle
  • Elementary
    Arbor Heights
  • Middle
    Denny Mid
  • High School
    Sealth High
HOA
  • HOA Dues
    $0 / month
  • Fees Assessed
    Quarterly
  • HOA Dues Include
    See Remarks
  • Pets Allowed
    Yes
  • HOA Contact
    Unspecified
  • Management Contact
Building
  • Name
    8810 41st Ave SW, a Condo
  • Units in Complex
    2
  • Units in Building
    1
  • Stories in Building
    2
Parking
  • Types
    Off Street
  • Has Garage
    No
  • Nbr of Assigned Spaces
    1
  • Parking Space Info
    Unspecified
Views
  • Mountains
    Partial
    Sound
    Territorial
Construction
  • Year Built
    2025
  • New Construction
    Yes
  • Construction State
    Unspecified
  • Home Builder
    Unspecified
Cooling
  • Includes
    Ductless
Heating
  • Includes
    Ductless
    Wall Furnace
Interior
  • Flooring
    Ceramic Tile
    Engineered Hardwood
  • Features
    Cooking-Electric
    Dryer-Electric
    End Unit
    Insulated Windows
    Washer
Property
  • Lot Features
    Curbs
    Paved
    Sidewalk
Appliances
  • Included
    Dishwasher
    Disposal
    Microwave
    Refrigerator
    Stove(s)/Range(s)
Terms
  • 3rd Party Approval Required)
    No
  • Bank Owned (REO)
    No
  • Complex FHA Availability
    Unspecified
  • Potential Terms
    Cash
    Conventional
    VA Loan
Utilities
  • Energy
    Electric
Additional Info
  • Waterfront
    No
  • Air Conditioning (A/C)
    Yes
  • Buyer Broker's Compensation
    2.5%
  • MLS Area #
    Area 140
  • Number of Photos
    23
  • Last Modification Time
    Wednesday, April 8, 2026 8:05 AM
  • System Listing ID
    5534496
Update Info
  • Public Open Houses
    2026-04-08 07:25:10
  • First For Sale
    2026-03-28 08:57:57
Listing details based on information submitted to the MLS GRID as of Wednesday, April 8, 2026 8:05 AM. All data is obtained from various sources and may not have been verified by broker or MLS GRID. Supplied Open House Information is subject to change without notice. All information should be independently reviewed and verified for accuracy. Properties may or may not be listed by the office/agent presenting the information.
View
Sort

Sharing

 
OPEN For Sale 12 Days Online
$749,000  
2 BR    1.5 BA    1,195 SQFT  
OPEN HOUSES
Thursday Apr 9, 2026   3pm - 5pm
Offer Review: Anytime
NWMLS #2497362. Kelley Meister, COMPASS
Map
 
Listing information is provided by the listing agent except as follows: BuilderB indicates that our system has grouped this listing under a home builder name that doesn't match the name provided by the listing broker. DevelopmentD indicates that our system has grouped this listing under a development name that doesn't match the name provided by the listing broker.