to
Reset
Houses
Townhouses
Condos
Land
Price
to
SQFT
to
Bdrms
to
Baths
to
Lot
to
Yr Built
to
Sold
Listed within...
Listed at least...
Offer Review
New Construction
Waterfront
Short-Sales
REO
Parking
to
Unit Flr
to
Unit Nbr
Listings
Neighborhoods
Complexes
Developments
Cities
Counties
Zip Codes
Neighborhood · Condo · Development
School District
Zip Code
City
County
Builder
Listing Numbers
Broker LAG
Boundary Lines
Labels
View
Sort
For Sale 5 Days Online
$895,000
3 Bedrooms
1.75 Bathrooms
2,316 Sqft House
Built 1978
5 Acres Lot
2-Car Garage
Gorgeous 5 Acres ~ Wonderful HOME ~ Large Pole Barn ~ Fantastic Yard(s) ~ Brand New Septic ~ Peaceful & Private Setting ~ Unbeatable Close-in Location... Truly a 'Hidden Gem'. This well-maintained property, lovingly cared for by the same owners for 47 years, offers a perfect blend of comfort & functionality. Enjoy a spacious, flowing layout with both formal & informal living and dining areas. Super-cozy + super-roomy! Ideal for 'Real-Life-Living'. 3 bedrooms / den / 1.75 baths & rough-in plumbed for a 1/2 bath. This impressively updated kitchen shines w/stainless steel appliances, quality cabinetry, solid surface countertops, an undermount sink, a walk-in pantry and a bright garden window that fills the space with natural light... You'll have fun cooking in this beautiful & well-designed kitchen. Other highlights include a mini-split system, newer roof / windows / exterior paint, propane fireplace & more. Thoughtful updates, inside and out. You'll absolutely love the multiple outdoor living areas / yard spaces; a large sunny deck, raised garden beds, a newly enlarged backyard. It's BIG! This level, fenced acreage is highly usable... Ideal, for pets, livestock, parking trucks & toys... Plenty of room for that horse you've always wanted :-) No HOA, so you can enjoy your FREEDOM... HERE! Public water, paved dead-end road & a fabulous 'country' setting, yet conveniently located only minutes to 'town' & everything Bonney Lake has to offer. A rare opportunity with so much to LOVE.
Offer Review
Will review offers when submitted
Listing source NWMLS MLS #
2498540
Listed by
Susan McCauley, John L. Scott, Inc.
Contact our
Buckley
Real Estate Lead
RE/MAX Northwest Realtors
Phone...
Bedroom & Bathroom Layout
THIRD
SECOND
BDRM
BDRM
BDRM
FULL
BATH
¾
BATH
LOWER
Property History
Mar 27, 2026
Listed
$895,000
NWMLS #2498540
More
Listing Details
  • Status
    For Sale
  • Price
    $895,000
  • Original Price
    Same as current
  • List Date
    March 27, 2026
  • Last Status Change
    March 28, 2026
  • Last Update
    March 31, 2026
  • Days on Market
    5 Days
  • Cumulative DOM
    5 Days
  • $/sqft (Total)
    $386/sqft
  • $/sqft (Finished)
    $386/sqft
  • Listing Source
  • MLS Number
    2498540
  • Listing Broker
    Susan McCauley
  • Listing Office
    John L. Scott, Inc.
Monthly Payment Estimate
  • Principal and Interest
    $4,692 / month
  • Property Taxes
    $691 / month
  • Homeowners Insurance
    $177 / month
  • TOTAL
    $5,560 / month

  • based on 20% down
    ($179,000)
  • and a
    6.85% Interest Rate
  • About:
    All calculations are estimates only and provided by Mainview LLC. Actual amounts will vary.
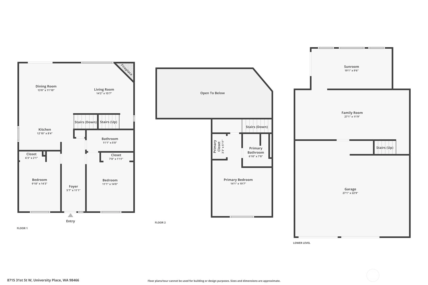
House Details
  • Sqft (Total)
    2,316 sqft
  • Sqft (Finished)
    2,316 sqft
  • Sqft (Unfinished)
    None
  • Property Type
    House
  • Sub Type
    Tri-Level
  • Bedrooms
    3 Bedrooms
  • Bathrooms
    1.75 Bathrooms
  • Lot
    5 Acres Lot
  • Lot Size Source
    Public Records
  • Lot #
    Unspecified
  • Project
    Unspecified
  • Total Stories
    3 stories
  • Basement
    Finished
  • Sqft Source
    Builder / Public Records
Property Tax Info
  • 2026 Property Taxes
    $8,288 / year
  • No Senior Exemption
Public Parcel Data & Maps
Schools
  • School District
    White River
  • Elementary
    Mtn Meadow Elem
  • Middle
    Glacier Middle Sch
  • High School
    White River High
HOA
  • HOA Dues
    Unspecified
  • Fees Assessed
    Unspecified
  • HOA Dues Include
    Unspecified
  • HOA Contact
    N/A
  • Management Contact
Parking
  • Covered
    2-Car
  • Types
    Driveway
    Attached Garage
    Off Street
    RV Parking
  • Has Garage
    Yes
  • Nbr of Assigned Spaces
    2
Construction
  • Year Built
    1978
  • Home Builder
    Unspecified
Cooling
  • Includes
    Ductless
Heating
  • Includes
    Ductless
    Forced Air
Interior
  • Flooring
    Ceramic Tile
    Hardwood
    See Remarks
    Vinyl
    Carpet
  • Features
    Bath Off Primary
    Dbl Pane/Storm Window
    Dining Room
    Fireplace
    Pantry
    Walk-In Closet(s)
    Water Heater
Property
  • Lot Features
    Dead End Street
    Open Space
    Paved
    Secluded
  • Site Features
    Barn
    Cable TV
    Deck
    Fenced-Fully
    High Speed Internet
    Patio
    Propane
    RV Parking
Appliances
  • Included
    Dishwasher
    Dryer
    Microwave
    Refrigerator
    Stove(s)/Range(s)
    Washer
Terms
  • 3rd Party Approval Required)
    No
  • Bank Owned (REO)
    No
  • Complex FHA Availability
    Unspecified
  • Potential Terms
    Cash
    Conventional
    FHA
    VA Loan
Utilities
  • Energy
    Electric
    Propane
  • Sewer
    Septic Tank
  • Water Source
    Public
Additional Info
  • Waterfront
    No
  • Air Conditioning (A/C)
    Yes
  • Buyer Broker's Compensation
    * 3.0 *%
  • MLS Area #
    Area 111
  • Number of Photos
    40
  • Last Modification Time
    Tuesday, March 31, 2026 12:12 PM
  • System Listing ID
    5534515
Update Info
  • First For Sale
    2026-03-28 08:57:57
Listing details based on information submitted to the MLS GRID as of Tuesday, March 31, 2026 12:12 PM. All data is obtained from various sources and may not have been verified by broker or MLS GRID. Supplied Open House Information is subject to change without notice. All information should be independently reviewed and verified for accuracy. Properties may or may not be listed by the office/agent presenting the information.
View
Sort

Sharing

 
For Sale 5 Days Online
$895,000  
3 BR    1.75 BA    2,316 SQFT  
Offer Review: Anytime
NWMLS #2498540. Susan McCauley, John L. Scott, Inc.
Map
 
Listing information is provided by the listing agent except as follows: BuilderB indicates that our system has grouped this listing under a home builder name that doesn't match the name provided by the listing broker. DevelopmentD indicates that our system has grouped this listing under a development name that doesn't match the name provided by the listing broker.