to
Reset
Houses
Townhouses
Condos
Land
Price
to
SQFT
to
Bdrms
to
Baths
to
Lot
to
Yr Built
to
Sold
Listed within...
Listed at least...
Offer Review
New Construction
Waterfront
Short-Sales
REO
Parking
to
Unit Flr
to
Unit Nbr
Listings
Neighborhoods
Complexes
Developments
Cities
Counties
Zip Codes
Neighborhood · Condo · Development
School District
Zip Code
City
County
Builder
Listing Numbers
Broker LAG
Boundary Lines
Labels
View
Sort
For Sale 11 Days Online
$539,950
2 Bedrooms
1.75 Bathrooms
1,408 Sqft Condo
Floor 1
Built 2000
4 Parking Spaces
HOA Dues $350 / month
SELLER OFFERING $10,000 CREDIT | Experience the ultimate combination of privacy and convenience in this meticulously maintained, single-level University Place sanctuary. This light-filled, freshly-painted home features vaulted ceilings and new skylights that capture the Pacific Northwest glow during all four seasons. The functional floor plan includes an updated kitchen with quartz counters and a breakfast bar, flowing into sun-drenched living spaces. Relax in a primary suite with a walk-in closet and private ensuite bathroom. Use the versatile second bedroom as a home office or an inviting guest room, which also has a walk-in closet. Your private backyard is a gardener's dream, bordering a lush greenbelt for seclusion. Enjoy two patios - one covered for year-round entertaining and an open terrace for warm mornings or sunny afternoons. Perfectly located near top shops and dining. Low-maintenance comfort meets park-like tranquility.
Offer Review
Will review offers when submitted
Project
Sunny Side Estates
Listing source NWMLS MLS #
2493121
Listed by
David Pannen, COMPASS
Alec Klasna, COMPASS
Contact our
University Place
Real Estate Lead
RE/MAX Northwest Realtors
Phone...
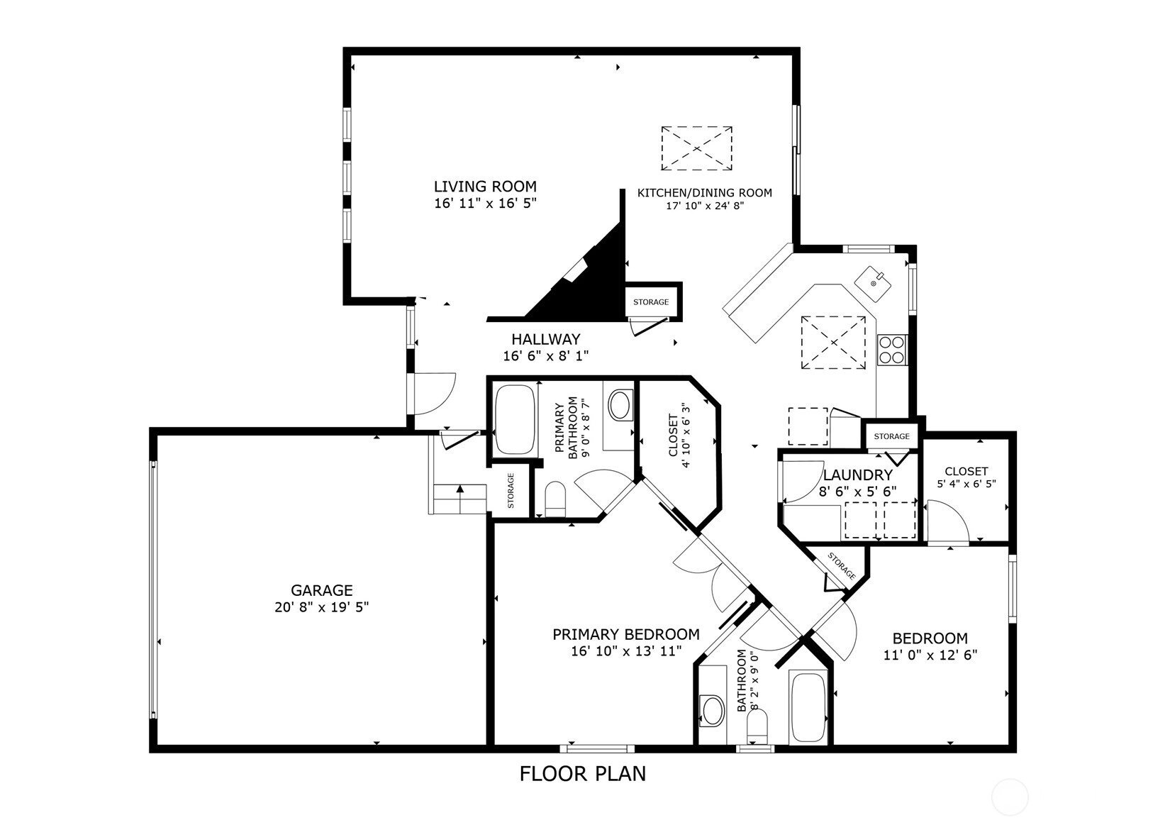
Bedroom & Bathroom Layout
MAIN
BDRM
BDRM
FULL
BATH
¾
BATH
Property History
Apr 01, 2026
Listed
$539,950
Apr 01, 2026
Listed
$539,950
NWMLS #2493121
Jan 14, 2026
Price Reduction arrow_downward
$559,950
NWMLS #2433388
Oct 02, 2025
Price Reduction arrow_downward
$565,000
NWMLS #2433388
Sep 13, 2025
Listed
$589,950
NWMLS #2433388
Aug 28, 2025
Listed
$589,950
NWMLS #2377099
Aug 28, 2025
Listed
$589,950
NWMLS #2385168
Jul 15, 2021
Sold
$415,000
More
Listing Details
  • Status
    For Sale
  • Price
    $539,950
  • Original Price
    Same as current
  • List Date
    April 1, 2026
  • Last Status Change
    April 1, 2026
  • Last Update
    April 9, 2026
  • Days on Market
    11 Days
  • Cumulative DOM
    11 Days
  • $/sqft (Total)
    $383/sqft
  • $/sqft (Finished)
    $383/sqft
  • Listing Source
  • MLS Number
    2493121
  • Listing Broker
    David Pannen
  • Listing Office
    COMPASS
Monthly Payment Estimate
  • Principal and Interest
    $2,830 / month
  • HOA
    $350 / month
  • Property Taxes
    $448 / month
  • Homeowners Insurance
    $111 / month
  • TOTAL
    $3,739 / month

  • based on 20% down
    ($107,990)
  • and a
    6.85% Interest Rate
  • About:
    All calculations are estimates only and provided by Mainview LLC. Actual amounts will vary.
Condo Details
  • Unit #
    Unspecified
  • Unit Floor
    1
  • Sqft (Total)
    1,408 sqft
  • Sqft (Finished)
    Unspecified
  • Sqft (Unfinished)
    None
  • Property Type
    Condo
  • Sub Type
    Condo (1 Level)
  • Bedrooms
    2 Bedrooms
  • Bathrooms
    1.75 Bathrooms
  • Lot Size
    Unspecified
  • Lot Size Source
    Unspecified
  • Project
    Sunny Side Estates
  • Total Stories
    1 story
  • Sqft Source
    PCR
Property Tax Info
  • 2026 Property Taxes
    $5,381 / year
  • No Senior Exemption
Public Parcel Data & Maps
Schools
  • School District
    Tacoma
  • Elementary
    Buyer To Verify
  • Middle
    Buyer To Verify
  • High School
    Buyer To Verify
HOA
  • HOA Dues
    $350 / month
  • Fees Assessed
    Monthly
  • HOA Dues Include
    Common Area Maintenance
    Lawn Service
    Water
  • Pets Allowed
    Yes
  • HOA Contact
    Brian Gutierrez 206-788-8132
  • Management Contact
    Brian Guitierrez 206-788-8132
Community Features
  • Community Features
    Garden Space
Building
  • Name
    Sunny Side Estates
  • Units in Complex
    8
  • Units in Building
    2
  • Stories in Building
    1
Parking
  • Covered
    2-Car
  • Types
    Individual Garage
  • Has Garage
    Yes
  • Nbr of Assigned Spaces
    4
  • Parking Space Info
    2
Construction
  • Year Built
    2000
  • Home Builder
    Unspecified
Cooling
  • Includes
    Forced Air
    Heat Pump
Heating
  • Includes
    Forced Air
    Heat Pump
Interior
  • Flooring
    Ceramic Tile
    Vinyl
    Carpet
  • Features
    Cooking-Electric
    Dryer-Electric
    Fireplace
    French Doors
    Insulated Windows
    Skylight(s)
    Vaulted Ceiling(s)
    Walk-In Closet(s)
    Washer
Property
  • Lot Features
    Corner Lot
    Dead End Street
    Paved
Appliances
  • Included
    Dishwasher
    Disposal
    Dryer
    Microwave
    Refrigerator
    Stove(s)/Range(s)
    Washer
Terms
  • 3rd Party Approval Required)
    No
  • Bank Owned (REO)
    No
  • Complex FHA Availability
    Unspecified
  • Potential Terms
    FHA
    VA Loan
Utilities
  • Energy
    Electric
Additional Info
  • Waterfront
    No
  • Air Conditioning (A/C)
    Yes
  • Buyer Broker's Compensation
    2.5%
  • MLS Area #
    Area 34
  • Number of Photos
    24
  • Last Modification Time
    Wednesday, April 8, 2026 6:12 PM
  • System Listing ID
    5535666
Update Info
  • Public Open Houses
    2026-04-08 09:55:21
  • First For Sale
    2026-04-01 10:18:35
Listing details based on information submitted to the MLS GRID as of Wednesday, April 8, 2026 6:12 PM. All data is obtained from various sources and may not have been verified by broker or MLS GRID. Supplied Open House Information is subject to change without notice. All information should be independently reviewed and verified for accuracy. Properties may or may not be listed by the office/agent presenting the information.
View
Sort

Sharing

 
For Sale 11 Days Online
$539,950  
2 BR    1.75 BA    1,408 SQFT  
Offer Review: Anytime
NWMLS #2493121. David Pannen, COMPASS
Map
 
Listing information is provided by the listing agent except as follows: BuilderB indicates that our system has grouped this listing under a home builder name that doesn't match the name provided by the listing broker. DevelopmentD indicates that our system has grouped this listing under a development name that doesn't match the name provided by the listing broker.