to
Reset
Houses
Townhouses
Condos
Land
Price
to
SQFT
to
Bdrms
to
Baths
to
Lot
to
Yr Built
to
Sold
Listed within...
Listed at least...
Offer Review
New Construction
Waterfront
Short-Sales
REO
Parking
to
Unit Flr
to
Unit Nbr
Listings
Neighborhoods
Complexes
Developments
Cities
Counties
Zip Codes
Neighborhood · Condo · Development
School District
Zip Code
City
County
Builder
Listing Numbers
Broker LAG
Boundary Lines
Labels
View
Sort
Pending Inspection Went pending in 8 days
$565,000
5 Bedrooms
2.5 Bathrooms
2,335 Sqft House
Built 2023
7,290 Sqft Lot
3-Car Garage
HOA Dues $50 / month
The seller has reached an agreement with a buyer to sell this property. If things go as planned, the sale will become final in the near future. The buyer and seller have agreed on a price but it's not public until the sale closes. The last published list price was $565,000.
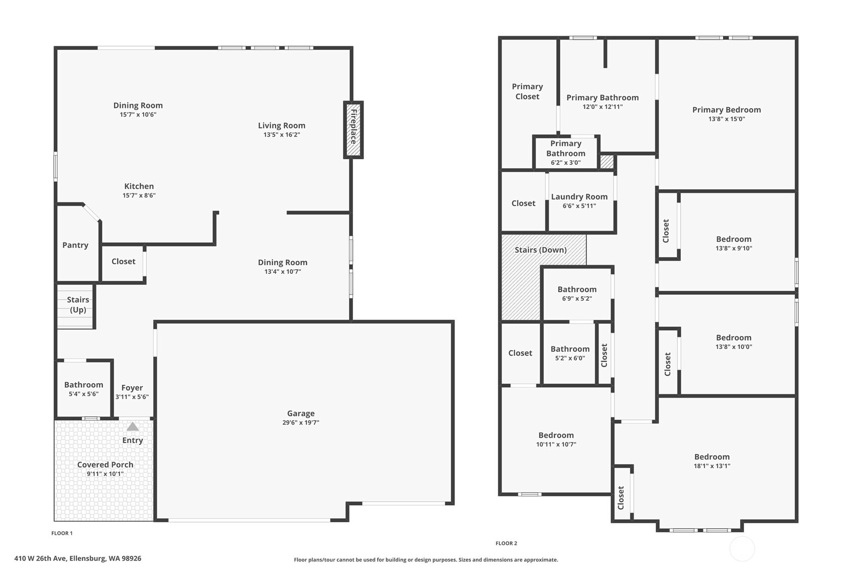
Gorgeous, move-in ready, like-new home that's been impeccably maintained and upgraded in the popular, and sought-after Ridgeview Neighborhood. Close to CWU campus, parks & shopping -- and seriously the nicest neighbors you could ever hope for! This 5 Bedroom, 2.5 BA home (5th BR can also be a Bonus Room) is located at the quiet end of an "off-shoot road" that feels like a private cul-de-sac. Enjoy lovely Views of The Ridge (hence "Ridgeview") from many of the home's windows, plus lots of natural light. 3-car garage with high-end epoxy flooring that's easy to clean and looks fantastic! Fully fenced, oversized yard with in-ground irrigation. Entertain easily in the Great Room & Kitchen with large island, plus K.E.S., plus an adjacent large dining area, or step outside and enjoy the South facing patio for dining al fresco and playing in the large, private yard. Beautiful finish materials throughout including Quartz counter-tops, designer tile back-splashes, under-mount sinks in Kitchen & Primary Bathroom, soft-close cabinets & drawers. Lots of storage! W.I.C. in Primary, Walk-in Pantry in Kitchen, under stairway storage & more. Heat pump with A/C, SMART wiring, electric fireplace, Spa-like Primary suite with soaking tub ... this home really has it all. Smart TV in living room (new 2024) can stay. Kids play set can stay or go. Open Sat. 11:30 to 3:30. Come home to Ridgeview!
Offer Review
No offer review date was specified
Listing source NWMLS MLS #
2499715
Listed by
Heidi Bright, Coldwell Banker Danforth
Joe Done, Coldwell Banker Danforth
We don't currently have a buyer representative in this area. To be sure that you're getting objective advice, we always suggest buyers work with their own agent, someone who is not affiliated with the seller.
Bedroom & Bathroom Layout
SECOND
BDRM
BDRM
BDRM
BDRM
BDRM
FULL
BATH
FULL
BATH
MAIN
½
BATH
Property History
Apr 09, 2026
Went Pending Inspection
$565,000
NWMLS #2499715
Apr 01, 2026
Listed
$565,000
NWMLS #2499715
More
Listing Details
  • Status
    Pending Inspection
  • Last Listed Price
    $565,000
  • Original Price
    Same as current
  • List Date
    April 1, 2026
  • Last Status Change
    April 9, 2026
  • Last Update
    April 9, 2026
  • Days on Market
    26 Days
  • Cumulative DOM
    8 Days
  • Pending Date
    April 9, 2026
  • Days to go Pending
    8
  • $/sqft (Total)
    $242/sqft
  • $/sqft (Finished)
    $242/sqft
  • Listing Source
  • MLS Number
    2499715
  • Listing Broker
    Heidi Bright
  • Listing Office
    Coldwell Banker Danforth
Monthly Payment Estimate
  • Principal and Interest
    $2,962 / month
  • HOA
    $50 / month
  • Property Taxes
    $383 / month
  • Homeowners Insurance
    $116 / month
  • TOTAL
    $3,511 / month

  • based on 20% down
    ($113,000)
  • and a
    6.85% Interest Rate
  • About:
    All calculations are estimates only and provided by Mainview LLC. Actual amounts will vary.
House Details
  • Sqft (Total)
    2,335 sqft
  • Sqft (Finished)
    2,335 sqft
  • Sqft (Unfinished)
    None
  • Property Type
    House
  • Sub Type
    2 Story
  • Bedrooms
    5 Bedrooms
  • Bathrooms
    2.5 Bathrooms
  • Lot
    7,290 sqft Lot
  • Lot Size Source
    Builder
  • Lot #
    77
  • Project
    Ridgeview
  • Total Stories
    2 stories
  • Basement
    None
  • Sqft Source
    Builder
Property Tax Info
  • 2026 Property Taxes
    $4,590 / year
  • No Senior Exemption
Public Parcel Data & Maps
  • County
    Kittitas County
  • Parcel #
    962509
  • County Website
    Unspecified
  • County Parcel Map
    Unspecified
  • County GIS Map
    Unspecified
  • About
    County links provided by Mainview LLC
Schools
  • School District
    Ellensburg
  • Elementary
    Unspecified
  • Middle
    Unspecified
  • High School
    Unspecified
HOA
  • HOA Dues
    $50 / month
  • Fees Assessed
    Annually
  • HOA Dues Include
    Common Area Maintenance
    See Remarks
  • HOA Contact
    Eli Hernandez, J&M Mngmt 253-848-1947
  • Management Contact
Parking
  • Covered
    3-Car
  • Types
    Attached Garage
  • Has Garage
    Yes
  • Nbr of Assigned Spaces
    6
Views
  • Mountains
Construction
  • Year Built
    2023
  • Home Builder
    Unspecified
Cooling
  • Includes
    90%+ High Efficiency
    Forced Air
    Heat Pump
Heating
  • Includes
    90%+ High Efficiency
    Forced Air
    Heat Pump
Interior
  • Flooring
    Ceramic Tile
    Laminate
    Carpet
  • Features
    Bath Off Primary
    Dbl Pane/Storm Window
    Dining Room
    Fireplace
    Pantry
    Security System
    SMART Wired
    Walk-In Closet(s)
Property
  • Lot Features
    Corner Lot
    Paved
    Sidewalk
  • Site Features
    Fenced-Fully
    Gas Available
    High Speed Internet
    Irrigation
    Patio
Appliances
  • Included
    Dishwasher
    Disposal
    Dryer
    Microwave
    Refrigerator
    Stove(s)/Range(s)
    Washer
Terms
  • 3rd Party Approval Required)
    No
  • Bank Owned (REO)
    No
  • Complex FHA Availability
    Unspecified
  • Potential Terms
    Cash
    Conventional
    VA Loan
Utilities
  • Energy
    Electric
  • Sewer
    Sewer Connected
  • Water Source
    Public
Additional Info
  • Waterfront
    No
  • Air Conditioning (A/C)
    Yes
  • Buyer Broker's Compensation
    2.5%
  • MLS Area #
    Area 949
  • Number of Photos
    39
  • Last Modification Time
    Thursday, April 9, 2026 4:27 PM
  • System Listing ID
    5535881
Update Info
  • Pending Or Ctg
    2026-04-12 22:23:23
  • First For Sale
    2026-04-01 14:08:52
Listing details based on information submitted to the MLS GRID as of Thursday, April 9, 2026 4:27 PM. All data is obtained from various sources and may not have been verified by broker or MLS GRID. Supplied Open House Information is subject to change without notice. All information should be independently reviewed and verified for accuracy. Properties may or may not be listed by the office/agent presenting the information.
View
Sort

Sharing

 
Pending Inspection April 9, 2026
$565,000  
5 BR    2.5 BA    2,335 SQFT  
NWMLS #2499715. Heidi Bright, Coldwell Banker Danforth
Map
 
Listing information is provided by the listing agent except as follows: BuilderB indicates that our system has grouped this listing under a home builder name that doesn't match the name provided by the listing broker. DevelopmentD indicates that our system has grouped this listing under a development name that doesn't match the name provided by the listing broker.