to
Reset
Houses
Townhouses
Condos
Land
Price
to
SQFT
to
Bdrms
to
Baths
to
Lot
to
Yr Built
to
Sold
Listed within...
Listed at least...
Offer Review
New Construction
Waterfront
Short-Sales
REO
Parking
to
Unit Flr
to
Unit Nbr
Listings
Neighborhoods
Complexes
Developments
Cities
Counties
Zip Codes
Neighborhood · Condo · Development
School District
Zip Code
City
County
Builder
Listing Numbers
Broker LAG
Boundary Lines
Labels
View
Sort
Pending (Back-up Requested) Went pending in 10 days
$3,648,000
3 Bedrooms
3.25 Bathrooms
3,761 Sqft House
Waterfront
Built 1952
1.06 Acres Lot
2-Car Garage
PENDING SALE. This listing went Pending (Back-up Requested) on April 11, 2026

Some pending sales don't become final. Contact Us if this property is really important to you so we can check on it right now. The seller has reached an agreement with a buyer to sell this property. If things go as planned, the sale will become final in the near future. The buyer and seller have agreed on a price but it's not public until the sale closes. The last published list price was $3,648,000.
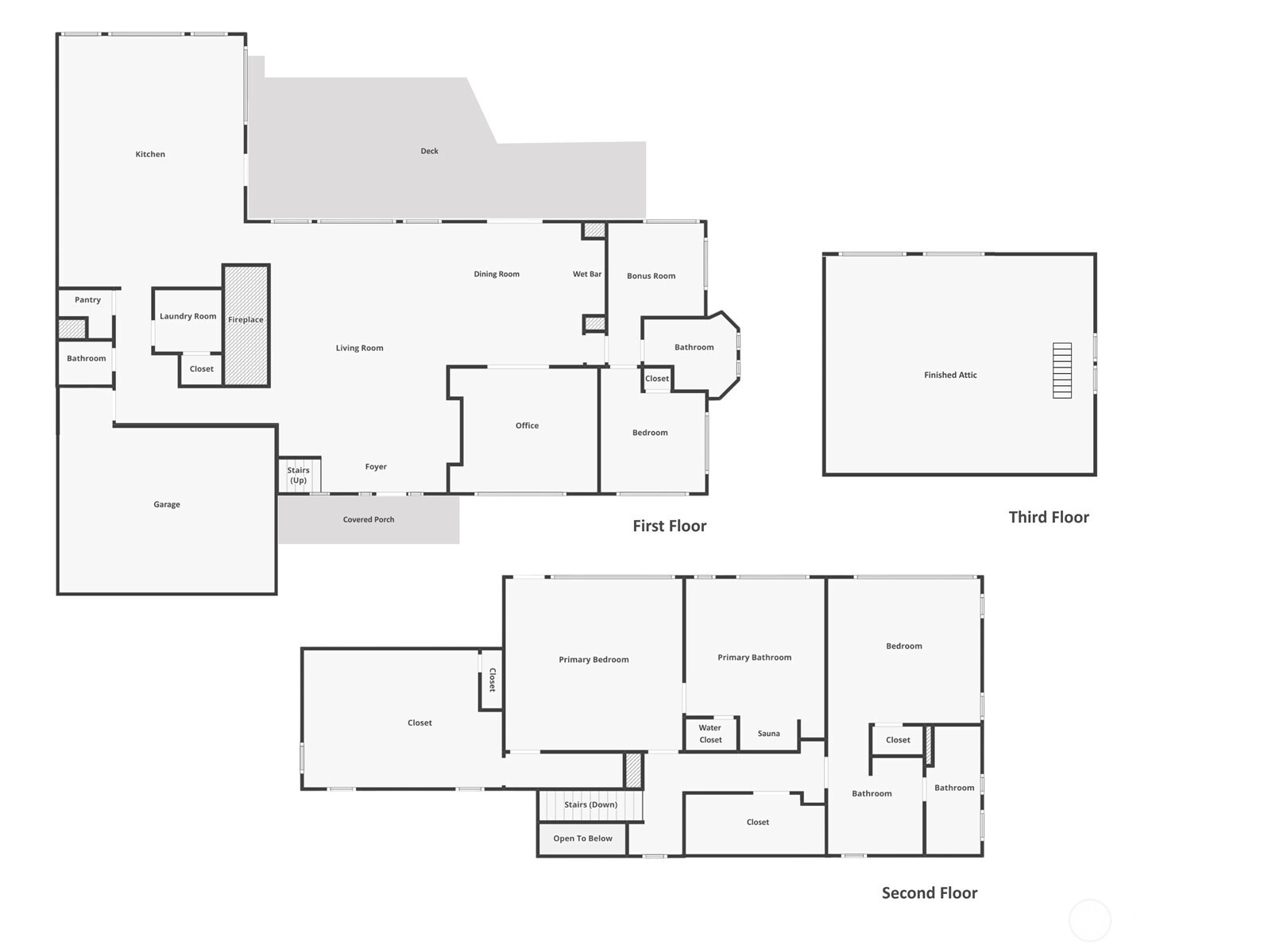
Rare Bainbridge Island waterfront offering with protected, panoramic water views from a fully bulkheaded high-bank setting, capturing stunning sunrises over Downtown Seattle, the Cascades, Mt. Rainier, and the ever-changing maritime activity along the shipping lanes. A private tree-lined drive opens to a near-circular driveway, creating a quiet, stately sense of arrival, set within a rare, fully level 1-acre parcel. Designed in a timeless Coastal Craftsman style, the home has been extensively reimagined with over $1M invested, encompassing magazine-worthy design alongside meaningful infrastructure and system upgrades. The interior unfolds with a natural, connected flow, well suited for both everyday living and entertaining, with views from nearly every room. The expansive kitchen is stunning, with vaulted ceilings, a new AGA range, a generous island, and a sunlit breakfast nook, all oriented toward two walls of windows that capture breathtaking eastern and southern views. The home offers 3 bedrooms, each with its own ensuite, along with a Murphy bed in the office. The primary suite is a true retreat, with sweeping views, a deck, dramatic vaulted ceilings, a walk-in closet of exceptional scale, & a spa-like ensuite bath with sauna. A covered mahogany view deck extends from the kitchen, dining room, and living room, complete with integrated heaters, and opens to an expansive, flat lawn set against commanding views. Ideally located near Fay Bainbridge Park & Rolling Bay's shops.
Offer Review
No offer review date was specified
Listing source NWMLS MLS #
2497118
Listed by
Danny Varona, Realogics Sotheby's Int'l Rlty
Matthew Paige, Realogics Sotheby's Int'l Rlty
Contact our
Bainbridge Island Waterfront
Real Estate Lead
My Kitsap Homes, LLC
Phone...
Bedroom & Bathroom Layout
SECOND
BDRM
BDRM
FULL
BATH
FULL
BATH
MAIN
BDRM
¾
BATH
½
BATH
Property History
Apr 11, 2026
Went Pending (Back-up Requested)
$3,648,000
NWMLS #2497118
Apr 01, 2026
Listed
$3,648,000
NWMLS #2497118
Oct 05, 2023
Sold
$2,500,000
Sep 06, 2023
Went Pending
$2,825,000
Aug 30, 2023
Went Pending Inspection
$2,825,000
Aug 15, 2023
Listed
$2,825,000
More
Listing Details
  • Status
    Pending (Back-up Requested)
  • Last Listed Price
    $3,648,000
  • Original Price
    Same as current
  • List Date
    April 1, 2026
  • Last Status Change
    April 12, 2026
  • Last Update
    April 12, 2026
  • Days on Market
    13 Days
  • Cumulative DOM
    10 Days
  • Pending Date
    April 11, 2026
  • Days to go Pending
    10
  • $/sqft (Total)
    $970/sqft
  • $/sqft (Finished)
    $970/sqft
  • Listing Source
  • MLS Number
    2497118
  • Listing Broker
    Danny Varona
  • Listing Office
    Realogics Sotheby's Int'l Rlty
Monthly Payment Estimate
  • Principal and Interest
    $19,123 / month
  • Property Taxes
    $1,467 / month
  • Homeowners Insurance
    $681 / month
  • TOTAL
    $21,271 / month

  • based on 20% down
    ($729,600)
  • and a
    6.85% Interest Rate
  • About:
    All calculations are estimates only and provided by Mainview LLC. Actual amounts will vary.
House Details
  • Sqft (Total)
    3,761 sqft
  • Sqft (Finished)
    3,761 sqft
  • Sqft (Unfinished)
    None
  • Property Type
    House
  • Sub Type
    2 Story
  • Bedrooms
    3 Bedrooms
  • Bathrooms
    3.25 Bathrooms
  • Lot
    1.06 Acres Lot
  • Lot Size Source
    County
  • Lot #
    Unspecified
  • Project
    Unspecified
  • Total Stories
    2 stories
  • Basement
    None
  • Sqft Source
    County and Seller
Property Tax Info
  • 2026 Property Taxes
    $17,605 / year
  • No Senior Exemption
Public Parcel Data & Maps
Schools
  • School District
    Bainbridge Island
  • Elementary
    xalilc Elementary
  • Middle
    Buyer To Verify
  • High School
    Bainbridge Isl
Waterfront
  • Waterfront
    Yes
  • Type
    High Bank
    Bulkhead
    Sound
  • Frontage
    83 Feet
HOA
  • HOA Dues
    Unspecified
  • Fees Assessed
    Unspecified
  • HOA Dues Include
    Unspecified
  • HOA Contact
    Unspecified
  • Management Contact
Parking
  • Covered
    2-Car
  • Types
    Driveway
    Attached Garage
  • Has Garage
    Yes
  • Nbr of Assigned Spaces
    2
Views
  • City
    Mountains
    Sound
Construction
  • Year Built
    1952
  • Home Builder
    Unspecified
Cooling
  • Includes
    Central Air
    Forced Air
    Heat Pump
Heating
  • Includes
    Forced Air
    Heat Pump
    Radiant
    Recirculation Pump
Interior
  • Flooring
    Ceramic Tile
    Hardwood
    Carpet
  • Features
    Second Primary Bedroom
    Bath Off Primary
    Dbl Pane/Storm Window
    Dining Room
    Fireplace
    French Doors
    Pantry
    Sauna
    Vaulted Ceiling(s)
    Walk-In Closet(s)
    Water Heater
    Wet Bar
    Wine/Beverage Refrigerator
    Wired for Generator
Property
  • Lot Features
    Adjacent to Public Land
    Paved
  • Site Features
    Cable TV
    Deck
    High Speed Internet
    Patio
    Propane
    Sprinkler System
Appliances
  • Included
    Dishwasher
    Dryer
    Microwave
    Refrigerator
    Stove(s)/Range(s)
    Tankless Water Heater
    Washer
Terms
  • 3rd Party Approval Required)
    No
  • Bank Owned (REO)
    No
  • Complex FHA Availability
    Unspecified
  • Potential Terms
    Cash
    Conventional
Utilities
  • Energy
    Electric
    Propane
    Wood
  • Sewer
    Septic Tank
  • Water Source
    Public
Additional Info
  • Waterfront
    Yes
  • Air Conditioning (A/C)
    Yes
  • Buyer Broker's Compensation
    2.5%
  • MLS Area #
    Area 170
  • Number of Photos
    40
  • Last Modification Time
    Saturday, April 11, 2026 5:49 PM
  • System Listing ID
    5536007
Update Info
  • Pending Or Ctg
    2026-04-12 22:25:32
  • First For Sale
    2026-04-01 16:26:37
Listing details based on information submitted to the MLS GRID as of Saturday, April 11, 2026 5:49 PM. All data is obtained from various sources and may not have been verified by broker or MLS GRID. Supplied Open House Information is subject to change without notice. All information should be independently reviewed and verified for accuracy. Properties may or may not be listed by the office/agent presenting the information.
View
Sort

Sharing

 
Pending (Back-up Requested) April 11, 2026
$3,648,000  
3 BR    3.25 BA    3,761 SQFT  
NWMLS #2497118. Danny Varona, Realogics Sotheby's Int'l Rlty
Map
 
Listing information is provided by the listing agent except as follows: BuilderB indicates that our system has grouped this listing under a home builder name that doesn't match the name provided by the listing broker. DevelopmentD indicates that our system has grouped this listing under a development name that doesn't match the name provided by the listing broker.