to
Reset
Houses
Townhouses
Condos
Land
Price
to
SQFT
to
Bdrms
to
Baths
to
Lot
to
Yr Built
to
Sold
Listed within...
Listed at least...
Offer Review
New Construction
Waterfront
Short-Sales
REO
Parking
to
Unit Flr
to
Unit Nbr
Listings
Neighborhoods
Complexes
Developments
Cities
Counties
Zip Codes
Neighborhood · Condo · Development
School District
Zip Code
City
County
Builder
Listing Numbers
Broker LAG
Boundary Lines
Labels
View
Sort
Pending Went pending in 7 days
$544,950
2 Bedrooms
1.75 Bathrooms
1,754 Sqft Condo
Unit 15C
Floor 1
Built 2005
2 Parking Spaces
HOA Dues $550 / month
PENDING SALE. This listing went Pending on April 9, 2026

Some pending sales don't become final. Contact Us if this property is really important to you so we can check on it right now. The seller has reached an agreement with a buyer to sell this property. If things go as planned, the sale will become final in the near future. The buyer and seller have agreed on a price but it's not public until the sale closes. The last published list price was $544,950.
Experience luxury and effortless living in the prestigious gated 55+ community of Palisades at Lakeland. This meticulously maintained home captures your attention from the moment you arrive, greeted by an elegant front walkway with refreshed landscaping. Inside, you'll find a masterclass in modern elegance with an open-concept floor plan that seamlessly connects the entry to the living & dining spaces. The refined kitchen has been updated with a massive granite slab island that serves as a beautiful centerpiece for meal prep or a quiet morning coffee. You’ll appreciate the stainless steel appliances, gorgeous hardwood floors, generous pantry, and convenient instant hot water dispenser. Whether you choose to enjoy a meal in the dining room or step through the slider to the partially covered back deck, fully refreshed in 2024, the transition between indoor and outdoor living is seamless and serene. Relax in the living room featuring stately crown molding and a cozy gas fireplace, or retreat to the spacious primary suite, complete with a walk-in closet and a beautifully updated 3/4 bath with dual sinks & bright skylight. A flexible den/office offers the perfect quiet workspace or hobby room, while the laundry/mudroom adds ultimate functionality with a utility sink, built-in cabinetry & beverage fridge. Enjoy a true low-maintenance lifestyle as the HOA manages all lawn care and landscaping. Welcome home to a peaceful, year-round retreat in a convenient Lakeland Hills location.
Offer Review
No offer review date was specified
Project
Palisades At Lakeland Ph IV Condo
Listing source NWMLS MLS #
2499780
Listed by
Josh Hall, John L. Scott, Inc
Contact our
Auburn
Real Estate Lead
TPG Realty | Keller Williams
Phone...
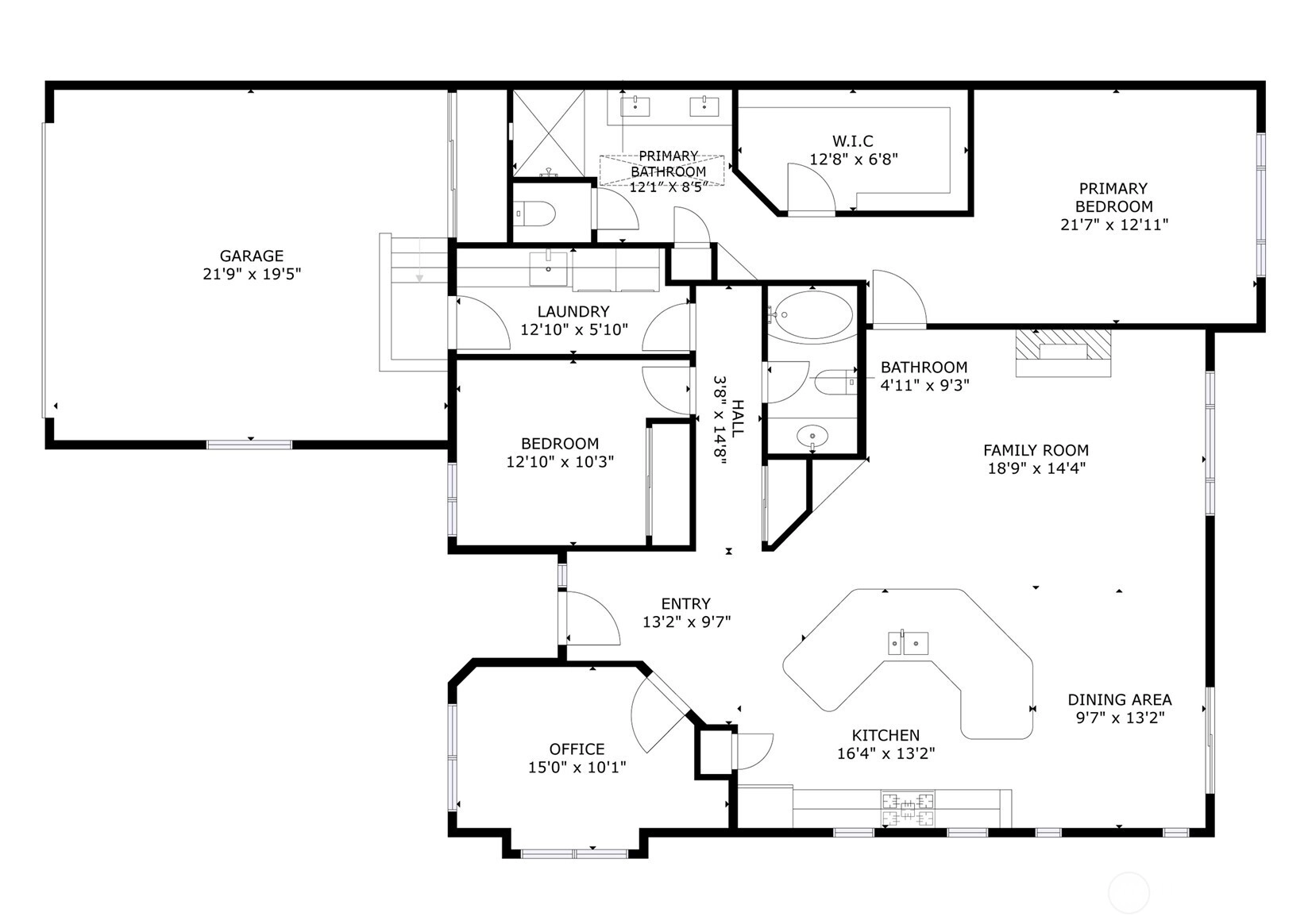
Bedroom & Bathroom Layout
MAIN
BDRM
BDRM
FULL
BATH
¾
BATH
Property History
Apr 09, 2026
Went Pending
$544,950
Apr 09, 2026
Went Pending
$544,950
NWMLS #2499780
Apr 03, 2026
Listed
$544,950
Apr 02, 2026
Listed
$544,950
NWMLS #2499780
Jun 29, 2008
Sold
$374,000
NWMLS #28051571 Annualized 9.2% / yr
Mar 16, 2005
Sold
$279,900
NWMLS #24083745
More
Listing Details
  • Status
    Pending
  • Last Listed Price
    $544,950
  • Original Price
    Same as current
  • List Date
    April 2, 2026
  • Last Status Change
    April 9, 2026
  • Last Update
    April 9, 2026
  • Days on Market
    10 Days
  • Cumulative DOM
    7 Days
  • Pending Date
    April 9, 2026
  • Days to go Pending
    7
  • $/sqft (Total)
    $311/sqft
  • $/sqft (Finished)
    $311/sqft
  • Listing Source
  • MLS Number
    2499780
  • Listing Broker
    Josh Hall
  • Listing Office
    John L. Scott, Inc
Monthly Payment Estimate
  • Principal and Interest
    $2,857 / month
  • HOA
    $550 / month
  • Property Taxes
    $492 / month
  • Homeowners Insurance
    $112 / month
  • TOTAL
    $4,011 / month

  • based on 20% down
    ($108,990)
  • and a
    6.85% Interest Rate
  • About:
    All calculations are estimates only and provided by Mainview LLC. Actual amounts will vary.
Condo Details
  • Unit #
    15C
  • Unit Floor
    1
  • Sqft (Total)
    1,754 sqft
  • Sqft (Finished)
    Unspecified
  • Sqft (Unfinished)
    None
  • Property Type
    Condo
  • Sub Type
    Condo (1 Level)
  • Bedrooms
    2 Bedrooms
  • Bathrooms
    1.75 Bathrooms
  • Lot Size
    Unspecified
  • Lot Size Source
    Unspecified
  • Project
    Palisades At Lakeland Ph IV Condo
  • Total Stories
    1 story
  • Sqft Source
    PCR
Property Tax Info
  • 2025 Property Taxes
    $5,906 / year
  • No Senior Exemption
Public Parcel Data & Maps
Schools
  • School District
    Auburn
  • Elementary
    Unspecified
  • Middle
    Unspecified
  • High School
    Unspecified
HOA
  • HOA Dues
    $550 / month
  • Fees Assessed
    Monthly
  • HOA Dues Include
    Common Area Maintenance
    Lawn Service
    Road Maintenance
  • Pets Allowed
    Subject to Restrictions
  • HOA Contact
    Unspecified
  • Management Contact
    Nova AMP
Community Features
  • Community Features
    Age Restriction
    Cable TV
    Fire Sprinklers
    Gated
    High Speed Int Avail
    Outside Entry
Building
  • Name
    Palisades At Lakeland Ph IV Condo
  • Units in Complex
    73
  • Units in Building
    3
  • Stories in Building
    1
Parking
  • Covered
    2-Car
  • Types
    Individual Garage
  • Has Garage
    Yes
  • Nbr of Assigned Spaces
    2
  • Parking Space Info
    Unspecified
Construction
  • Year Built
    2005
  • Home Builder
    Unspecified
Cooling
  • Includes
    Central Air
Heating
  • Includes
    Forced Air
Interior
  • Flooring
    Ceramic Tile
    Hardwood
    Vinyl
    Carpet
  • Features
    Cooking-Electric
    Dryer-Electric
    End Unit
    Fireplace
    Ground Floor
    Ice Maker
    Insulated Windows
    Primary Bathroom
    Sprinkler System
    Walk-In Closet(s)
    Washer
Property
  • Lot Features
    Curbs
    Paved
    Sidewalk
Appliances
  • Included
    Dishwasher
    Disposal
    Dryer
    Microwave
    Refrigerator
    Stove(s)/Range(s)
    Washer
Terms
  • 3rd Party Approval Required)
    No
  • Bank Owned (REO)
    No
  • Complex FHA Availability
    Unspecified
  • Potential Terms
    Cash
    Conventional
Utilities
  • Energy
    Electric
    Natural Gas
Additional Info
  • Waterfront
    No
  • Air Conditioning (A/C)
    Yes
  • Buyer Broker's Compensation
    2.5%
  • MLS Area #
    Area 109
  • Number of Photos
    25
  • Last Modification Time
    Thursday, April 9, 2026 11:35 AM
  • System Listing ID
    5536270
Update Info
  • Pending Or Ctg
    2026-04-09 12:01:31
  • First For Sale
    2026-04-02 08:56:18
Listing details based on information submitted to the MLS GRID as of Thursday, April 9, 2026 11:35 AM. All data is obtained from various sources and may not have been verified by broker or MLS GRID. Supplied Open House Information is subject to change without notice. All information should be independently reviewed and verified for accuracy. Properties may or may not be listed by the office/agent presenting the information.
View
Sort

Sharing

 
Pending April 9, 2026
$544,950  
2 BR    1.75 BA    1,754 SQFT  
NWMLS #2499780. Josh Hall, John L. Scott, Inc
Map
 
Listing information is provided by the listing agent except as follows: BuilderB indicates that our system has grouped this listing under a home builder name that doesn't match the name provided by the listing broker. DevelopmentD indicates that our system has grouped this listing under a development name that doesn't match the name provided by the listing broker.