to
Reset
Houses
Townhouses
Condos
Land
Price
to
SQFT
to
Bdrms
to
Baths
to
Lot
to
Yr Built
to
Sold
Listed within...
Listed at least...
Offer Review
New Construction
Waterfront
Short-Sales
REO
Parking
to
Unit Flr
to
Unit Nbr
Listings
Neighborhoods
Complexes
Developments
Cities
Counties
Zip Codes
Neighborhood · Condo · Development
School District
Zip Code
City
County
Builder
Listing Numbers
Broker LAG
Boundary Lines
Labels
View
Sort
For Sale 10 Days Online
$300,000
2 Bedrooms
1.75 Bathrooms
2,064 Sqft House
Built 1977
27,000 Sqft Lot
2-Car Garage
Escape the noise of the city and embrace the quiet beauty of Ketron Island. The ferry journey over the sound sets the tone for a truly peaceful, unplugged lifestyle. The home is set on over half an acre with mountain, meadow, and sound views in a serene natural setting. The property features 2 bedrooms, 1.75 baths, a spacious living room with expansive windows, a shop, and a bonus room—ready for your vision and personal touches. With a 2 car garage and space for an RV, it’s an ideal opportunity to create your own island retreat, whether for everyday living or a weekend getaway. Ketron is a quiet island community made up exclusively of private residences, offering a rare sense of privacy and an unusual escape from commercial activity - here you’ll experience a level of calm and seclusion that’s hard to find. With a limited ferry schedule, you are guaranteed that your desired quiet lifestyle will stay that way. The price is right - come see for yourself.
Offer Review
Will review offers when submitted
Listing source NWMLS MLS #
2501548
Listed by
Gayle Sammons, John L Scott RE West Seattle
We don't currently have a buyer representative in this area. To be sure that you're getting objective advice, we always suggest buyers work with their own agent, someone who is not affiliated with the seller.
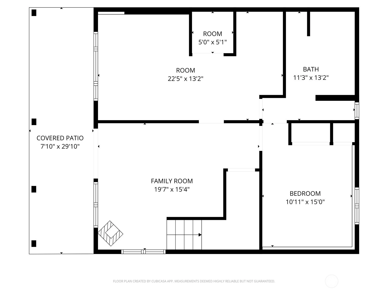
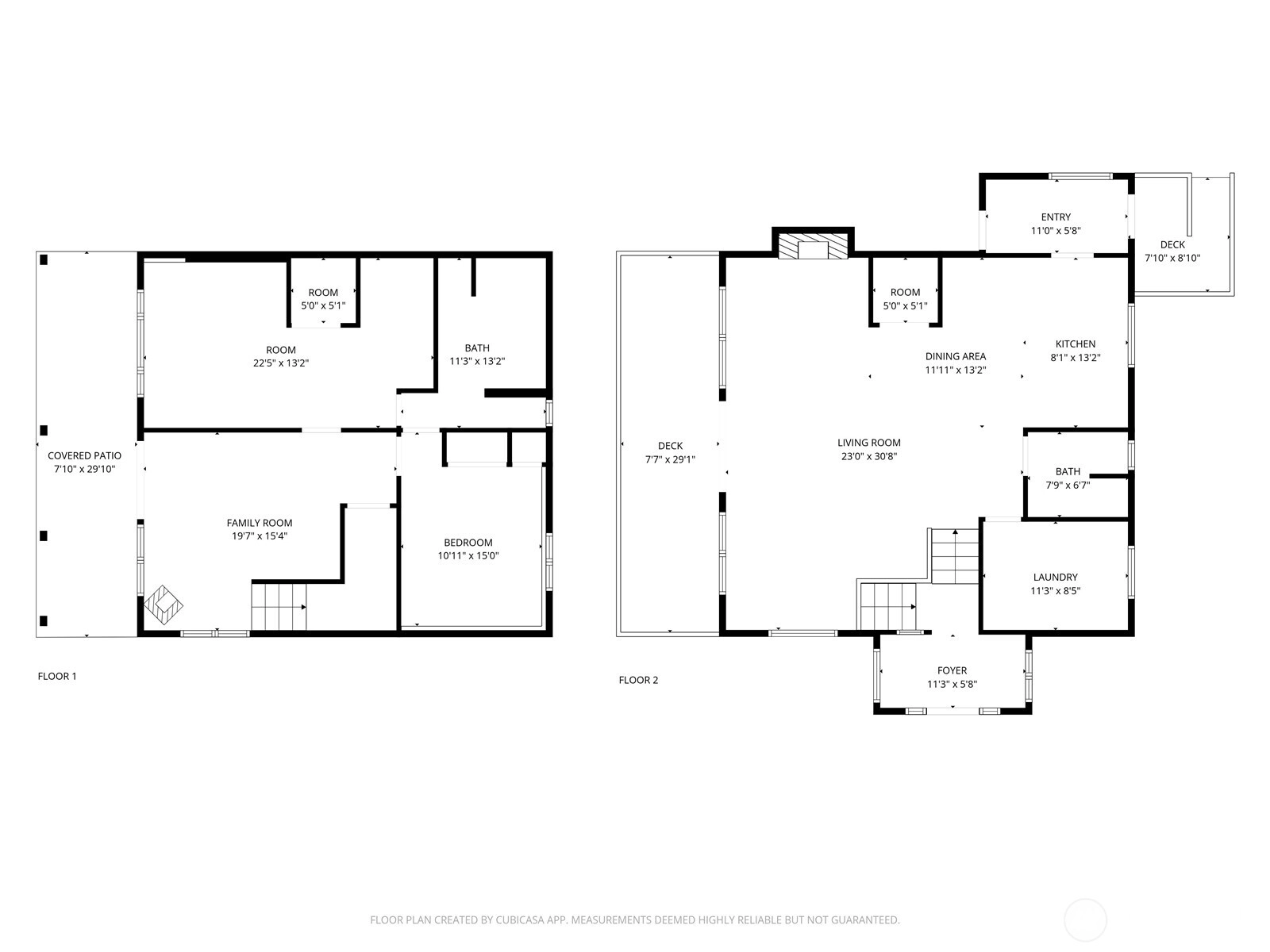
Bedroom & Bathroom Layout
SECOND
¾
BATH
LOWER
BDRM
BDRM
FULL
BATH
Property History
Apr 02, 2026
Listed
$300,000
NWMLS #2501548
Oct 15, 2025
Listed
$350,000
NWMLS #2443717
Sep 11, 2019
Sold
$240,000
NWMLS #1437322 Annualized 16.2% / yr
Apr 10, 2012
Sold
$79,000
NWMLS #218544
More
Listing Details
  • Status
    For Sale
  • Price
    $300,000
  • Original Price
    Same as current
  • List Date
    April 2, 2026
  • Last Status Change
    April 2, 2026
  • Last Update
    April 3, 2026
  • Days on Market
    10 Days
  • Cumulative DOM
    179 Days
  • $/sqft (Total)
    $145/sqft
  • $/sqft (Finished)
    $145/sqft
  • Listing Source
  • MLS Number
    2501548
  • Listing Broker
    Gayle Sammons
  • Listing Office
    John L Scott RE West Seattle
Monthly Payment Estimate
  • Principal and Interest
    $1,573 / month
  • Property Taxes
    $226 / month
  • Homeowners Insurance
    $79 / month
  • TOTAL
    $1,878 / month

  • based on 20% down
    ($60,000)
  • and a
    6.85% Interest Rate
  • About:
    All calculations are estimates only and provided by Mainview LLC. Actual amounts will vary.
House Details
  • Sqft (Total)
    2,064 sqft
  • Sqft (Finished)
    2,064 sqft
  • Sqft (Unfinished)
    None
  • Property Type
    House
  • Sub Type
    Split Entry
  • Bedrooms
    2 Bedrooms
  • Bathrooms
    1.75 Bathrooms
  • Lot
    27,000 sqft Lot
  • Lot Size Source
    Realist
  • Lot #
    Unspecified
  • Project
    Unspecified
  • Total Stories
    2 stories
  • Basement
    Finished
  • Sqft Source
    Realist
Property Tax Info
  • 2025 Property Taxes
    $2,709 / year
  • No Senior Exemption
Public Parcel Data & Maps
Schools
  • School District
    Steilacoom Historica
  • Elementary
    Buyer To Verify
  • Middle
    Buyer To Verify
  • High School
    Buyer To Verify
HOA
  • HOA Dues
    Unspecified
  • Fees Assessed
    Unspecified
  • HOA Dues Include
    Unspecified
  • HOA Contact
    Unspecified
  • Management Contact
Parking
  • Covered
    2-Car
  • Types
    Attached Garage
    RV Parking
  • Has Garage
    Yes
  • Nbr of Assigned Spaces
    2
Views
  • Mountains
    Sound
    Territorial
Construction
  • Year Built
    1977
  • Home Builder
    Unspecified
Cooling
  • Includes
    None
Heating
  • Includes
    Baseboard
    Wall Furnace
Interior
  • Flooring
    Vinyl
    Carpet
  • Features
    Ceiling Fan(s)
    Fireplace
    Pantry
    Water Heater
    Wired for Generator
Property
  • Lot Features
    Open Space
    Secluded
  • Site Features
    Cable TV
    Deck
    Patio
    RV Parking
    Shop
Appliances
  • Included
    Dishwasher
    Dryer
    Refrigerator
    Stove(s)/Range(s)
    Washer
Terms
  • 3rd Party Approval Required)
    No
  • Bank Owned (REO)
    No
  • Complex FHA Availability
    Unspecified
  • Potential Terms
    Cash
    Conventional
    FHA
    VA Loan
Utilities
  • Energy
    Electric
  • Sewer
    Septic Tank
  • Water Source
    Community
Additional Info
  • Waterfront
    No
  • Air Conditioning (A/C)
    No
  • Buyer Broker's Compensation
    2.5%
  • MLS Area #
    Area 44
  • Number of Photos
    38
  • Last Modification Time
    Friday, April 3, 2026 5:03 AM
  • System Listing ID
    5536457
Update Info
  • First For Sale
    2026-04-02 11:30:40
Listing details based on information submitted to the MLS GRID as of Friday, April 3, 2026 5:03 AM. All data is obtained from various sources and may not have been verified by broker or MLS GRID. Supplied Open House Information is subject to change without notice. All information should be independently reviewed and verified for accuracy. Properties may or may not be listed by the office/agent presenting the information.
View
Sort

Sharing

 
For Sale 10 Days Online
$300,000  
2 BR    1.75 BA    2,064 SQFT  
Offer Review: Anytime
NWMLS #2501548. Gayle Sammons, John L Scott RE West Seattle
Map
 
Listing information is provided by the listing agent except as follows: BuilderB indicates that our system has grouped this listing under a home builder name that doesn't match the name provided by the listing broker. DevelopmentD indicates that our system has grouped this listing under a development name that doesn't match the name provided by the listing broker.