to
Reset
Houses
Townhouses
Condos
Land
Price
to
SQFT
to
Bdrms
to
Baths
to
Lot
to
Yr Built
to
Sold
Listed within...
Listed at least...
Offer Review
New Construction
Waterfront
Short-Sales
REO
Parking
to
Unit Flr
to
Unit Nbr
Listings
Neighborhoods
Complexes
Developments
Cities
Counties
Zip Codes
Neighborhood · Condo · Development
School District
Zip Code
City
County
Builder
Listing Numbers
Broker LAG
Boundary Lines
Labels
View
Sort
Pending Went pending in 9 days
$737,500
4 Bedrooms
2.5 Bathrooms
2,027 Sqft House
Built 2012
6,303 Sqft Lot
2-Car Garage
HOA Dues $91 / month
PENDING SALE. This listing went Pending on April 11, 2026

Some pending sales don't become final. Contact Us if this property is really important to you so we can check on it right now. The seller has reached an agreement with a buyer to sell this property. If things go as planned, the sale will become final in the near future. The buyer and seller have agreed on a price but it's not public until the sale closes. The last published list price was $737,500.
A warm and welcoming East Hill retreat designed for how you live today. Soaring vaulted ceilings and abundant natural light highlight the open main level, where hardwood floors and a seamless layout connect the kitchen, dining, and cozy family room with fireplace. Step outside to a private, fully fenced backyard with patio—perfect for relaxing evenings or weekend hosting. Upstairs, the primary suite features an ensuite bath and walk-in closet, with three additional bedrooms providing flexibility for work, guests, or hobbies. Recent updates include a new hot water tank (2022) and stainless steel gas range (2025). Ideally located near Kent Station, grocery stores, dining, and neighborhood parks, with quick access to Hwy 167, I-5, and transit options for commuting. Situated in the Kent School District, offering convenience and long-term value in a well-connected community.
Offer Review
No offer review date was specified
Listing source NWMLS MLS #
2483564
Listed by
Hao N. Dang, Windermere Real Estate/East
Contact our
Kent
Real Estate Lead
TPG Realty | Keller Williams
Phone...
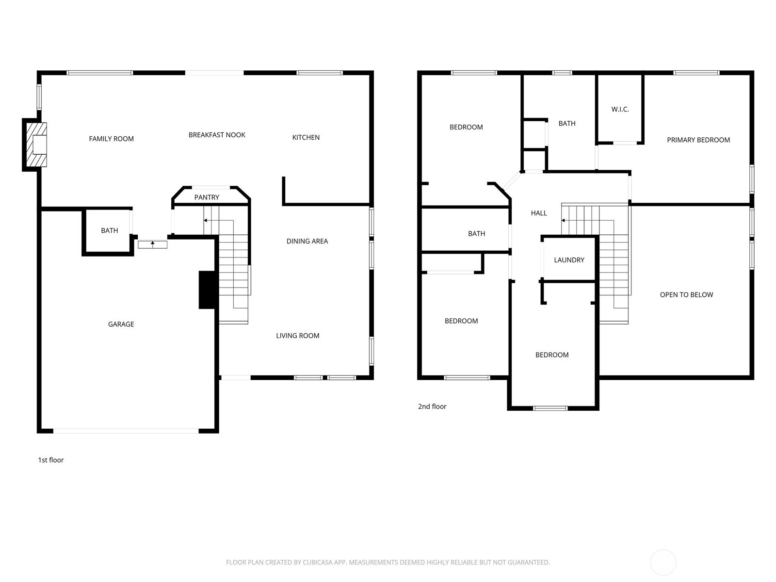
Bedroom & Bathroom Layout
SECOND
BDRM
BDRM
BDRM
BDRM
FULL
BATH
FULL
BATH
MAIN
½
BATH
Property History
Apr 12, 2026
Went Pending
$737,500
NWMLS #2483564
Apr 02, 2026
Listed
$737,500
NWMLS #2483564
Sep 18, 2012
Sold
$323,491
More
Listing Details
  • Status
    Pending
  • Last Listed Price
    $737,500
  • Original Price
    Same as current
  • List Date
    April 2, 2026
  • Last Status Change
    April 12, 2026
  • Last Update
    April 12, 2026
  • Days on Market
    13 Days
  • Cumulative DOM
    9 Days
  • Pending Date
    April 11, 2026
  • Days to go Pending
    9
  • $/sqft (Total)
    $364/sqft
  • $/sqft (Finished)
    $364/sqft
  • Listing Source
  • MLS Number
    2483564
  • Listing Broker
    Hao N. Dang
  • Listing Office
    Windermere Real Estate/East
Monthly Payment Estimate
  • Principal and Interest
    $3,866 / month
  • HOA
    $91 / month
  • Property Taxes
    $599 / month
  • Homeowners Insurance
    $148 / month
  • TOTAL
    $4,704 / month

  • based on 20% down
    ($147,500)
  • and a
    6.85% Interest Rate
  • About:
    All calculations are estimates only and provided by Mainview LLC. Actual amounts will vary.
House Details
  • Sqft (Total)
    2,027 sqft
  • Sqft (Finished)
    2,027 sqft
  • Sqft (Unfinished)
    None
  • Property Type
    House
  • Sub Type
    2 Story
  • Bedrooms
    4 Bedrooms
  • Bathrooms
    2.5 Bathrooms
  • Lot
    6,303 sqft Lot
  • Lot Size Source
    Realist
  • Lot #
    Unspecified
  • Project
    Unspecified
  • Total Stories
    2 stories
  • Basement
    None
  • Sqft Source
    Realist
Property Tax Info
  • 2025 Property Taxes
    $7,191 / year
  • No Senior Exemption
Public Parcel Data & Maps
Schools
  • School District
    Kent
  • Elementary
    Springbrook Elem
  • Middle
    Meeker Jnr High
  • High School
    Kentridge High
HOA
  • HOA Dues
    $91 / month
  • Fees Assessed
    Monthly
  • HOA Dues Include
    Common Area Maintenance
  • HOA Contact
    Unspecified
  • Management Contact
Community Features
  • Community Features
    CCRs
Parking
  • Covered
    2-Car
  • Types
    Attached Garage
  • Has Garage
    Yes
  • Nbr of Assigned Spaces
    2
Views
  • Territorial
Construction
  • Year Built
    2012
  • Home Builder
    Unspecified
Cooling
  • Includes
    Central Air
Heating
  • Includes
    Forced Air
Interior
  • Flooring
    Hardwood
  • Features
    Bath Off Primary
    Dbl Pane/Storm Window
    Dining Room
    Fireplace
    Pantry
    Security System
    Vaulted Ceiling(s)
    Walk-In Closet(s)
    Water Heater
Property
  • Lot Features
    Corner Lot
    Paved
    Sidewalk
  • Site Features
    Cable TV
    Fenced-Fully
    Gas Available
    High Speed Internet
    Patio
Appliances
  • Included
    Dishwasher
    Disposal
    Dryer
    Microwave
    Refrigerator
    Stove(s)/Range(s)
    Washer
Terms
  • 3rd Party Approval Required)
    No
  • Bank Owned (REO)
    No
  • Complex FHA Availability
    Unspecified
  • Potential Terms
    Cash
    Conventional
    FHA
    VA Loan
Utilities
  • Energy
    Electric
    Natural Gas
  • Sewer
    Sewer Connected
  • Water Source
    Public
Additional Info
  • Waterfront
    No
  • Air Conditioning (A/C)
    Yes
  • Buyer Broker's Compensation
    2.5%
  • MLS Area #
    Area 340
  • Number of Photos
    39
  • Last Modification Time
    Sunday, April 12, 2026 12:59 PM
  • System Listing ID
    5536630
Update Info
  • Pending Or Ctg
    2026-04-12 22:25:53
  • First For Sale
    2026-04-02 12:43:33
Listing details based on information submitted to the MLS GRID as of Sunday, April 12, 2026 12:59 PM. All data is obtained from various sources and may not have been verified by broker or MLS GRID. Supplied Open House Information is subject to change without notice. All information should be independently reviewed and verified for accuracy. Properties may or may not be listed by the office/agent presenting the information.
View
Sort

Sharing

 
Pending April 11, 2026
$737,500  
4 BR    2.5 BA    2,027 SQFT  
NWMLS #2483564. Hao N. Dang, Windermere Real Estate/East
Map
 
Listing information is provided by the listing agent except as follows: BuilderB indicates that our system has grouped this listing under a home builder name that doesn't match the name provided by the listing broker. DevelopmentD indicates that our system has grouped this listing under a development name that doesn't match the name provided by the listing broker.