to
Reset
Houses
Townhouses
Condos
Land
Price
to
SQFT
to
Bdrms
to
Baths
to
Lot
to
Yr Built
to
Sold
Listed within...
Listed at least...
Offer Review
New Construction
Waterfront
Short-Sales
REO
Parking
to
Unit Flr
to
Unit Nbr
Listings
Neighborhoods
Complexes
Developments
Cities
Counties
Zip Codes
Neighborhood · Condo · Development
School District
Zip Code
City
County
Builder
Listing Numbers
Broker LAG
Boundary Lines
Labels
View
Sort
For Sale 2 Days Online
$698,500
3 Bedrooms
3.5 Bathrooms
1,360 Sqft Townhome
Unit B
Built 2007
1,267 Sqft Lot
1-Car Garage
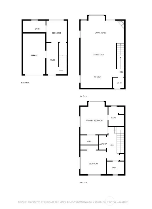
This 3-bedroom, 3.5-bath townhouse offers comfort, flexibility, and convenience in the vibrant North Beacon Hill neighborhood – just blocks from the new light rail and no HOA! With high ceilings, a cozy gas fireplace, and a powder room for guests, the main level is designed for easy living and entertaining. The open concept space features refinished hardwood floors, a bright living room and generous dining space. A breakfast bar looks into the well-appointed kitchen with abundant cabinetry, stainless steel appliances, and expansive quartz counter space. Upstairs you'll find the spacious primary suite with full bathroom and a walk-in closet with custom storage system. The second bedroom, additional full bath and convenient laundry closet complete the upper level. The lower-level offers flexibility with a bedroom, full bathroom and slider to the fully fenced yard—perfect for a guest suite, work from home office, or hobby space. Private patio becomes your spring time oasis with mature Katsura and Spanish Maple trees. Private, attached garage offers additional storage. Additional features include new carpet, beautiful millwork, two new windows, tankless hot water heater and a hydronic heating system. Located near Jefferson Park, golf, dining, and recreation. Less than half a mile to the Judkins Park Light Rail Station with direct service to downtown, Mercer Island, Bellevue, and Redmond. Easy access to I-5, I-90, transit, Harborview, stadiums, and more.
Offer Review
Will review offers when submitted
Listing source NWMLS MLS #
2504844
Listed by
Dana Penuela, Real Broker LLC
Kellie Morrill, Real Broker LLC
Open Houses
Saturday Apr 11, 2026   12pm - 2pm
Sunday Apr 12, 2026   12pm - 2pm
Contact our
Beacon Hill
Real Estate Lead
John L. Scott
Phone...
Bedroom & Bathroom Layout
SECOND
BDRM
BDRM
FULL
BATH
FULL
BATH
MAIN
½
BATH
LOWER
BDRM
FULL
BATH
Property History
Apr 08, 2026
Listed
$698,500
NWMLS #2504844
Mar 19, 2026
Listed
$750,000
NWMLS #2492062
More
Listing Details
  • Status
    For Sale
  • Price
    $698,500
  • Original Price
    Same as current
  • List Date
    April 8, 2026
  • Last Status Change
    April 9, 2026
  • Last Update
    April 9, 2026
  • Days on Market
    2 Days
  • Cumulative DOM
    22 Days
  • $/sqft (Total)
    $514/sqft
  • $/sqft (Finished)
    $514/sqft
  • Listing Source
  • MLS Number
    2504844
  • Listing Broker
    Dana Penuela
  • Listing Office
    Real Broker LLC
Monthly Payment Estimate
  • Principal and Interest
    $3,662 / month
  • Property Taxes
    $528 / month
  • Homeowners Insurance
    $141 / month
  • TOTAL
    $4,331 / month

  • based on 20% down
    ($139,700)
  • and a
    6.85% Interest Rate
  • About:
    All calculations are estimates only and provided by Mainview LLC. Actual amounts will vary.
Townhouse Details
  • Unit #
    B
  • Unit Floor
    Unspecified
  • Sqft (Total)
    1,360 sqft
  • Sqft (Finished)
    1,360 sqft
  • Sqft (Unfinished)
    None
  • Property Type
    Townhome
  • Sub Type
    Townhouse
  • Bedrooms
    3 Bedrooms
  • Bathrooms
    3.5 Bathrooms
  • Lot
    1,267 sqft Lot
  • Lot Size Source
    Realist
  • Lot #
    Unspecified
  • Project
    Unspecified
  • Total Stories
    Unspecified
  • Basement
    None
  • Sqft Source
    Realist
Property Tax Info
  • 2025 Property Taxes
    $6,332 / year
  • No Senior Exemption
Public Parcel Data & Maps
Schools
  • School District
    Seattle
  • Elementary
    Buyer To Verify
  • Middle
    Buyer To Verify
  • High School
    Buyer To Verify
HOA
  • HOA Dues
    Unspecified
  • Fees Assessed
    Unspecified
  • HOA Dues Include
    Unspecified
  • HOA Contact
    Unspecified
  • Management Contact
Building
  • Name
    Unspecified
  • Units in Complex
    Unspecified
  • Units in Building
    Unspecified
  • Stories in Building
    Unspecified
Parking
  • Covered
    1-Car
  • Types
    Driveway
    Attached Garage
  • Has Garage
    Yes
  • Nbr of Assigned Spaces
    2
Views
  • Territorial
Construction
  • Year Built
    2007
  • Home Builder
    Unspecified
Cooling
  • Includes
    None
Heating
  • Includes
    Radiant
    Recirculation Pump
    Wall Furnace
Interior
  • Flooring
    Bamboo/Cork
    Ceramic Tile
    Hardwood
    Carpet
  • Features
    Bath Off Primary
    Dbl Pane/Storm Window
    Fireplace
    Vaulted Ceiling(s)
    Walk-In Closet(s)
    Water Heater
Property
  • Lot Features
    Curbs
    Paved
    Sidewalk
  • Site Features
    Fenced-Fully
    Gas Available
    Patio
Appliances
  • Included
    Dishwasher
    Disposal
    Dryer
    Microwave
    Refrigerator
    Stove(s)/Range(s)
    Tankless Water Heater
    Washer
Terms
  • 3rd Party Approval Required)
    No
  • Bank Owned (REO)
    No
  • Complex FHA Availability
    Unspecified
  • Potential Terms
    Cash
    Conventional
    FHA
    VA Loan
Utilities
  • Energy
    Electric
    Natural Gas
  • Sewer
    Sewer Connected
  • Water Source
    Public
Additional Info
  • Waterfront
    No
  • Air Conditioning (A/C)
    No
  • Buyer Broker's Compensation
    2.5%
  • MLS Area #
    Area 385
  • Number of Photos
    26
  • Last Modification Time
    Thursday, April 9, 2026 8:27 AM
  • System Listing ID
    5538908
Update Info
  • Public Open Houses
    2026-04-08 19:27:22
  • First For Sale
    2026-04-08 17:29:59
Listing details based on information submitted to the MLS GRID as of Thursday, April 9, 2026 8:27 AM. All data is obtained from various sources and may not have been verified by broker or MLS GRID. Supplied Open House Information is subject to change without notice. All information should be independently reviewed and verified for accuracy. Properties may or may not be listed by the office/agent presenting the information.
View
Sort

Sharing

 
OPEN For Sale 2 Days Online
$698,500  
3 BR    3.5 BA    1,360 SQFT  
OPEN HOUSES
Saturday Apr 11, 2026   12pm - 2pm
Sunday Apr 12, 2026   12pm - 2pm
Offer Review: Anytime
NWMLS #2504844. Dana Penuela, Real Broker LLC
Map
 
Listing information is provided by the listing agent except as follows: BuilderB indicates that our system has grouped this listing under a home builder name that doesn't match the name provided by the listing broker. DevelopmentD indicates that our system has grouped this listing under a development name that doesn't match the name provided by the listing broker.