to
Reset
Houses
Townhouses
Condos
Land
Price
to
SQFT
to
Bdrms
to
Baths
to
Lot
to
Yr Built
to
Sold
Listed within...
Listed at least...
Offer Review
New Construction
Waterfront
Short-Sales
REO
Parking
to
Unit Flr
to
Unit Nbr
Listings
Neighborhoods
Complexes
Developments
Cities
Counties
Zip Codes
Neighborhood · Condo · Development
School District
Zip Code
City
County
Builder
Listing Numbers
Broker LAG
Boundary Lines
Labels
View
Sort
Pending Went pending in 3 days
$1,250,000
3 Bedrooms
2.25 Bathrooms
2,130 Sqft House
Built 1985
7,067 Sqft Lot
2-Car Garage
HOA Dues $100 / month
PENDING SALE. This listing went Pending on April 19, 2026

Some pending sales don't become final. Contact Us if this property is really important to you so we can check on it right now. The seller has reached an agreement with a buyer to sell this property. If things go as planned, the sale will become final in the near future. The buyer and seller have agreed on a price but it's not public until the sale closes. The last published list price was $1,250,000.
Nestled in a quiet cul-de-sac in highly-coveted Klahanie community, this 3 bedroom/2.25 bath, 2,130 sf home offers comfort and convenience. The efficient kitchen seamlessly connects the breakfast nook and inviting living room, creating a perfect flow that extends to outdoor living spaces. Step outside to a level backyard; fully-fenced, low maintenance and complete with both a deck and patio. Upstairs are three bedrooms; the ensuite primary retreat with versatile bonus lounge area or home office, five-piece bath enhanced with skylight, filling the space with natural light, complete with walk-in closet. The home has been refreshed with over $80K in improvements, including freshly painted interior, newly installed stunning Luxury Vinyl Plank(LVP) flooring on the main level and plush new carpet upstairs, new range, modern light fixtures, an upgraded heat pump/AC and furnace system for comfort. Klahanie is known for its resort-style amenities, residents enjoy: Two temperature-controlled swimming pools, playgrounds, parks, pickleball, basketball & tennis courts, P-Patch, pavilion, Yellow Lake and miles of scenic trails. Award-winning Issaquah Schools. Unbeatable location, minutes to I-90, convenient to endless shopping & dining. Pre-inspected for added confidence.
Offer Review
No offer review date was specified
Listing source NWMLS MLS #
2507058
Listed by
Chris Ho, Windermere RE/Capitol Hill,Inc
Contact our
Sammamish
Real Estate Lead
Compass
Phone...
Bedroom & Bathroom Layout
SECOND
BDRM
BDRM
BDRM
FULL
BATH
¾
BATH
MAIN
½
BATH
Property History
Apr 19, 2026
Went Pending
$1,250,000
NWMLS #2507058
Apr 16, 2026
Listed
$1,250,000
NWMLS #2507058
More
Listing Details
  • Status
    Pending
  • Last Listed Price
    $1,250,000
  • Original Price
    Same as current
  • List Date
    April 16, 2026
  • Last Status Change
    April 19, 2026
  • Last Update
    April 19, 2026
  • Days on Market
    14 Days
  • Cumulative DOM
    3 Days
  • Pending Date
    April 19, 2026
  • Days to go Pending
    3
  • $/sqft (Total)
    $587/sqft
  • $/sqft (Finished)
    $587/sqft
  • Listing Source
  • MLS Number
    2507058
  • Listing Broker
    Chris Ho
  • Listing Office
    Windermere RE/Capitol Hill,Inc
Monthly Payment Estimate
  • Principal and Interest
    $6,553 / month
  • HOA
    $100 / month
  • Property Taxes
    $892 / month
  • Homeowners Insurance
    $242 / month
  • TOTAL
    $7,787 / month

  • based on 20% down
    ($250,000)
  • and a
    6.85% Interest Rate
  • About:
    All calculations are estimates only and provided by Mainview LLC. Actual amounts will vary.
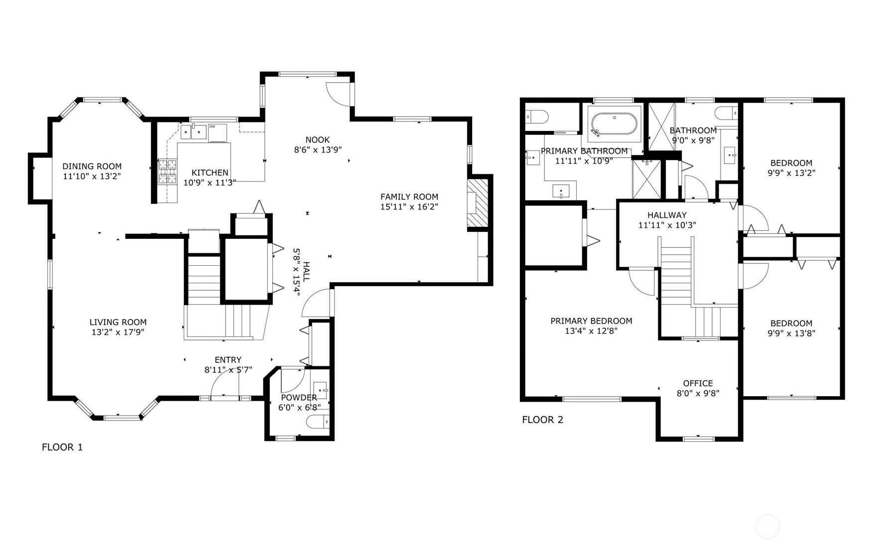
House Details
  • Sqft (Total)
    2,130 sqft
  • Sqft (Finished)
    2,130 sqft
  • Sqft (Unfinished)
    None
  • Property Type
    House
  • Sub Type
    2 Story
  • Bedrooms
    3 Bedrooms
  • Bathrooms
    2.25 Bathrooms
  • Lot
    7,067 sqft Lot
  • Lot Size Source
    Tax Records
  • Lot #
    Unspecified
  • Project
    Unspecified
  • Total Stories
    2 stories
  • Basement
    None
  • Sqft Source
    Tax Records
Property Tax Info
  • 2025 Property Taxes
    $10,700 / year
  • No Senior Exemption
Public Parcel Data & Maps
Schools
  • School District
    Issaquah
  • Elementary
    Endeavour Elem
  • Middle
    Beaver Lake Mid
  • High School
    Skyline High
HOA
  • HOA Dues
    $100 / month
  • Fees Assessed
    Monthly
  • HOA Dues Include
    Common Area Maintenance
    Road Maintenance
  • HOA Contact
    Klahanie HOA 425-392-4663
  • Management Contact
Community Features
  • Community Features
    Athletic Court
    CCRs
    Club House
    Park
    Playground
    Trail(s)
Parking
  • Covered
    2-Car
  • Types
    Driveway
    Attached Garage
  • Has Garage
    Yes
  • Nbr of Assigned Spaces
    2
Construction
  • Year Built
    1985
  • Home Builder
    Unspecified
Cooling
  • Includes
    Heat Pump
Heating
  • Includes
    Forced Air
Interior
  • Flooring
    Ceramic Tile
    Slate
    Vinyl Plank
    Carpet
  • Features
    Bath Off Primary
    Dbl Pane/Storm Window
    Dining Room
    Fireplace
    Skylight(s)
    Walk-In Closet(s)
    Water Heater
Property
  • Lot Features
    Cul-De-Sac
    Paved
    Sidewalk
  • Site Features
    Cable TV
    Deck
    Fenced-Fully
    High Speed Internet
    Patio
Appliances
  • Included
    Dishwasher
    Disposal
    Dryer
    Microwave
    Refrigerator
    See Remarks
    Stove(s)/Range(s)
    Washer
Terms
  • 3rd Party Approval Required)
    No
  • Bank Owned (REO)
    No
  • Complex FHA Availability
    Unspecified
  • Potential Terms
    Cash
    Conventional
Utilities
  • Energy
    Electric
    Natural Gas
  • Sewer
    Sewer Connected
  • Water Source
    Public
Additional Info
  • Waterfront
    No
  • Air Conditioning (A/C)
    Yes
  • Buyer Broker's Compensation
    2.5%
  • MLS Area #
    Area 540
  • Number of Photos
    36
  • Last Modification Time
    Sunday, April 19, 2026 9:18 AM
  • System Listing ID
    5542333
Update Info
  • Pending Or Ctg
    2026-04-19 09:29:28
  • First For Sale
    2026-04-16 10:37:31
Listing details based on information submitted to the MLS GRID as of Sunday, April 19, 2026 9:18 AM. All data is obtained from various sources and may not have been verified by broker or MLS GRID. Supplied Open House Information is subject to change without notice. All information should be independently reviewed and verified for accuracy. Properties may or may not be listed by the office/agent presenting the information.
View
Sort

Sharing

 
Pending April 19, 2026
$1,250,000  
3 BR    2.25 BA    2,130 SQFT  
NWMLS #2507058. Chris Ho, Windermere RE/Capitol Hill,Inc
Map
 
Listing information is provided by the listing agent except as follows: BuilderB indicates that our system has grouped this listing under a home builder name that doesn't match the name provided by the listing broker. DevelopmentD indicates that our system has grouped this listing under a development name that doesn't match the name provided by the listing broker.