to
Reset
Houses
Townhouses
Condos
Land
Price
to
SQFT
to
Bdrms
to
Baths
to
Lot
to
Yr Built
to
Sold
Listed within...
Listed at least...
Offer Review
New Construction
Waterfront
Short-Sales
REO
Parking
to
Unit Flr
to
Unit Nbr
Listings
Neighborhoods
Complexes
Developments
Cities
Counties
Zip Codes
Neighborhood · Condo · Development
School District
Zip Code
City
County
Builder
Listing Numbers
Broker LAG
Boundary Lines
Labels
View
Sort
For Sale 6 Days Online
$699,900
3 Bedrooms
2.75 Bathrooms
1,950 Sqft House
Built 1967
12,197 Sqft Lot
2-Car Garage
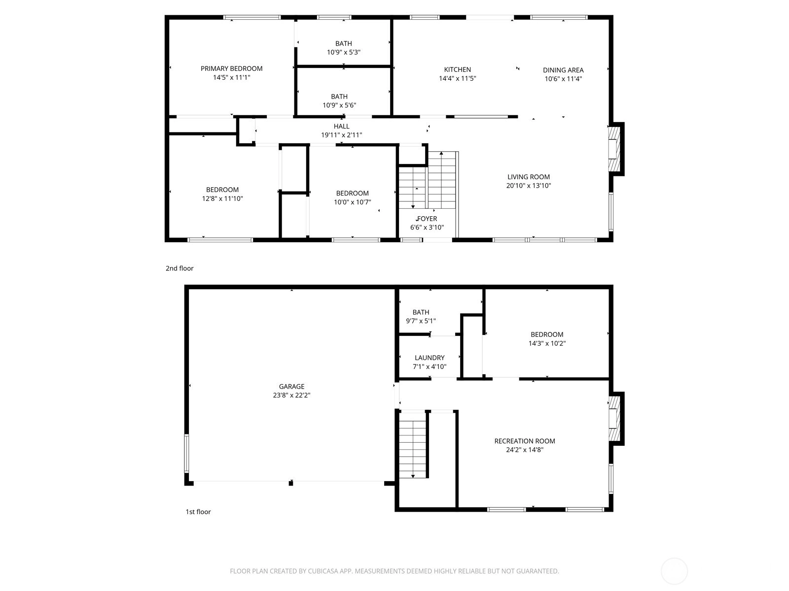
Modern split entry 3-bedroom, 3 full bath home is truly one of a kind located in desirable city of Edgewood. This home offers 1,950 square feet of living space and sits on a fenced lot larger than a quarter acre, providing ample room for gardening. The upper level boasts a stunningly renovated open-concept kitchen equipped with stainless steel appliances and striking granite countertops. This kitchen seamlessly connects both the living and dining areas. French doors in the kitchen lead out to an expansive wraparound deck, perfect for hosting barbeques and entertaining friends. The primary bedroom includes a private ensuite bathroom with a granite double vanity. The downstairs features a large family room, bonus room/den, laundry and a full bath. Upgrades include garage flooring, primary bath skylight, 30-year roof (’20) water heater and mini splits upstairs and down. This property's location offers convenient access to schools, Edgewood's shopping amenities, and is ideally situated near major highways I-5 and 167.
Offer Review
Will review offers when submitted
Listing source NWMLS MLS #
2511382
Listed by
Janet Nelson, FirstPoint Real Estate LLC
Michael D. Nelson, FirstPoint Real Estate LLC
Contact our
Edgewood
Real Estate Lead
RE/MAX Northwest Realtors
Phone...
Bedroom & Bathroom Layout
SECOND
BDRM
BDRM
BDRM
FULL
BATH
¾
BATH
LOWER
FULL
BATH
Property History
Apr 23, 2026
Listed
$699,900
NWMLS #2511382
Mar 15, 2023
Sold
$610,000
NWMLS #2023478 Annualized 8.5% / yr
Feb 26, 2023
Went Pending
$610,000
Feb 10, 2023
Back on Market
$610,000
Feb 04, 2023
Went Pending
$610,000
Jan 16, 2023
Went Pending Inspection
$610,000
Dec 22, 2022
Listed
$610,000
Feb 21, 2017
Sold
$373,000
NWMLS #1037104 Annualized 4.8% / yr
Jul 26, 2001
Sold
$179,950
NWMLS #21060279
More
Listing Details
  • Status
    For Sale
  • Price
    $699,900
  • Original Price
    Same as current
  • List Date
    April 23, 2026
  • Last Status Change
    April 23, 2026
  • Last Update
    April 24, 2026
  • Days on Market
    6 Days
  • Cumulative DOM
    6 Days
  • $/sqft (Total)
    $359/sqft
  • $/sqft (Finished)
    $359/sqft
  • Listing Source
  • MLS Number
    2511382
  • Listing Broker
    Janet Nelson
  • Listing Office
    FirstPoint Real Estate LLC
Monthly Payment Estimate
  • Principal and Interest
    $3,669 / month
  • Property Taxes
    $482 / month
  • Homeowners Insurance
    $141 / month
  • TOTAL
    $4,292 / month

  • based on 20% down
    ($139,980)
  • and a
    6.85% Interest Rate
  • About:
    All calculations are estimates only and provided by Mainview LLC. Actual amounts will vary.
House Details
  • Sqft (Total)
    1,950 sqft
  • Sqft (Finished)
    1,950 sqft
  • Sqft (Unfinished)
    None
  • Property Type
    House
  • Sub Type
    Split Entry
  • Bedrooms
    3 Bedrooms
  • Bathrooms
    2.75 Bathrooms
  • Lot
    12,197 sqft Lot
  • Lot Size Source
    Public Records
  • Lot #
    Unspecified
  • Project
    Unspecified
  • Total Stories
    2 stories
  • Basement
    Daylight
  • Sqft Source
    Public Records
Property Tax Info
  • 2025 Property Taxes
    $5,781 / year
  • No Senior Exemption
Public Parcel Data & Maps
Schools
  • School District
    Fife
  • Elementary
    Hedden Elem
  • Middle
    Surprise Lake Mid
  • High School
    Fife High
HOA
  • HOA Dues
    Unspecified
  • Fees Assessed
    Unspecified
  • HOA Dues Include
    Unspecified
  • HOA Contact
    Unspecified
  • Management Contact
Parking
  • Covered
    2-Car
  • Types
    Driveway
    Attached Garage
    RV Parking
  • Has Garage
    Yes
  • Nbr of Assigned Spaces
    8
Views
  • Territorial
Construction
  • Year Built
    1967
  • Home Builder
    Unspecified
Cooling
  • Includes
    None
Heating
  • Includes
    Baseboard
Interior
  • Flooring
    Engineered Hardwood
    Carpet
  • Features
    Bath Off Primary
    Dbl Pane/Storm Window
    Dining Room
    Fireplace
    French Doors
    Skylight(s)
    Water Heater
Property
  • Lot Features
    Corner Lot
    Dead End Street
    Paved
  • Site Features
    Deck
    Fenced-Fully
    Outbuildings
    RV Parking
Appliances
  • Included
    Dishwasher
    Microwave
    Refrigerator
    Stove(s)/Range(s)
Terms
  • 3rd Party Approval Required)
    No
  • Bank Owned (REO)
    No
  • Complex FHA Availability
    Unspecified
  • Potential Terms
    Cash
    FHA
    VA Loan
Utilities
  • Energy
    Electric
  • Sewer
    Septic Tank
  • Water Source
    Public
Additional Info
  • Waterfront
    No
  • Air Conditioning (A/C)
    No
  • Buyer Broker's Compensation
    2.5%
  • MLS Area #
    Area 72
  • Number of Photos
    35
  • Last Modification Time
    Friday, April 24, 2026 5:05 AM
  • System Listing ID
    5545280
Update Info
  • First For Sale
    2026-04-28 06:42:27
Listing details based on information submitted to the MLS GRID as of Friday, April 24, 2026 5:05 AM. All data is obtained from various sources and may not have been verified by broker or MLS GRID. Supplied Open House Information is subject to change without notice. All information should be independently reviewed and verified for accuracy. Properties may or may not be listed by the office/agent presenting the information.
View
Sort

Sharing

 
For Sale 6 Days Online
$699,900  
3 BR    2.75 BA    1,950 SQFT  
Offer Review: Anytime
NWMLS #2511382. Janet Nelson, FirstPoint Real Estate LLC
Map
 
Listing information is provided by the listing agent except as follows: BuilderB indicates that our system has grouped this listing under a home builder name that doesn't match the name provided by the listing broker. DevelopmentD indicates that our system has grouped this listing under a development name that doesn't match the name provided by the listing broker.