to
Reset
Houses
Townhouses
Condos
Land
Price
to
SQFT
to
Bdrms
to
Baths
to
Lot
to
Yr Built
to
Sold
Listed within...
Listed at least...
Offer Review
New Construction
Waterfront
Short-Sales
REO
Parking
to
Unit Flr
to
Unit Nbr
Listings
Neighborhoods
Complexes
Developments
Cities
Counties
Zip Codes
Neighborhood · Condo · Development
School District
Zip Code
City
County
Builder
Listing Numbers
Broker LAG
Boundary Lines
Labels
View
Sort
/
/
Unit #940
Sold Closed December 22, 2021
$515,000
3 Bedrooms
2 Bathrooms
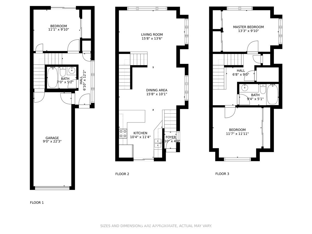
1,354 Sqft Townhome
Unit 940
Built 2007
1 Parking Space
HOA Dues $350 / month
SALE HISTORY
List price was $515,000
It took 8 days to go pending.
Then 39 days to close at $515,000
Closed at $380/SQFT.
Modern living meets easy commuting at Autumn Ridge Townhomes! Quiet neighborhood near to HWY 99, I-5, 201st Park-n-Ride, Future 185th St Light Rail, shopping, restaurants, parks and schools! Nearby new construction homes are selling at $1MM. This well maintained townhome has a great layout w/a generous kitchen, adjoining deck, and large breakfast nook. Upper level has 2 beds, 1 bath and laundry. Lower level has a bed, bath, backyard patio and access to garage. Lower level is easily separated from main & upper floors - great private office. The attached garage and additional off street spot are convenient. All units are owner occupied (no rentals) and well maintained HOA. Don't miss this fantastic home!
Offer Review
No offer review date was specified
Project
Autumn Ridge
Listing source NWMLS MLS #
1861361
Listed by
Jack Malek, Windermere RE Greenwood
Buyer's broker
Lili Glomstad, Every Door Real Estate
Contact our
Shoreline
Real Estate Lead
Windermere Real Estate / North, Inc
Phone...
Time Adjusted Estimated Value
County Wide
  • In
    King County WA
  • prices for
    Townhomes
  • have changed
    12%
  • since
    Dec 22, 2021
  • so a sale price of
    $515,000
  • would be approximately this amount today
    $576,800
Assumptions: The original sale amount reflected a normal arms length sale. Any major updates would add to the value. Any damage or deferred maintenance would subtract from the value.
Bedroom & Bathroom Layout
SECOND
BDRM
BDRM
FULL
BATH
MAIN
BDRM
LOWER
FULL
BATH
Property History
Dec 21, 2021
Sold
$515,000
NWMLS #1861361
Nov 05, 2021
Listed
$515,000
NWMLS #1861361
More
Listing Details
  • Sale Price
    $515,000
  • Closing Date
    December 22, 2021
  • Last List Price
    $515,000
  • Original Price
    Same
  • List Date
    November 5, 2021
  • Pending Date
    November 13, 2021
  • Days to go Pending
    8 days
  • $/sqft (Total)
    $380/sqft
  • $/sqft (Finished)
    $380/sqft
  • Listing Source
  • MLS Number
    1861361
  • Listing Broker
    Jack Malek
  • Listing Office
    Windermere RE Greenwood
  • Buyer's Broker
    Lili Glomstad
  • Buyer Broker's Firm
    Every Door Real Estate
Monthly Payment Estimate
  • Principal and Interest
    $2,700 / month
  • HOA
    $350 / month
  • Property Taxes
    $439 / month
  • Homeowners Insurance
    $107 / month
  • TOTAL
    $3,596 / month

  • based on 20% down
    ($103,000)
  • and a
    6.85% Interest Rate
  • About:
    All calculations are estimates only and provided by Mainview LLC. Actual amounts will vary.
Condo Details
  • Unit #
    940
  • Unit Floor
    Unspecified
  • Sqft (Total)
    1,354 sqft
  • Sqft (Finished)
    Unspecified
  • Sqft (Unfinished)
    None
  • Property Type
    Townhome
  • Sub Type
    Townhouse
  • Bedrooms
    3 Bedrooms
  • Bathrooms
    2 Bathrooms
  • Lot Size
    Unspecified
  • Lot Size Source
    Unspecified
  • Project
    Autumn Ridge
  • Total Stories
    Unspecified
  • Sqft Source
    KC Tax Record
Property Tax Info
  • 2021 Property Taxes
    $5,263 / year
  • No Senior Exemption
Public Parcel Data & Maps
Schools
  • School District
    Shoreline
  • Elementary
    Echo Lake Elem
  • Middle
    Albert Einstein Mid
  • High School
    Shorewood High
HOA
  • HOA Dues
    $350 / month
  • Fees Assessed
    Monthly
  • HOA Dues Include
    Common Area Maintenance
    Earthquake Insurance
    Lawn Service
    Road Maintenance
    Sewer
    Water
  • HOA Contact
    Unspecified
  • Management Contact
    Unspecified
Building
  • Name
    Autumn Ridge
  • Units in Complex
    9
  • Units in Building
    8
  • Stories in Building
    2
Parking
  • Has Garage
    No
  • Nbr of Assigned Spaces
    1
  • Parking Space Info
    Unspecified
Construction
  • Year Built
    2007
  • Home Builder
    Unspecified
HVAC
  • Includes
    90%+ High Efficiency
Cooling
Heating
Interior
  • Flooring
    Ceramic Tile
    Vinyl
    Carpet
Property
  • Lot Features
    Corner Lot
    Curbs
    Paved
    Sidewalk
Appliances
  • Included
    Dishwasher
    Dryer
    Disposal
    Microwave
    Refrigerator
    Stove/Range
    Washer
Terms
  • Bank Owned (REO)
    No
Utilities
Additional Info
  • Waterfront
    No
  • Air Conditioning (A/C)
    No
  • Buyer Broker's Compensation
    Unspecified
  • MLS Area #
    Area 715
  • Number of Photos
    32
  • Last Modification Time
    Thursday, December 23, 2021 6:55 AM
  • System Listing ID
    4994337
Update Info
Listing details based on information submitted to the MLS GRID as of Thursday, December 23, 2021 6:55 AM. All data is obtained from various sources and may not have been verified by broker or MLS GRID. Supplied Open House Information is subject to change without notice. All information should be independently reviewed and verified for accuracy. Properties may or may not be listed by the office/agent presenting the information.
View
Sort

Sharing

 
Sold December 22, 2021
$515,000  
3 BR    2 BA    1,354 SQFT  
NWMLS #1861361. Jack Malek, Windermere RE Greenwood
Map
 
Listing information is provided by the listing agent except as follows: BuilderB indicates that our system has grouped this listing under a home builder name that doesn't match the name provided by the listing broker. DevelopmentD indicates that our system has grouped this listing under a development name that doesn't match the name provided by the listing broker.