to
Reset
Houses
Townhouses
Condos
Land
Price
to
SQFT
to
Bdrms
to
Baths
to
Lot
to
Yr Built
to
Sold
Listed within...
Listed at least...
Offer Review
New Construction
Waterfront
Short-Sales
REO
Parking
to
Unit Flr
to
Unit Nbr
Listings
Neighborhoods
Complexes
Developments
Cities
Counties
Zip Codes
Neighborhood · Condo · Development
School District
Zip Code
City
County
Builder
Listing Numbers
Broker LAG
Boundary Lines
Labels
View
Sort
Sold Closed April 2, 2025
$685,950
3 Bedrooms
2.75 Bathrooms
2,752 Sqft House
Lot 55
New Construction
Built 2024
5,000 Sqft Lot
2-Car Garage
HOA Dues $85 / month
SALE HISTORY
List price was $685,950
It took 63 days to go pending.
Then 23 days to close at $685,950
Closed at $249/SQFT.
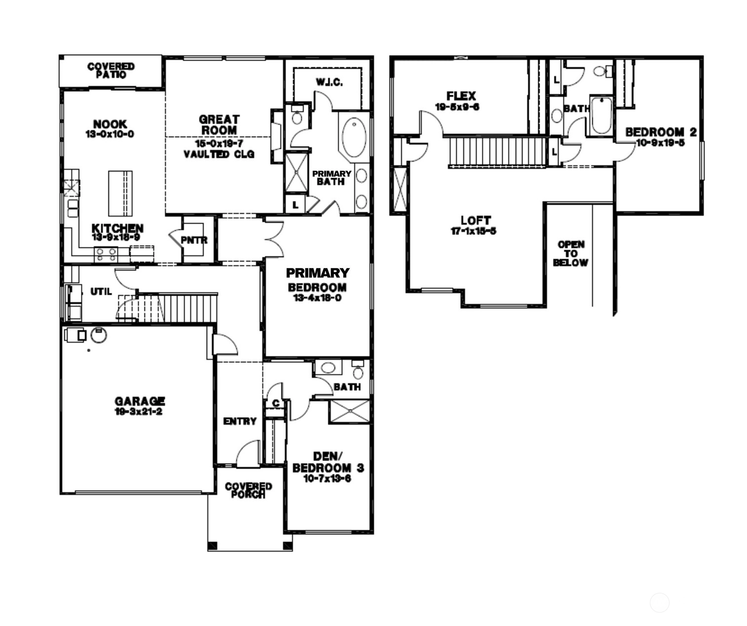
Skyview Estates by local builder, Rob Rice Homes! Main floor primary revised Linden Plan offers 2752 sf w/3 bedrooms + loft + den, 2.75 baths. Super kitchen layout open to living & dining, featuring "Shadow" Maple cabinetry, quartz counters w/full tile splash, gas range with double oven & eating bar offering great counter space plus don't miss the amazing walk-in pantry! Engineered hardwood through entry, kitchen & dining room. Quartz counter tops throughout! The upper level has a large loft, a full bath, bedroom and office/flex space. Covered patio, fenced & fully landscaped. Energy-efficient features include solar panels, heat pump, and electric hybrid hot water tank. Enjoy the convenience of quick access to I-5, shopping & schools.
Offer Review
No offer review date was specified
Builder
Evergreen Heights LLC (Evergreen Heights)
Project
Skyview Estates
Listing source NWMLS MLS #
2318129
Listed by
Vonna Madeley, Coldwell Banker Evergreen
Leslie J. Shipe, Coldwell Banker Evergreen
Buyer's broker
Tommy Lowe, Olympic Sotheby's Int'l Realty
We don't currently have a buyer representative in this area. To be sure that you're getting objective advice, we always suggest buyers work with their own agent, someone who is not affiliated with the seller.
Time Adjusted Estimated Value
Assumptions: The original sale amount reflected a normal arms length sale. Any major updates would add to the value. Any damage or deferred maintenance would subtract from the value.
Bedroom & Bathroom Layout
SECOND
BDRM
FULL
BATH
MAIN
BDRM
BDRM
FULL
BATH
¾
BATH
Property History
Apr 03, 2025
Sold
$685,950
NWMLS #2318129
Mar 10, 2025
Went Pending
$685,950
NWMLS #2318129
Jan 06, 2025
Listed
$685,950
NWMLS #2318129
More
Listing Details
  • Sale Price
    $685,950
  • Closing Date
    April 2, 2025
  • Last List Price
    $685,950
  • Original Price
    Same
  • List Date
    January 6, 2025
  • Pending Date
    March 10, 2025
  • Days to go Pending
    63 days
  • $/sqft (Total)
    $249/sqft
  • $/sqft (Finished)
    $249/sqft
  • Listing Source
  • MLS Number
    2318129
  • Listing Broker
    Vonna Madeley
  • Listing Office
    Coldwell Banker Evergreen
  • Buyer's Broker
    Tommy Lowe
  • Buyer Broker's Firm
    Olympic Sotheby's Int'l Realty
Monthly Payment Estimate
  • Principal and Interest
    $3,596 / month
  • HOA
    $85 / month
  • Property Taxes
    / month
  • Homeowners Insurance
    $138 / month
  • TOTAL
    $3,819 / month

  • based on 20% down
    ($137,190)
  • and a
    6.85% Interest Rate
  • About:
    All calculations are estimates only and provided by Mainview LLC. Actual amounts will vary.
House Details
  • Unit #
    55
  • Sqft (Total)
    2,752 sqft
  • Sqft (Finished)
    2,752 sqft
  • Sqft (Unfinished)
    None
  • Property Type
    House
  • Sub Type
    1 1/2 Story
  • Bedrooms
    3 Bedrooms
  • Bathrooms
    2.75 Bathrooms
  • Lot
    5,000 sqft Lot
  • Lot Size Source
    Plat Map
  • Lot #
    55
  • Project
    Skyview Estates
  • Total Stories
    2 stories
  • Basement
    None
  • Sqft Source
    Builder Plans
Property Tax Info
  • Property Taxes
    Unspecified
  • No Senior Exemption
Public Parcel Data & Maps
Schools
  • School District
    Tumwater
  • Elementary
    Black Lake Elem
  • Middle
    Tumwater Mid
  • High School
    A G West Black Hills
HOA
  • HOA Dues
    $85 / month
  • Fees Assessed
    Monthly
  • HOA Dues Include
    Unspecified
  • HOA Contact
    Unspecified
  • Management Contact
    Unspecified
Community Features
  • Community Features
    CCRs
Parking
  • Covered
    2-Car
  • Types
    Attached Garage
  • Has Garage
    Yes
  • Nbr of Assigned Spaces
    2
Construction
  • Year Built
    2024
  • New Construction
    Yes
  • Construction State
    Unspecified
  • Home Builder
    Evergreen Heights LLC
Cooling
  • Includes
    90%+ High Efficiency
    Forced Air
    Heat Pump
Heating
  • Includes
    90%+ High Efficiency
    Forced Air
    Heat Pump
Interior
  • Flooring
    Ceramic Tile
    Engineered Hardwood
    Vinyl
    Carpet
  • Features
    Bath Off Primary
    Ceiling Fan(s)
    Ceramic Tile
    Double Pane/Storm Window
    Dining Room
    Fireplace
    Walk-In Pantry
    Water Heater
Property
  • Lot Features
    Curbs
    Paved
    Sidewalk
  • Site Features
    Cable TV
    Fenced-Fully
    High Speed Internet
    Patio
Appliances
  • Included
    Dishwasher(s)
    Disposal
    Microwave(s)
    Stove(s)/Range(s)
Terms
  • Bank Owned (REO)
    No
Utilities
  • Energy
    Electric
    Natural Gas
    Solar (Unspecified)
  • Sewer
    Sewer Connected
  • Water Source
    Public
Additional Info
  • Waterfront
    No
  • Air Conditioning (A/C)
    Yes
  • Buyer Broker's Compensation
    2.5%
  • MLS Area #
    Area 443
  • Number of Photos
    32
  • Last Modification Time
    Saturday, May 3, 2025 4:02 AM
  • System Listing ID
    5391087
Update Info
  • Closed
    2025-04-03 15:36:49
  • Pending Or Ctg
    2025-03-10 18:56:15
  • First For Sale
    2025-01-06 13:16:14
Listing details based on information submitted to the MLS GRID as of Saturday, May 3, 2025 4:02 AM. All data is obtained from various sources and may not have been verified by broker or MLS GRID. Supplied Open House Information is subject to change without notice. All information should be independently reviewed and verified for accuracy. Properties may or may not be listed by the office/agent presenting the information.
View
Sort

Sharing

 
Sold April 2, 2025
$685,950  
3 BR    2.75 BA    2,752 SQFT  
NWMLS #2318129. Vonna Madeley, Coldwell Banker Evergreen
Map
 
Listing information is provided by the listing agent except as follows: BuilderB indicates that our system has grouped this listing under a home builder name that doesn't match the name provided by the listing broker. DevelopmentD indicates that our system has grouped this listing under a development name that doesn't match the name provided by the listing broker.