to
Reset
Houses
Townhouses
Condos
Land
Price
to
SQFT
to
Bdrms
to
Baths
to
Lot
to
Yr Built
to
Sold
Listed within...
Listed at least...
Offer Review
New Construction
Waterfront
Short-Sales
REO
Parking
to
Unit Flr
to
Unit Nbr
Listings
Neighborhoods
Complexes
Developments
Cities
Counties
Zip Codes
Neighborhood · Condo · Development
School District
Zip Code
City
County
Builder
Listing Numbers
Broker LAG
Boundary Lines
Labels
View
Sort
Pending Went pending in 182 days
$2,274,995
Originally $2,999,995
5 Bedrooms
2.75 Bathrooms
4,032 Sqft House
Lot 2
New Construction
Built 2025
9,629 Sqft Lot
2-Car Garage
HOA Dues $320 / month
PENDING SALE. This listing went Pending on November 6, 2025

Some pending sales don't become final. Contact Us if this property is really important to you so we can check on it right now. The seller has reached an agreement with a buyer to sell this property. If things go as planned, the sale will become final in the near future. The buyer and seller have agreed on a price but it's not public until the sale closes. The last published list price was $2,274,995.
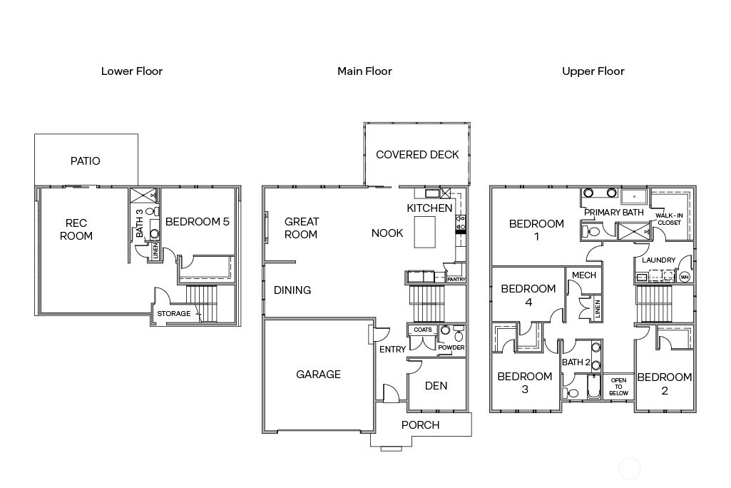
Legacy Farms Estates is a boutique community featuring 7 luxury homes ideally situated north of Kirkland in Woodinville Wine Country. This stunning residence boasts a west-facing front door fronting & backing to greenbelts for ultimate privacy! The main floor boasts a huge great room with a large dining room and den. The gourmet kitchen is designed to impress w/ plenty of space to entertain & tons of storage! Upstairs, you'll love the 4 bedrm design w/ a large primary suite w/ a gorgeous spa-like bathroom. In the fully finished basement, you'll enjoy the 5th bedrm, bath, and rec room. Discover the perfect blend of elegance, comfort, and prime location near the Eastrail & Sammamish River Trail systems. MOVE IN READY!
Offer Review
No offer review date was specified
Builder
D.R. Horton (DR Horton)
Project
Legacy Farms Estates
Listing source NWMLS MLS #
2368968
Listed by
Anika Anderson, D.R. Horton
Tanya Foster, D.R. Horton
Contact our
Woodinville
Real Estate Lead
John L. Scott
Phone...
Bedroom & Bathroom Layout
SECOND
BDRM
BDRM
BDRM
BDRM
FULL
BATH
FULL
BATH
MAIN
BDRM
¾
BATH
LOWER
Property History
Nov 06, 2025
Went Pending
$2,274,995
NWMLS #2368968
Nov 06, 2025
Went Pending
$2,274,995
Oct 01, 2025
Price Reduction arrow_downward
$2,274,995
Oct 01, 2025
Price Reduction arrow_downward
$2,274,995
NWMLS #2368968
More
Listing Details
  • Status
    Pending
  • Last Listed Price
    $2,274,995
  • Original Price
    $2,999,995
  • List Date
    May 8, 2025
  • Last Status Change
    November 6, 2025
  • Last Update
    November 7, 2025
  • Days on Market
    196 Days
  • Cumulative DOM
    182 Days
  • Pending Date
    November 6, 2025
  • Days to go Pending
    182
  • $/sqft (Total)
    $564/sqft
  • $/sqft (Finished)
    $564/sqft
  • Listing Source
  • MLS Number
    2368968
  • Listing Broker
    Anika Anderson
  • Listing Office
    D.R. Horton
Monthly Payment Estimate
  • Principal and Interest
    $11,926 / month
  • HOA
    $320 / month
  • Property Taxes
    / month
  • Homeowners Insurance
    $430 / month
  • TOTAL
    $12,676 / month

  • based on 20% down
    ($454,999)
  • and a
    6.85% Interest Rate
  • About:
    All calculations are estimates only and provided by Mainview LLC. Actual amounts will vary.
House Details
  • Unit #
    2
  • Sqft (Total)
    4,032 sqft
  • Sqft (Finished)
    4,032 sqft
  • Sqft (Unfinished)
    None
  • Property Type
    House
  • Sub Type
    2 Stories + Basement
  • Bedrooms
    5 Bedrooms
  • Bathrooms
    2.75 Bathrooms
  • Lot
    9,629 sqft Lot
  • Lot Size Source
    Builder Plans
  • Lot #
    2
  • Project
    Legacy Farms Estates
  • Total Stories
    3 stories
  • Basement
    Finished
  • Sqft Source
    Builder Plans
Property Tax Info
  • Property Taxes
    Unspecified
  • No Senior Exemption
Public Parcel Data & Maps
Schools
  • School District
    Lake Washington
  • Elementary
    Muir Elem
  • Middle
    Kamiakin Middle
  • High School
    Juanita High
HOA
  • HOA Dues
    $320 / month
  • Fees Assessed
    Monthly
  • HOA Dues Include
    Common Area Maintenance
    Road Maintenance
    Snow Removal
  • HOA Contact
    J & M Management 253-848-1947
  • Management Contact
Community Features
  • Community Features
    CCRs
Parking
  • Covered
    2-Car
  • Types
    Attached Garage
  • Has Garage
    Yes
  • Nbr of Assigned Spaces
    2
Views
  • Mountain(s)
    Territorial
Construction
  • Year Built
    2025
  • New Construction
    Yes
  • Construction State
    Unspecified
  • Home Builder
    D.R. Horton
Cooling
  • Includes
    Ductless
    Heat Pump
Heating
  • Includes
    Ductless
    Heat Pump
    Hot Water Recirc Pump
Interior
  • Flooring
    Ceramic Tile
    Laminate
    Carpet
  • Features
    Bath Off Primary
    Dining Room
    Fireplace
    Sprinkler System
    Walk-In Closet(s)
    Water Heater
Property
  • Lot Features
    Cul-De-Sac
    Curbs
    Open Space
    Paved
    Sidewalk
Appliances
  • Included
    Dishwasher(s)
    Disposal
    Microwave(s)
    Refrigerator(s)
    Stove(s)/Range(s)
Terms
  • 3rd Party Approval Required)
    No
  • Bank Owned (REO)
    No
  • Complex FHA Availability
    Unspecified
  • Potential Terms
    Cash Out
    Conventional
    VA Loan
Utilities
  • Energy
    Electric
    Natural Gas
  • Sewer
    Sewer Connected
  • Water Source
    Public
Additional Info
  • Waterfront
    No
  • Air Conditioning (A/C)
    Yes
  • Buyer Broker's Compensation
    3%
  • MLS Area #
    Area 600
  • Number of Photos
    16
  • Last Modification Time
    Thursday, November 6, 2025 7:37 PM
  • System Listing ID
    5432683
Update Info
  • Pending Or Ctg
    2025-11-06 14:57:05
  • Price Reduction
    2025-10-01 11:55:20
  • First For Sale
    2025-05-08 13:31:07
Listing details based on information submitted to the MLS GRID as of Thursday, November 6, 2025 7:37 PM. All data is obtained from various sources and may not have been verified by broker or MLS GRID. Supplied Open House Information is subject to change without notice. All information should be independently reviewed and verified for accuracy. Properties may or may not be listed by the office/agent presenting the information.
View
Sort

Sharing

 
Pending November 6, 2025
$2,274,995  
5 BR    2.75 BA    4,032 SQFT  
NWMLS #2368968. Anika Anderson, D.R. Horton
Map
 
Listing information is provided by the listing agent except as follows: BuilderB indicates that our system has grouped this listing under a home builder name that doesn't match the name provided by the listing broker. DevelopmentD indicates that our system has grouped this listing under a development name that doesn't match the name provided by the listing broker.