to
Reset
Houses
Townhouses
Condos
Land
Price
to
SQFT
to
Bdrms
to
Baths
to
Lot
to
Yr Built
to
Sold
Listed within...
Listed at least...
Offer Review
New Construction
Waterfront
Short-Sales
REO
Parking
to
Unit Flr
to
Unit Nbr
Listings
Neighborhoods
Complexes
Developments
Cities
Counties
Zip Codes
Neighborhood · Condo · Development
School District
Zip Code
City
County
Builder
Listing Numbers
Broker LAG
Boundary Lines
Labels
View
Sort
For Sale 146 Days Online
$634,950
Originally $678,374
4 Bedrooms
2.25 Bathrooms
2,330 Sqft House
Lot 37
New Construction
Built 2025
6,000 Sqft Lot
2-Car Garage
HOA Dues $56 / month
Welcome to Enclave at White River! This 2,330 sq. ft. home features 4 bedrooms, 2.5 baths, and a versatile loft. The large primary suite includes a private bath retreat and spacious walk-in closet. Upgrades showcase quartz countertops, white millwork, luxury flooring, and a cozy fireplace. Enjoy outdoor living on the extended covered patio overlooking a fully landscaped, fenced yard. Set on a large lot in a walkable small-town community. Built by an industry leader in energy efficiency. Move-in ready this October! Experience the partnership of KB HOME
Offer Review
Will review offers when submitted
Builder
Project
ENCLAVE AT White River
Listing source NWMLS MLS #
2400462
Listed by
Michele Gurr, KB Home Sales
Megan J. Hughes, KB Home Sales
Open Houses
Thursday Nov 20, 2025   10:30am - 5:30pm
Friday Nov 21, 2025   10:30am - 5:30pm
Saturday Nov 22, 2025   10:30am - 5:30pm
Sunday Nov 23, 2025   10:30am - 5:30pm
Monday Nov 24, 2025   10:30am - 5:30pm
Contact our
Buckley
Real Estate Lead
RE/MAX Northwest Realtors
Phone...
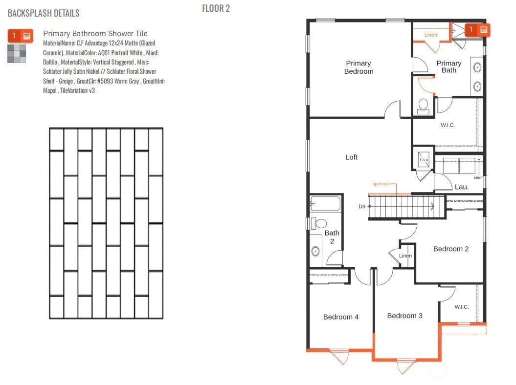
Bedroom & Bathroom Layout
SECOND
BDRM
BDRM
BDRM
BDRM
FULL
BATH
¾
BATH
MAIN
½
BATH
Property History
Nov 14, 2025
Price Reduction arrow_downward
$634,950
NWMLS #2400462
Nov 11, 2025
Price Increase arrow_upward
$649,950
NWMLS #2400462
Oct 28, 2025
Price Reduction arrow_downward
$629,950
NWMLS #2400462
Oct 15, 2025
Price Reduction arrow_downward
$634,950
NWMLS #2400462
Sep 19, 2025
Price Increase arrow_upward
$649,950
NWMLS #2400462
Aug 13, 2025
Price Reduction arrow_downward
$647,950
NWMLS #2400462
Jul 24, 2025
Price Reduction arrow_downward
$662,950
NWMLS #2400462
Jul 10, 2025
Price Reduction arrow_downward
$663,374
NWMLS #2400462
Jun 27, 2025
Listed
$678,374
NWMLS #2400462
More
Listing Details
  • Status
    For Sale
  • Price
    $634,950
  • Original Price
    $678,374
  • List Date
    June 27, 2025
  • Last Status Change
    June 27, 2025
  • Last Update
    November 16, 2025
  • Days on Market
    146 Days
  • Cumulative DOM
    39 Days
  • $/sqft (Total)
    $273/sqft
  • $/sqft (Finished)
    $273/sqft
  • Listing Source
  • MLS Number
    2400462
  • Listing Broker
    Michele Gurr
  • Listing Office
    KB Home Sales
Monthly Payment Estimate
  • Principal and Interest
    $3,328 / month
  • HOA
    $56 / month
  • Property Taxes
    / month
  • Homeowners Insurance
    $129 / month
  • TOTAL
    $3,513 / month

  • based on 20% down
    ($126,990)
  • and a
    6.85% Interest Rate
  • About:
    All calculations are estimates only and provided by Mainview LLC. Actual amounts will vary.
House Details
  • Unit #
    37
  • Sqft (Total)
    2,330 sqft
  • Sqft (Finished)
    2,330 sqft
  • Sqft (Unfinished)
    None
  • Property Type
    House
  • Sub Type
    2 Story
  • Bedrooms
    4 Bedrooms
  • Bathrooms
    2.25 Bathrooms
  • Lot
    6,000 sqft Lot
  • Lot Size Source
    Builder Plans
  • Lot #
    37
  • Project
    ENCLAVE AT White River
  • Total Stories
    2 stories
  • Basement
    None
  • Sqft Source
    Builder Plans
Property Tax Info
  • Property Taxes
    Unspecified
  • No Senior Exemption
Public Parcel Data & Maps
Schools
  • School District
    White River
  • Elementary
    Elk Ridge Elem
  • Middle
    Glacier Middle Sch
  • High School
    White River High
HOA
  • HOA Dues
    $56 / month
  • Fees Assessed
    Monthly
  • HOA Dues Include
    Common Area Maintenance
    Lawn Service
    Road Maintenance
  • HOA Contact
    J&M Management 206-215-9732
  • Management Contact
Community Features
  • Community Features
    CCRs
Parking
  • Covered
    2-Car
  • Types
    Attached Garage
  • Has Garage
    Yes
  • Nbr of Assigned Spaces
    2
Views
  • Mountain(s)
    Partial
Construction
  • Year Built
    2025
  • New Construction
    Yes
  • Construction State
    Unspecified
  • Home Builder
    KB Home
Cooling
  • Includes
    90%+ High Efficiency
    Heat Pump
Heating
  • Includes
    90%+ High Efficiency
    Heat Pump
Interior
  • Flooring
    Vinyl Plank
    Carpet
  • Features
    Bath Off Primary
    Double Pane/Storm Window
    Dining Room
    Fireplace
    Loft
    Walk-In Closet(s)
Property
  • Lot Features
    Curbs
    Paved
    Sidewalk
  • Site Features
    Fenced-Partially
    High Speed Internet
Appliances
  • Included
    Dishwasher(s)
    Disposal
    Microwave(s)
    Stove(s)/Range(s)
Terms
  • 3rd Party Approval Required)
    No
  • Bank Owned (REO)
    No
  • Complex FHA Availability
    Unspecified
  • Potential Terms
    Cash Out
    Conventional
    FHA
    USDA Loan
    VA Loan
Utilities
  • Energy
    Electric
  • Sewer
    Sewer Connected
  • Water Source
    Public
Additional Info
  • Waterfront
    No
  • Air Conditioning (A/C)
    Yes
  • Buyer Broker's Compensation
    2%
  • MLS Area #
    Area 111
  • Number of Photos
    19
  • Last Modification Time
    Sunday, November 16, 2025 12:59 PM
  • System Listing ID
    5454775
Update Info
  • Price Reduction
    2025-11-14 16:20:07
  • Public Open Houses
    2025-11-14 14:25:11
  • Price Increase
    2025-11-11 10:40:33
  • First For Sale
    2025-06-27 13:43:09
Listing details based on information submitted to the MLS GRID as of Sunday, November 16, 2025 12:59 PM. All data is obtained from various sources and may not have been verified by broker or MLS GRID. Supplied Open House Information is subject to change without notice. All information should be independently reviewed and verified for accuracy. Properties may or may not be listed by the office/agent presenting the information.
View
Sort

Sharing

 
OPEN For Sale 146 Days Online
$634,950     ▼ Price Reduction $15K
4 BR    2.25 BA    2,330 SQFT  
OPEN HOUSES
Thursday Nov 20, 2025   10:30am - 5:30pm
Friday Nov 21, 2025   10:30am - 5:30pm
Saturday Nov 22, 2025   10:30am - 5:30pm
Sunday Nov 23, 2025   10:30am - 5:30pm
Monday Nov 24, 2025   10:30am - 5:30pm
Offer Review: Anytime
NWMLS #2400462. Michele Gurr, KB Home Sales
Map
 
Listing information is provided by the listing agent except as follows: BuilderB indicates that our system has grouped this listing under a home builder name that doesn't match the name provided by the listing broker. DevelopmentD indicates that our system has grouped this listing under a development name that doesn't match the name provided by the listing broker.