to
Reset
Houses
Townhouses
Condos
Land
Price
to
SQFT
to
Bdrms
to
Baths
to
Lot
to
Yr Built
to
Sold
Listed within...
Listed at least...
Offer Review
New Construction
Waterfront
Short-Sales
REO
Parking
to
Unit Flr
to
Unit Nbr
Listings
Neighborhoods
Complexes
Developments
Cities
Counties
Zip Codes
Neighborhood · Condo · Development
School District
Zip Code
City
County
Builder
Listing Numbers
Broker LAG
Boundary Lines
Labels
View
Sort
Pending Went pending in 12 days
$1,149,990
4 Bedrooms
2.75 Bathrooms
3,031 Sqft House
New Construction
Built 2025
4.61 Acres Lot
3-Car Garage
PENDING SALE. This listing went Pending on September 6, 2025

Some pending sales don't become final. Contact Us if this property is really important to you so we can check on it right now. The seller has reached an agreement with a buyer to sell this property. If things go as planned, the sale will become final in the near future. The buyer and seller have agreed on a price but it's not public until the sale closes. The last published list price was $1,149,990.
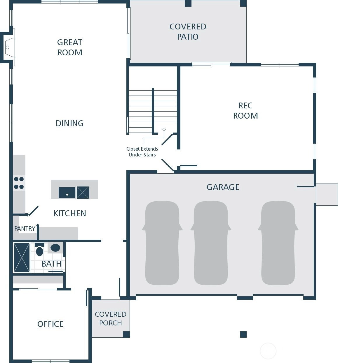
Experience magnificent mountain views and acreage lots at our gorgeous community, Liberty Mountain. THE JEFFERSON model features sought after living spaces and thoughtful extras. The main floor features a great room, office/guest bedroom, walk in pantry, and large rec room. Upstairs, you’ll find the relaxing owner’s suite complete with a luxurious 5 piece bathroom, additional 3 bedrooms and bonus room offer flexibility and ample room to grow. Quality craftsmanship highlights premium features such as quartz countertops, engineered hardwood, & Stainless-Steel appliances. Located just minutes from I-5 . Enjoy the benefits of NEW, low maintenance, updated safety and modern lifestyle design elements. Plenty of space for building a shop. NO HOA!
Offer Review
No offer review date was specified
Project
LIBERTY MOUNTAIN
Listing source NWMLS MLS #
2425202
Listed by
Ebrima Wadda, Windermere Real Estate/M2, LLC
Contact our
Arlington
Real Estate Lead
Buck Real Estate
Phone...
Bedroom & Bathroom Layout
SECOND
BDRM
BDRM
BDRM
BDRM
FULL
BATH
FULL
BATH
MAIN
¾
BATH
Property History
Sep 06, 2025
Went Pending
$1,149,990
NWMLS #2425202
Aug 25, 2025
Listed
$1,149,990
NWMLS #2425202
Apr 22, 2025
Listed
$1,499,900
NWMLS #2363612
More
Listing Details
  • Status
    Pending
  • Last Listed Price
    $1,149,990
  • Original Price
    Same as current
  • List Date
    August 25, 2025
  • Last Status Change
    September 6, 2025
  • Last Update
    September 6, 2025
  • Days on Market
    40 Days
  • Cumulative DOM
    12 Days
  • Pending Date
    September 6, 2025
  • Days to go Pending
    12
  • $/sqft (Total)
    $379/sqft
  • $/sqft (Finished)
    $379/sqft
  • Listing Source
  • MLS Number
    2425202
  • Listing Broker
    Ebrima Wadda
  • Listing Office
    Windermere Real Estate/M2, LLC
Monthly Payment Estimate
  • Principal and Interest
    $6,028 / month
  • Property Taxes
    / month
  • Homeowners Insurance
    $223 / month
  • TOTAL
    $6,251 / month

  • based on 20% down
    ($229,998)
  • and a
    6.85% Interest Rate
  • About:
    All calculations are estimates only and provided by Mainview LLC. Actual amounts will vary.
House Details
  • Sqft (Total)
    3,031 sqft
  • Sqft (Finished)
    3,031 sqft
  • Sqft (Unfinished)
    None
  • Property Type
    House
  • Sub Type
    2 Story
  • Bedrooms
    4 Bedrooms
  • Bathrooms
    2.75 Bathrooms
  • Lot
    4.61 Acres Lot
  • Lot Size Source
    Builder
  • Lot #
    7
  • Project
    LIBERTY MOUNTAIN
  • Total Stories
    2 stories
  • Sqft Source
    Builder
Property Tax Info
  • Property Taxes
    Unspecified
  • No Senior Exemption
Public Parcel Data & Maps
  • County
    Snohomish County
  • Parcel #
    LIBERTYMT7
  • County Website
    Unspecified
  • County Parcel Map
    Unspecified
  • County GIS Map
    Unspecified
  • About
    County links provided by Mainview LLC
Schools
  • School District
    Lakewood
  • Elementary
    Unspecified
  • Middle
    Unspecified
  • High School
    Lakewood High
HOA
  • HOA Dues
    Unspecified
  • Fees Assessed
    Unspecified
  • HOA Dues Include
    Unspecified
  • HOA Contact
    Unspecified
  • Management Contact
Parking
  • Covered
    3-Car
  • Types
    Attached Garage
  • Has Garage
    Yes
  • Nbr of Assigned Spaces
    3
Views
  • Mountain(s)
    Territorial
Construction
  • Year Built
    2025
  • New Construction
    Yes
  • Construction State
    Unspecified
  • Home Builder
    Cornerstone Homes
Cooling
  • Includes
    Central A/C
    Forced Air
    Heat Pump
Heating
  • Includes
    Heat Pump
Interior
  • Flooring
    Engineered Hardwood
    Carpet
  • Features
    Bath Off Primary
    Dining Room
Property
Appliances
  • Included
    Dishwasher(s)
    Disposal
    Microwave(s)
    Stove(s)/Range(s)
Terms
  • 3rd Party Approval Required)
    No
  • Bank Owned (REO)
    No
  • Complex FHA Availability
    Unspecified
  • Potential Terms
    Cash Out
    Conventional
    FHA
    VA Loan
Utilities
  • Energy
    Electric
    Propane
  • Sewer
    Septic Tank
  • Water Source
    Shared Well
Additional Info
  • Waterfront
    No
  • Air Conditioning (A/C)
    Yes
  • Buyer Broker's Compensation
    2%
  • MLS Area #
    Area 770
  • Number of Photos
    35
  • Last Modification Time
    Saturday, September 6, 2025 2:20 PM
  • System Listing ID
    5475784
Update Info
  • Pending Or Ctg
    2025-09-06 14:26:41
  • First For Sale
    2025-08-25 15:41:17
Listing details based on information submitted to the MLS GRID as of Saturday, September 6, 2025 2:20 PM. All data is obtained from various sources and may not have been verified by broker or MLS GRID. Supplied Open House Information is subject to change without notice. All information should be independently reviewed and verified for accuracy. Properties may or may not be listed by the office/agent presenting the information.
View
Sort

Sharing

 
Pending September 6, 2025
$1,149,990  
4 BR    2.75 BA    3,031 SQFT  
NWMLS #2425202. Ebrima Wadda, Windermere Real Estate/M2, LLC
Map
 
Listing information is provided by the listing agent except as follows: BuilderB indicates that our system has grouped this listing under a home builder name that doesn't match the name provided by the listing broker. DevelopmentD indicates that our system has grouped this listing under a development name that doesn't match the name provided by the listing broker.