to
Reset
Houses
Townhouses
Condos
Land
Price
to
SQFT
to
Bdrms
to
Baths
to
Lot
to
Yr Built
to
Sold
Listed within...
Listed at least...
Offer Review
New Construction
Waterfront
Short-Sales
REO
Parking
to
Unit Flr
to
Unit Nbr
Listings
Neighborhoods
Complexes
Developments
Cities
Counties
Zip Codes
Neighborhood · Condo · Development
School District
Zip Code
City
County
Builder
Listing Numbers
Broker LAG
Boundary Lines
Labels
View
Sort
▼ Recently Reduced $20K
For Sale 212 Days Online
$464,950
Originally $654,950
3 Bedrooms
2.5 Bathrooms
2,494 Sqft House
New Construction
Built 2025
4,050 Sqft Lot
No Garage
HOA Dues $69 / month
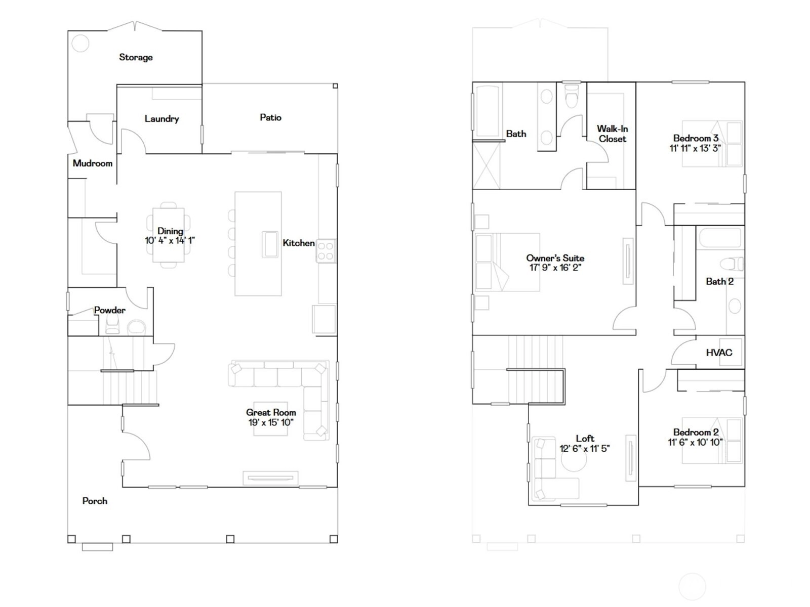
Welcome to the move-in ready Lighthouse on homesite 91 at Madrona Ridge, a beautiful Lennar community. This home features an open-concept layout among the great room, dining area, and gourmet kitchen, plus an outdoor patio. Enjoy extra storage space on the main floor for added convenience. Upstairs hosts a loft and three bedrooms, including the owner’s suite with a spa-like bathroom and spacious walk-in closet. With Lennar’s signature Everything’s Included®, enjoy stainless steel appliances, quartz countertops, shaker-style cabinetry and more—all at no extra cost. Buyer’s broker must be registered during the customer’s first interaction with a Lennar Associate to be eligible for compensation.
Offer Review
Will review offers when submitted
Builder
Project
Lennar at Madrona Ridge
Listing source NWMLS MLS #
2432975
Listed by
John Bahamon, Lennar Sales Corp.
Jackie Daum, Lennar Sales Corp.
We don't currently have a buyer representative in this area. To be sure that you're getting objective advice, we always suggest buyers work with their own agent, someone who is not affiliated with the seller.
Bedroom & Bathroom Layout
SECOND
BDRM
BDRM
BDRM
FULL
BATH
FULL
BATH
MAIN
½
BATH
Property History
Apr 09, 2026
Price Reduction arrow_downward
$464,950
NWMLS #2432975
Apr 06, 2026
Price Reduction arrow_downward
$484,950
NWMLS #2432975
Mar 23, 2026
Price Increase arrow_upward
$489,950
NWMLS #2432975
Mar 20, 2026
Price Reduction arrow_downward
$484,950
NWMLS #2432975
Mar 10, 2026
Price Reduction arrow_downward
$489,950
NWMLS #2432975
Mar 02, 2026
Price Reduction arrow_downward
$499,050
NWMLS #2432975
Feb 24, 2026
Price Reduction arrow_downward
$509,950
NWMLS #2432975
Jan 30, 2026
Price Reduction arrow_downward
$524,950
NWMLS #2432975
Jan 26, 2026
Price Reduction arrow_downward
$539,950
NWMLS #2432975
Jan 23, 2026
Price Reduction arrow_downward
$549,950
NWMLS #2432975
Jan 09, 2026
Price Reduction arrow_downward
$559,950
NWMLS #2432975
Jan 05, 2026
Price Reduction arrow_downward
$569,950
NWMLS #2432975
Jan 02, 2026
Price Reduction arrow_downward
$574,950
NWMLS #2432975
Dec 29, 2025
Price Reduction arrow_downward
$579,950
NWMLS #2432975
Dec 23, 2025
Price Reduction arrow_downward
$584,100
NWMLS #2432975
Dec 01, 2025
Price Increase arrow_upward
$599,950
NWMLS #2432975
Nov 26, 2025
Price Reduction arrow_downward
$596,300
NWMLS #2432975
Nov 21, 2025
Price Reduction arrow_downward
$630,450
NWMLS #2432975
Oct 27, 2025
Price Reduction arrow_downward
$638,700
NWMLS #2432975
Oct 20, 2025
Price Reduction arrow_downward
$640,450
NWMLS #2432975
Oct 16, 2025
Price Reduction arrow_downward
$644,950
NWMLS #2432975
Sep 12, 2025
Listed
$654,950
NWMLS #2432975
More
Listing Details
  • Status
    For Sale
  • Price
    $464,950
  • Original Price
    $654,950
  • List Date
    September 12, 2025
  • Last Status Change
    September 12, 2025
  • Last Update
    April 9, 2026
  • Days on Market
    212 Days
  • Cumulative DOM
    167 Days
  • $/sqft (Total)
    $186/sqft
  • $/sqft (Finished)
    $186/sqft
  • Listing Source
  • MLS Number
    2432975
  • Listing Broker
    John Bahamon
  • Listing Office
    Lennar Sales Corp.
Monthly Payment Estimate
  • Principal and Interest
    $2,437 / month
  • HOA
    $69 / month
  • Property Taxes
    $339 / month
  • Homeowners Insurance
    $100 / month
  • TOTAL
    $2,946 / month

  • based on 20% down
    ($92,990)
  • and a
    6.85% Interest Rate
  • About:
    All calculations are estimates only and provided by Mainview LLC. Actual amounts will vary.
House Details
  • Sqft (Total)
    2,494 sqft
  • Sqft (Finished)
    2,494 sqft
  • Sqft (Unfinished)
    None
  • Property Type
    House
  • Sub Type
    2 Story
  • Bedrooms
    3 Bedrooms
  • Bathrooms
    2.5 Bathrooms
  • Lot
    4,050 sqft Lot
  • Lot Size Source
    Plot Plan
  • Lot #
    91
  • Project
    Lennar at Madrona Ridge
  • Total Stories
    2 stories
  • Basement
    None
  • Sqft Source
    Builder Site Plan
Property Tax Info
  • 2026 Property Taxes
    $4,074 / year
  • No Senior Exemption
Public Parcel Data & Maps
  • County
    Jefferson County
  • Parcel #
    0091
  • County Website
    Unspecified
  • County Parcel Map
    Unspecified
  • County GIS Map
    Unspecified
  • About
    County links provided by Mainview LLC
Schools
  • School District
    Port Townsend #50
  • Elementary
    Salish Coast Elementary
  • Middle
    Blue Heron Mid
  • High School
    Port Townsend High
HOA
  • HOA Dues
    $69 / month
  • Fees Assessed
    Monthly
  • HOA Dues Include
    Common Area Maintenance
  • HOA Contact
    J & M Managment 253-848-1947
  • Management Contact
Community Features
  • Community Features
    Trail(s)
Parking
  • Covered
    Unspecified
  • Types
    Driveway
  • Has Garage
    No
Construction
  • Year Built
    2025
  • New Construction
    Yes
  • Construction State
    Unspecified
  • Home Builder
    Lennar
Cooling
  • Includes
    90%+ High Efficiency
    Central Air
    Forced Air
    Heat Pump
Heating
  • Includes
    90%+ High Efficiency
    Forced Air
    Heat Pump
Interior
  • Flooring
    Ceramic Tile
    Vinyl Plank
    Carpet
  • Features
    Bath Off Primary
    Dbl Pane/Storm Window
    Dining Room
    Loft
    Walk-In Closet(s)
    Water Heater
Property
  • Lot Features
    Curbs
    Paved
    Sidewalk
Appliances
  • Included
    Dishwasher
    Disposal
    Microwave
    Refrigerator
    Stove(s)/Range(s)
Terms
  • 3rd Party Approval Required)
    No
  • Bank Owned (REO)
    No
  • Complex FHA Availability
    Unspecified
  • Potential Terms
    Cash
    Conventional
    FHA
    USDA Loan
    VA Loan
Utilities
  • Energy
    Electric
  • Sewer
    Sewer Connected
  • Water Source
    Public
Additional Info
  • Waterfront
    No
  • Air Conditioning (A/C)
    Yes
  • Buyer Broker's Compensation
    2.5%
  • MLS Area #
    Area 480
  • Number of Photos
    32
  • Last Modification Time
    Thursday, April 9, 2026 12:43 PM
  • System Listing ID
    5482324
Update Info
  • Price Reduction
    2026-04-09 13:03:19
  • Price Increase
    2026-03-23 16:55:13
  • First For Sale
    2025-09-12 11:10:13
Listing details based on information submitted to the MLS GRID as of Thursday, April 9, 2026 12:43 PM. All data is obtained from various sources and may not have been verified by broker or MLS GRID. Supplied Open House Information is subject to change without notice. All information should be independently reviewed and verified for accuracy. Properties may or may not be listed by the office/agent presenting the information.
View
Sort

Sharing

 
For Sale 212 Days Online
$464,950     ▼ Price Reduction $20K
3 BR    2.5 BA    2,494 SQFT  
Offer Review: Anytime
NWMLS #2432975. John Bahamon, Lennar Sales Corp.
Map
 
Listing information is provided by the listing agent except as follows: BuilderB indicates that our system has grouped this listing under a home builder name that doesn't match the name provided by the listing broker. DevelopmentD indicates that our system has grouped this listing under a development name that doesn't match the name provided by the listing broker.