to
Reset
Houses
Townhouses
Condos
Land
Price
to
SQFT
to
Bdrms
to
Baths
to
Lot
to
Yr Built
to
Sold
Listed within...
Listed at least...
Offer Review
New Construction
Waterfront
Short-Sales
REO
Parking
to
Unit Flr
to
Unit Nbr
Listings
Neighborhoods
Complexes
Developments
Cities
Counties
Zip Codes
Neighborhood · Condo · Development
School District
Zip Code
City
County
Builder
Listing Numbers
Broker LAG
Boundary Lines
Labels
View
Sort
For Sale 22 Days Online
$1,060,300
Originally $1,075,950
4 Bedrooms
3.5 Bathrooms
3,374 Sqft House
New Construction
Built 2025
5,653 Sqft Lot
2-Car Garage
HOA Dues $70 / month
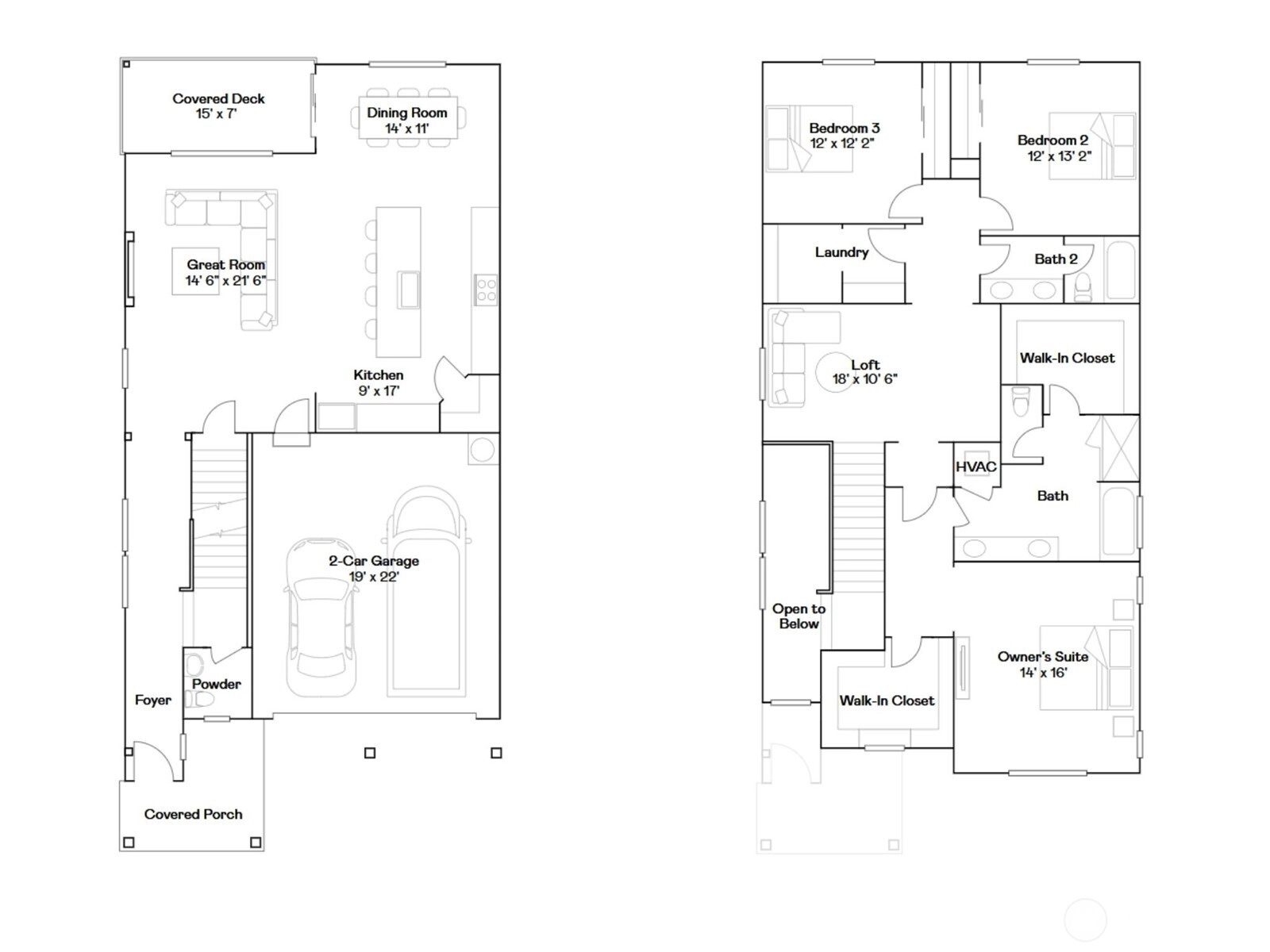
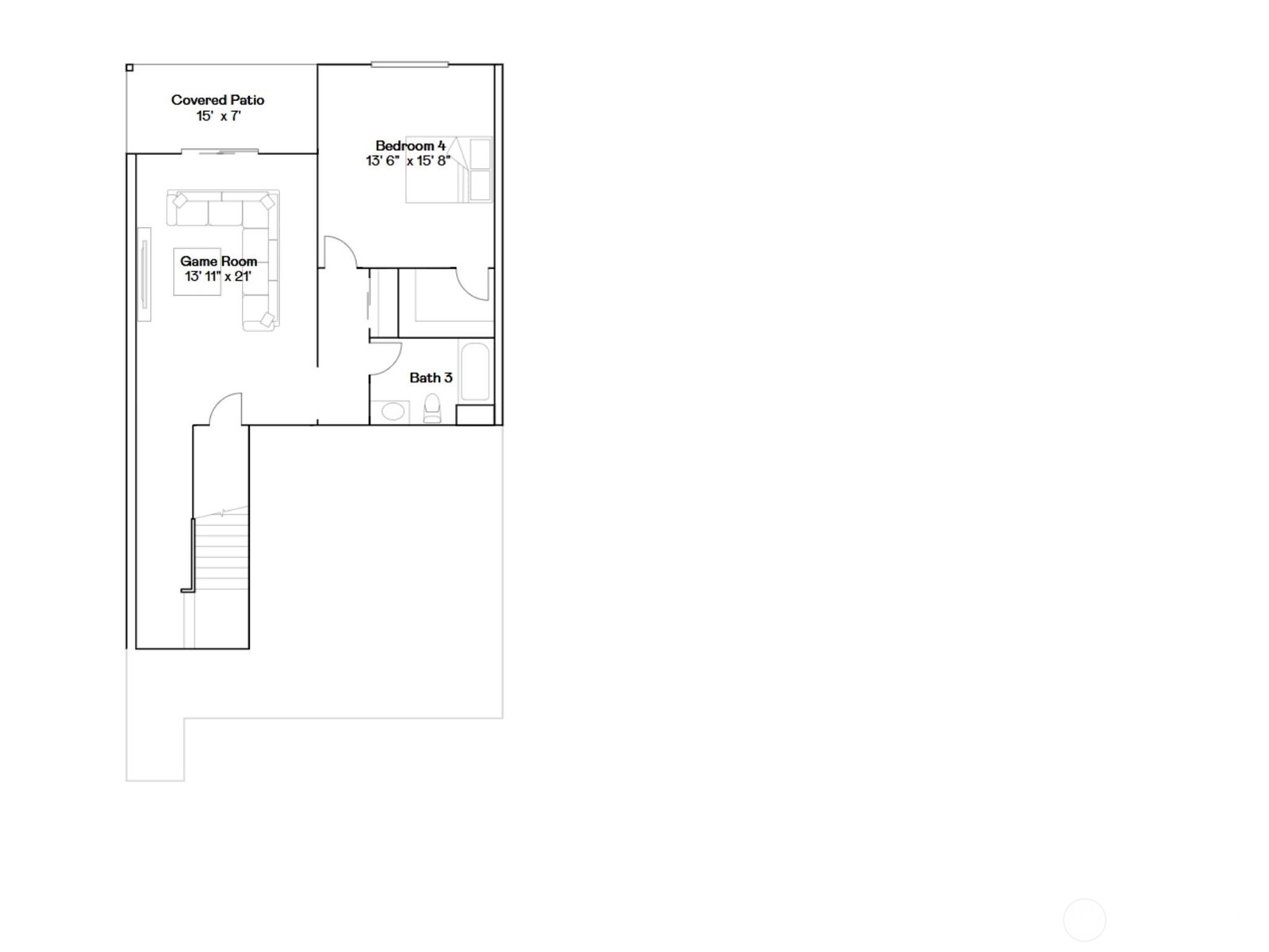
Welcome to the East-facing Columbia on homesite 33 at Garibaldi, a Lennar community. This home features an open-concept design among the kitchen, dining room, and great room. The covered deck extends your living space outdoors. Upstairs hosts a loft and three bedrooms, including an owner’s suite with a spa-like bathroom and dual walk-in closets. The basement adds more value, featuring a bonus room, a bedroom, and a full bath, along with a covered patio. With Lennar’s signature Everything’s Included®, enjoy new stainless steel appliances, quartz countertops, and shaker-style cabinetry and more—all at no extra cost. Buyer's broker must be registered during customers first interaction with Lennar Associate to be eligible for compensation
Offer Review
Will review offers when submitted
Builder
Project
Lennar at Garibaldi
Listing source NWMLS MLS #
2433896
Listed by
Ty Kolsky, Lennar Sales Corp.
Karen Akers, Lennar Sales Corp.
Open Houses
Tuesday Oct 7, 2025   11am - 5pm
Wednesday Oct 8, 2025   11am - 5pm
Thursday Oct 9, 2025   11am - 5pm
Friday Oct 10, 2025   11am - 5pm
Saturday Oct 11, 2025   11am - 5pm
Contact our
Monroe
Real Estate Lead
Buck Real Estate
Phone...
Bedroom & Bathroom Layout
SECOND
BDRM
BDRM
BDRM
FULL
BATH
FULL
BATH
MAIN
½
BATH
LOWER
BDRM
FULL
BATH
Property History
Oct 06, 2025
Price Increase arrow_upward
$1,060,300
NWMLS #2433896
Sep 29, 2025
Price Increase arrow_upward
$1,051,900
NWMLS #2433896
Sep 22, 2025
Price Reduction arrow_downward
$1,036,150
NWMLS #2433896
Sep 16, 2025
Listed
$1,075,950
NWMLS #2433896
More
Listing Details
  • Status
    For Sale
  • Price
    $1,060,300
  • Original Price
    $1,075,950
  • List Date
    September 15, 2025
  • Last Status Change
    September 16, 2025
  • Last Update
    October 7, 2025
  • Days on Market
    22 Days
  • Cumulative DOM
    23 Days
  • $/sqft (Total)
    $314/sqft
  • $/sqft (Finished)
    $314/sqft
  • Listing Source
  • MLS Number
    2433896
  • Listing Broker
    Ty Kolsky
  • Listing Office
    Lennar Sales Corp.
Monthly Payment Estimate
  • Principal and Interest
    $5,558 / month
  • HOA
    $70 / month
  • Property Taxes
    $726 / month
  • Homeowners Insurance
    $207 / month
  • TOTAL
    $6,561 / month

  • based on 20% down
    ($212,060)
  • and a
    6.85% Interest Rate
  • About:
    All calculations are estimates only and provided by Mainview LLC. Actual amounts will vary.
House Details
  • Sqft (Total)
    3,374 sqft
  • Sqft (Finished)
    3,374 sqft
  • Sqft (Unfinished)
    None
  • Property Type
    House
  • Sub Type
    2 Stories + Basement
  • Bedrooms
    4 Bedrooms
  • Bathrooms
    3.5 Bathrooms
  • Lot
    5,653 sqft Lot
  • Lot Size Source
    Plot Plan
  • Lot #
    33
  • Project
    Lennar at Garibaldi
  • Total Stories
    3 stories
  • Basement
    Finished
  • Sqft Source
    Builder Site Plan
Property Tax Info
  • 2025 Property Taxes
    $8,715 / year
  • No Senior Exemption
Public Parcel Data & Maps
  • County
    Snohomish County
  • Parcel #
    0033
  • County Website
    Unspecified
  • County Parcel Map
    Unspecified
  • County GIS Map
    Unspecified
  • About
    County links provided by Mainview LLC
Schools
  • School District
    Monroe
  • Elementary
    Chain Lake Elem
  • Middle
    Park Place Middle Sc
  • High School
    Monroe High
HOA
  • HOA Dues
    $70 / month
  • Fees Assessed
    Monthly
  • HOA Dues Include
    Unspecified
  • HOA Contact
    J & M Managment 253-848-1947
  • Management Contact
Community Features
  • Community Features
    CCRs
    Park
    Playground
Parking
  • Covered
    2-Car
  • Types
    Driveway
    Attached Garage
  • Has Garage
    Yes
  • Nbr of Assigned Spaces
    2
Construction
  • Year Built
    2025
  • New Construction
    Yes
  • Construction State
    Unspecified
  • Home Builder
    Lennar
Cooling
  • Includes
    Forced Air
    Heat Pump
Heating
  • Includes
    90%+ High Efficiency
    Forced Air
    Heat Pump
Interior
  • Flooring
    Ceramic Tile
    Vinyl Plank
    Carpet
  • Features
    Bath Off Primary
    Double Pane/Storm Window
    Dining Room
    Fireplace
    High Tech Cabling
    Loft
    SMART Wired
    Walk-In Closet(s)
    Walk-In Pantry
    Water Heater
Property
  • Lot Features
    Curbs
    Paved
    Sidewalk
  • Site Features
    Deck
    Patio
Appliances
  • Included
    Dishwasher(s)
    Disposal
    Double Oven
    Microwave(s)
    Refrigerator(s)
    Stove(s)/Range(s)
Terms
  • 3rd Party Approval Required)
    No
  • Bank Owned (REO)
    No
  • Complex FHA Availability
    Unspecified
  • Potential Terms
    Cash Out
    Conventional
    FHA
    USDA Loan
    VA Loan
Utilities
  • Energy
    Electric
  • Sewer
    Sewer Connected
  • Water Source
    Public
Additional Info
  • Waterfront
    No
  • Air Conditioning (A/C)
    Yes
  • Buyer Broker's Compensation
    15000$
  • MLS Area #
    Area 750
  • Number of Photos
    28
  • Last Modification Time
    Tuesday, October 7, 2025 7:59 AM
  • System Listing ID
    5483131
Update Info
  • Price Increase
    2025-10-06 17:22:00
  • Public Open Houses
    2025-10-02 13:10:09
  • Price Reduction
    2025-09-22 15:36:40
  • First For Sale
    2025-09-16 08:37:50
Listing details based on information submitted to the MLS GRID as of Tuesday, October 7, 2025 7:59 AM. All data is obtained from various sources and may not have been verified by broker or MLS GRID. Supplied Open House Information is subject to change without notice. All information should be independently reviewed and verified for accuracy. Properties may or may not be listed by the office/agent presenting the information.
View
Sort

Sharing

 
OPEN For Sale 22 Days Online
$1,060,300  
4 BR    3.5 BA    3,374 SQFT  
OPEN HOUSES
Tuesday Oct 7, 2025   11am - 5pm
Wednesday Oct 8, 2025   11am - 5pm
Thursday Oct 9, 2025   11am - 5pm
Friday Oct 10, 2025   11am - 5pm
Saturday Oct 11, 2025   11am - 5pm
Offer Review: Anytime
NWMLS #2433896. Ty Kolsky, Lennar Sales Corp.
Map
 
Listing information is provided by the listing agent except as follows: BuilderB indicates that our system has grouped this listing under a home builder name that doesn't match the name provided by the listing broker. DevelopmentD indicates that our system has grouped this listing under a development name that doesn't match the name provided by the listing broker.