to
Reset
Houses
Townhouses
Condos
Land
Price
to
SQFT
to
Bdrms
to
Baths
to
Lot
to
Yr Built
to
Sold
Listed within...
Listed at least...
Offer Review
New Construction
Waterfront
Short-Sales
REO
Parking
to
Unit Flr
to
Unit Nbr
Listings
Neighborhoods
Complexes
Developments
Cities
Counties
Zip Codes
Neighborhood · Condo · Development
School District
Zip Code
City
County
Builder
Listing Numbers
Broker LAG
Boundary Lines
Labels
View
Sort
▼ Recently Reduced $51K
For Sale 17 Days Online
$699,000
Originally $750,000
3 Bedrooms
1 Bathroom
2,250 Sqft House (1,350 Finished)
Built 1927
3,350 Sqft Lot
No Garage
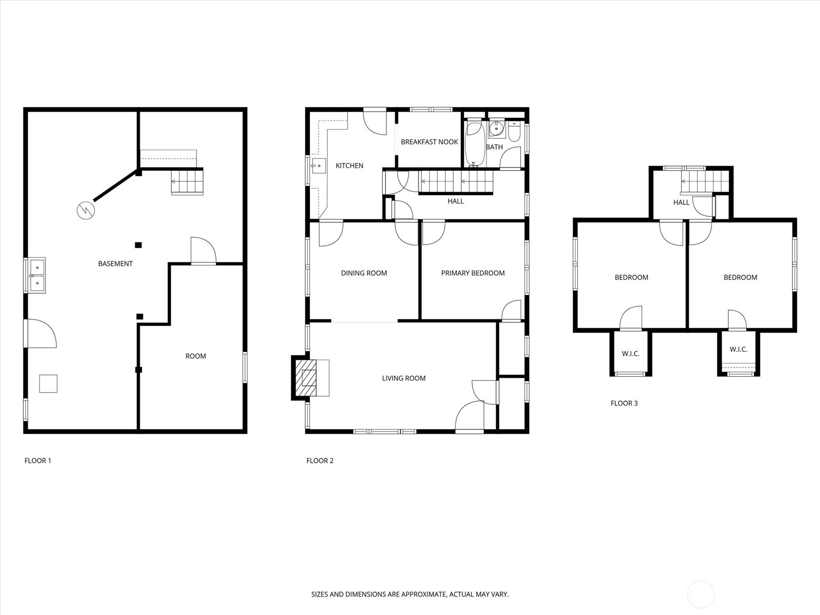
1st time on the market for this Craftsman Bungalow exuding charm and potential! The floor plan features a main floor living room with gas fireplace, dining room, kitchen with breakfast nook, bedroom and full bathroom, plus two spacious bedrooms upstairs. The 900sf unfinished basement has exterior access, ~7ft ft ceilings, and excellent ADU potential. Alley access with room to add a garage. NR3 Zoning. 6th Ave offers a community orchard. Ideal location – just a 10-minute stroll to Greenlake and its parks and trails, with high walk and bike scores, less than 1 mile from Tangletown, close to Wallingford, the University District, the Light Rail, restaurants, PCC & Whole Foods, cafes, shops, near I-5, and within easy reach of all Seattle offers.
Offer Review
Will review offers when submitted
Listing source NWMLS MLS #
2438531
Listed by
Jessie L. Grandpre, Windermere Real Estate/M2, LLC
Contact our
Green Lake
Real Estate Lead
Wicklund Real Estate
Phone...
Bedroom & Bathroom Layout
SECOND
BDRM
BDRM
MAIN
BDRM
FULL
BATH
LOWER
Property History
Oct 10, 2025
Price Reduction arrow_downward
$699,000
NWMLS #2438531
Sep 26, 2025
Listed
$750,000
NWMLS #2438531
More
Listing Details
  • Status
    For Sale
  • Price
    $699,000
  • Original Price
    $750,000
  • List Date
    September 26, 2025
  • Last Status Change
    September 26, 2025
  • Last Update
    October 11, 2025
  • Days on Market
    17 Days
  • Cumulative DOM
    17 Days
  • $/sqft (Total)
    $311/sqft
  • $/sqft (Finished)
    $518/sqft
  • Listing Source
  • MLS Number
    2438531
  • Listing Broker
    Jessie L. Grandpre
  • Listing Office
    Windermere Real Estate/M2, LLC
Monthly Payment Estimate
  • Principal and Interest
    $3,664 / month
  • Property Taxes
    $604 / month
  • Homeowners Insurance
    $141 / month
  • TOTAL
    $4,409 / month

  • based on 20% down
    ($139,800)
  • and a
    6.85% Interest Rate
  • About:
    All calculations are estimates only and provided by Mainview LLC. Actual amounts will vary.
House Details
  • Sqft (Total)
    2,250 sqft
  • Sqft (Finished)
    1,350 sqft
  • Sqft (Unfinished)
    900 sqft
  • Property Type
    House
  • Sub Type
    1 1/2 Stories + Basement
  • Bedrooms
    3 Bedrooms
  • Bathrooms
    1 Bathroom
  • Lot
    3,350 sqft Lot
  • Lot Size Source
    Realist
  • Lot #
    3-4
  • Project
    Weedins Homestead Add
  • Total Stories
    2 stories
  • Basement
    Unfinished
  • Sqft Source
    Realist
Property Tax Info
  • 2025 Property Taxes
    $7,242 / year
  • No Senior Exemption
Public Parcel Data & Maps
Schools
  • School District
    Seattle
  • Elementary
    Green Lake
  • Middle
    Eckstein Mid
  • High School
    Roosevelt High
HOA
  • HOA Dues
    Unspecified
  • Fees Assessed
    Unspecified
  • HOA Dues Include
    Unspecified
  • HOA Contact
    Unspecified
  • Management Contact
Parking
  • Covered
    Unspecified
  • Types
    Off Street
  • Has Garage
    No
Construction
  • Year Built
    1927
  • Home Builder
    Unspecified
Cooling
  • Includes
    None
Heating
  • Includes
    Forced Air
Interior
  • Flooring
    Ceramic Tile
    Hardwood
    Vinyl
  • Features
    Fireplace
    Water Heater
Property
  • Lot Features
    Curbs
    Paved
    Sidewalk
  • Site Features
    Patio
Appliances
Terms
  • 3rd Party Approval Required)
    No
  • Bank Owned (REO)
    No
  • Complex FHA Availability
    Unspecified
  • Potential Terms
    Cash Out
    Conventional
    Rehab Loan
Utilities
  • Energy
    Electric
    Natural Gas
  • Sewer
    Sewer Connected
  • Water Source
    Public
Additional Info
  • Waterfront
    No
  • Air Conditioning (A/C)
    No
  • Buyer Broker's Compensation
    3%
  • MLS Area #
    Area 705
  • Number of Photos
    40
  • Last Modification Time
    Friday, October 10, 2025 5:27 PM
  • System Listing ID
    5487339
Update Info
  • Price Reduction
    2025-10-10 17:47:32
  • First For Sale
    2025-09-26 13:12:06
Listing details based on information submitted to the MLS GRID as of Friday, October 10, 2025 5:27 PM. All data is obtained from various sources and may not have been verified by broker or MLS GRID. Supplied Open House Information is subject to change without notice. All information should be independently reviewed and verified for accuracy. Properties may or may not be listed by the office/agent presenting the information.
View
Sort

Sharing

 
For Sale 17 Days Online
$699,000     ▼ Price Reduction $51K
3 BR    1 BA    2,250 SQFT  
Offer Review: Anytime
NWMLS #2438531. Jessie L. Grandpre, Windermere Real Estate/M2, LLC
Map
 
Listing information is provided by the listing agent except as follows: BuilderB indicates that our system has grouped this listing under a home builder name that doesn't match the name provided by the listing broker. DevelopmentD indicates that our system has grouped this listing under a development name that doesn't match the name provided by the listing broker.