to
Reset
Houses
Townhouses
Condos
Land
Price
to
SQFT
to
Bdrms
to
Baths
to
Lot
to
Yr Built
to
Sold
Listed within...
Listed at least...
Offer Review
New Construction
Waterfront
Short-Sales
REO
Parking
to
Unit Flr
to
Unit Nbr
Listings
Neighborhoods
Complexes
Developments
Cities
Counties
Zip Codes
Neighborhood · Condo · Development
School District
Zip Code
City
County
Builder
Listing Numbers
Broker LAG
Boundary Lines
Labels
View
Sort
Sold Closed October 27, 2025
$875,000
3 Bedrooms
2.5 Bathrooms
1,791 Sqft House
Built 2012
4,356 Sqft Lot
2-Car Garage
HOA Dues $65 / month
SALE HISTORY
List price was $859,000
It took 2 days to go pending.
Then 23 days to close at $875,000
Closed at $489/SQFT.
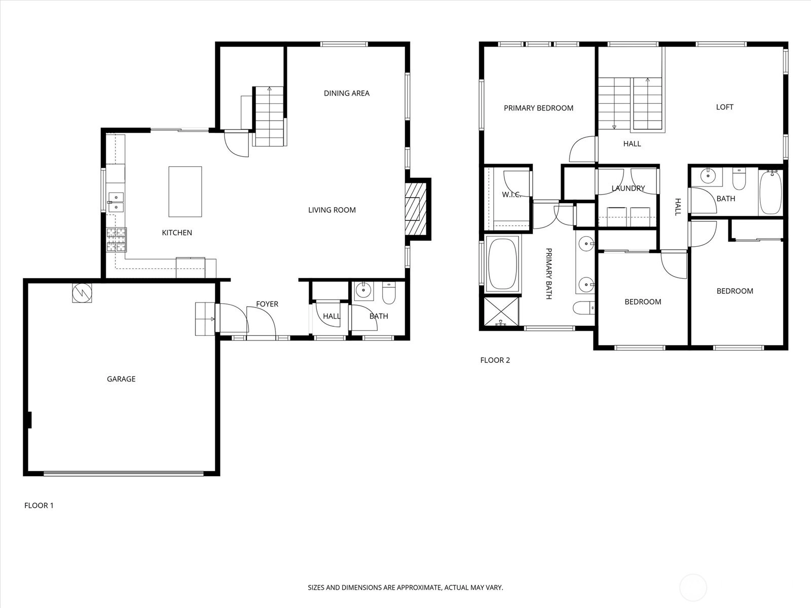
Step into a home designed for both comfort and convenience. The open dining area connects seamlessly to a bright kitchen with walk-in pantry, while all bedrooms are thoughtfully placed upstairs for privacy and easy living. The spacious primary suite includes a relaxing bath and generous walk-in closet, giving you a true retreat. Modern updates bring confidence—newer vinyl plank floors, a one-year-old water tank, and double-pane storm windows for year-round efficiency. A freshly painted garage and Level 2 EV charger add everyday ease. Best of all, you’re minutes from shopping, dining, and I-405, keeping everything you need within reach.
Offer Review
No offer review date was specified
Listing source NWMLS MLS #
2437121
Listed by
Hao N. Dang, Windermere Real Estate/East
Buyer's broker
Dang Tran, Skyline Properties, Inc.
Contact our
Lynnwood
Real Estate Lead
Windermere Real Estate / North, Inc
Phone...
Time Adjusted Estimated Value
Assumptions: The original sale amount reflected a normal arms length sale. Any major updates would add to the value. Any damage or deferred maintenance would subtract from the value.
Bedroom & Bathroom Layout
SECOND
BDRM
BDRM
BDRM
FULL
BATH
FULL
BATH
MAIN
½
BATH
Property History
Oct 27, 2025
Sold
$875,000
NWMLS #2437121
Oct 04, 2025
Went Pending
$859,000
NWMLS #2437121
Oct 02, 2025
Listed
$859,000
NWMLS #2437121
More
Listing Details
  • Sale Price
    $875,000
  • Closing Date
    October 27, 2025
  • Last List Price
    $859,000
  • Original Price
    Same
  • List Date
    October 2, 2025
  • Pending Date
    October 4, 2025
  • Days to go Pending
    2 days
  • $/sqft (Total)
    $489/sqft
  • $/sqft (Finished)
    $489/sqft
  • Listing Source
  • MLS Number
    2437121
  • Listing Broker
    Hao N. Dang
  • Listing Office
    Windermere Real Estate/East
  • Buyer's Broker
    Dang Tran
  • Buyer Broker's Firm
    Skyline Properties, Inc.
Monthly Payment Estimate
  • Principal and Interest
    $4,587 / month
  • HOA
    $65 / month
  • Property Taxes
    $544 / month
  • Homeowners Insurance
    $173 / month
  • TOTAL
    $5,369 / month

  • based on 20% down
    ($175,000)
  • and a
    6.85% Interest Rate
  • About:
    All calculations are estimates only and provided by Mainview LLC. Actual amounts will vary.
House Details
  • Sqft (Total)
    1,791 sqft
  • Sqft (Finished)
    1,791 sqft
  • Sqft (Unfinished)
    None
  • Property Type
    House
  • Sub Type
    2 Story
  • Bedrooms
    3 Bedrooms
  • Bathrooms
    2.5 Bathrooms
  • Lot
    4,356 sqft Lot
  • Lot Size Source
    Realist
  • Lot #
    Unspecified
  • Project
    Logan Pointe
  • Total Stories
    2 stories
  • Basement
    None
  • Sqft Source
    Realist
Property Tax Info
  • 2025 Property Taxes
    $6,528 / year
  • No Senior Exemption
Public Parcel Data & Maps
Schools
  • School District
    Edmonds
  • Elementary
    Brier Elem
  • Middle
    Alderwood Mid
  • High School
    Mountlake Terrace Hi
HOA
  • HOA Dues
    $65 / month
  • Fees Assessed
    Monthly
  • HOA Dues Include
    Common Area Maintenance
    Road Maintenance
  • HOA Contact
    Unspecified
  • Management Contact
    Unspecified
Community Features
  • Community Features
    CCRs
    Playground
    Trail(s)
Parking
  • Covered
    2-Car
  • Types
    Attached Garage
  • Has Garage
    Yes
  • Nbr of Assigned Spaces
    2
Views
  • Territorial
Construction
  • Year Built
    2012
  • Home Builder
    Unspecified
Cooling
  • Includes
    Central A/C
    Forced Air
Heating
  • Includes
    Forced Air
    Heat Pump
Interior
  • Flooring
    Ceramic Tile
    Vinyl
    Vinyl Plank
  • Features
    Bath Off Primary
    Double Pane/Storm Window
    Dining Room
    Fireplace
    High Tech Cabling
    Loft
    Security System
    Walk-In Closet(s)
    Walk-In Pantry
    Water Heater
Property
  • Lot Features
    Curbs
    Open Space
    Paved
    Sidewalk
  • Site Features
    Cable TV
    Electric Car Charging
    Fenced-Partially
    Gas Available
    High Speed Internet
    Patio
Appliances
  • Included
    Dishwasher(s)
    Disposal
    Dryer(s)
    Microwave(s)
    Refrigerator(s)
    Stove(s)/Range(s)
    Washer(s)
Terms
  • Bank Owned (REO)
    No
Utilities
  • Energy
    Electric
    Natural Gas
  • Sewer
    Sewer Connected
  • Water Source
    Public
Additional Info
  • Waterfront
    No
  • Air Conditioning (A/C)
    Yes
  • Buyer Broker's Compensation
    2.5%
  • MLS Area #
    Area 730
  • Number of Photos
    34
  • Last Modification Time
    Thursday, November 27, 2025 4:03 AM
  • System Listing ID
    5489147
Update Info
  • Closed
    2025-10-27 19:28:11
  • Pending Or Ctg
    2025-10-04 20:24:41
  • First For Sale
    2025-10-02 15:17:21
Listing details based on information submitted to the MLS GRID as of Thursday, November 27, 2025 4:03 AM. All data is obtained from various sources and may not have been verified by broker or MLS GRID. Supplied Open House Information is subject to change without notice. All information should be independently reviewed and verified for accuracy. Properties may or may not be listed by the office/agent presenting the information.
View
Sort

Sharing

 
Sold October 27, 2025
$875,000   $859,000
3 BR    2.5 BA    1,791 SQFT  
NWMLS #2437121. Hao N. Dang, Windermere Real Estate/East
Map
 
Listing information is provided by the listing agent except as follows: BuilderB indicates that our system has grouped this listing under a home builder name that doesn't match the name provided by the listing broker. DevelopmentD indicates that our system has grouped this listing under a development name that doesn't match the name provided by the listing broker.