to
Reset
Houses
Townhouses
Condos
Land
Price
to
SQFT
to
Bdrms
to
Baths
to
Lot
to
Yr Built
to
Sold
Listed within...
Listed at least...
Offer Review
New Construction
Waterfront
Short-Sales
REO
Parking
to
Unit Flr
to
Unit Nbr
Listings
Neighborhoods
Complexes
Developments
Cities
Counties
Zip Codes
Neighborhood · Condo · Development
School District
Zip Code
City
County
Builder
Listing Numbers
Broker LAG
Boundary Lines
Labels
View
Sort
Pending Went pending in 131 days
$1,079,750
Originally $1,221,950
4 Bedrooms
3.5 Bathrooms
3,862 Sqft House
New Construction
Built 2026
6,646 Sqft Lot
2-Car Garage
HOA Dues $65 / month
PENDING SALE. This listing went Pending on February 15, 2026

Some pending sales don't become final. Contact Us if this property is really important to you so we can check on it right now. The seller has reached an agreement with a buyer to sell this property. If things go as planned, the sale will become final in the near future. The buyer and seller have agreed on a price but it's not public until the sale closes. The last published list price was $1,079,750.
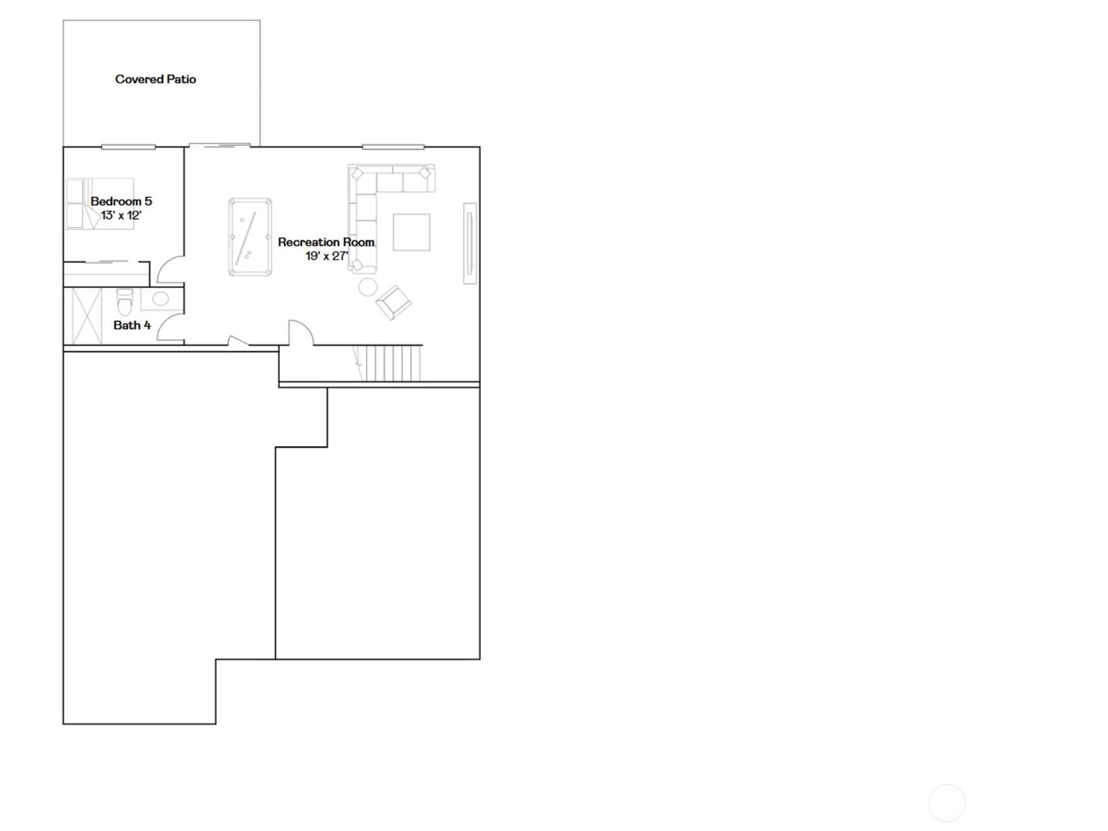
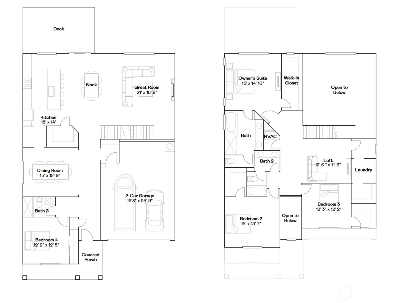
Welcome to the final Whitman on homesite 20 at Garibaldi, a beautiful community by Lennar. Enjoy added privacy on this lot with a fully wooded neighboring area, creating a peaceful environment. The main floor of the home offers a bedroom and full bath—plus an open-concept kitchen, dining room, great room, and access to a back deck for relaxing or entertaining. In the basement, enjoy a recreation room, private bedroom and bath, and a covered patio. Upstairs includes three more bedrooms, a loft, and a luxurious owner’s suite with an en-suite bath and walk-in closet. With Lennar’s signature Everything’s Included®, you’ll find stainless steel appliances, quartz countertops, shaker-style cabinetry and more—all at no extra cost. Buyer’s broker must be registered during the customer’s first interaction with a Lennar Associate to be eligible for compensation.
Offer Review
No offer review date was specified
Builder
Project
Garibaldi
Listing source NWMLS MLS #
2442176
Listed by
Ty Kolsky, Lennar Sales Corp.
Karen Akers, Lennar Sales Corp.
Contact our
Monroe
Real Estate Lead
Buck Real Estate
Phone...
Bedroom & Bathroom Layout
SECOND
BDRM
BDRM
BDRM
FULL
BATH
FULL
BATH
MAIN
½
BATH
LOWER
BDRM
FULL
BATH
Property History
Feb 15, 2026
Went Pending
$1,079,750
NWMLS #2442176
Jan 29, 2026
Price Reduction arrow_downward
$1,079,750
NWMLS #2442176
Jan 08, 2026
Price Reduction arrow_downward
$1,086,400
NWMLS #2442176
Jan 05, 2026
Price Reduction arrow_downward
$1,121,950
NWMLS #2442176
Jan 02, 2026
Price Increase arrow_upward
$1,129,350
NWMLS #2442176
Dec 29, 2025
Price Increase arrow_upward
$1,122,000
NWMLS #2442176
Dec 19, 2025
Price Reduction arrow_downward
$1,099,950
NWMLS #2442176
Dec 16, 2025
Price Increase arrow_upward
$1,152,300
NWMLS #2442176
Dec 09, 2025
Price Reduction arrow_downward
$1,144,950
NWMLS #2442176
Dec 01, 2025
Price Reduction arrow_downward
$1,149,950
NWMLS #2442176
Oct 31, 2025
Price Reduction arrow_downward
$1,199,950
NWMLS #2442176
Oct 22, 2025
Price Increase arrow_upward
$1,202,850
NWMLS #2442176
Oct 20, 2025
Price Reduction arrow_downward
$1,199,950
NWMLS #2442176
Oct 09, 2025
Price Reduction arrow_downward
$1,202,850
NWMLS #2442176
Oct 07, 2025
Listed
$1,221,950
NWMLS #2442176
More
Listing Details
  • Status
    Pending
  • Last Listed Price
    $1,079,750
  • Original Price
    $1,221,950
  • List Date
    October 7, 2025
  • Last Status Change
    February 16, 2026
  • Last Update
    February 16, 2026
  • Days on Market
    142 Days
  • Cumulative DOM
    131 Days
  • Pending Date
    February 15, 2026
  • Days to go Pending
    131
  • $/sqft (Total)
    $280/sqft
  • $/sqft (Finished)
    $280/sqft
  • Listing Source
  • MLS Number
    2442176
  • Listing Broker
    Ty Kolsky
  • Listing Office
    Lennar Sales Corp.
Monthly Payment Estimate
  • Principal and Interest
    $5,660 / month
  • HOA
    $65 / month
  • Property Taxes
    $825 / month
  • Homeowners Insurance
    $210 / month
  • TOTAL
    $6,760 / month

  • based on 20% down
    ($215,950)
  • and a
    6.85% Interest Rate
  • About:
    All calculations are estimates only and provided by Mainview LLC. Actual amounts will vary.
House Details
  • Sqft (Total)
    3,862 sqft
  • Sqft (Finished)
    3,862 sqft
  • Sqft (Unfinished)
    None
  • Property Type
    House
  • Sub Type
    2 Stories + Basement
  • Bedrooms
    4 Bedrooms
  • Bathrooms
    3.5 Bathrooms
  • Lot
    6,646 sqft Lot
  • Lot Size Source
    Plot Plan
  • Lot #
    20
  • Project
    Garibaldi
  • Total Stories
    3 stories
  • Basement
    Finished
  • Sqft Source
    Builder Site Plan
Property Tax Info
  • 2026 Property Taxes
    $9,898 / year
  • No Senior Exemption
Public Parcel Data & Maps
  • County
    Snohomish County
  • Parcel #
    0020
  • County Website
    Unspecified
  • County Parcel Map
    Unspecified
  • County GIS Map
    Unspecified
  • About
    County links provided by Mainview LLC
Schools
  • School District
    Monroe
  • Elementary
    Chain Lake Elem
  • Middle
    Park Place Middle Sc
  • High School
    Monroe High
HOA
  • HOA Dues
    $65 / month
  • Fees Assessed
    Monthly
  • HOA Dues Include
    Common Area Maintenance
  • HOA Contact
    J & M Managment 253-848-1947
  • Management Contact
Community Features
  • Community Features
    CCRs
    Park
    Playground
Parking
  • Covered
    2-Car
  • Types
    Driveway
    Attached Garage
  • Has Garage
    Yes
  • Nbr of Assigned Spaces
    2
Views
  • Mountain(s)
    Partial
    Territorial
Construction
  • Year Built
    2026
  • New Construction
    Yes
  • Construction State
    Unspecified
  • Home Builder
    Lennar
Cooling
  • Includes
    90%+ High Efficiency
    Central A/C
    Ductless
    Forced Air
    Heat Pump
Heating
  • Includes
    90%+ High Efficiency
    Ductless
    Forced Air
    Heat Pump
Interior
  • Flooring
    Ceramic Tile
    Vinyl Plank
    Carpet
  • Features
    Bath Off Primary
    Dbl Pane/Storm Window
    Dining Room
    Fireplace
    High Tech Cabling
    Loft
    SMART Wired
    Walk-In Closet(s)
    Walk-In Pantry
    Water Heater
Property
  • Lot Features
    Curbs
    Paved
    Sidewalk
  • Site Features
    Deck
    Patio
Appliances
  • Included
    Dishwasher(s)
    Disposal
    Double Oven
    Microwave(s)
    Refrigerator(s)
    Stove(s)/Range(s)
Terms
  • 3rd Party Approval Required)
    No
  • Bank Owned (REO)
    No
  • Complex FHA Availability
    Unspecified
  • Potential Terms
    Cash
    Conventional
    FHA
    USDA Loan
    VA Loan
Utilities
  • Energy
    Electric
  • Sewer
    Sewer Connected
  • Water Source
    Public
Additional Info
  • Waterfront
    No
  • Air Conditioning (A/C)
    Yes
  • Buyer Broker's Compensation
    2%
  • MLS Area #
    Area 750
  • Number of Photos
    35
  • Last Modification Time
    Sunday, February 15, 2026 5:43 PM
  • System Listing ID
    5490206
Update Info
  • Pending Or Ctg
    2026-02-15 17:57:17
  • Price Reduction
    2026-01-29 15:52:20
  • Price Increase
    2026-01-02 10:10:37
  • First For Sale
    2025-10-07 08:46:04
Listing details based on information submitted to the MLS GRID as of Sunday, February 15, 2026 5:43 PM. All data is obtained from various sources and may not have been verified by broker or MLS GRID. Supplied Open House Information is subject to change without notice. All information should be independently reviewed and verified for accuracy. Properties may or may not be listed by the office/agent presenting the information.
View
Sort

Sharing

 
Pending February 15, 2026
$1,079,750  
4 BR    3.5 BA    3,862 SQFT  
NWMLS #2442176. Ty Kolsky, Lennar Sales Corp.
Map
 
Listing information is provided by the listing agent except as follows: BuilderB indicates that our system has grouped this listing under a home builder name that doesn't match the name provided by the listing broker. DevelopmentD indicates that our system has grouped this listing under a development name that doesn't match the name provided by the listing broker.